Размещено на портале Архи.ру (www.archi.ru)

20.01.2016

Башня без конца

Нина Фролова
Объект:
Башня Allianz комплекса CityLife
Адрес:
Италия, None, Милан.
Проект CityLife
Адрес:
Италия, None, Милан.

Небоскреб Allianz по проекту Арата Исодзаки и Андреа Маффеи в Милане – первая крупная постройка комплекса CityLife.

Башня Allianz комплекса CityLife © Alessandra Chemollo
Башня Allianz комплекса CityLife © Alessandra Chemollo

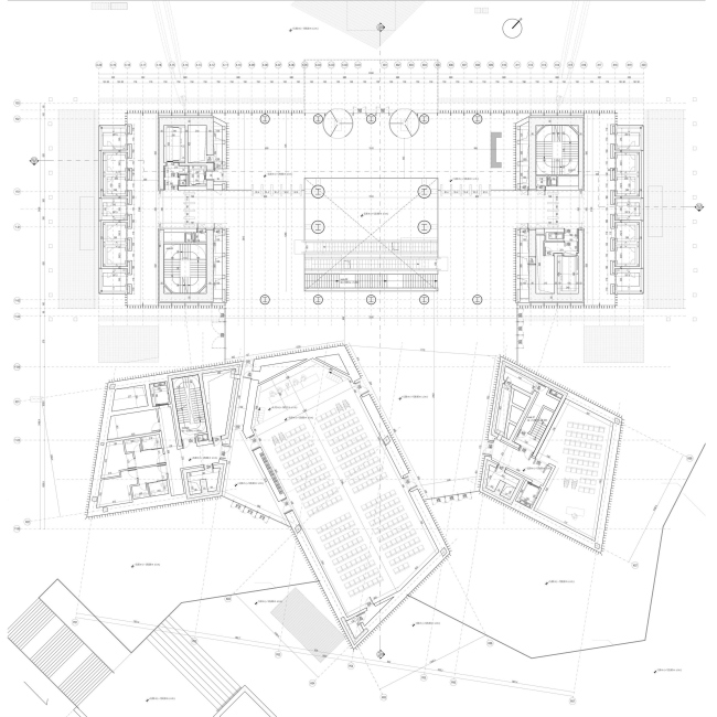
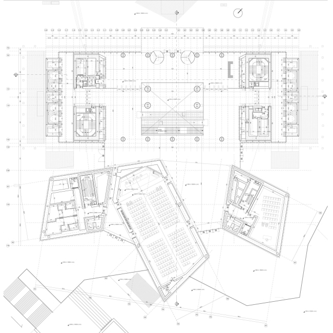
Проект CityLife реализуется на месте главного миланского выставочного комплекса. «Ярмарка» была выведена из центра города, и коммерческие выставки уже 10 лет проходят в сооружении по проекту Массимилиано Фуксаса, однако создание на ее прежнем месте района смешанной застройки идет неспешно. Из трех задуманных там небоскребов готов пока только один – башня по проекту Исодзаки и Маффеи, прозванная «Прямой», т.к. к двум другим, по проектам Захи Хадид и Даниэля Либескинда, это определение применить никак не получится.
 
Башня Allianz комплекса CityLife © Alessandra Chemollo
Башня Allianz комплекса CityLife © Alessandra Chemollo

Также офисная башня, официально названная в честь страховой компании Allianz – самая высокая из трех, ее высота – 207 м, она стала второй по высоте в Милане и в Италии после здания Unicredit по проекту бюро Сезара Пелли (217 м). Сами архитекторы, впрочем, называют высоту не в 207, а в 242 м, однако это – включая шпиль, который не учитывается занимающимися небоскребами международными организациями, в частности, Советом по высотному строительству и городской среде (CTBUH) и Emporis.
 
Башня Allianz комплекса CityLife © Alessandra Chemollo
Башня Allianz комплекса CityLife © Alessandra Chemollo

Образ здания вдохновлен «Бесконечной колонной» (1937–1938) в Тыргу-Жиу румынского скульптора Константина Бранкузи: так же, как и эта абстрактная скульптура, небоскреб составлен из серии водруженных друг на друга одинаковых объемов, его низ и верх никак не выделены, и потому в воображении можно увеличить его высоту до бесконечности.
 
Башня Allianz комплекса CityLife © Alessandra Chemollo
Башня Allianz комплекса CityLife © Alessandra Chemollo

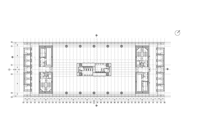
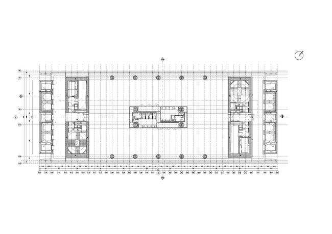
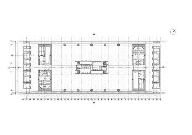
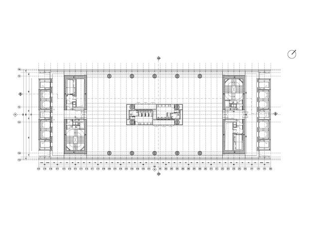
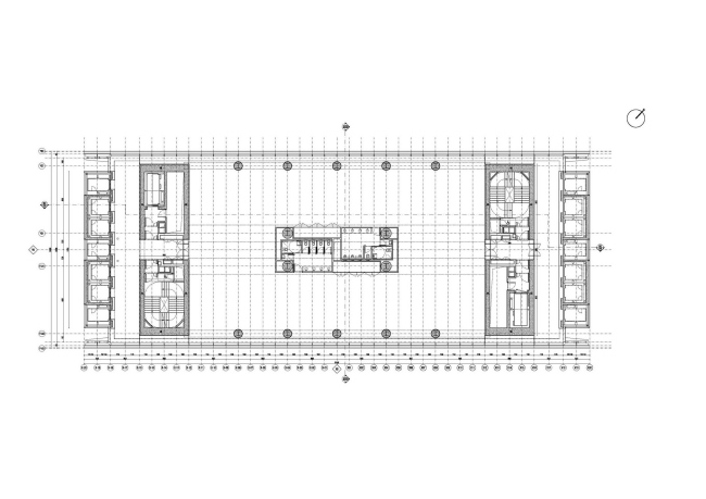
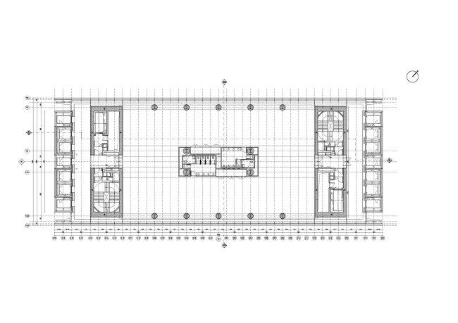
Каждый модуль миланской башни имеет выпуклые стенки, поэтому кажется, что башня слегка вибрирует. Площадь каждого блока – 24 м x 61,5 м, высота – 6 этажей. Фасады его составляет тройное остекление. На узкие торцы постройки выведены шахты панорамных лифтов.
 
Башня Allianz комплекса CityLife © Alessandra Chemollo
Башня Allianz комплекса CityLife © Alessandra Chemollo

Общая площадь башни – 81 615 м2, под землей расположено еще 44 485 м2.
Башня Allianz комплекса CityLife © Alessandra Chemollo
Башня Allianz комплекса CityLife © Alessandra Chemollo
Башня Allianz комплекса CityLife © Alessandra Chemollo
Башня Allianz комплекса CityLife © Alessandra Chemollo
Башня Allianz комплекса CityLife © Alessandra Chemollo
Башня Allianz комплекса CityLife © Alessandra Chemollo
Башня Allianz комплекса CityLife © Alessandra Chemollo
Башня Allianz комплекса CityLife © Alessandra Chemollo
Башня Allianz комплекса CityLife © Alessandra Chemollo
Башня Allianz комплекса CityLife © Alessandra Chemollo
Башня Allianz комплекса CityLife © Alessandra Chemollo
Башня Allianz комплекса CityLife © Alessandra Chemollo
Башня Allianz комплекса CityLife © Alessandra Chemollo
Башня Allianz комплекса CityLife © Alessandra Chemollo
Башня Allianz комплекса CityLife © Alessandra Chemollo
Башня Allianz комплекса CityLife © Alessandra Chemollo
Башня Allianz комплекса CityLife © Alessandra Chemollo
Башня Allianz комплекса CityLife © Alessandra Chemollo
Башня Allianz комплекса CityLife © Andrea Maffei Architects
Башня Allianz комплекса CityLife © Andrea Maffei Architects
Башня Allianz комплекса CityLife © Andrea Maffei Architects
Башня Allianz комплекса CityLife © Andrea Maffei Architects
Башня Allianz комплекса CityLife © Andrea Maffei Architects
Башня Allianz комплекса CityLife © Andrea Maffei Architects
Башня Allianz комплекса CityLife © Andrea Maffei Architects
Башня Allianz комплекса CityLife © Andrea Maffei Architects