Размещено на портале Архи.ру (www.archi.ru)

04.04.2016

Космическая шишка

Анна Старостина
Объект:
Торгово-развлекательный комплекс «Бурундуки»
Адрес:
Россия, Новосибирск. Бердское шоссе, д. 20
Архитектор:
Александр Попов
Мастерская:
Архиматика

В киевском бюро «АРХИМАТИКА» разработан проект торгово-развлекательного центра для Новосибирска. Источником вдохновения для архитекторов стала кедровая шишка.

Торгово-развлекательный комплекс «Бурундуки». Проект, 2015
Торгово-развлекательный комплекс «Бурундуки». Проект, 2015
© Лаптев и Партнёры

Концепция торгового молла под мультипликационным названием «Бурундуки» предполагала расположение большого количества торговых площадей (почти 130 000 м2) на совершенно пустой территории на выезде из Новосибирска. Место удаленное и пустое, никак не ограничивающее архитекторов, но расположенное на шоссе, связывающим собственно Новосибирск с входящими в агломерацию Академгородком и Бердском. Движение на трассе довольно напряженное, так что недостатка в посетителях быть не должно.
Торгово-развлекательный комплекс «Бурундуки». Ситуационный план. Проект, 2015
Торгово-развлекательный комплекс «Бурундуки». Ситуационный план. Проект, 2015
© Лаптев и Партнёры
Торгово-развлекательный комплекс «Бурундуки». Ситуационный план, расстояние до станции метро. Проект, 2015
Торгово-развлекательный комплекс «Бурундуки». Ситуационный план, расстояние до станции метро. Проект, 2015
© Лаптев и Партнёры
Торгово-развлекательный комплекс «Бурундуки». Ситуационный план, расстояние до центра города. Проект, 2015
Торгово-развлекательный комплекс «Бурундуки». Ситуационный план, расстояние до центра города. Проект, 2015
© Лаптев и Партнёры
Торгово-развлекательный комплекс «Бурундуки». Существующее положение. Проект, 2015
Торгово-развлекательный комплекс «Бурундуки». Существующее положение. Проект, 2015
© Лаптев и Партнёры

Заказчику понравился комплексный и творческий подход, реализованный Александром Поповым и Дмитрием Васильевым в проекте киевского торгово-развлекательного комплекса «Республика» (который пока не завершен из-за недостатка финансирования), и он обратился к архитекторам с просьбой создать проект, отвечающий функциональной программе комплекса. Программа разработана специалистами компании UTG и вполне стандартна: четырехуровневое пространство с паркингом, торговыми галереями, фудкортами и развлекательными функциями объединено вокруг центрального атриума.
Тем не менее, архитекторы нашли возможности функционально и качественно выделить свой проект среди немалого числа уже имеющихся и строящихся ТРЦ Новосибирска. «Все наши решения должны быть интересны и выгодны не с одной какой-то точки зрения, а сразу с нескольких, – открывает секрет успеха сооснователь и директор бюро «АРХИМАТИКА» Александр Попов. – Если учитывать лишь один какой-то фактор, то получится либо слишком дорого, что в нынешних экономических условиях просто непозволительно, либо не оптимально с функциональной точки зрения, что также не добавит объекту конкурентоспособности».

Одним из таких решений стал отказ от привычной подземной парковки: под автостоянку неожиданно отдан весь первый этаж комплекса. Во-первых, это позволило удешевить строительство в условиях сурового климата. Во-вторых, площадка расположена в низине и владельцы бы постоянно сталкивались с проблемами грунтовых вод. В-третьих, шоссе проходит метра на два-три выше участка и искусственно поднятый основной объем комплекса гораздо лучше «читается» из окна проезжающего автомобиля. Наконец, архитекторы посчитали, что так легче посетителям сориентироваться и припарковаться ровно под нужным магазином, быстро подняться и не толкать потом далеко тяжелую тележку. Возникающую при такой планировке проблему подвоза и разгрузки товаров решили при помощи специальной рампы с тыльной стороны здания. Место под ней опять же не пропадет, за счет него планируется увеличить количество парковочных мест.
Торгово-развлекательный комплекс «Бурундуки». План парковки. Проект, 2015
Торгово-развлекательный комплекс «Бурундуки». План парковки. Проект, 2015
© Лаптев и Партнёры
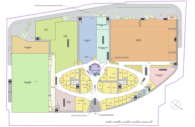
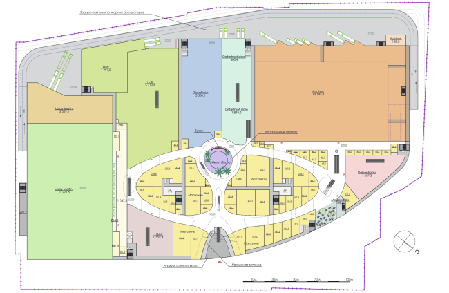
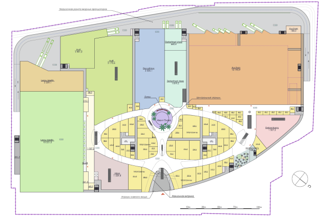
Торгово-развлекательный комплекс «Бурундуки». План 1 этажа. Проект, 2015
Торгово-развлекательный комплекс «Бурундуки». План 1 этажа. Проект, 2015
© Лаптев и Партнёры

Второй существенный момент – большое внимание к общественной функции. Хотим мы этого или нет, но торговые центры всё больше становятся местом длительного семейного времяпрепровождения и вопрос качества среды и уровня развлечений в такой ситуации важен для успеха проекта. «Конечно нельзя забывать, что это определенный компромисс, закрытое пространство с искусственным микроклиматом всегда будет уступать открытому городскому общественному пространству, но в наших городах настолько не хватает подобных мест отдыха и развлечений, а погода такая капризная, что создание крытых атриумных общественных пространств остается целесообразным – говорит Александр Попов, – исключительно при условии, что уделено должное внимание качеству создаваемой среды, как в функциональном, так и в архитектурном, и в дизайнерском аспектах». Действительно, кроме стандартного набора из кафе, ресторанов, детских аттракционов и кинотеатра в новом ТРЦ предусмотрены: концертный зал, океанариум, выставочные пространства, интерактивный научный музей и детский тематический парк «Минополис». Более того, запланированы две вертолетные площадки на крыше, одна из которых, действительно, обеспечит дополнительные возможности транспортного сообщения в условиях больших расстояний, а вторая будет использоваться как ещё один аттракцион для посетителей. Все это мыслится вовсе не как очередная эффектная и по большому счету не слишком нужная «игрушка», архитекторы даже готовы полностью отказаться от идеи, если не удастся добиться её полноценного функционирования.
Торгово-развлекательный комплекс «Бурундуки». Эскиз, функциональная схема. Проект, 2015
Торгово-развлекательный комплекс «Бурундуки». Эскиз, функциональная схема. Проект, 2015
© Лаптев и Партнёры
Торгово-развлекательный комплекс «Бурундуки». Эскиз. Проект, 2015
Торгово-развлекательный комплекс «Бурундуки». Эскиз. Проект, 2015
© Лаптев и Партнёры
Торгово-развлекательный комплекс «Бурундуки». Проект, 2015
Торгово-развлекательный комплекс «Бурундуки». Проект, 2015
© Лаптев и Партнёры

Экстерьерные решения, конечно же, должны активно демонстрировать окружающим современное, технологически и эстетически продвинутое наполнение комплекса. С другой стороны, фасад должен представить сформулированный названием собственный бренд ТРК: «БУРУНДУКИ». Однако как быть, если волею эволюции, бурундуки в техническом и эстетическом прогрессе себя (возможно пока) никак не проявили? Зато эти запасливые и отбирающие только самые лучшие орехи – как созвучно самой идее молла! – зверьки водятся в местных лесах и любят кедровые шишки. Сместив акценты, архитекторы обратили свое внимание именно на этот, знаковый для Сибири продукт. Конструкции комплекса планируется выполнить из монолитного железобетона с использованием металлических конструкций только для перекрытия больших пролетов. Все это будет закрыто утилитарными сэндвич-панелями, обеспечивающими необходимые эксплуатационные качества. А вот уже поверх довольно простой и недорогой «коробки» возникнет оболочка, структура которой напоминает чешуйки кедровой шишки. На фасадах она будет выполнена из алюминия, а на кровле над атриумом – из стекла. «Конечно же никто не собирался создавать комический, фольклорный образ и строить буквальную гигантскую шишку, скорее, это такая «космическая мечта бурундука», – улыбается Александр Попов. – Надеюсь, что всё получится и за футуристичной оболочкой действительно будет скрыто что-то очень «вкусное».
Торгово-развлекательный комплекс «Бурундуки». Поиски образа для оформления фасада. Проект, 2015
Торгово-развлекательный комплекс «Бурундуки». Поиски образа для оформления фасада. Проект, 2015
© Лаптев и Партнёры
Торгово-развлекательный комплекс «Бурундуки». Эскиз. Проект, 2015
Торгово-развлекательный комплекс «Бурундуки». Эскиз. Проект, 2015
© Лаптев и Партнёры
Торгово-развлекательный комплекс «Бурундуки». Эскиз. Проект, 2015
Торгово-развлекательный комплекс «Бурундуки». Эскиз. Проект, 2015
© Лаптев и Партнёры
Торгово-развлекательный комплекс «Бурундуки». План 2 этажа. Проект, 2015
Торгово-развлекательный комплекс «Бурундуки». План 2 этажа. Проект, 2015
© Лаптев и Партнёры
Торгово-развлекательный комплекс «Бурундуки». План 3 этажа. Проект, 2015
Торгово-развлекательный комплекс «Бурундуки». План 3 этажа. Проект, 2015
© Лаптев и Партнёры