Размещено на портале Архи.ру (www.archi.ru)

18.01.2016

Вера в дерево

Екатерина Ровнова
Объект:
Здание медиакомпании Sky – Sky Believe in Better Building
Адрес:
Великобритания, None, Лондон.
Мастерская:
Arup Associates

Самое высокое в Великобритании коммерческое здание из клееной древесины построено в Лондоне для медиакомпании Sky по проекту бюро Arup Associates.

Здание медиакомпании Sky – Sky Believe in Better Building © Simon Kennedy
Здание медиакомпании Sky – Sky Believe in Better Building © Simon Kennedy

Лавры самого высокого британского коммерческого здания из клееной древесины теперь принадлежат штаб-квартире телекоммуникационной корпорации Sky: на территории лондонского кампуса компании возведено 4-этажное строение по проекту Arup Associates. Романтически названное Believe in Better Building по текущему слогану компании «Верь в лучшее» (Believe in Better), оно должно было воплотить основные принципы одноименной образовательной кампании: просвещение, открытость, кооперацию, сотрудничество, вариативность, плюрализм, технологичность, заботу об окружающей среде. По мнению архитекторов, материалом, из которого было возможно создать в кратчайшие сроки соответствующее этим принципам пространство, могла стать только древесина.
 
Здание медиакомпании Sky – Sky Believe in Better Building © Simon Kennedy
Здание медиакомпании Sky – Sky Believe in Better Building © Simon Kennedy

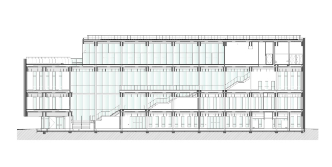
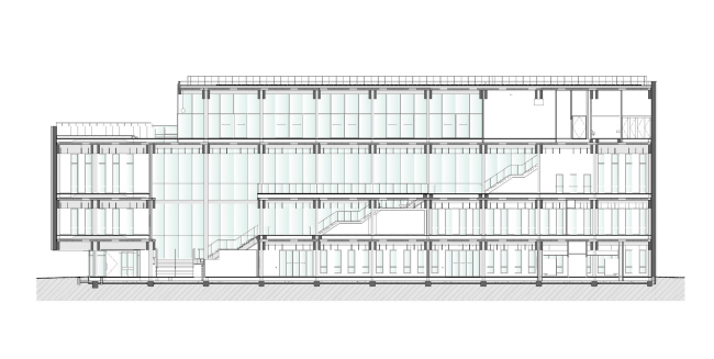
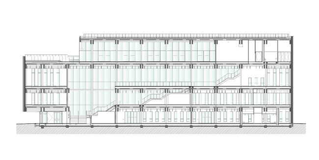
Самый эффектный фасад, северный, с поднимающейся вдоль него лестницей, обращен к главной площади. По завершении реконструкции кампуса Sky эта площадь станет местом притяжения людей, пересечения их маршрутов от корпуса к корпусу и своеобразным «зрительным залом» перед «сценой» – этим остекленным фасадом, сквозь который просматривается устройство здания. Главная лестница соединяет все этажи: она не просто служит межуровневой связкой, но и визуально отражает открытость постройки вовне. Назначение лестницы – не «транзит» (за это ответственны более утилитарные лестнично-лифтовые узлы), а место средоточия жизни внутри и демонстрация ее пешеходам снаружи.
 
Здание медиакомпании Sky – Sky Believe in Better Building © Simon Kennedy
Здание медиакомпании Sky – Sky Believe in Better Building © Simon Kennedy

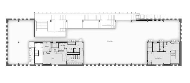
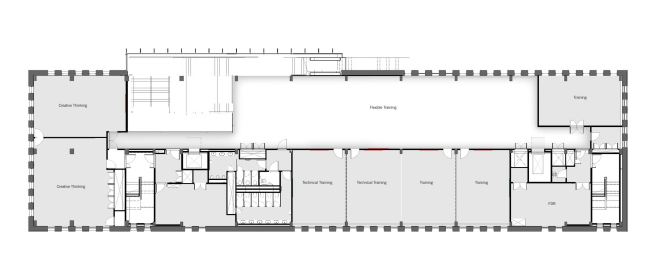
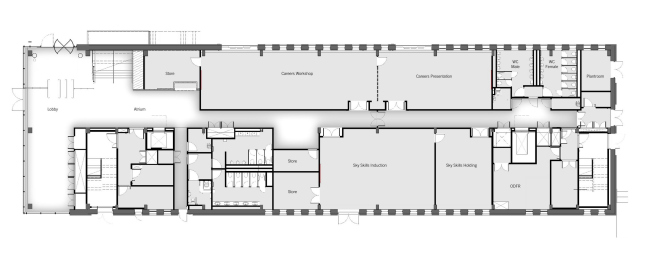
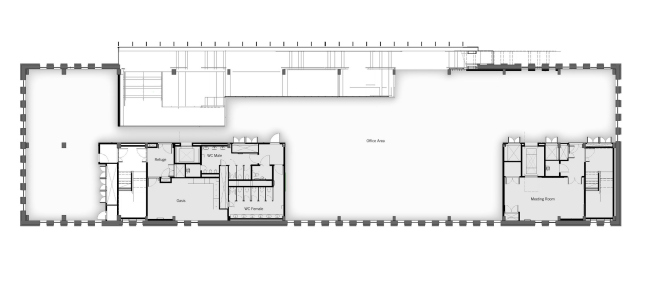
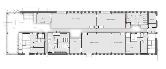
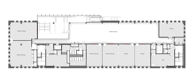
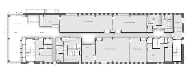
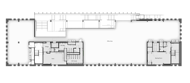
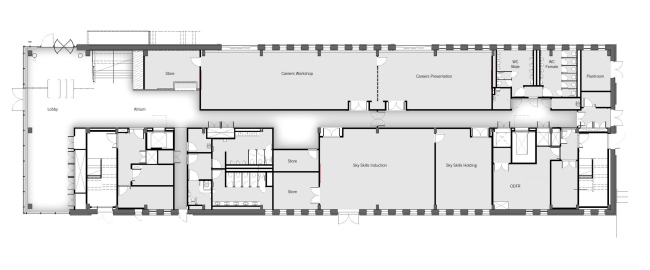
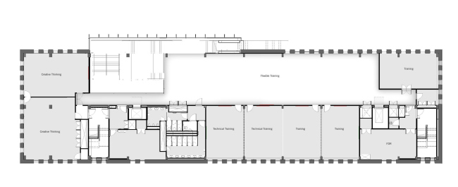
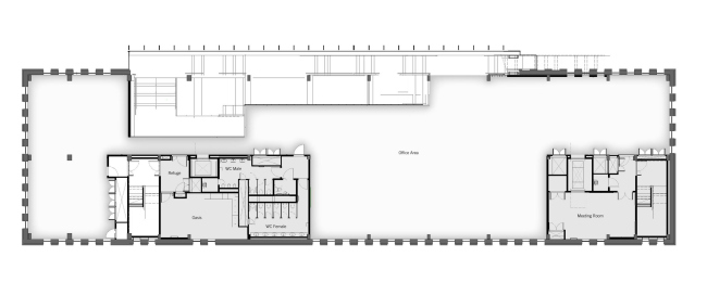
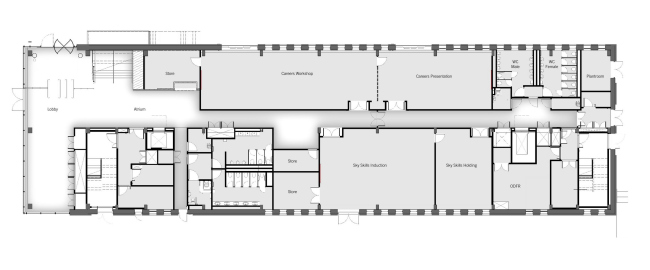
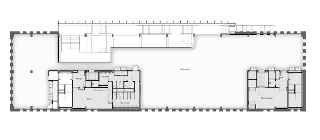
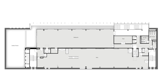
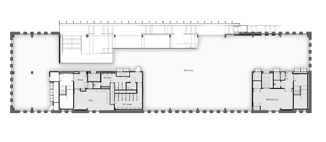
Разместить эту жизнь и реализовать задуманную многофункциональность здания с различными помещениями – от комнат для занятий со молодежью Sky Academy Careers Lab и аудиторий для профессиональных тренингов до офисного опен-спейса – позволяет модульная сетка деревянного каркаса. Многочисленные варианты конфигурации пространств формируются сдвижными перегородками, которые обеспечивают высокий уровень звукоизоляции, необходимый для компании, специализирующейся на мультимедийных технологиях.
 
Здание медиакомпании Sky – Sky Believe in Better Building © Simon Kennedy
Здание медиакомпании Sky – Sky Believe in Better Building © Simon Kennedy

В интерьере максимально использованы открытые деревянные поверхности без облицовки: это стало возможным благодаря отсутствию необходимости в дополнительных слоях огнезащиты или звукоизоляции. В силу большой площади сечения несущих конструкций их предел огнестойкости составляет необходимые 60 минут, поэтому обработки, например, в виде штукатурного слоя, не требовалось. Двухслойная конструкция перекрытий, в которых пол и потолок разнесены по высоте, не только создает пространство для прокладки коммуникаций и электрооборудования, но и обеспечивает нужную степень звукоизоляции.
 
Здание медиакомпании Sky – Sky Believe in Better Building © Simon Kennedy
Здание медиакомпании Sky – Sky Believe in Better Building © Simon Kennedy

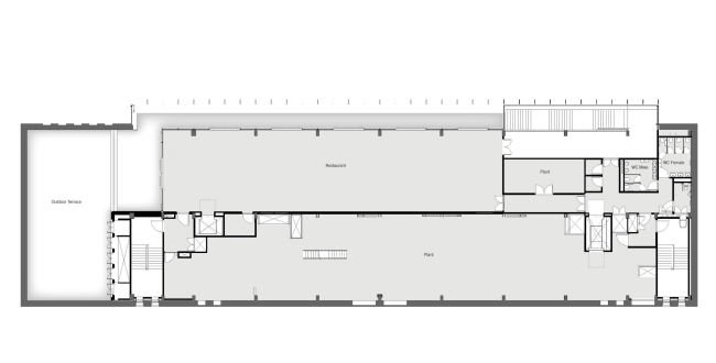
Несущий каркас состоит из клееных деревянных колонн (сетка 6 м х 8 м), клееных балок (по 8 м и 16 м), перекрестно-клееных стен лестнично-лифтовых шахт, перекрестно-клееных CLT-панелей перекрытия (длина 12 м) и перераспределяющей нагрузку стены-фермы на 4-м этаже, компенсирующей отсутствие колонн на срединной оси 3-го этажа: это большое безопорное пространство можно использовать как офисный опен-спейс или зал для массовых мероприятий.
 
Здание медиакомпании Sky – Sky Believe in Better Building © Simon Kennedy
Здание медиакомпании Sky – Sky Believe in Better Building © Simon Kennedy

Использование «двухпролетных» 12- и 16-метровых горизонтальных конструкций уменьшает прогиб, вибрацию, увеличивает жесткость структуры, ускоряет процесс возведения здания за счет уменьшения количества необходимых к подъему элементов и, следовательно, дает значительную экономию: по подсчетам проектировщиков, удобство строительства – один из важнейших элементов снижения затрат.
 
Здание медиакомпании Sky – Sky Believe in Better Building © Simon Kennedy
Здание медиакомпании Sky – Sky Believe in Better Building © Simon Kennedy

Так как Sky позиционирует себя как «углеродно-нейтральная» компания, то есть заявляет своей целью нулевой выброс СО2, а Arup Group, куда входит архитектурная мастерская Arup Associates, специализируется на «устойчивом» проектировании, неудивительно, что их сотрудничество и примененный в Believe in Better Building комплекс мер, привели здание к оценке «отлично» по шкале BREEAM. Кроме того, по завершении реконструкции кампуса объект будет подключен к существующей тригенерационной электростанции (CCHP – Combined Cooling, Heating and Power), производящей одновременно электричество, тепло и холод, что должно поднять объект до степени «выдающегося». По расчетам Arup, здание секвестрировало 1200 тонн диоксида углерода. Древесные отходы от производства его составляющих были использованы в когенерационных установках, обеспечивающих теплом и электроэнергией фабрику-производителя.
 
Здание медиакомпании Sky – Sky Believe in Better Building © Simon Kennedy
Здание медиакомпании Sky – Sky Believe in Better Building © Simon Kennedy

Чтобы избежать солнечного перегрева и при этом максимально использовать естественное освещение, почти полностью остеклен только северный фасад, освещающий пространство главной лестницы и прилегающие к ней помещений, тогда как в остальную часть строения свет проникает через высокие, но узкие окна.
 
Здание медиакомпании Sky – Sky Believe in Better Building © Simon Kennedy
Здание медиакомпании Sky – Sky Believe in Better Building © Simon Kennedy

70% здания облицовано 2-этажными деревянными кассетами теплопроводностью 0,2 Вт/м²·K, что снижает потерю тепловой энергии с квадратного метра до 3,58 кВт⋅ч в год: это на 76% меньше стандарта «Пассивного дома» в 15 кВт⋅ч/м2.
 
Здание медиакомпании Sky – Sky Believe in Better Building © Simon Kennedy
Здание медиакомпании Sky – Sky Believe in Better Building © Simon Kennedy

В здании использовано смешанная естественная и механическая вентиляция с использованием воздушных тепловых насосов и тепловых рекуператоров, летом работает адиабатическое охлаждение воздуха в воздухообрабатывающей установке. Фотовольтаическая система на крыше при подсоединении к тригенерационной электростанции кампуса должна снизить выброс CO2 до 40%.
 
Здание медиакомпании Sky – Sky Believe in Better Building © Simon Kennedy
Здание медиакомпании Sky – Sky Believe in Better Building © Simon Kennedy

Потребление питьевой воды для технических нужд сокращено на 62,89% от базового значения по шкале BREEAM для новых сооружений благодаря системе Flowstow, разработанной Arup. Дождевая вода, собранная в коллекторах на крыше, спускается в баки в санузлах, а затем подается через фильтр непосредственно по требованию: сила земного тяготения делает ненужной насосную станцию, что высвобождает полезную площадь и снижает нагрузку на электросеть.
 
Здание медиакомпании Sky – Sky Believe in Better Building © Simon Kennedy
Здание медиакомпании Sky – Sky Believe in Better Building © Simon Kennedy



Разработка проекта здания общей площадью 3850 м² заняла восемь недель, подготовка рабочей документации – четыре: таким образом, уже через три месяца с начала проектирования стартовали строительные работы. По словам авторов проекта, такая скорость стала возможной благодаря тесному взаимодействию команды архитекторов, инженеров, заказчика и строителей, в том числе – за счет использования BIM-технологий. От первых эскизов до возможных проблем при реализации, от вопросов снижения логистических издержек до подсчетов объема выброса углекислого газа – все обсуждалось и пересматривалось совместно на актуальной 3D-модели. В результате союза BIM-проектирования и технологии деревянного строительства, которая предполагает обработку древесных материалов исключительно в заводских условиях и сводит работы на стройплощадке к сборке «конструктора», строительство завершилось на месяц раньше запланированного срока, и компания Sky отмечала свое 25-летие уже в новом здании.

Стоимость строительства составила £25 млн.
Здание медиакомпании Sky – Sky Believe in Better Building © Simon Kennedy
Здание медиакомпании Sky – Sky Believe in Better Building © Simon Kennedy
Здание медиакомпании Sky – Sky Believe in Better Building © Arup Associates
Здание медиакомпании Sky – Sky Believe in Better Building © Arup Associates
Здание медиакомпании Sky – Sky Believe in Better Building © Arup Associates
Здание медиакомпании Sky – Sky Believe in Better Building © Arup Associates
Здание медиакомпании Sky – Sky Believe in Better Building © Arup Associates
Здание медиакомпании Sky – Sky Believe in Better Building © Arup Associates
Здание медиакомпании Sky – Sky Believe in Better Building © Arup Associates
Здание медиакомпании Sky – Sky Believe in Better Building © Arup Associates
Здание медиакомпании Sky – Sky Believe in Better Building © Arup Associates
Здание медиакомпании Sky – Sky Believe in Better Building © Arup Associates
Здание медиакомпании Sky – Sky Believe in Better Building © Arup Associates
Здание медиакомпании Sky – Sky Believe in Better Building © Arup Associates
Здание медиакомпании Sky – Sky Believe in Better Building © Arup Associates
Здание медиакомпании Sky – Sky Believe in Better Building © Arup Associates
Здание медиакомпании Sky – Sky Believe in Better Building © Arup Associates
Здание медиакомпании Sky – Sky Believe in Better Building © Arup Associates
Здание медиакомпании Sky – Sky Believe in Better Building © Arup Associates
Здание медиакомпании Sky – Sky Believe in Better Building © Arup Associates
Здание медиакомпании Sky – Sky Believe in Better Building © Arup Associates
Здание медиакомпании Sky – Sky Believe in Better Building © Arup Associates
Здание медиакомпании Sky – Sky Believe in Better Building © Arup Associates
Здание медиакомпании Sky – Sky Believe in Better Building © Arup Associates
Здание медиакомпании Sky – Sky Believe in Better Building © Declan O’Carroll / Arup Associates
Здание медиакомпании Sky – Sky Believe in Better Building © Declan O’Carroll / Arup Associates
Здание медиакомпании Sky – Sky Believe in Better Building © Declan O’Carroll / Arup Associates
Здание медиакомпании Sky – Sky Believe in Better Building © Declan O’Carroll / Arup Associates
Здание медиакомпании Sky – Sky Believe in Better Building © Declan O’Carroll / Arup Associates
Здание медиакомпании Sky – Sky Believe in Better Building © Declan O’Carroll / Arup Associates
Здание медиакомпании Sky – Sky Believe in Better Building © Declan O’Carroll / Arup Associates
Здание медиакомпании Sky – Sky Believe in Better Building © Declan O’Carroll / Arup Associates