Размещено на портале Архи.ру (www.archi.ru)

15.01.2016

Среди дубов

Нина Фролова
Объект:
Гостиница Sobreiras – Alentejo Country Hotel
Адрес:
Португалия, None,
Мастерская:
FAT - Future Architecture Thinking

Гостиница Sobreiras Alentejo Country Hotel в португальской области Алентежу по проекту бюро FAT – Future Architecture Thinking.

Гостиница Sobreiras – Alentejo Country Hotel © Joao Morgado – Architecture Photography
Гостиница Sobreiras – Alentejo Country Hotel © Joao Morgado – Architecture Photography

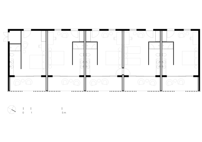
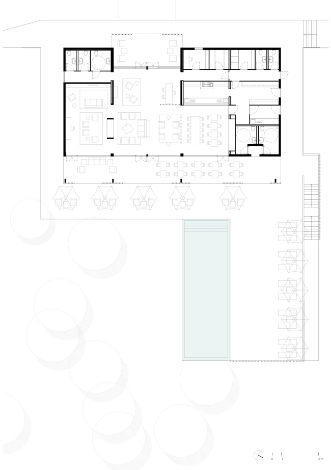
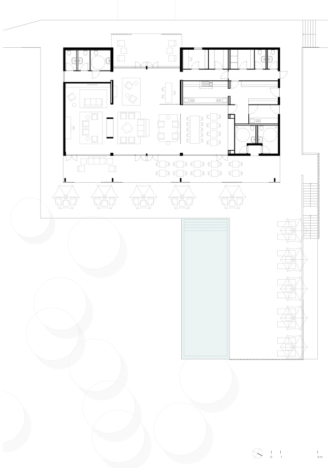
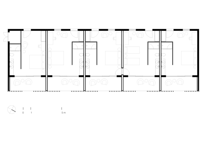
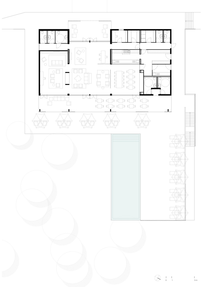
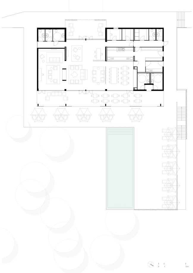
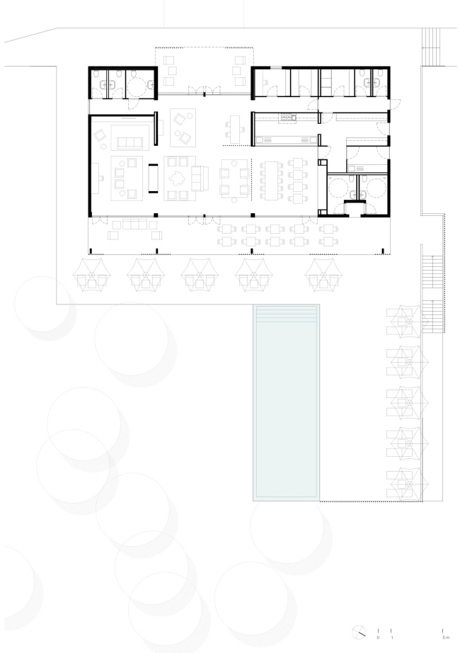
Гостиница расположена в живописном пейзаже Алентежу – среди холмов и долин, поросших пробковыми и каменными дубами и оливами. Чтобы не нарушать цельность пейзажа и сохранить росшие на участке деревья, архитекторы спроектировали гостиницу не как единый объем, а в виде восьми напоминающих традиционные домики белых павильонов. Они обращены на восток, как и другие жилища региона, так как с запада интенсивней всего светит солнце; кроме того, именно на восток раскрывается эффектная панорама местности. Однако, учитывая жаркий климат, и с этой стороны фасады защищены выносом крыши и «экранами» из тонких бревен.
 
Гостиница Sobreiras – Alentejo Country Hotel © Joao Morgado – Architecture Photography
Гостиница Sobreiras – Alentejo Country Hotel © Joao Morgado – Architecture Photography

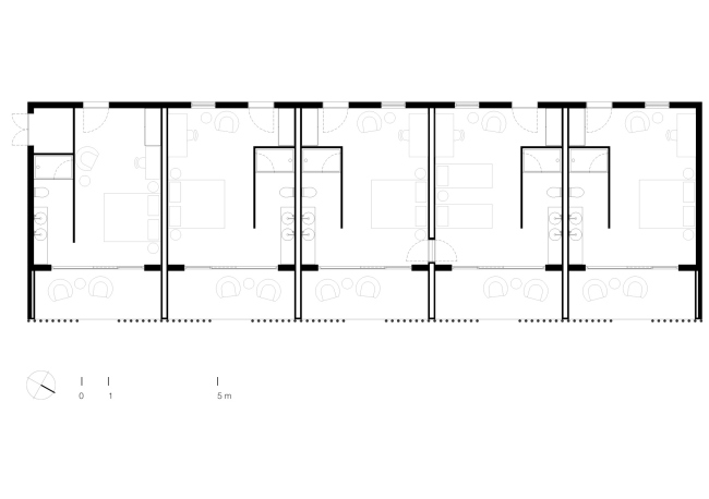
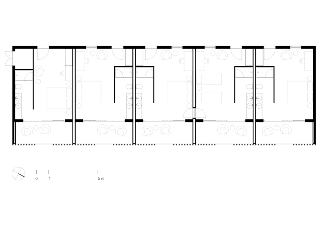
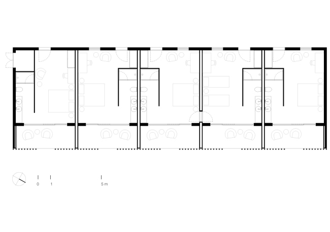
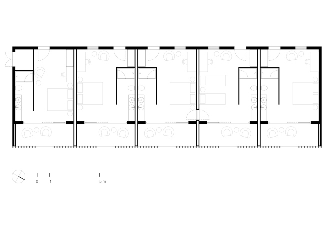
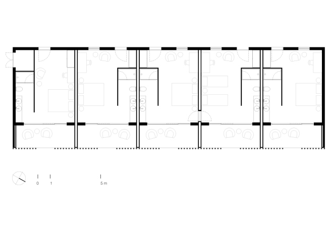
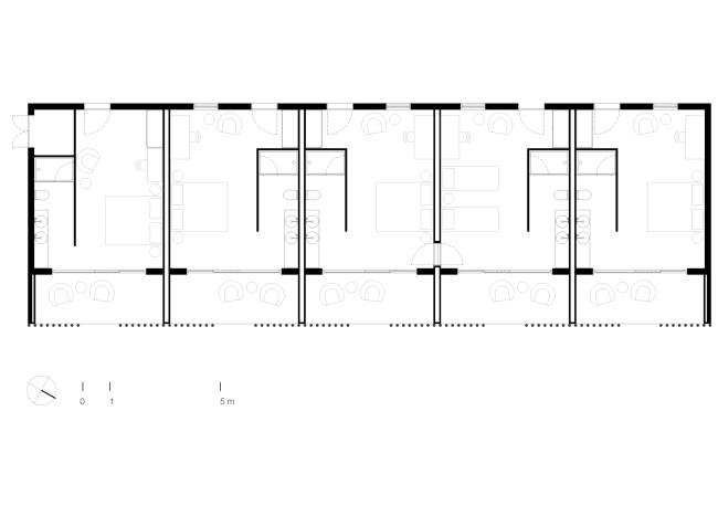
В самом крупном павильоне находятся вестибюль со стойкой портье и общественные зоны, в двух других – технические и подсобные помещения, остальные пять заняты в общей сложности 22 обычными номерами и двумя многокомнатными номерами-свитами.
 
Гостиница Sobreiras – Alentejo Country Hotel © Joao Morgado – Architecture Photography
Гостиница Sobreiras – Alentejo Country Hotel © Joao Morgado – Architecture Photography

Архитекторы выбрали пассивную стратегию поддержания в интерьере оптимальной температуры: кроме внешней защиты от солнца, предусмотрена естественная вентиляция.
 
Гостиница Sobreiras – Alentejo Country Hotel © Joao Morgado – Architecture Photography
Гостиница Sobreiras – Alentejo Country Hotel © Joao Morgado – Architecture Photography

Ради экономии воды, дефицитного для Алентежу ресурса, в номерах установлены смесители с низким напором, в общественных зонах – с таймером; крыши снабжены системой сбора дождевой воды, ландшафтный дизайн практически не требует полива растений. Также в проект включены солнечные коллекторы.
 
Гостиница Sobreiras – Alentejo Country Hotel © Joao Morgado – Architecture Photography
Гостиница Sobreiras – Alentejo Country Hotel © Joao Morgado – Architecture Photography
Гостиница Sobreiras – Alentejo Country Hotel © Joao Morgado – Architecture Photography
Гостиница Sobreiras – Alentejo Country Hotel © Joao Morgado – Architecture Photography
Гостиница Sobreiras – Alentejo Country Hotel © Joao Morgado – Architecture Photography
Гостиница Sobreiras – Alentejo Country Hotel © Joao Morgado – Architecture Photography
Гостиница Sobreiras – Alentejo Country Hotel © Joao Morgado – Architecture Photography
Гостиница Sobreiras – Alentejo Country Hotel © Joao Morgado – Architecture Photography
Гостиница Sobreiras – Alentejo Country Hotel © Joao Morgado – Architecture Photography
Гостиница Sobreiras – Alentejo Country Hotel © Joao Morgado – Architecture Photography
Гостиница Sobreiras – Alentejo Country Hotel © Joao Morgado – Architecture Photography
Гостиница Sobreiras – Alentejo Country Hotel © Joao Morgado – Architecture Photography
Гостиница Sobreiras – Alentejo Country Hotel © Joao Morgado – Architecture Photography
Гостиница Sobreiras – Alentejo Country Hotel © Joao Morgado – Architecture Photography
Гостиница Sobreiras – Alentejo Country Hotel © Joao Morgado – Architecture Photography
Гостиница Sobreiras – Alentejo Country Hotel © Joao Morgado – Architecture Photography
Гостиница Sobreiras – Alentejo Country Hotel © Joao Morgado – Architecture Photography
Гостиница Sobreiras – Alentejo Country Hotel © Joao Morgado – Architecture Photography
Гостиница Sobreiras – Alentejo Country Hotel © Joao Morgado – Architecture Photography
Гостиница Sobreiras – Alentejo Country Hotel © Joao Morgado – Architecture Photography
Гостиница Sobreiras – Alentejo Country Hotel © Joao Morgado – Architecture Photography
Гостиница Sobreiras – Alentejo Country Hotel © Joao Morgado – Architecture Photography
Гостиница Sobreiras – Alentejo Country Hotel © Joao Morgado – Architecture Photography
Гостиница Sobreiras – Alentejo Country Hotel © Joao Morgado – Architecture Photography
Гостиница Sobreiras – Alentejo Country Hotel © Joao Morgado – Architecture Photography
Гостиница Sobreiras – Alentejo Country Hotel © Joao Morgado – Architecture Photography
Гостиница Sobreiras – Alentejo Country Hotel © Joao Morgado – Architecture Photography
Гостиница Sobreiras – Alentejo Country Hotel © Joao Morgado – Architecture Photography
Гостиница Sobreiras – Alentejo Country Hotel © Joao Morgado – Architecture Photography
Гостиница Sobreiras – Alentejo Country Hotel © Joao Morgado – Architecture Photography
Гостиница Sobreiras – Alentejo Country Hotel © Joao Morgado – Architecture Photography
Гостиница Sobreiras – Alentejo Country Hotel © Joao Morgado – Architecture Photography
Гостиница Sobreiras – Alentejo Country Hotel © Joao Morgado – Architecture Photography
Гостиница Sobreiras – Alentejo Country Hotel © Joao Morgado – Architecture Photography
Гостиница Sobreiras – Alentejo Country Hotel © Joao Morgado – Architecture Photography
Гостиница Sobreiras – Alentejo Country Hotel © Joao Morgado – Architecture Photography
Гостиница Sobreiras – Alentejo Country Hotel © Joao Morgado – Architecture Photography
Гостиница Sobreiras – Alentejo Country Hotel © Joao Morgado – Architecture Photography
Гостиница Sobreiras – Alentejo Country Hotel © Joao Morgado – Architecture Photography
Гостиница Sobreiras – Alentejo Country Hotel © Joao Morgado – Architecture Photography
Гостиница Sobreiras – Alentejo Country Hotel © Joao Morgado – Architecture Photography
Гостиница Sobreiras – Alentejo Country Hotel © Joao Morgado – Architecture Photography
Гостиница Sobreiras – Alentejo Country Hotel © Joao Morgado – Architecture Photography
Гостиница Sobreiras – Alentejo Country Hotel © Joao Morgado – Architecture Photography
Гостиница Sobreiras – Alentejo Country Hotel © Joao Morgado – Architecture Photography
Гостиница Sobreiras – Alentejo Country Hotel © Joao Morgado – Architecture Photography
Гостиница Sobreiras – Alentejo Country Hotel © Joao Morgado – Architecture Photography
Гостиница Sobreiras – Alentejo Country Hotel © Joao Morgado – Architecture Photography
Гостиница Sobreiras – Alentejo Country Hotel © Joao Morgado – Architecture Photography
Гостиница Sobreiras – Alentejo Country Hotel © Joao Morgado – Architecture Photography
Гостиница Sobreiras – Alentejo Country Hotel © Joao Morgado – Architecture Photography
Гостиница Sobreiras – Alentejo Country Hotel © Joao Morgado – Architecture Photography
Гостиница Sobreiras – Alentejo Country Hotel © Joao Morgado – Architecture Photography
Гостиница Sobreiras – Alentejo Country Hotel © Joao Morgado – Architecture Photography
Гостиница Sobreiras – Alentejo Country Hotel © Joao Morgado – Architecture Photography
Гостиница Sobreiras – Alentejo Country Hotel © Joao Morgado – Architecture Photography
Гостиница Sobreiras – Alentejo Country Hotel © Joao Morgado – Architecture Photography
Гостиница Sobreiras – Alentejo Country Hotel © Joao Morgado – Architecture Photography
Гостиница Sobreiras – Alentejo Country Hotel © Joao Morgado – Architecture Photography
Гостиница Sobreiras – Alentejo Country Hotel © Joao Morgado – Architecture Photography
Гостиница Sobreiras – Alentejo Country Hotel © Joao Morgado – Architecture Photography
Гостиница Sobreiras – Alentejo Country Hotel © Joao Morgado – Architecture Photography
Гостиница Sobreiras – Alentejo Country Hotel © Joao Morgado – Architecture Photography
Гостиница Sobreiras – Alentejo Country Hotel © Joao Morgado – Architecture Photography
Гостиница Sobreiras – Alentejo Country Hotel © Joao Morgado – Architecture Photography
Гостиница Sobreiras – Alentejo Country Hotel © Joao Morgado – Architecture Photography
Гостиница Sobreiras – Alentejo Country Hotel © Joao Morgado – Architecture Photography
Гостиница Sobreiras – Alentejo Country Hotel © Joao Morgado – Architecture Photography
Гостиница Sobreiras – Alentejo Country Hotel © Joao Morgado – Architecture Photography
Гостиница Sobreiras – Alentejo Country Hotel © Joao Morgado – Architecture Photography
Гостиница Sobreiras – Alentejo Country Hotel © Joao Morgado – Architecture Photography
Гостиница Sobreiras – Alentejo Country Hotel © Joao Morgado – Architecture Photography
Гостиница Sobreiras – Alentejo Country Hotel © Joao Morgado – Architecture Photography
Гостиница Sobreiras – Alentejo Country Hotel © Joao Morgado – Architecture Photography
Гостиница Sobreiras – Alentejo Country Hotel © Joao Morgado – Architecture Photography
Гостиница Sobreiras – Alentejo Country Hotel © Joao Morgado – Architecture Photography
Гостиница Sobreiras – Alentejo Country Hotel © Joao Morgado – Architecture Photography
Гостиница Sobreiras – Alentejo Country Hotel © Joao Morgado – Architecture Photography
Гостиница Sobreiras – Alentejo Country Hotel © Joao Morgado – Architecture Photography
Гостиница Sobreiras – Alentejo Country Hotel © Joao Morgado – Architecture Photography
Гостиница Sobreiras – Alentejo Country Hotel © Joao Morgado – Architecture Photography
Гостиница Sobreiras – Alentejo Country Hotel © Joao Morgado – Architecture Photography
Гостиница Sobreiras – Alentejo Country Hotel © Joao Morgado – Architecture Photography
Гостиница Sobreiras – Alentejo Country Hotel © Joao Morgado – Architecture Photography
Гостиница Sobreiras – Alentejo Country Hotel © Joao Morgado – Architecture Photography
Гостиница Sobreiras – Alentejo Country Hotel © Joao Morgado – Architecture Photography
Гостиница Sobreiras – Alentejo Country Hotel © FAT Future Architecture Thinking
Гостиница Sobreiras – Alentejo Country Hotel © FAT Future Architecture Thinking
Гостиница Sobreiras – Alentejo Country Hotel © FAT Future Architecture Thinking
Гостиница Sobreiras – Alentejo Country Hotel © FAT Future Architecture Thinking
Гостиница Sobreiras – Alentejo Country Hotel © FAT Future Architecture Thinking
Гостиница Sobreiras – Alentejo Country Hotel © FAT Future Architecture Thinking
Гостиница Sobreiras – Alentejo Country Hotel © FAT Future Architecture Thinking
Гостиница Sobreiras – Alentejo Country Hotel © FAT Future Architecture Thinking
Гостиница Sobreiras – Alentejo Country Hotel © FAT Future Architecture Thinking
Гостиница Sobreiras – Alentejo Country Hotel © FAT Future Architecture Thinking
Гостиница Sobreiras – Alentejo Country Hotel © FAT Future Architecture Thinking
Гостиница Sobreiras – Alentejo Country Hotel © FAT Future Architecture Thinking
Гостиница Sobreiras – Alentejo Country Hotel © FAT Future Architecture Thinking
Гостиница Sobreiras – Alentejo Country Hotel © FAT Future Architecture Thinking
Гостиница Sobreiras – Alentejo Country Hotel © FAT Future Architecture Thinking
Гостиница Sobreiras – Alentejo Country Hotel © FAT Future Architecture Thinking
Гостиница Sobreiras – Alentejo Country Hotel © FAT Future Architecture Thinking
Гостиница Sobreiras – Alentejo Country Hotel © FAT Future Architecture Thinking
Гостиница Sobreiras – Alentejo Country Hotel © FAT Future Architecture Thinking
Гостиница Sobreiras – Alentejo Country Hotel © FAT Future Architecture Thinking
Гостиница Sobreiras – Alentejo Country Hotel © FAT Future Architecture Thinking
Гостиница Sobreiras – Alentejo Country Hotel © FAT Future Architecture Thinking