Размещено на портале Архи.ру (www.archi.ru)

28.04.2016

С высоты полёта

Лилия Аронова
Объект:
Многофункциональный жилой комплекс в 5-ом Донском проезде
Адрес:
Россия, Москва. 5-й Донской проезд, вл. 21, корп. 6
Мастерская:
Архитектурная мастерская «Группа АБВ»
Авторский коллектив:
Главный архитектор проекта: Бирюков Н.Ю.
Архитекторы: Логинов И.В., Назаров О.В., Сарвина И.В., Садовский Д.Е., Ерохин М.Е., Дружинина Т.В., Смирных А.
Визуализаторы: Корсаков И.С., Марайкин Ю.В., Белай С.В.

Для непростого участка в Южном округе столицы Никита Бирюков спроектировал комплекс из четырёх почти нью-йоркских небоскребов, но с учётом московских реалий.

Многофункциональный жилой комплекс в 5-ом Донском проезде. 4 башни. Вариант 1. Проект, 2015 © Архитектурная мастерская «Группа АБВ»
Многофункциональный жилой комплекс в 5-ом Донском проезде. 4 башни. Вариант 1. Проект, 2015 © Архитектурная мастерская «Группа АБВ»

Проект четырёх жилых небоскрёбов, сравнимых по высоте с башнями Москва-Сити, создан архитекторами бюро «Группа АБВ» под руководством Никиты Бирюкова по заказу компании «Нордстар девелопмент» для территории между ТТК и Канатчиковским проездом в Донском районе. Участок не имеет никаких высотных ограничений, так что рост зданий мог быть любым. Зато достаточно жесткими были пожелания девелопера относительно квартирографии: прежде всего, требовалось рассчитать наилучшие виды из квартир, поразить будущих жильцов панорамами города, поскольку ближайшее окружение домов живописным не назовёшь.

На трапециевидном участке площадью около 5 гектаров, объединившем владения 21 и 22, корпус 6 по Пятому Донскому проезду, при прежнем московском правительстве предполагалось построить магазины и гостиницы, но затем функцию сменили на жилую, рассудив, что ещё один ТЦ осложнит «и без того непростую» транспортную ситуацию в данной части ТТК. Несколько малоэтажек, стоящих на участке сейчас, расселят и снесут, но вокруг никакой красоты не предполагается: совсем рядом огромная территория ТЭЦ, промзона, железнодорожные склады – остается, как говорит Никита Бирюков, «продавать виды». Для оптимального зонирования панорам проектировщики даже арендовали беспилотник, чтобы наилучшим образом учесть картину при взгляде с птичьего полета; так что вид на ТЭЦ из окон небоскребов минимизирован настолько, насколько это возможно.
Многофункциональный жилой комплекс в 5-ом Донском проезде. 4 башни. Вид с ТТК. Проект, 2015 © Архитектурная мастерская «Группа АБВ»
Многофункциональный жилой комплекс в 5-ом Донском проезде. 4 башни. Вид с ТТК. Проект, 2015 © Архитектурная мастерская «Группа АБВ»
Многофункциональный жилой комплекс в 5-ом Донском проезде. 4 башни. Вид со стороны больницы. Проект, 2015 © Архитектурная мастерская «Группа АБВ»
Многофункциональный жилой комплекс в 5-ом Донском проезде. 4 башни. Вид со стороны больницы. Проект, 2015 © Архитектурная мастерская «Группа АБВ»
Многофункциональный жилой комплекс в 5-ом Донском проезде. 4 башни. Вид с ТЭЦ. Проект, 2015 © Архитектурная мастерская «Группа АБВ»
Многофункциональный жилой комплекс в 5-ом Донском проезде. 4 башни. Вид с ТЭЦ. Проект, 2015 © Архитектурная мастерская «Группа АБВ»

Источником вдохновения для авторов проекта стал сверхвысокий небоскреб под названием 432 Park Avenue, возведение которого только что завершилось на Манхэттене. В качестве «идеальной модели» Никите Бирюкову его предложил заказчик, но архитектор ничего не имел против: он искренне восхищается безупречной формой 426-метровой башни Рафаэля Виньоли, которую сам автор с гордостью называет «архитектурным глотком свежего воздуха на фоне разухабистых манхэттенских небоскребов». Если квадрат – самая чистая из геометрических форм, то проект Виньоли, скажем так, возводит его в куб: по периметру каждого из квадратных в плане этажей расположено двадцать четыре квадратных окна размером 3х3 метра, открывающих захватывающие дух панорамы Нью-Йорка.

Конечно, с точки зрения амбициозности архитекторы «АБВ» не планировали ориентироваться на самый высотный кондоминиум Восточного полушария: если 432 Park Avenue с его баснословно дорогими квартирами ещё до окончания строительства стал символом поистине заоблачной роскоши, то комплекс на Пятом Донском проектировался в условиях не самой простой финансовой ситуации, и экономические критерии играли определяющую роль. Так что о каких-либо усложнениях формы речь не шла также и по экономическим причинам, что, впрочем, вполне соответствует эстетическому кредо Никиты Бирюкова, предпочитающего архитектуру чистую, без «попсы».
Многофункциональный жилой комплекс в 5-ом Донском проезде. 4 башни. Разрез. Проект, 2015 © Архитектурная мастерская «Группа АБВ»
Многофункциональный жилой комплекс в 5-ом Донском проезде. 4 башни. Разрез. Проект, 2015 © Архитектурная мастерская «Группа АБВ»

За время работы в мастерской было сделано около восемнадцати вариантов проекта, в результате – в полном согласии с заказчиком – остановились на комплексе из четырех башен, две по 58 этажей и две по 74. Кроме этажности, корпуса ничем друг от друга не отличаются: такая унификация также была одним из изначальных условий. Прямоугольные в плане башни расположены по периметру территории перпендикулярно ТЭЦ и Третьему кольцу (опять же для оптимизации видовых характеристик), обрамляя внутренний двор. Стилобат в привычном нам виде – двухэтажный объем, отданный под ритейл, – присутствует только со стороны ТТК и служит буфером, ограждающим придомовую территорию от шума и пыли автомагистрали. Далее, по направлению к центру комплекса, за счёт разницы высот он уходит в уровень земли. В подземной части предполагается разместить всё необходимое для функционирования домов-гигантов: двухуровневую автостоянку, технические и подсобные помещения, а также спа-комплекс и медицинский центр. Отдельно, во дворе, запланировано строительство детского сада.
Многофункциональный жилой комплекс в 5-ом Донском проезде. 4 башни. Генеральный план. Проект, 2015 © Архитектурная мастерская «Группа АБВ»
Многофункциональный жилой комплекс в 5-ом Донском проезде. 4 башни. Генеральный план. Проект, 2015 © Архитектурная мастерская «Группа АБВ»
Многофункциональный жилой комплекс в 5-ом Донском проезде. 4 башни. Вариант 2. Проект, 2015 © Архитектурная мастерская «Группа АБВ»
Многофункциональный жилой комплекс в 5-ом Донском проезде. 4 башни. Вариант 2. Проект, 2015 © Архитектурная мастерская «Группа АБВ»
Многофункциональный жилой комплекс в 5-ом Донском проезде. 4 башни. Вариант 2. Проект, 2015 © Архитектурная мастерская «Группа АБВ»
Многофункциональный жилой комплекс в 5-ом Донском проезде. 4 башни. Вариант 2. Проект, 2015 © Архитектурная мастерская «Группа АБВ»
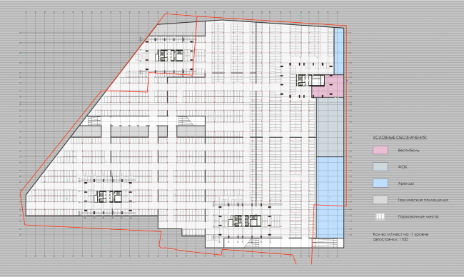
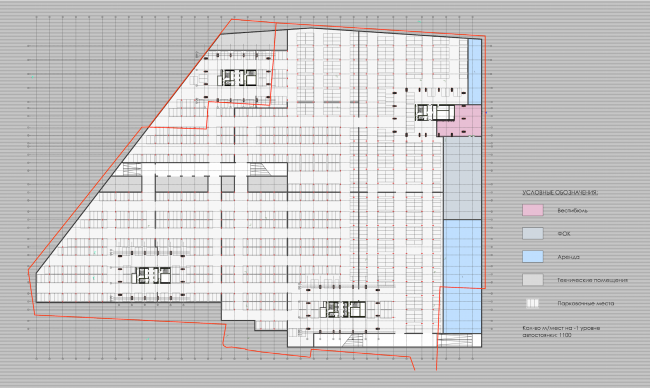
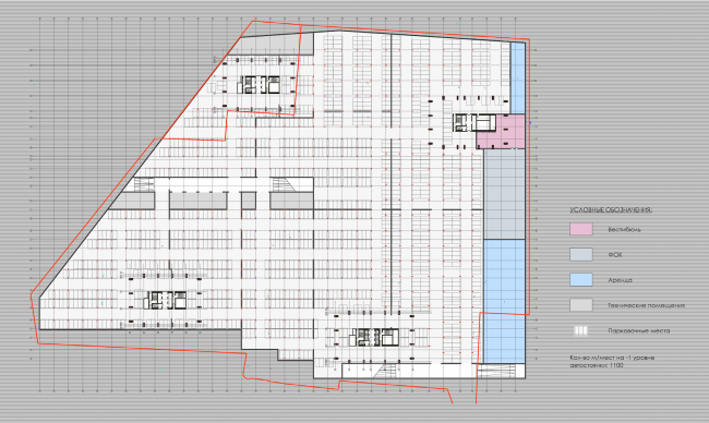
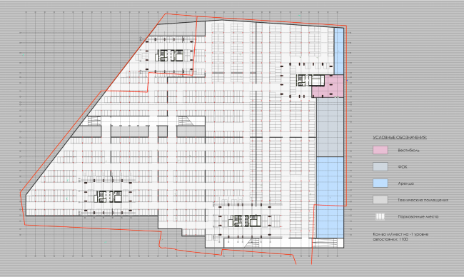
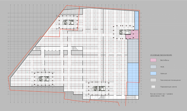
Многофункциональный жилой комплекс в 5-ом Донском проезде. План -1 этажа. Проект, 2015 © Архитектурная мастерская «Группа АБВ»
Многофункциональный жилой комплекс в 5-ом Донском проезде. План -1 этажа. Проект, 2015 © Архитектурная мастерская «Группа АБВ»

Пластическое решение башен достаточно лаконично. Силуэт возносящегося в небо правильного параллелепипеда (высота 58-этажных корпусов достигает 217 м, 74-этажных – 273 м) отступает от линии вертикали лишь дважды – расширяется на уровне пятых этажей, образуя чуть заметную в масштабе здания консоль, и ступенчато сужается ближе к вершине, причем с двух сторон ступенька располагается на разной высоте. Такое решение, почти не усложняя форму, визуально облегчает верхушку небоскреба, делая её достаточно выразительной без добавления лишних архитектурных деталей. По словам Никиты Бирюкова, «главным в данном проекте был план, он определил контур здания, а фасады уже носили вторичный характер». Тем не менее в решении фасадов, для отделки которых предполагается использовать облицовочный камень и декоративные композитные панели, пристрастие авторов к чистой форме воплотилось в полной мере. Сочетание стекла и панелей светлых и очень светлых тонов, безупречная геометрия прямоугольных оконных проемов, собранных в горизонтальные группы по бокам фасада и вертикальные на торцах, вытянутые вверх витражи первых этажей – все это придает объемам легкость, подчеркивая стремление башен в небо. Что же касается более «земных» задач – в частности, организации просторного внутреннего двора, – то «Группа АБВ» и здесь осталась верна себе, запланировав комфортное, но лаконичное пространство с подчеркнуто геометричным зонированием. Двор открыт со всех сторон, кроме, как уже говорилось выше, прилегающей к Третьему кольцу: как говорит Никита Бирюков, архитекторы не хотели «делать крепость».
Многофункциональный жилой комплекс в 5-ом Донском проезде. 4 башни. Вариант 3. Проект, 2015  © Архитектурная мастерская «Группа АБВ»
Многофункциональный жилой комплекс в 5-ом Донском проезде. 4 башни. Вариант 3. Проект, 2015 © Архитектурная мастерская «Группа АБВ»
Многофункциональный жилой комплекс в 5-ом Донском проезде. 4 башни. Вариант 3. Проект, 2015 © Архитектурная мастерская «Группа АБВ»
Многофункциональный жилой комплекс в 5-ом Донском проезде. 4 башни. Вариант 3. Проект, 2015 © Архитектурная мастерская «Группа АБВ»
Многофункциональный жилой комплекс в 5-ом Донском проезде. Благоустройсто. Проект, 2015 © Архитектурная мастерская «Группа АБВ»
Многофункциональный жилой комплекс в 5-ом Донском проезде. Благоустройсто. Проект, 2015 © Архитектурная мастерская «Группа АБВ»
Многофункциональный жилой комплекс в 5-ом Донском проезде. Благоустройсто. Проект, 2015 © Архитектурная мастерская «Группа АБВ»
Многофункциональный жилой комплекс в 5-ом Донском проезде. Благоустройсто. Проект, 2015 © Архитектурная мастерская «Группа АБВ»
Многофункциональный жилой комплекс в 5-ом Донском проезде. Интерьер. Проект, 2015 © Архитектурная мастерская «Группа АБВ»
Многофункциональный жилой комплекс в 5-ом Донском проезде. Интерьер. Проект, 2015 © Архитектурная мастерская «Группа АБВ»
Многофункциональный жилой комплекс в 5-ом Донском проезде. Интерьер. Проект, 2015 © Архитектурная мастерская «Группа АБВ»
Многофункциональный жилой комплекс в 5-ом Донском проезде. Интерьер. Проект, 2015 © Архитектурная мастерская «Группа АБВ»
Многофункциональный жилой комплекс в 5-ом Донском проезде. План типового этажа. Проект, 2015 © Архитектурная мастерская «Группа АБВ»
Многофункциональный жилой комплекс в 5-ом Донском проезде. План типового этажа. Проект, 2015 © Архитектурная мастерская «Группа АБВ»

Если взглянуть на проект с высоты птичьего полета, к примеру, глазами арендованного архитекторами дрона, то можно проследить, как элегантные башни Никиты Бирюкова вступают в диалог с не так уж и далеко расположенными небоскребами Сити, как теряются в их тени окрестные многоэтажки, как пристыженно жмутся к земле широкие трубы ТЭЦ (которых, кстати, тоже четыре). Несмотря на множество уже проведённых авторами промежуточных согласований с заказчиком, проект «Группы АБВ» реализован не будет. «Ну что ж, – пожимает плечами Никита Бирюков, – мы, конечно, не Иван Леонидов с его высоткой Наркомтяжпрома на Красной площади, но теперь свой непостроенный небоскреб будет и у нас!»
 
Многофункциональный жилой комплекс в 5-ом Донском проезде. 4 башни. Вид с площади Гагарина. Проект, 2015 © Архитектурная мастерская «Группа АБВ»
Многофункциональный жилой комплекс в 5-ом Донском проезде. 4 башни. Вид с площади Гагарина. Проект, 2015 © Архитектурная мастерская «Группа АБВ»
Многофункциональный жилой комплекс в 5-ом Донском проезде. Благоустройсто. Проект, 2015 © Архитектурная мастерская «Группа АБВ»
Многофункциональный жилой комплекс в 5-ом Донском проезде. Благоустройсто. Проект, 2015 © Архитектурная мастерская «Группа АБВ»
Многофункциональный жилой комплекс в 5-ом Донском проезде. Благоустройсто. Проект, 2015 © Архитектурная мастерская «Группа АБВ»
Многофункциональный жилой комплекс в 5-ом Донском проезде. Благоустройсто. Проект, 2015 © Архитектурная мастерская «Группа АБВ»
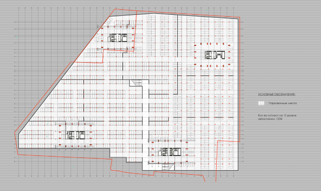
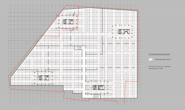
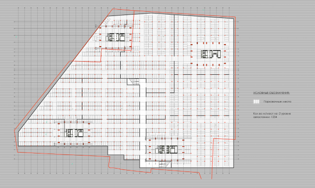
Многофункциональный жилой комплекс в 5-ом Донском проезде. План -2 этажа. Проект, 2015 © Архитектурная мастерская «Группа АБВ»
Многофункциональный жилой комплекс в 5-ом Донском проезде. План -2 этажа. Проект, 2015 © Архитектурная мастерская «Группа АБВ»