Размещено на портале Архи.ру (www.archi.ru)

22.01.2016

На стыке геометрии и ландшафта

Лилия Аронова
Объект:
Архитектурно-планировочная концепция жилой застройки в Кирове
Адрес:
Россия, Киров. Ленинский район, н.п. Пересторонцы
Мастерская:
Архстройдизайн АСД
Авторский коллектив:
А.А. Иванов, Е. Филатова, М. Селезнева

«Главной сценой» нового микрорайона, спланированного Алексеем Ивановым на окраине Кирова, станет природный парк – он же многофункциональный культурно-развлекательный центр.

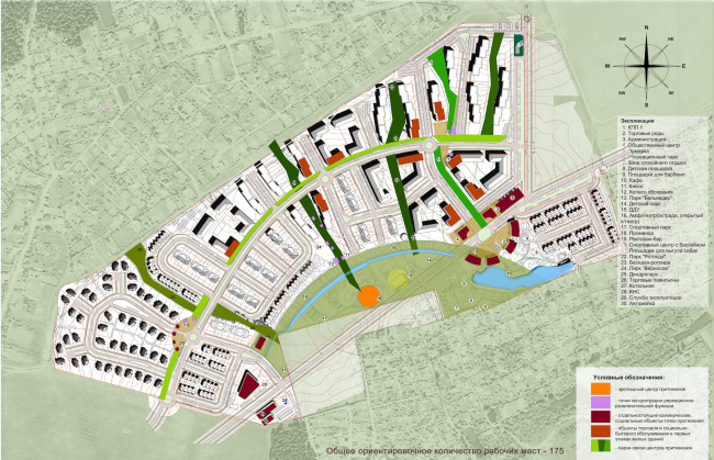
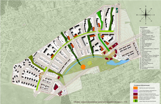
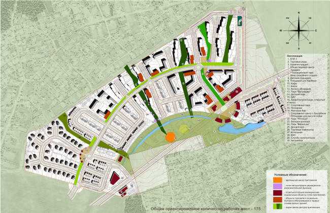
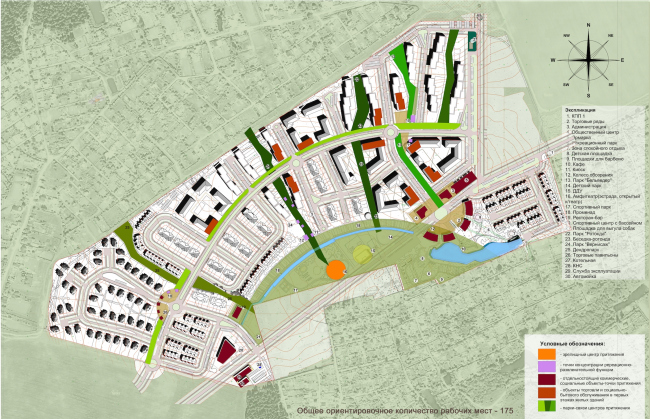
Архитектурно-планировочная концепция жилой застройки в Кирове. Генеральный план. Проект, 2015 © Архстройдизайн
Архитектурно-планировочная концепция жилой застройки в Кирове. Генеральный план. Проект, 2015 © Архстройдизайн

В российских регионах мастерская «Архстройдизайн» работает много и успешно. В Кирове – одна из самых интересных программ, в разработке сейчас несколько проектов, а поселок ILand в 2014 году получил всероссийскую премию «Лучший поселок бизнес-класса». Когда проверенный партнер – та же компания, что строила ILand – пригласил Алексея Иванова принять участие в закрытом конкурсе на застройку еще одного участка, архитектор хоть и удивился несколько, но к состязанию отнесся со всей серьезностью. И победил.

Территория застройки площадью 43 гектара расположена на западе Кирова, рядом с деревней Пересторонцы (но уже в городской черте). Рельеф здесь плавно понижается к юго-востоку, где находятся небольшой лесок и заболоченный пруд. Еще одна ландшафтная данность – уже спроектированная дорога, частично проходящая через территорию планирования. Алексей Иванов в каждом своем проекте в качестве одной из главных задач ставит максимально эффективное использование существующих условий – иначе говоря, не перебарывает реальность, а заставляет ее работать на себя. Так, транзитная трасса для него не только «зло» (то есть шум, ухудшение экологии и видовых характеристик), но и «добро» – ведь хорошая транспортная доступность для нового района всегда большое достоинство. А недостатки можно минимизировать, например, отгородившись от проездной дороги зеленой зоной с общественно-культурными и спортивными объектами, на которую ляжет почетная функция главного центра социальной активности района. Дополнительную привлекательность парку придаст система прудов, в которую можно преобразовать заболоченный водоем и протекающий тут же ручей.
Архитектурно-планировочная концепция жилой застройки в Кирове. Ситуайионный план. Проект, 2015 © Архстройдизайн
Архитектурно-планировочная концепция жилой застройки в Кирове. Ситуайионный план. Проект, 2015 © Архстройдизайн
Архитектурно-планировочная концепция жилой застройки в Кирове. Анализ положительных и отрицательных характеристик участка. Проект, 2015 © Архстройдизайн
Архитектурно-планировочная концепция жилой застройки в Кирове. Анализ положительных и отрицательных характеристик участка. Проект, 2015 © Архстройдизайн
Архитектурно-планировочная концепция жилой застройки в Кирове. Концептуальное предложение по развитию территории. Проект, 2015 © Архстройдизайн
Архитектурно-планировочная концепция жилой застройки в Кирове. Концептуальное предложение по развитию территории. Проект, 2015 © Архстройдизайн
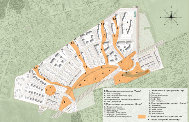
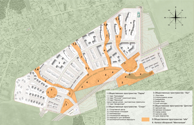
Архитектурно-планировочная концепция жилой застройки в Кирове. Схема общественных пространств. Проект, 2015 © Архстройдизайн
Архитектурно-планировочная концепция жилой застройки в Кирове. Схема общественных пространств. Проект, 2015 © Архстройдизайн
Архитектурно-планировочная концепция жилой застройки в Кирове. Схема зонирования благоустройств и маршрутов. Проект, 2015 © Архстройдизайн
Архитектурно-планировочная концепция жилой застройки в Кирове. Схема зонирования благоустройств и маршрутов. Проект, 2015 © Архстройдизайн

Определившись с социальным «ядром», архитекторы построили планировочную схему района на основе расходящихся от центра зеленых лучей, сочетая начертательную геометрию с естественными линиями ландшафта. Разделенные бульварами и скверами кварталы выстроились в стройную композицию, напоминающие в плане античный амфитеатр. Именно это рабочее название и получил будущий микрорайон.
Архитектурно-планировочная концепция жилой застройки в Кирове. Панорама. Проект, 2015 © Архстройдизайн
Архитектурно-планировочная концепция жилой застройки в Кирове. Панорама. Проект, 2015 © Архстройдизайн

Застройка «Амфитеатра» будет многофункциональной: здесь должны появиться и многоквартирные 3-4-5-этажные дома, и блокированные двусторонние таунхаусы, предусмотрен и участок под индивидуальную застройку. Под многоквартирные дома Алексей Иванов отвел северо-восточную часть территории, чтобы таким образом несколько снивелировать один из недостатков участка – хаотичное окружение, включающее в себя весь спектр окраинной застройки, от шестисоточных «скворечников» до типовых 17-этажек. Последние как раз и возводятся к северо-востоку от «Амфитеатра». Что же касается индивидуальных домов, то они «спрятаны» в западном сегменте. Впрочем, их строительство запланировано лишь на последней стадии освоения участка, и умудренный опытом архитектор совсем не уверен, что к тому времени концепция не поменяется кардинально. «За время долгого строительства покупательский спрос колеблется, идут согласования и пересогласования, вместо индивидуальных домов появляются таунхаусы или многоэтажки, и если эту систему возможных изменений не предугадать, то умрет весь проект», – объясняет Алексей Иванов. Чтобы по возможности избежать этого крайне нежелательного результата, архитектор разделил освоение на фазы, каждая из которых сможет развиваться более или менее независимо от другой, то есть на каждом этапе планирования характер застройки можно будет поменять – без ущерба для общей картины. Даже строительный городок заложен таким образом, чтобы освоение и строительство шли навстречу друг другу и техника не проезжала через кварталы, где уже началось заселение.
Архитектурно-планировочная концепция жилой застройки в Кирове. Эскизы. Проект, 2015 © Архстройдизайн
Архитектурно-планировочная концепция жилой застройки в Кирове. Эскизы. Проект, 2015 © Архстройдизайн
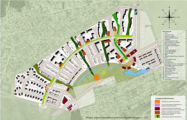
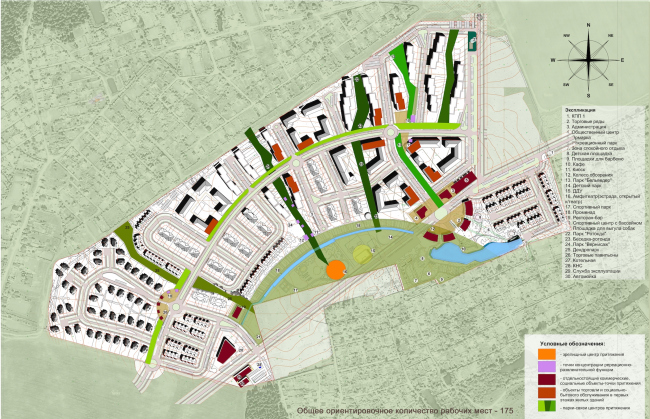
Архитектурно-планировочная концепция жилой застройки в Кирове. Схема функцинального зонирования. Проект, 2015 © Архстройдизайн
Архитектурно-планировочная концепция жилой застройки в Кирове. Схема функцинального зонирования. Проект, 2015 © Архстройдизайн
Архитектурно-планировочная концепция жилой застройки в Кирове. Пример варианта застройки в стиле историзма. Проект, 2015 © Архстройдизайн
Архитектурно-планировочная концепция жилой застройки в Кирове. Пример варианта застройки в стиле историзма. Проект, 2015 © Архстройдизайн
Архитектурно-планировочная концепция жилой застройки в Кирове. Пример варианта застрйоки в стиле модернизма. Проект, 2015 © Архстройдизайн
Архитектурно-планировочная концепция жилой застройки в Кирове. Пример варианта застрйоки в стиле модернизма. Проект, 2015 © Архстройдизайн

Архитекторы позаботились и о том, чтобы на первых жителей «Амфитеатра» не легла неподъемная финансовая нагрузка по обслуживанию парка со всеми его спортивными, детскими и социально-досуговыми объектами: обустройство общественных зон спланировано таким образом, чтобы они вводились в строй в соответствии с заселением жилых кварталов. Кстати, общественные пространства для Алексея Иванова важны не только с точки зрения их социальной функции: он рассматривает их как некий «хребет застройки», особенно по ночам, когда в домах свет гаснет, а площади, парки и бульвары световым пунктиром иллюстрируют замысел архитектора.
Архитектурно-планировочная концепция жилой застройки в Кирове. Визуализация. Проект, 2015 © Архстройдизайн
Архитектурно-планировочная концепция жилой застройки в Кирове. Визуализация. Проект, 2015 © Архстройдизайн
Архитектурно-планировочная концепция жилой застройки в Кирове. Визуализация. Проект, 2015 © Архстройдизайн
Архитектурно-планировочная концепция жилой застройки в Кирове. Визуализация. Проект, 2015 © Архстройдизайн
Архитектурно-планировочная концепция жилой застройки в Кирове. Панорама. Проект, 2015 © Архстройдизайн
Архитектурно-планировочная концепция жилой застройки в Кирове. Панорама. Проект, 2015 © Архстройдизайн

Уже когда проект был практически завершен, выяснилось, что участок земли, клином врезающийся в территорию застройки с восточной стороны, также перешел к заказчику, а значит, появилась возможность включить его в план микрорайона. Алексей Иванов планирует построить на этом участке любопытный квартал, получивший рабочее название «Бастион»: плотный, ориентированный внутрь себя, а по высоте – от 6 до 8 этажей, так что переход к соседним 17-этажкам получится еще более плавным. Интересно, что с идеологической точки зрения этот периферийный и в общем-то небольшой кусочек земли может превратиться в новый «центр тяжести» микрорайона: архитектор сравнивает его с кремлем, а отходящие от него кварталы с домами постепенно понижающейся этажности – с разрастающимися за крепостной стеной посадами.
Архитектурно-планировочная концепция жилой застройки в Кирове. Бельведер. Визуализация. Проект, 2015 © Архстройдизайн
Архитектурно-планировочная концепция жилой застройки в Кирове. Бельведер. Визуализация. Проект, 2015 © Архстройдизайн
Архитектурно-планировочная концепция жилой застройки в Кирове. Схема социально активных центров. Проект, 2015 © Архстройдизайн
Архитектурно-планировочная концепция жилой застройки в Кирове. Схема социально активных центров. Проект, 2015 © Архстройдизайн

Появление нового центра вполне соответствует одному из основных принципов работы «Архстройдизайна» – полицентричной организации застройки, – которого Алексей Иванов последовательно придерживается во всех своих планировочных решениях. В данном проекте тоже предусмотрен целый ряд точек притяжения на пересечениях пешеходных и транспортных маршрутов, причем очень функционально разнообразных, от булочных до досуговых центров. Более того – выстраивая связи, архитекторы не ограничились «подведомственной» территорией, они сочли нужным проследить пешеходные маршруты от планируемого района до главных культурных центров города: Свято-Успенского Трифонова монастыря, ипподрома, центрального кинотеатра... Оказалось, что все это – на расстоянии часовой прогулки, которая при некотором благоустройстве может стать и приятной, и познавательной. Алексей Иванов считает эту работу очень важной: таким образом окраинный район оказывается полноценно включенным в городскую ткань, а город, при минимальных финансовых вложениях, приобретает новое гуманитарное измерение.
Архитектурно-планировочная концепция жилой застройки в Кирове. Схема пешеходных маршрутов. Проект, 2015 © Архстройдизайн
Архитектурно-планировочная концепция жилой застройки в Кирове. Схема пешеходных маршрутов. Проект, 2015 © Архстройдизайн
Архитектурно-планировочная концепция жилой застройки в Кирове. Схема организации движения. Проект, 2015 © Архстройдизайн
Архитектурно-планировочная концепция жилой застройки в Кирове. Схема организации движения. Проект, 2015 © Архстройдизайн
Архитектурно-планировочная концепция жилой застройки в Кирове. Схема организации движения. Сечени 1-1, бульвар. Проект, 2015 © Архстройдизайн
Архитектурно-планировочная концепция жилой застройки в Кирове. Схема организации движения. Сечени 1-1, бульвар. Проект, 2015 © Архстройдизайн
Архитектурно-планировочная концепция жилой застройки в Кирове. Схема организации движения. Сечение 2-2, улица жилой застройки. Проект, 2015 © Архстройдизайн
Архитектурно-планировочная концепция жилой застройки в Кирове. Схема организации движения. Сечение 2-2, улица жилой застройки. Проект, 2015 © Архстройдизайн
Архитектурно-планировочная концепция жилой застройки в Кирове. Схема организации движения. Сечение 3-3, улица с односторонним движением в жилой застройке. Проект, 2015 © Архстройдизайн
Архитектурно-планировочная концепция жилой застройки в Кирове. Схема организации движения. Сечение 3-3, улица с односторонним движением в жилой застройке. Проект, 2015 © Архстройдизайн
Архитектурно-планировочная концепция жилой застройки в Кирове. Пример варианта застройки в стиле историзма. Проект, 2015 © Архстройдизайн
Архитектурно-планировочная концепция жилой застройки в Кирове. Пример варианта застройки в стиле историзма. Проект, 2015 © Архстройдизайн
Архитектурно-планировочная концепция жилой застройки в Кирове. Пример варианта застройки в стиле историзма. План. Проект, 2015 © Архстройдизайн
Архитектурно-планировочная концепция жилой застройки в Кирове. Пример варианта застройки в стиле историзма. План. Проект, 2015 © Архстройдизайн
Архитектурно-планировочная концепция жилой застройки в Кирове. Пример варианта застройки в стиле историзма. План. Проект, 2015 © Архстройдизайн
Архитектурно-планировочная концепция жилой застройки в Кирове. Пример варианта застройки в стиле историзма. План. Проект, 2015 © Архстройдизайн
Архитектурно-планировочная концепция жилой застройки в Кирове. Пример варианта застройки в стиле модернизма. Проект, 2015 © Архстройдизайн
Архитектурно-планировочная концепция жилой застройки в Кирове. Пример варианта застройки в стиле модернизма. Проект, 2015 © Архстройдизайн