Размещено на портале Архи.ру (www.archi.ru)

31.12.2015

Юлий Борисов: «Мы попытались передать силу ядерной энергии с помощью ощущений»

Нина Фролова, Анна Сансиева
Объект:
Павильон Атом на ВДНХ
Адрес:
Россия, Москва. ул. проспект Мира, вл. 119, стр. 19
Архитектор:
Юлий Борисов
Мастерская:
UNK
Авторский коллектив:
Руководитель: Юлий Борисов; ГАП: Михаил Иванченко; директор проекта / ГИП: Ирина Грачева; главный конструктор: Руслан Цогоев; ведущие архитекторы: Ирина Лавриненко, Татьяна Москаленко; архитекторы: Хамзина Гульнара, Ася Давыдова, Иван Смирнов, Павел Култышев
Над проектом работали: Александр Соколов, Мария Ионцева
Интерьерные решения МОП (UNK interiors): руководитель авторского коллектива Юлия Тряскина, Юлия Садовая – ГАП, Илья Смирнов – архитектор.
Генеральный директор: Наталья Якушева.

Юлий Борисов, основатель бюро UNK project, рассказал Архи.ру о своем проекте павильона атомной энергии на ВДНХ в Москве, выбранном для реализации по результатам международного конкурса.

Павильон «Росатома» на ВДНХ
Павильон «Росатома» на ВДНХ
© UNK project

Архи.ру:
– Как шла работа над проектом? Какие факторы на нее повлияли?

Юлий Борисов: 
 При работе над проектом мы столкнулись с двумя проблемами. Первая – градостроительные задачи, основывающиеся на контексте. То есть, с одной стороны, историческое наследие – такое особенное окружение, как ансамбль ВДНХ, с другой – желание клиента, госкорпорации «Росатом», сделать павильон, который будет вызывать восхищение у работников отрасли и у широкой публики. Между ними сразу возник некоторый конфликт.

На первом этапе конкурса мы обратились исключительно к контексту, использовали подход через культурную составляющую. Но быстро выявилась несостоятельность такого подхода, причем это поняли и представители Москомархитектуры, и Всероссийское общество охраны памятников истории и культуры.

Найти решение конфликта стало задачей второго этапа. Мы пошли по пути наших любимых направлений – пуризма и минимализма в трактовке постройки и «арт-жесте», но при этом стремились не упустить смысловую нагрузку проекта.

Мы решили конкурировать с коллегами не на уровне форм, а на уровне идей. Наша команда первой поставила задачу визуализировать область атомной энергетики не через формальные символы, привычные всем нам (атом, атомная бомба), не через архитектурные элементы и архетипы (карнизы соседних павильонов, обтекаемые, «футуристические» формы, символизирующие новаторство ядерной энергетики), а через ощущение – предложить пространство, где посетитель может не столько познать, сколько почувствовать эту энергию, ощутить, что творится внутри атома. В своем проекте мы пытались передать это состояние на чувственном уровне.
Павильон «Росатома» на ВДНХ. Интерьер
Павильон «Росатома» на ВДНХ. Интерьер
© UNK project
Павильон «Росатома» на ВДНХ. Юго-восточный фасад
Павильон «Росатома» на ВДНХ. Юго-восточный фасад
© UNK project

Основываясь на этих принципах, мы разработали архитектурную концепцию, которая создает иллюзорное воздействие на посетителя: огромная консоль повисает над человеком и неясно, как она держится – точно так же, как непонятна человеку внутренняя связь атома и нейтрона. Это не наглядная демонстрация модели атома, а попытка передать силу ядерной энергии с помощью ощущений.

– Что определило архитектурное решение павильона?

– В связи с желанием клиента получить новаторскую постройку, о чем я упоминал, при разработке проекта мы учитывали все особенности, связанные с архитектурой выставочных пространств и павильонов. Мы постарались предложить нашу интерпретацию как ансамбля ВДНХ, так и выставочных пространств вообще.
Павильон «Росатома» на ВДНХ. Визуальный анализ среды
Павильон «Росатома» на ВДНХ. Визуальный анализ среды
© UNK project
Павильон «Росатома» на ВДНХ. Визуальный анализ среды
Павильон «Росатома» на ВДНХ. Визуальный анализ среды
© UNK project

В комплексе ВДНХ есть повторяющиеся приемы, которые мы решили использовать. Первый – это большое количество аркад, которые создают общественные пространства под открытым небом. Этот прием встречается как в самых ранних павильонах ВДНХ, так и в сооружениях 1970-х годов. Это переходные пространства для публики между улицей и самим павильоном: благодаря им, человек не сразу «втягивается» снаружи в закрытый выставочный зал, а попадает туда через еще открытую, но уже оформленную зону.

У нас в проекте под переходное пространство отдана половина территории. Стеклянный треугольник – теплый, это не уличное пространство, но он не служит для основной экспозиции.
Павильон «Росатома» на ВДНХ, проект
Павильон «Росатома» на ВДНХ, проект
© UNK project
Павильон «Росатома» на ВДНХ. Проницаемость
Павильон «Росатома» на ВДНХ. Проницаемость
© UNK project
Павильон «Росатома» на ВДНХ. Раскрытие на площадь
Павильон «Росатома» на ВДНХ. Раскрытие на площадь
© UNK project

Второй прием – высоко поднятая консоль. Это типичный прием для архитектуры выставочных павильонов (взять хотя бы миланский павильон Сергея Чобана или некоторые сооружения ВДНХ), и это достаточно сложная с точки зрения строительных технологий конструкция.

Третий прием заключается в том, что все наши проекты тщательно продуманы не только на уровне общей концепции, но и на уровне деталей – фактура, окна, дверные ручки и т.д. В этом проекте сложная параболическая форма тщательно проработана с точки зрения текстуры и фактуры: особенная, запоминающиеся, она имеет небольшие выступы-ступени, ритм и размер которых сопоставим с оформлением других павильонов ВДНХ. Людям не всегда свойственно воспринимать общую концепцию постройки, чаще они лишь ощущают ее, не осознавая ­– при этом проработка фактуры понятна и заметна всем.
Павильон «Росатома» на ВДНХ. Ресторан
Павильон «Росатома» на ВДНХ. Ресторан
© UNK project

Мы решили, что также важно показать, как рационально мы используем невосполнимый ресурс – земную поверхность: на кровле мы обустроили зеленую общественную территорию и кафе. В летний период там будут проводиться лекции и другие мероприятия. Идея использование кровли под озеленение отлично накладывается на принципы «зеленой» энергии «Росатома» и экономного строительства.
Павильон «Росатома» на ВДНХ. Эксплуатируемая кровля
Павильон «Росатома» на ВДНХ. Эксплуатируемая кровля
© UNK project

Интересно, что в процессе эволюции проекта, подготавливая бесчисленное множество вариантов, мы рассмотрели практически все идеи, которые мы в финале увидели у наших коллег (за исключением, пожалуй, концепции Евгения Герасимова). Летающие тарелки, формы атомов – мы перебрали все эти варианты, колоссальное количество версий, но в итоге продвинулись в своем проекте чуть дальше.

– Сложно ли будет реализовать ваш проект – особенно в условиях кризиса?

– Да, конечно, не стоит скрывать, что это очень сложный проект. Я бы назвал его вызовом, он занимает высокие позиции по сложности инженерных задач и аспектов строительства не только с отечественной, но и с международной точки зрения. Но наш заказчик, «Росатом» – все-таки одна из крупнейших российских госкорпораций, у него есть достаточные для реализации этого проекта ресурсы. Хотя должен отметить, что больше всего проблем предстоит решить в инженерии и проектировании, здесь не столь много уникальных материалов, сколь вопросов, связанных с их совмещением.

В свою очередь, клиент хочет использовать павильон как для выставок, ориентированных на широкую публику и своих сотрудников, так и для собственных бизнес-задач: проводить там презентации, приглашать значительных людей со всего мира для продажи им услуг и продуктов. Такое пространство должно просуществовать минимум 20–30 лет. Поэтому фраза «мы не настолько богаты, чтобы покупать дешевые вещи» очень хорошо описывает наш павильон. Ведь он будет нужен заказчику длительное время: в отличие от многих других способов производства энергии, атомная энергетика сейчас активно развивается и будет существовать еще очень долго.
Павильон «Росатома» на ВДНХ. Интерьер. Экспозиция
Павильон «Росатома» на ВДНХ. Интерьер. Экспозиция
© UNK project
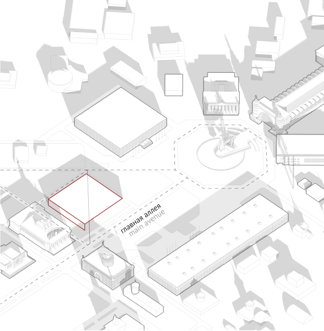
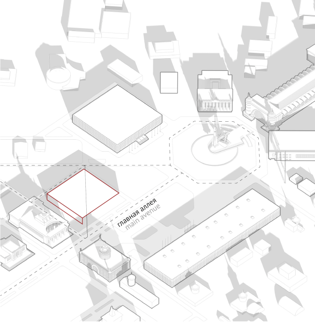
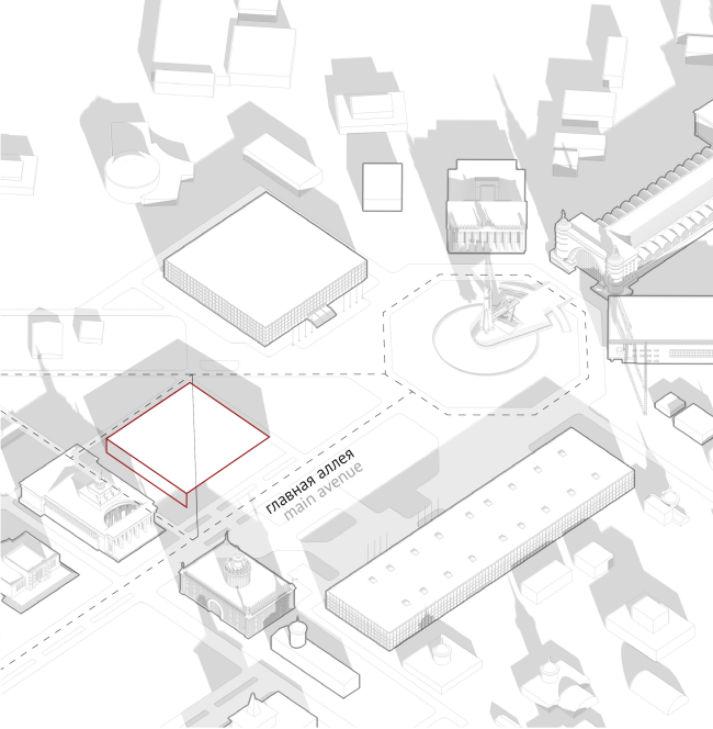
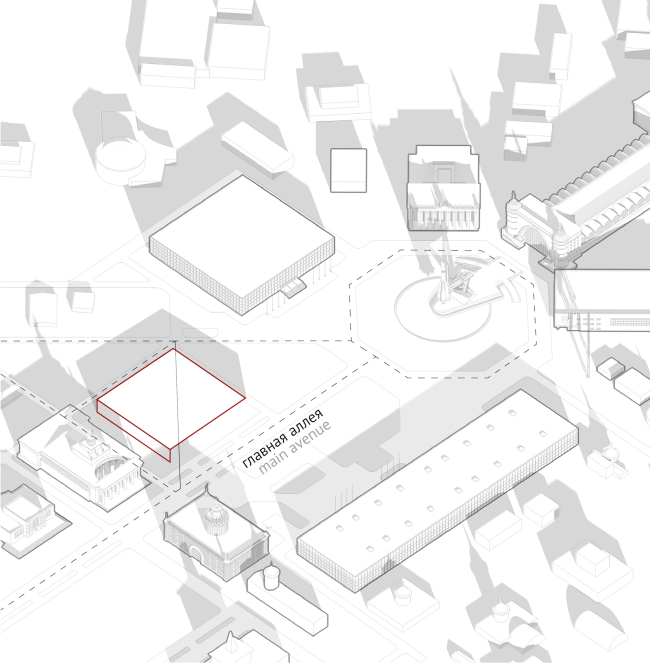
Павильон «Росатома» на ВДНХ. Генеральный план
Павильон «Росатома» на ВДНХ. Генеральный план
© UNK project
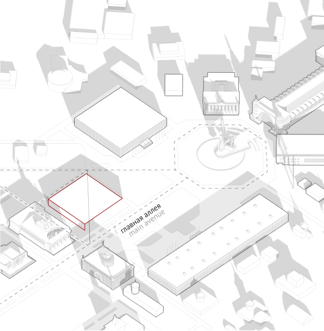
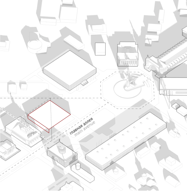
Павильон «Росатома» на ВДНХ. Площадь застройки
Павильон «Росатома» на ВДНХ. Площадь застройки
© UNK project
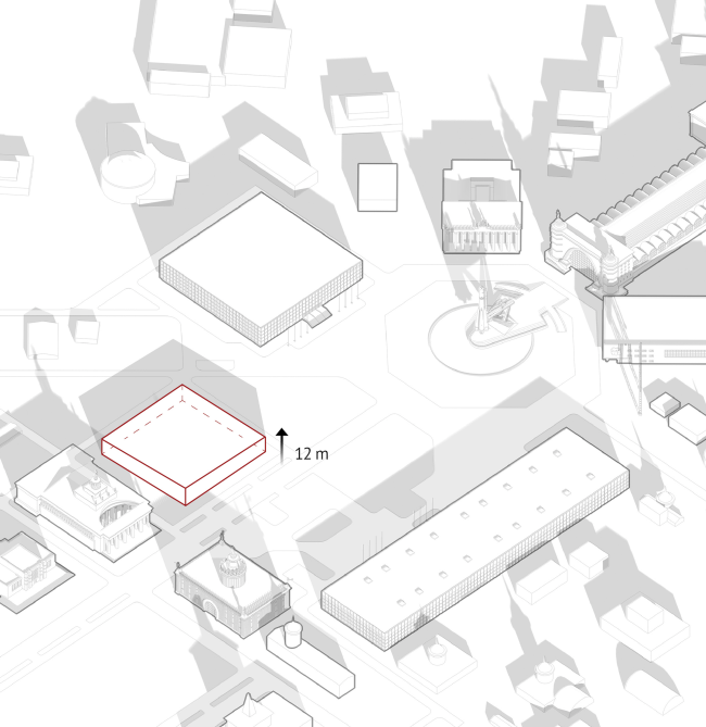
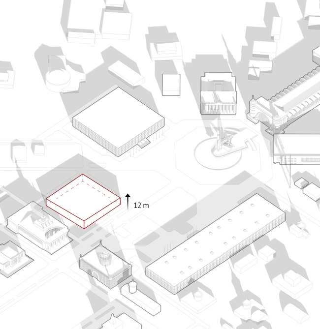
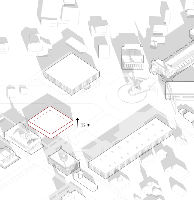
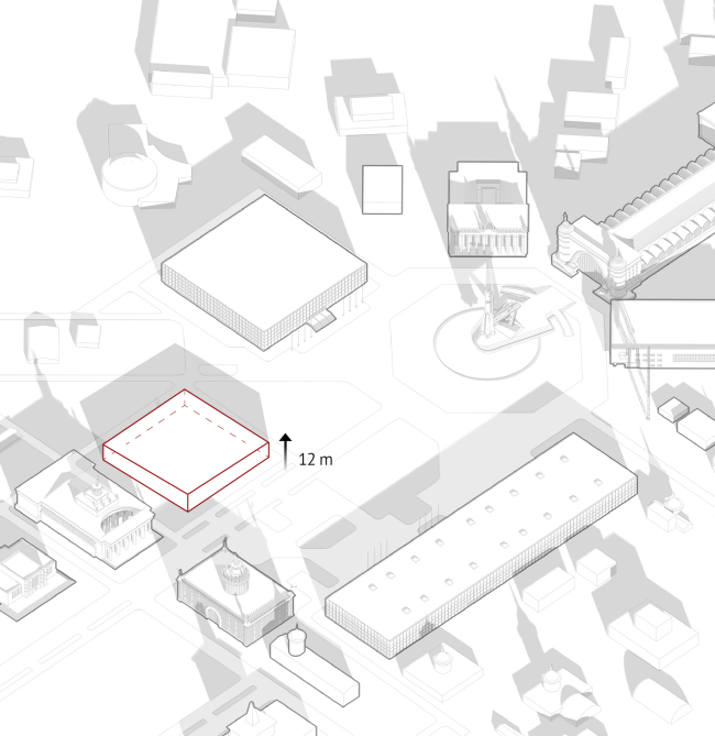
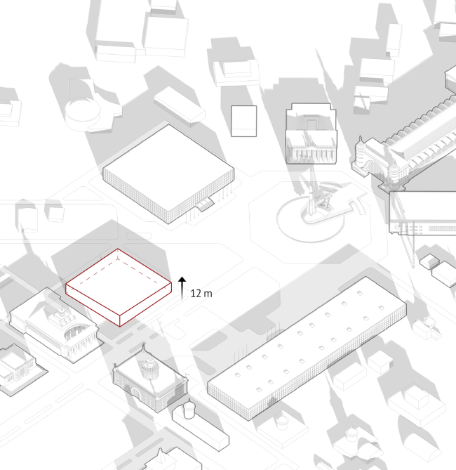
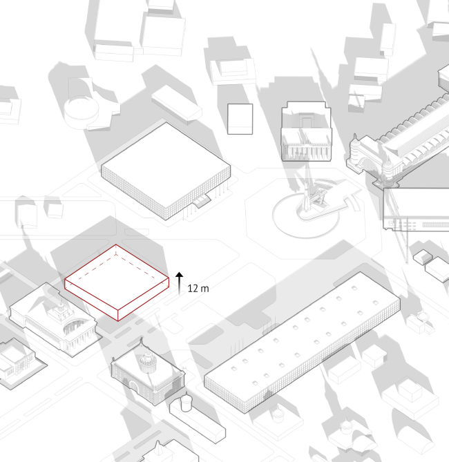
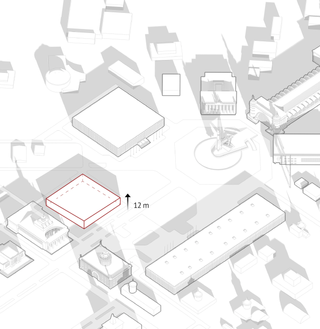
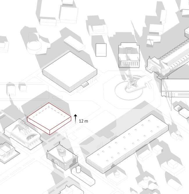
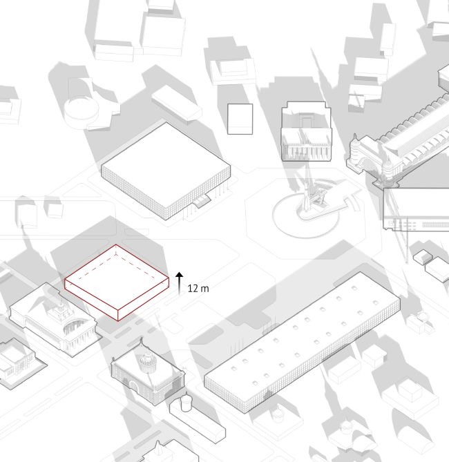
Павильон «Росатома» на ВДНХ. Высотные габариты
Павильон «Росатома» на ВДНХ. Высотные габариты
© UNK project
Павильон «Росатома» на ВДНХ. Юго-восточный фасад
Павильон «Росатома» на ВДНХ. Юго-восточный фасад
© UNK project
Павильон «Росатома» на ВДНХ. Северо-западный фасад
Павильон «Росатома» на ВДНХ. Северо-западный фасад
© UNK project
Павильон «Росатома» на ВДНХ. Разрез
Павильон «Росатома» на ВДНХ. Разрез
© UNK project