Размещено на портале Архи.ру (www.archi.ru)

29.12.2015

Учебный городок в Лилле

Павел Олигорский
Объект:
Коллеж, спортивный зал и культурный центр в Лилле
Адрес:
Франция, None, Лилль.
Мастерская:
ChartierDalix

Комплекс из коллежа, интерната и спорткомплекса для людей с особыми потребностями по проекту бюро Chartier Dalix на севере Франции.

Коллеж, спортивный зал и культурный центр в Лилле © Takuji Shimmura
Коллеж, спортивный зал и культурный центр в Лилле © Takuji Shimmura

Многофункциональный образовательный комплекс общей площадью 13 853 м2 построен на юге Лилля, в районе Мулен. Здесь располагаются коллеж на 500 школьников (в коллежах учатся дети 11–15 лет, во Франции это средняя школа «первой ступени»), интернат на 100 мест, спортивный комплекс с залом для инвалидов-колясочников и культурный центр (танцевальные студии, концертный зал и пр.).
 
Коллеж, спортивный зал и культурный центр в Лилле © Takuji Shimmura
Коллеж, спортивный зал и культурный центр в Лилле © Takuji Shimmura

Коллеж находится на границе исторического центра Лилля. Комплекс зданий расположен буквой П вокруг внутреннего двора трапециевидной формы, который ориентирован на юг. Южная часть комплекса замкнута одноэтажным коридором-перемычкой; она граничит с эстакадой наземного метрополитена и крупной транспортной артерией – бульваром Альзас.
 
Коллеж, спортивный зал и культурный центр в Лилле © Takuji Shimmura
Коллеж, спортивный зал и культурный центр в Лилле © Takuji Shimmura

Первый этаж предназначен для пешеходов: огромный внутренний двор наполнен зеленью, часть второго этажа приподнята на колоннах, что создает дополнительное пространство под ним. Кроме того, фасад первого этажа и внутреннего двора обильно застеклен. Максимум света и пространства – в общем, все, что нужно для усердной и здоровой учебы. Кроме этого, эта открытость на уровне земли создает привлекательный образ здания у спешащих мимо горожан.
 
Коллеж, спортивный зал и культурный центр в Лилле © Takuji Shimmura
Коллеж, спортивный зал и культурный центр в Лилле © Takuji Shimmura

Минимализм в дизайне интерьера выразился в форме необработанных бетонных стен и нанесенных прямо на них указателей и надписей. Они выполнены желтым цветом, что на фоне серого бетона создает неожиданное для школы сходство с брутальным пешеходным переходом или подземной парковкой, однако любовь европейских архитекторов к подобным эффектам давно известна.
 
Коллеж, спортивный зал и культурный центр в Лилле © Takuji Shimmura
Коллеж, спортивный зал и культурный центр в Лилле © Takuji Shimmura

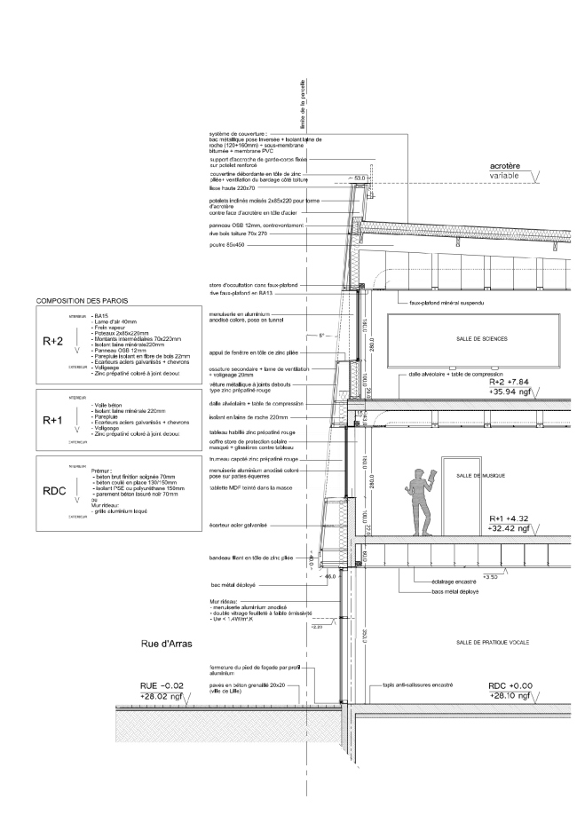
Двор окружен по периметру «балконом» второго этажа: здесь устроен мини-парк с кустарниками и цветами, где, правда, прогуливаться нельзя – можно только наслаждаться видами из окон. Крыша покрыта патинированным цинком: именно он определяет облик здания при взгляде издалека, вписывая его в городскую среду.
 
Коллеж, спортивный зал и культурный центр в Лилле © Takuji Shimmura
Коллеж, спортивный зал и культурный центр в Лилле © Takuji Shimmura

На втором-третьем «рельефных» этажах размещаются классы коллежа и интернат. Спортивный зал занимает отдельный блок высотой в три этажа в восточной части комплекса и не отличается от остальных помещений: те же бетон и желтый цвет, единственная разница – часть стен облицована панелями, а деревянные перекрытия и цинковая крыша открыты в интерьер.
Коллеж, спортивный зал и культурный центр в Лилле © Takuji Shimmura
Коллеж, спортивный зал и культурный центр в Лилле © Takuji Shimmura
Коллеж, спортивный зал и культурный центр в Лилле © Takuji Shimmura
Коллеж, спортивный зал и культурный центр в Лилле © Takuji Shimmura
Коллеж, спортивный зал и культурный центр в Лилле © Takuji Shimmura
Коллеж, спортивный зал и культурный центр в Лилле © Takuji Shimmura
Коллеж, спортивный зал и культурный центр в Лилле © Takuji Shimmura
Коллеж, спортивный зал и культурный центр в Лилле © Takuji Shimmura
Коллеж, спортивный зал и культурный центр в Лилле © Takuji Shimmura
Коллеж, спортивный зал и культурный центр в Лилле © Takuji Shimmura
Коллеж, спортивный зал и культурный центр в Лилле © Takuji Shimmura
Коллеж, спортивный зал и культурный центр в Лилле © Takuji Shimmura
Коллеж, спортивный зал и культурный центр в Лилле © Takuji Shimmura
Коллеж, спортивный зал и культурный центр в Лилле © Takuji Shimmura
Коллеж, спортивный зал и культурный центр в Лилле © Takuji Shimmura
Коллеж, спортивный зал и культурный центр в Лилле © Takuji Shimmura
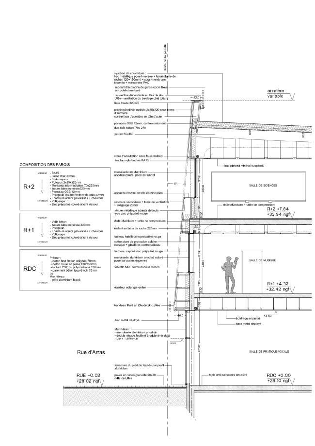
Коллеж, спортивный зал и культурный центр в Лилле © Chartier Dalix Architectes
Коллеж, спортивный зал и культурный центр в Лилле © Chartier Dalix Architectes
Коллеж, спортивный зал и культурный центр в Лилле © Chartier Dalix Architectes
Коллеж, спортивный зал и культурный центр в Лилле © Chartier Dalix Architectes
Коллеж, спортивный зал и культурный центр в Лилле © Chartier Dalix Architectes
Коллеж, спортивный зал и культурный центр в Лилле © Chartier Dalix Architectes
Коллеж, спортивный зал и культурный центр в Лилле © Chartier Dalix Architectes
Коллеж, спортивный зал и культурный центр в Лилле © Chartier Dalix Architectes
Коллеж, спортивный зал и культурный центр в Лилле © Chartier Dalix Architectes
Коллеж, спортивный зал и культурный центр в Лилле © Chartier Dalix Architectes
Коллеж, спортивный зал и культурный центр в Лилле © Chartier Dalix Architectes
Коллеж, спортивный зал и культурный центр в Лилле © Chartier Dalix Architectes
Коллеж, спортивный зал и культурный центр в Лилле © Chartier Dalix Architectes
Коллеж, спортивный зал и культурный центр в Лилле © Chartier Dalix Architectes
Коллеж, спортивный зал и культурный центр в Лилле © Chartier Dalix Architectes
Коллеж, спортивный зал и культурный центр в Лилле © Chartier Dalix Architectes
Коллеж, спортивный зал и культурный центр в Лилле © Chartier Dalix Architectes
Коллеж, спортивный зал и культурный центр в Лилле © Chartier Dalix Architectes