Размещено на портале Архи.ру (www.archi.ru)

28.12.2015

Зеленая долина

Нина Фролова
Объект:
Международный конгресс-центр в Катовице
Адрес:
Польша, None, Катовице.
Мастерская:
JEMS

Международный конгресс-центр по проекту бюро JEMS – часть плана по реконструкции зоны бывшей шахты в Катовице на юге Польши.

Международный конгресс-центр в Катовице © Juliusz Sokołowski
Международный конгресс-центр в Катовице © Juliusz Sokołowski

Новый комплекс для проведения конгрессов в столице Силезского воеводства расположен в окружении заметных новых построек – концертного зала Национального симфонического оркестра Польского радио и Силезского музея, включающего в себя музеефицированный комплекс шахты «Варшава». Все это – часть программы освоения долгое время пустовавших в центре Катовице 20 гектаров, где раньше добывали каменный уголь. Этот градостроительный проект с выраженной культурной составляющей – один из крупнейших в стране.
 
Международный конгресс-центр в Катовице © Juliusz Sokołowski
Международный конгресс-центр в Катовице © Juliusz Sokołowski

Однако для проекта польского бюро JEMS определяющим стал не этот амбициозный план, а соседство с памятником модернизма, спортивным и концертным центром «Сподек» (1964–71). Это здание – символ города и воеводства, площадь c кольцевой развязкой перед ним – главный транспортный узел Катовице, чуть дальше – знаменитый памятник участникам Силезских восстаний. Авторы нового конгресс-центра ни в коем случае не хотели конкурировать с «блюдцем» (так переводится spodek), но их постройка по своему масштабу и значению не могла и быть незаметной как отражение современных устремлений города – центра самой крупной в Польше агломерации – Верхнесилезской.
 
Международный конгресс-центр в Катовице © Juliusz Sokołowski
Международный конгресс-центр в Катовице © Juliusz Sokołowski

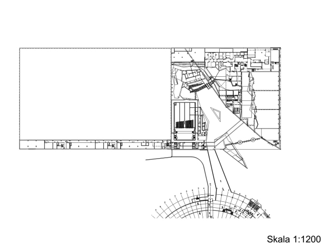
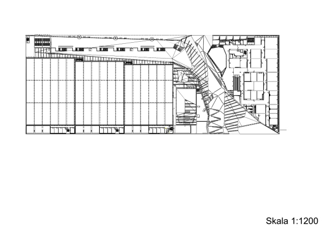
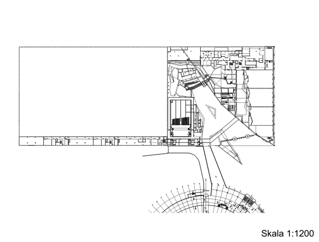
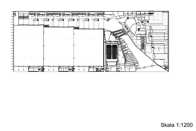
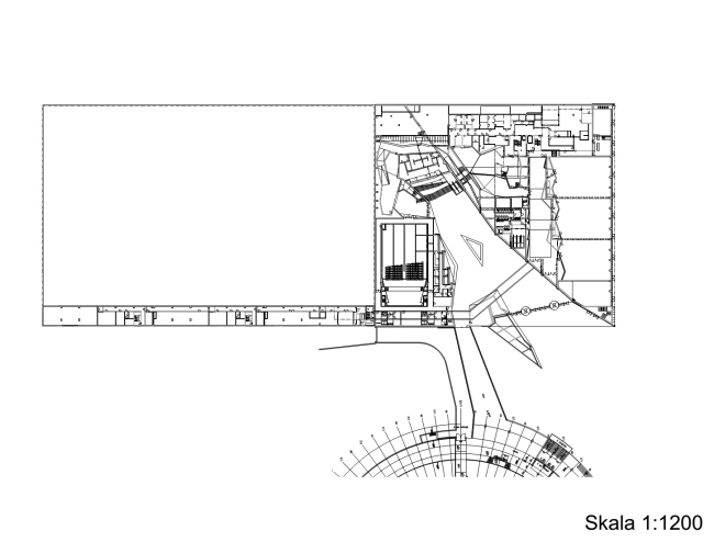
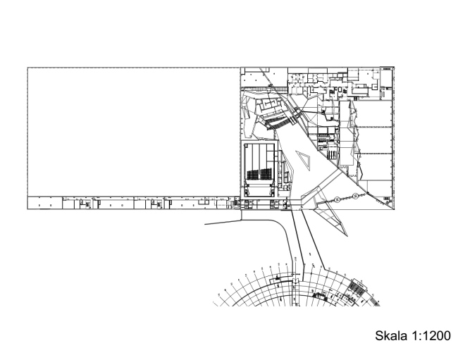
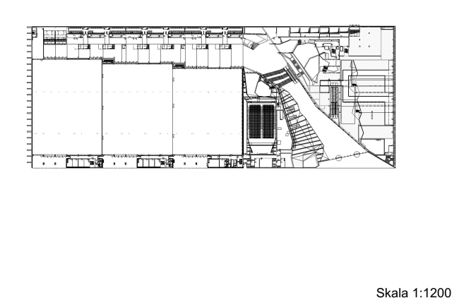
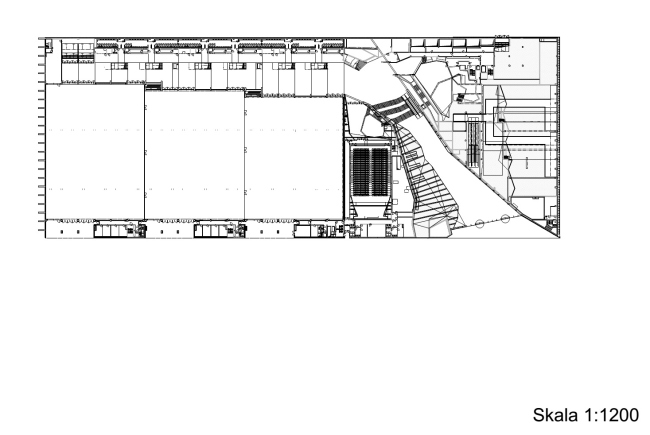
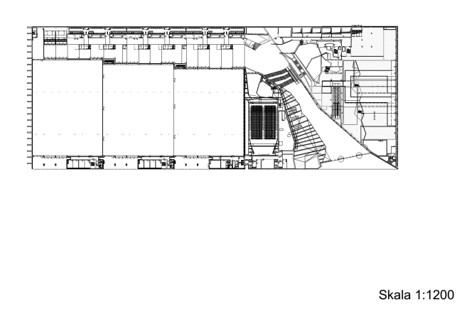
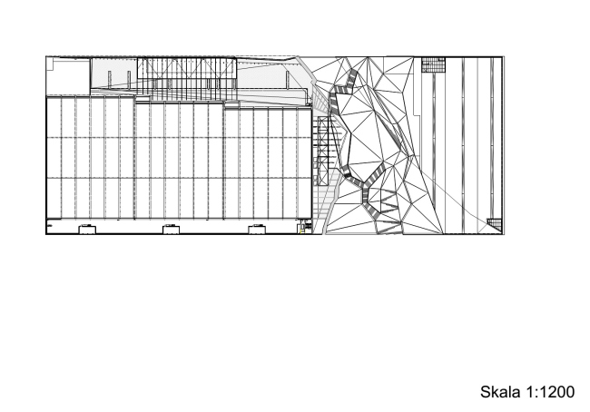
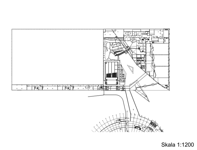
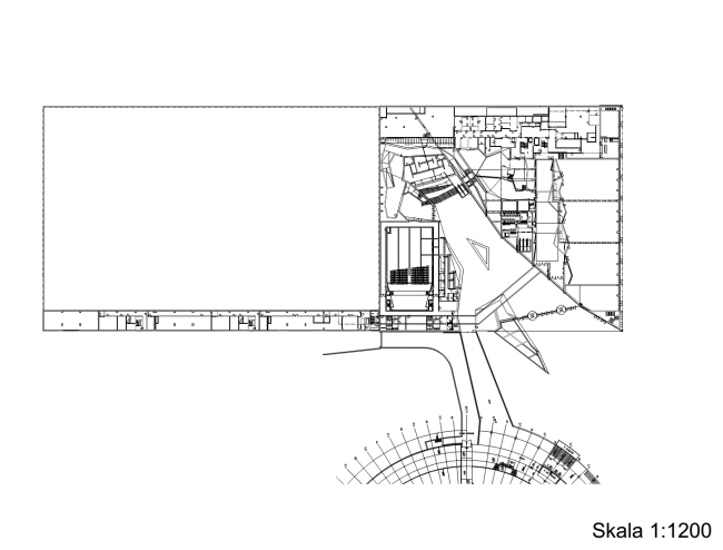
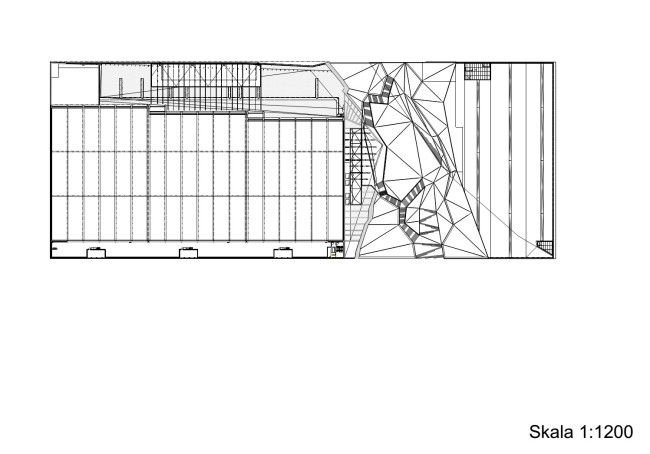
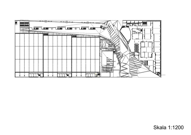
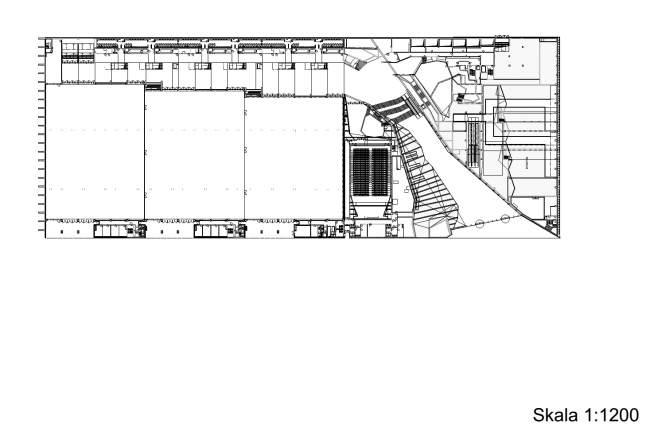
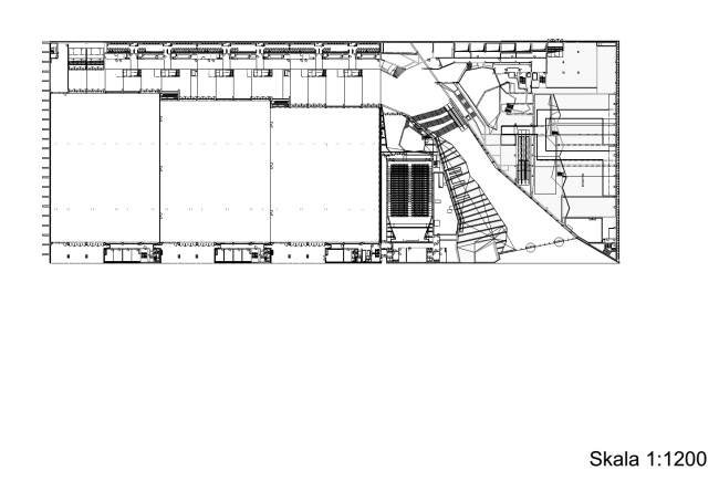
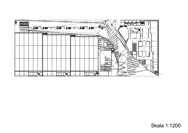
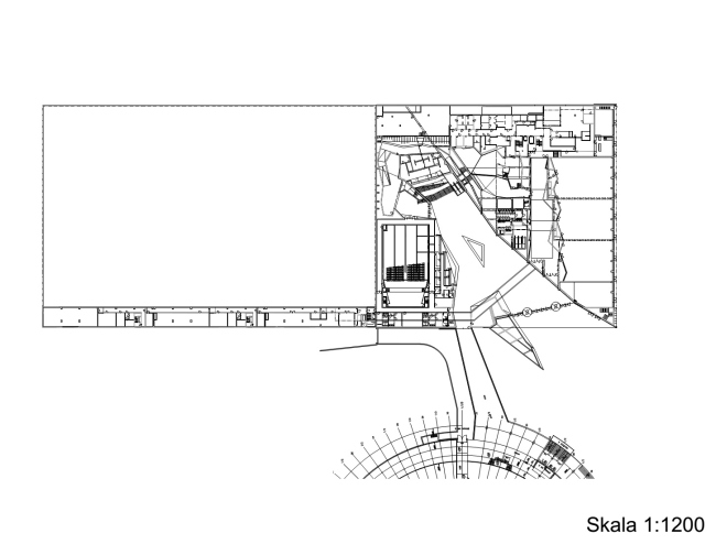
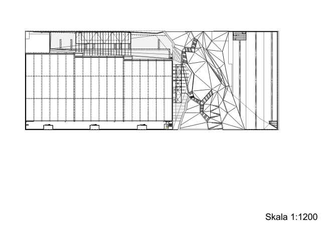
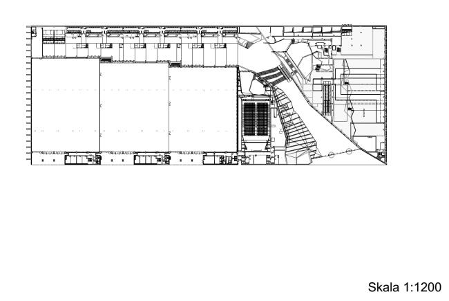
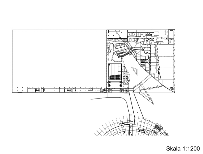
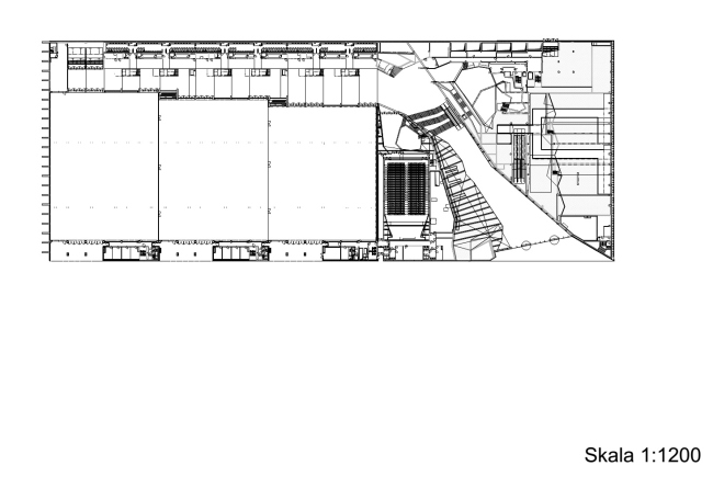
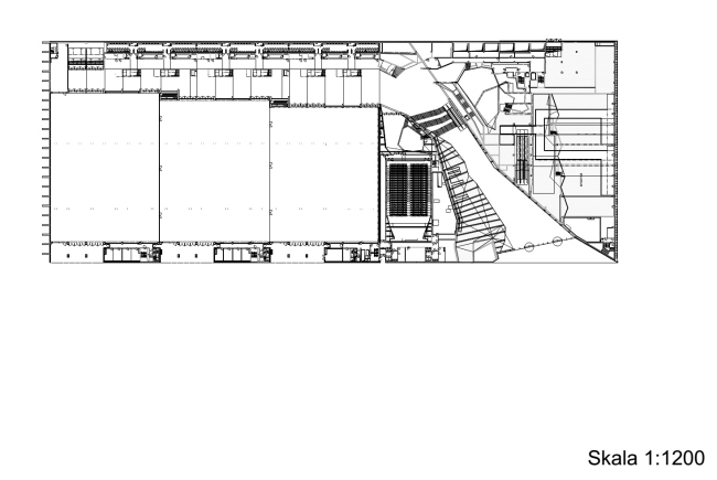
В результате, конгресс-центр площадью почти 38 тыс. м2 и высотой 16–18 м решен как эффектный объем, вписанный, однако, в рельеф местности. Помимо прочего, он служит общественным пространством: сквозь здание проходит пешеходный путь из старейшей части города, района Богучице, к упоминавшейся транспортной развязке перед «Сподеком». Этот путь проложен на двух уровнях: сквозь здание – его главный зал и вестибюль, и по его кровле, точнее, через «зеленую долину», разделяющую объем постройки на две неравные части (расположенное под ней перекрытие вестибюля – «отпечаток» дна этой «долины»). Озелененная часть кровли служит не только для отдыха горожан, но и для проведения выставок и любых других мероприятий на открытом воздухе.
 
Международный конгресс-центр в Катовице © Juliusz Sokołowski
Международный конгресс-центр в Катовице © Juliusz Sokołowski

В состав конгресс-центра входят многофункциональный зал площадью около 8000 м2 и вместимостью до 12 тыс. человек, банкетный зал (около 1200 м2, до 1000 человек), зрительный зал (около 600 м2, 600 мест), а также 18 конференц-залов общей площадью около 1650 м2 (до 1200 человек). Бюджет проекта составил порядка 393 млн злотых (93 млн евро). Его заказчиком выступила администрация Катовице.
Международный конгресс-центр в Катовице © Wojciech Radwański
Международный конгресс-центр в Катовице © Wojciech Radwański
Международный конгресс-центр в Катовице © Juliusz Sokołowski
Международный конгресс-центр в Катовице © Juliusz Sokołowski
Международный конгресс-центр в Катовице © Juliusz Sokołowski
Международный конгресс-центр в Катовице © Juliusz Sokołowski
Международный конгресс-центр в Катовице © Juliusz Sokołowski
Международный конгресс-центр в Катовице © Juliusz Sokołowski
Международный конгресс-центр в Катовице © Juliusz Sokołowski
Международный конгресс-центр в Катовице © Juliusz Sokołowski
Международный конгресс-центр в Катовице © Juliusz Sokołowski
Международный конгресс-центр в Катовице © Juliusz Sokołowski
Международный конгресс-центр в Катовице © Juliusz Sokołowski
Международный конгресс-центр в Катовице © Juliusz Sokołowski
Международный конгресс-центр в Катовице © Juliusz Sokołowski
Международный конгресс-центр в Катовице © Juliusz Sokołowski
Международный конгресс-центр в Катовице © Jacek Mroczkowski
Международный конгресс-центр в Катовице © Jacek Mroczkowski
Международный конгресс-центр в Катовице © Juliusz Sokołowski
Международный конгресс-центр в Катовице © Juliusz Sokołowski
Международный конгресс-центр в Катовице © Juliusz Sokołowski
Международный конгресс-центр в Катовице © Juliusz Sokołowski
Международный конгресс-центр в Катовице © JEMS Architekci
Международный конгресс-центр в Катовице © JEMS Architekci
Международный конгресс-центр в Катовице © JEMS Architekci
Международный конгресс-центр в Катовице © JEMS Architekci
Международный конгресс-центр в Катовице © JEMS Architekci
Международный конгресс-центр в Катовице © JEMS Architekci
Международный конгресс-центр в Катовице © JEMS Architekci
Международный конгресс-центр в Катовице © JEMS Architekci
Международный конгресс-центр в Катовице © JEMS Architekci
Международный конгресс-центр в Катовице © JEMS Architekci
Международный конгресс-центр в Катовице © JEMS Architekci
Международный конгресс-центр в Катовице © JEMS Architekci
Международный конгресс-центр в Катовице © JEMS Architekci
Международный конгресс-центр в Катовице © JEMS Architekci
Международный конгресс-центр в Катовице © JEMS Architekci
Международный конгресс-центр в Катовице © JEMS Architekci
Международный конгресс-центр в Катовице © JEMS Architekci
Международный конгресс-центр в Катовице © JEMS Architekci
Международный конгресс-центр в Катовице © JEMS Architekci
Международный конгресс-центр в Катовице © JEMS Architekci
Международный конгресс-центр в Катовице © JEMS Architekci
Международный конгресс-центр в Катовице © JEMS Architekci
Международный конгресс-центр в Катовице © JEMS Architekci
Международный конгресс-центр в Катовице © JEMS Architekci
Международный конгресс-центр в Катовице © JEMS Architekci
Международный конгресс-центр в Катовице © JEMS Architekci
Международный конгресс-центр в Катовице © JEMS Architekci
Международный конгресс-центр в Катовице © JEMS Architekci
Международный конгресс-центр в Катовице © JEMS Architekci
Международный конгресс-центр в Катовице © JEMS Architekci
Международный конгресс-центр в Катовице © JEMS Architekci
Международный конгресс-центр в Катовице © JEMS Architekci
Международный конгресс-центр в Катовице © JEMS Architekci
Международный конгресс-центр в Катовице © JEMS Architekci
Международный конгресс-центр в Катовице © JEMS Architekci
Международный конгресс-центр в Катовице © JEMS Architekci
Международный конгресс-центр в Катовице © JEMS Architekci
Международный конгресс-центр в Катовице © JEMS Architekci
Международный конгресс-центр в Катовице © JEMS Architekci
Международный конгресс-центр в Катовице © JEMS Architekci