Размещено на портале Архи.ру (www.archi.ru)

24.12.2015

Флотилия заходит в порт

Нина Фролова
Объект:
Офисный комплекс компании Bestseller
Адрес:
Дания, None, Орхус.
Мастерская:
C. F. Møller

Офисный комплекс компании Bestseller в гавани Орхуса по проекту бюро C.F. Møller.

Офисный комплекс компании Bestseller © Adam Mørk
Офисный комплекс компании Bestseller © Adam Mørk

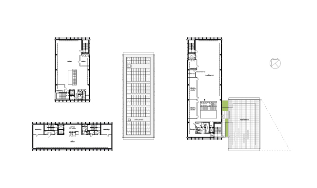
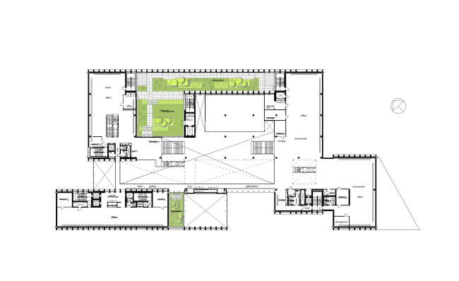
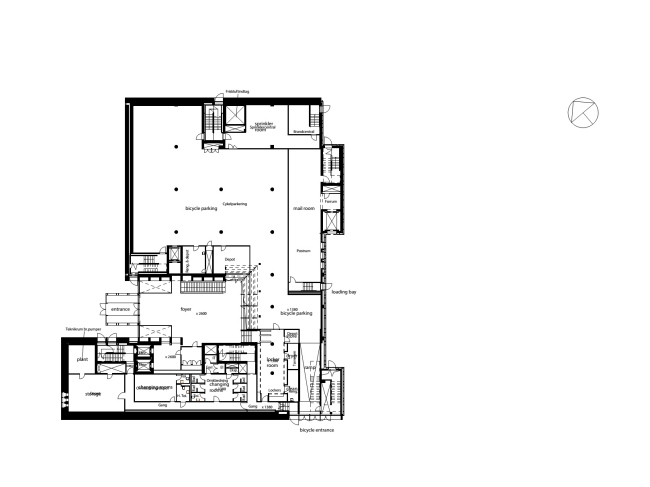
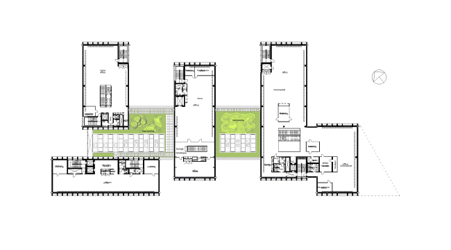
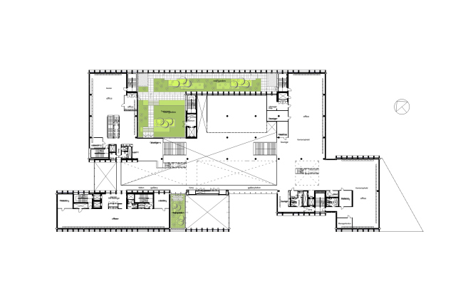
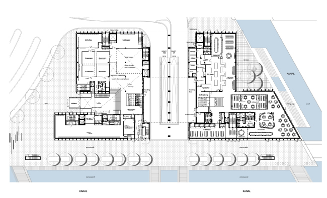
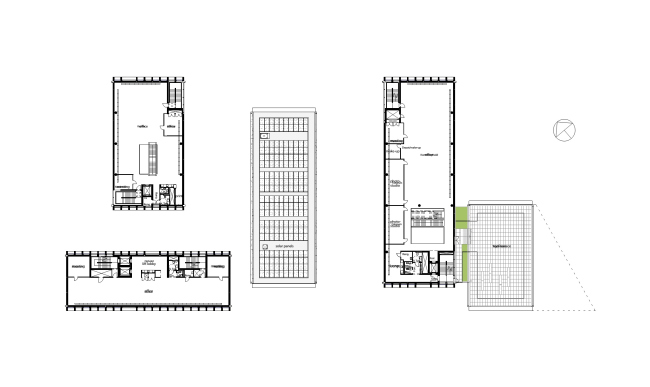
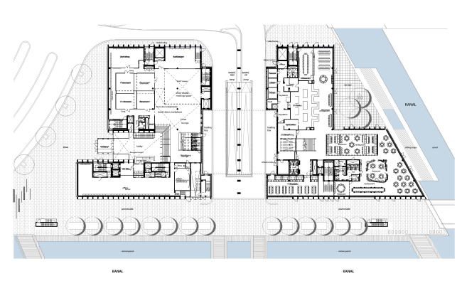
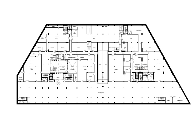
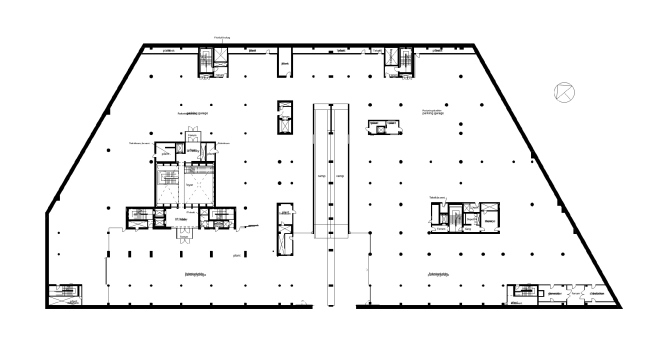
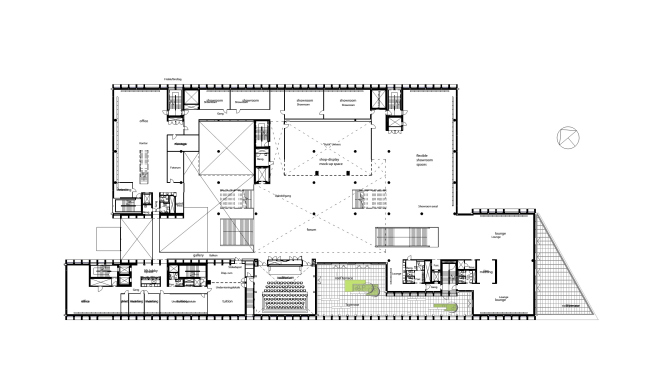
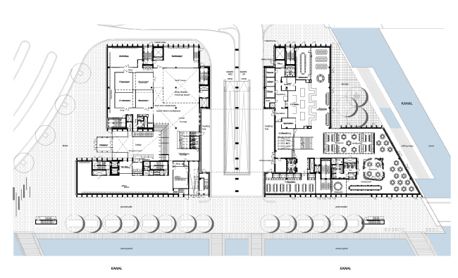
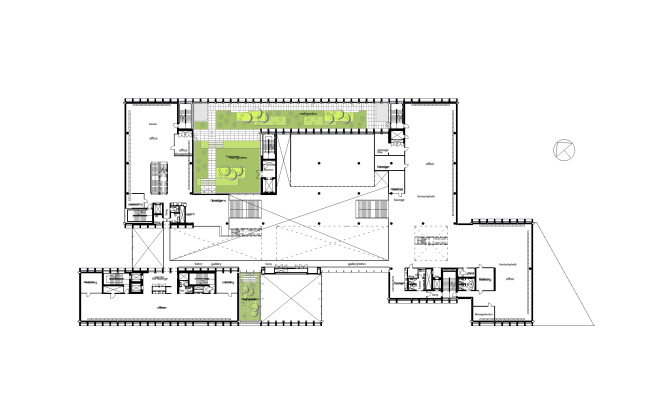
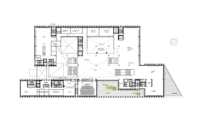
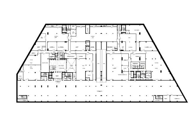
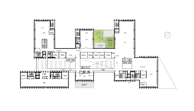
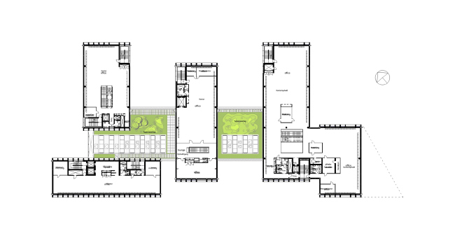
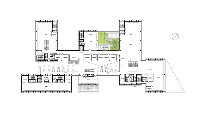
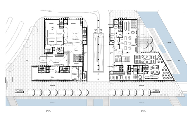
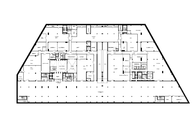
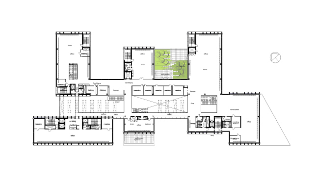
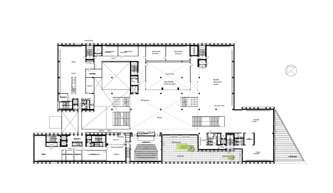
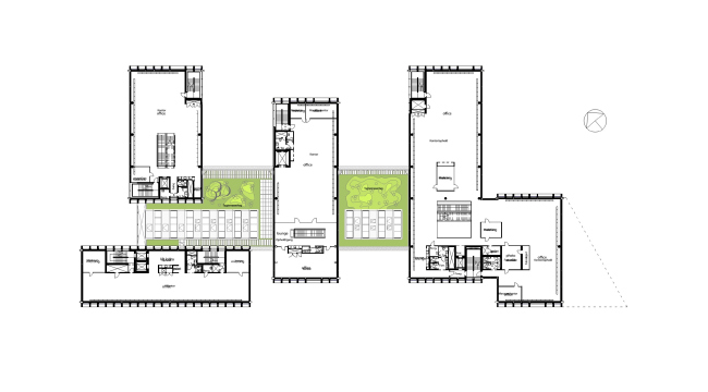
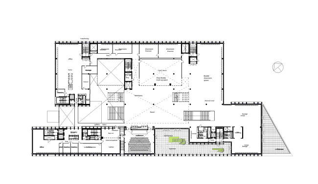
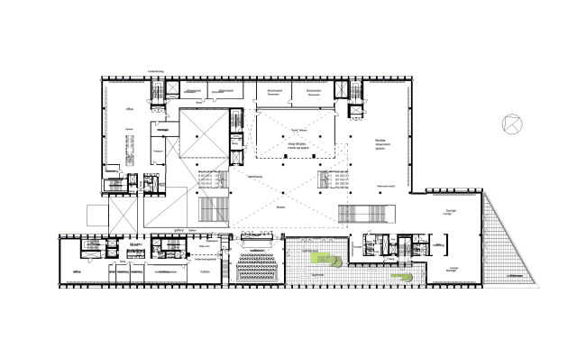
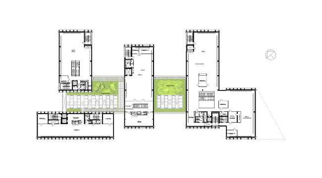
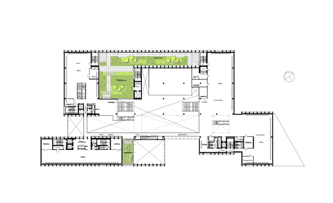
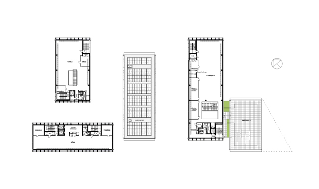
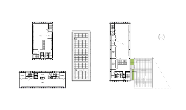
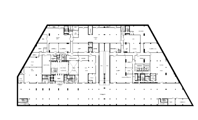
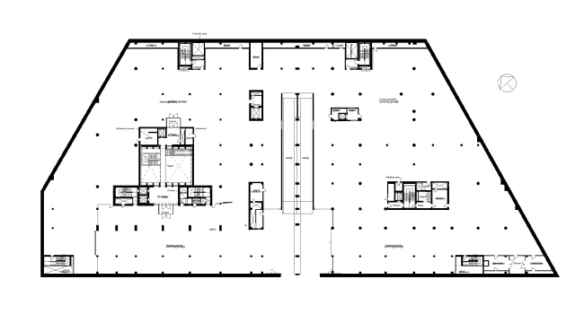
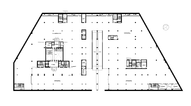
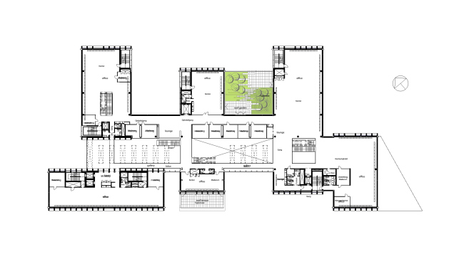
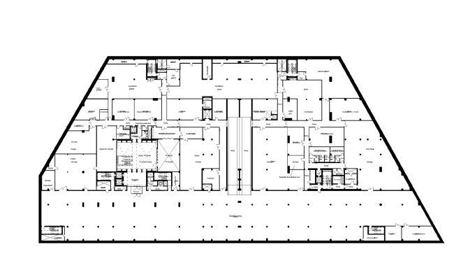
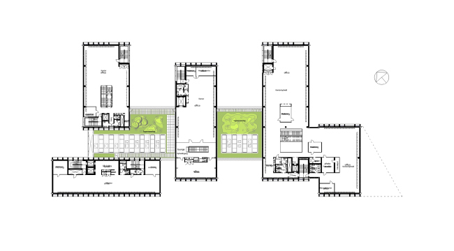
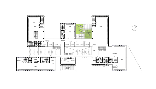
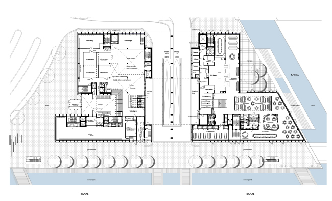
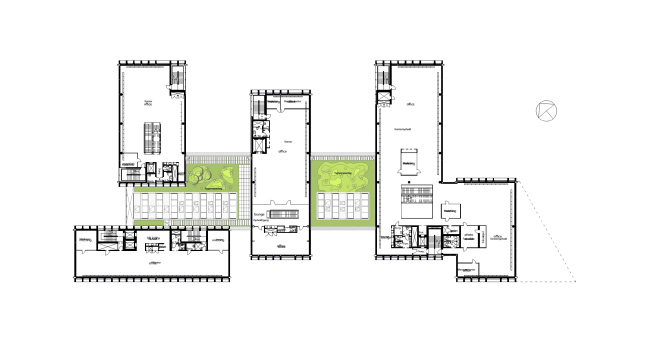
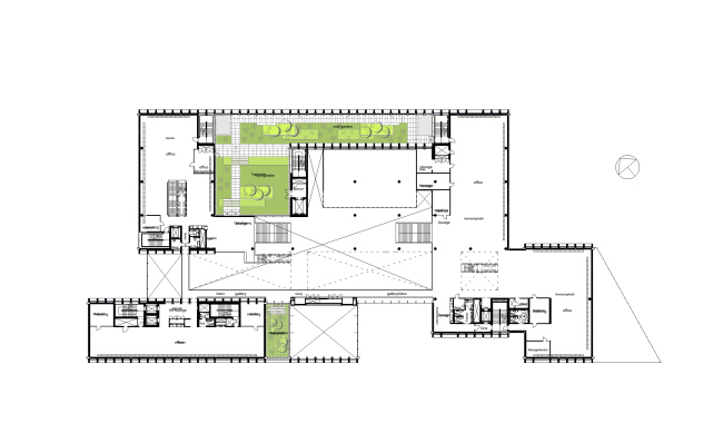
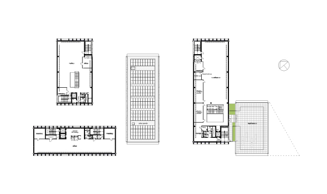
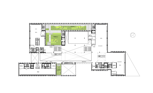
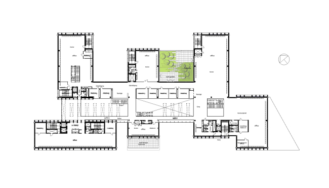
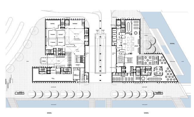
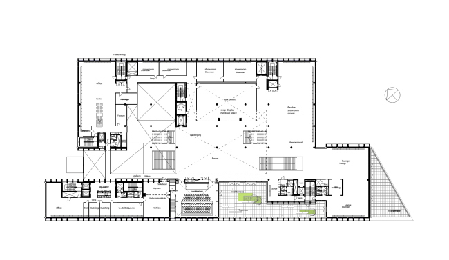
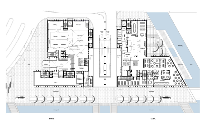
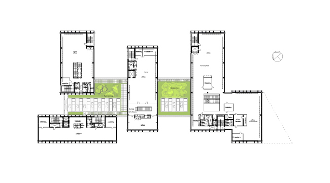
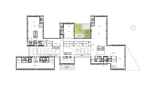
Комплекс на 800 сотрудников расположен на бывшем пирсе №2 орхусского порта: ныне эта часть городской гавани превращается в район смешанной застройки, неподалеку расположены новостройки: библиотека Dokk1, жилые комплексы Isbjerget и Lighthouse*. Bestseller, крупный производитель модной одежды (в частности, под маркой Vero Moda), желал, чтобы здание C.F. Møller демонстрировало его корпоративные «дизайн-ценности». Сооружение и правда очень заметно и эффектно: архитекторы сравнивают его с флотилией разновысотных корпусов (от одного до 12 этажей) и с городом в городе, где между постройками расположены атриумы, внутренние дворы, террасы и сады на крышах (всего в комплексе – 10 подобных зеленых пространств). Также это полуостров, с трех сторон окруженный водой.
 
Офисный комплекс компании Bestseller © Adam Mørk
Офисный комплекс компании Bestseller © Adam Mørk

Южный и северный фасады покрыты рельефной «клеткой» из светлого сицилийского камня; восточный и западный остеклены. Природный камень широко использован и в интерьере, включая мебель – наряду с темной древесиной дуба, бетоном, металлом.
 
Офисный комплекс компании Bestseller © Adam Mørk
Офисный комплекс компании Bestseller © Adam Mørk

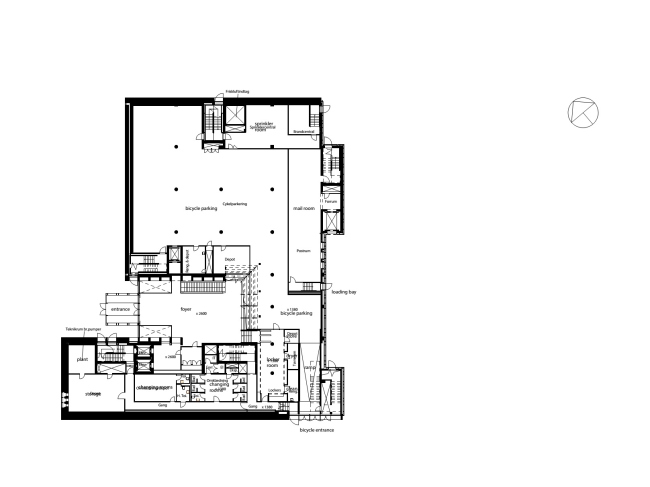
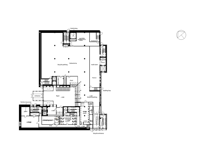
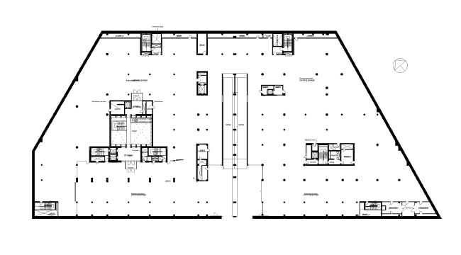
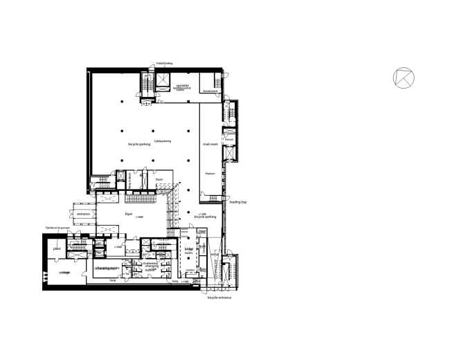
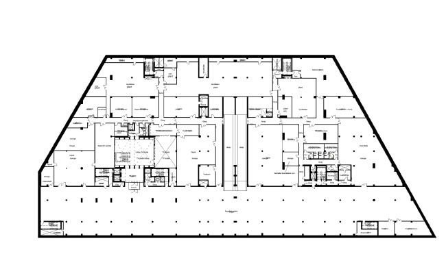
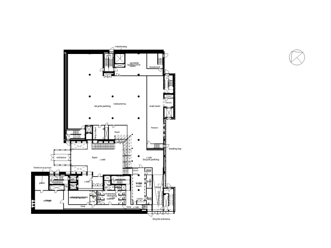
Вход в здание расположен там, где оно приподнимается, как мост. Оттуда видны подземные уровни постройки, где устроены гараж на 450 автомобилей и 400 велосипедов, разгрузочные зоны и т.д.
 
Офисный комплекс компании Bestseller © Adam Mørk
Офисный комплекс компании Bestseller © Adam Mørk

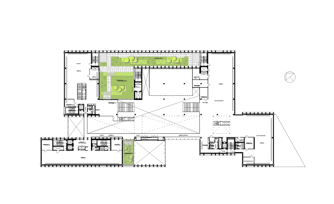
Интерьер организован вокруг «внутренней улицы» с центральной плазой, откуда можно попасть в зрительный зал, переговорные, экспериментальные торговые пространства, а также столовую для сотрудников, разделенную на много частей с разным дизайном, атмосферой, размером и степенью «приватности». «Улица» со своими террасами, лестницами и балконами может вместить 500–1000 зрителей для показа мод или какого-либо другого события. Кроме собственно офисов, в здании также имеются шоу-румы, фото- и видео- студии.
Офисный комплекс компании Bestseller © Adam Mørk
Офисный комплекс компании Bestseller © Adam Mørk

Среди «зеленых» компонентов проекта – охлаждение помещений с помощью морской воды и использование солнечной энергии. По расчетам архитекторов, комплекс Bestseller будет потреблять на 50% меньше энергии по сравнению с минимальными требованиями по датским нормам.
Офисный комплекс компании Bestseller © Adam Mørk
Офисный комплекс компании Bestseller © Adam Mørk
Офисный комплекс компании Bestseller © Adam Mørk
Офисный комплекс компании Bestseller © Adam Mørk
Офисный комплекс компании Bestseller © Adam Mørk
Офисный комплекс компании Bestseller © Adam Mørk
Офисный комплекс компании Bestseller © Thomas Mølvig
Офисный комплекс компании Bestseller © Thomas Mølvig
Офисный комплекс компании Bestseller © Adam Mørk
Офисный комплекс компании Bestseller © Adam Mørk
Офисный комплекс компании Bestseller © Adam Mørk
Офисный комплекс компании Bestseller © Adam Mørk
Офисный комплекс компании Bestseller © Adam Mørk
Офисный комплекс компании Bestseller © Adam Mørk
Офисный комплекс компании Bestseller © Adam Mørk
Офисный комплекс компании Bestseller © Adam Mørk
Офисный комплекс компании Bestseller © Adam Mørk
Офисный комплекс компании Bestseller © Adam Mørk
Офисный комплекс компании Bestseller © Adam Mørk
Офисный комплекс компании Bestseller © Adam Mørk
Офисный комплекс компании Bestseller © Adam Mørk
Офисный комплекс компании Bestseller © Adam Mørk
Офисный комплекс компании Bestseller © Adam Mørk
Офисный комплекс компании Bestseller © Adam Mørk
Офисный комплекс компании Bestseller © Adam Mørk
Офисный комплекс компании Bestseller © Adam Mørk
Офисный комплекс компании Bestseller © Adam Mørk
Офисный комплекс компании Bestseller © Adam Mørk
Офисный комплекс компании Bestseller © Adam Mørk
Офисный комплекс компании Bestseller © Adam Mørk
Офисный комплекс компании Bestseller © Adam Mørk
Офисный комплекс компании Bestseller © Adam Mørk
Офисный комплекс компании Bestseller © Adam Mørk
Офисный комплекс компании Bestseller © Adam Mørk
Офисный комплекс компании Bestseller © Thomas Mølvig
Офисный комплекс компании Bestseller © Thomas Mølvig
Офисный комплекс компании Bestseller © Thomas Mølvig
Офисный комплекс компании Bestseller © Thomas Mølvig
Офисный комплекс компании Bestseller © Adam Mørk
Офисный комплекс компании Bestseller © Adam Mørk
Офисный комплекс компании Bestseller © Adam Mørk
Офисный комплекс компании Bestseller © Adam Mørk
Офисный комплекс компании Bestseller © Adam Mørk
Офисный комплекс компании Bestseller © Adam Mørk
Офисный комплекс компании Bestseller © Adam Mørk
Офисный комплекс компании Bestseller © Adam Mørk
Офисный комплекс компании Bestseller © Adam Mørk
Офисный комплекс компании Bestseller © Adam Mørk
Офисный комплекс компании Bestseller © Thomas Mølvig
Офисный комплекс компании Bestseller © Thomas Mølvig
Офисный комплекс компании Bestseller © Thomas Mølvig
Офисный комплекс компании Bestseller © Thomas Mølvig
Офисный комплекс компании Bestseller © Thomas Mølvig
Офисный комплекс компании Bestseller © Thomas Mølvig
Офисный комплекс компании Bestseller © Adam Mørk
Офисный комплекс компании Bestseller © Adam Mørk
Офисный комплекс компании Bestseller © Adam Mørk
Офисный комплекс компании Bestseller © Adam Mørk
Офисный комплекс компании Bestseller © Adam Mørk
Офисный комплекс компании Bestseller © Adam Mørk
Офисный комплекс компании Bestseller © Adam Mørk
Офисный комплекс компании Bestseller © Adam Mørk
Офисный комплекс компании Bestseller © Adam Mørk
Офисный комплекс компании Bestseller © Adam Mørk
Офисный комплекс компании Bestseller © Adam Mørk
Офисный комплекс компании Bestseller © Adam Mørk
Офисный комплекс компании Bestseller © Adam Mørk
Офисный комплекс компании Bestseller © Adam Mørk
Офисный комплекс компании Bestseller © Adam Mørk
Офисный комплекс компании Bestseller © Adam Mørk
Офисный комплекс компании Bestseller © Adam Mørk
Офисный комплекс компании Bestseller © Adam Mørk
Офисный комплекс компании Bestseller © Adam Mørk
Офисный комплекс компании Bestseller © Adam Mørk
Офисный комплекс компании Bestseller © Adam Mørk
Офисный комплекс компании Bestseller © Adam Mørk
Офисный комплекс компании Bestseller © Adam Mørk
Офисный комплекс компании Bestseller © Adam Mørk
Офисный комплекс компании Bestseller © Adam Mørk
Офисный комплекс компании Bestseller © Adam Mørk
Офисный комплекс компании Bestseller © Adam Mørk
Офисный комплекс компании Bestseller © Adam Mørk
Офисный комплекс компании Bestseller © Adam Mørk
Офисный комплекс компании Bestseller © Adam Mørk
Офисный комплекс компании Bestseller © Adam Mørk
Офисный комплекс компании Bestseller © Adam Mørk
Офисный комплекс компании Bestseller © Adam Mørk
Офисный комплекс компании Bestseller © Adam Mørk
Офисный комплекс компании Bestseller © Adam Mørk
Офисный комплекс компании Bestseller © Adam Mørk
Офисный комплекс компании Bestseller © Adam Mørk
Офисный комплекс компании Bestseller © Adam Mørk
Офисный комплекс компании Bestseller © Adam Mørk
Офисный комплекс компании Bestseller © Adam Mørk
Офисный комплекс компании Bestseller © Adam Mørk
Офисный комплекс компании Bestseller © Adam Mørk
Офисный комплекс компании Bestseller © Adam Mørk
Офисный комплекс компании Bestseller © Adam Mørk
Офисный комплекс компании Bestseller © Adam Mørk
Офисный комплекс компании Bestseller © Adam Mørk
Офисный комплекс компании Bestseller © Adam Mørk
Офисный комплекс компании Bestseller © Adam Mørk
Офисный комплекс компании Bestseller © Adam Mørk
Офисный комплекс компании Bestseller © Adam Mørk
Офисный комплекс компании Bestseller © Thomas Mølvig
Офисный комплекс компании Bestseller © Thomas Mølvig
Офисный комплекс компании Bestseller © Adam Mørk
Офисный комплекс компании Bestseller © Adam Mørk
Офисный комплекс компании Bestseller © Adam Mørk
Офисный комплекс компании Bestseller © Adam Mørk
Офисный комплекс компании Bestseller © Adam Mørk
Офисный комплекс компании Bestseller © Adam Mørk
Офисный комплекс компании Bestseller © Thomas Mølvig
Офисный комплекс компании Bestseller © Thomas Mølvig
Офисный комплекс компании Bestseller в процессе строительства © Julian Weyer
Офисный комплекс компании Bestseller в процессе строительства © Julian Weyer
Офисный комплекс компании Bestseller в процессе строительства © Julian Weyer
Офисный комплекс компании Bestseller в процессе строительства © Julian Weyer
Офисный комплекс компании Bestseller в процессе строительства © Julian Weyer
Офисный комплекс компании Bestseller в процессе строительства © Julian Weyer
Офисный комплекс компании Bestseller © C.F. Møller Architects
Офисный комплекс компании Bestseller © C.F. Møller Architects
Офисный комплекс компании Bestseller © C.F. Møller Architects
Офисный комплекс компании Bestseller © C.F. Møller Architects
Офисный комплекс компании Bestseller © C.F. Møller Architects
Офисный комплекс компании Bestseller © C.F. Møller Architects
Офисный комплекс компании Bestseller © C.F. Møller Architects
Офисный комплекс компании Bestseller © C.F. Møller Architects
Офисный комплекс компании Bestseller © C.F. Møller Architects
Офисный комплекс компании Bestseller © C.F. Møller Architects
Офисный комплекс компании Bestseller © C.F. Møller Architects
Офисный комплекс компании Bestseller © C.F. Møller Architects
Офисный комплекс компании Bestseller © C.F. Møller Architects
Офисный комплекс компании Bestseller © C.F. Møller Architects
Офисный комплекс компании Bestseller © C.F. Møller Architects
Офисный комплекс компании Bestseller © C.F. Møller Architects
Офисный комплекс компании Bestseller © C.F. Møller Architects
Офисный комплекс компании Bestseller © C.F. Møller Architects
Офисный комплекс компании Bestseller © C.F. Møller Architects
Офисный комплекс компании Bestseller © C.F. Møller Architects
Офисный комплекс компании Bestseller © C.F. Møller Architects
Офисный комплекс компании Bestseller © C.F. Møller Architects
Офисный комплекс компании Bestseller © C.F. Møller Architects
Офисный комплекс компании Bestseller © C.F. Møller Architects
Офисный комплекс компании Bestseller © C.F. Møller Architects
Офисный комплекс компании Bestseller © C.F. Møller Architects
Офисный комплекс компании Bestseller © C.F. Møller Architects
Офисный комплекс компании Bestseller © C.F. Møller Architects
Офисный комплекс компании Bestseller © C.F. Møller Architects
Офисный комплекс компании Bestseller © C.F. Møller Architects
Офисный комплекс компании Bestseller © C.F. Møller Architects
Офисный комплекс компании Bestseller © C.F. Møller Architects
Офисный комплекс компании Bestseller © C.F. Møller Architects
Офисный комплекс компании Bestseller © C.F. Møller Architects
Офисный комплекс компании Bestseller © C.F. Møller Architects
Офисный комплекс компании Bestseller © C.F. Møller Architects
Офисный комплекс компании Bestseller © C.F. Møller Architects
Офисный комплекс компании Bestseller © C.F. Møller Architects
Офисный комплекс компании Bestseller © C.F. Møller Architects
Офисный комплекс компании Bestseller © C.F. Møller Architects
Офисный комплекс компании Bestseller © C.F. Møller Architects
Офисный комплекс компании Bestseller © C.F. Møller Architects
Офисный комплекс компании Bestseller © C.F. Møller Architects
Офисный комплекс компании Bestseller © C.F. Møller Architects
Офисный комплекс компании Bestseller © C.F. Møller Architects
Офисный комплекс компании Bestseller © C.F. Møller Architects
Офисный комплекс компании Bestseller © C.F. Møller Architects
Офисный комплекс компании Bestseller © C.F. Møller Architects
Офисный комплекс компании Bestseller © C.F. Møller Architects
Офисный комплекс компании Bestseller © C.F. Møller Architects