Размещено на портале Архи.ру (www.archi.ru)

02.07.2008

Романтика полета

Мария Фадеева
Объект:
Индивидуальный жилой дом, Ватутинки
Адрес:
Россия, коттеджный поселок «Ваутутинки»
Мастерская:
PANACOM
Авторский коллектив:
Н.Токарев, А.Леонович, Д.Кралечкин

Высокие глухие заборы с массивными отгороженными от внешнего мира постройками за ними – это образ большинства участков в российских коттеджных поселках, где землю продают без подряда. Но не таков новый проект бюро «Панаком», выполненный для поселка «Ваутутинки» - дом смело раскрывается к дороге, забор невысок, а сплошное остекление использовано не только со стороны внутреннего двора

Индивидуальный жилой дом, Ватутинки
Индивидуальный жилой дом, Ватутинки
© PANACOM

Может быть и глупо начинать разговор про дом с забора – но, глядя на этот забор, диву даешься – неужели менталитет клиента меняется и открытость, характерная для современной европейской и американской архитектуры, приживется и у нас. Потому как убедить заказчика в том, что дому не обязательны классицистические капители или гранитная отделка – куда проще, чем в том, что дом не обязан быть крепостью о семи засовах. Конечно, здесь сыграл свою роль рельеф участка, находящийся ниже уровня дороги, в небольшом овражке. То есть, если бы забор нарастили, двор банально оказался бы в довольно-таки темном «кратере».

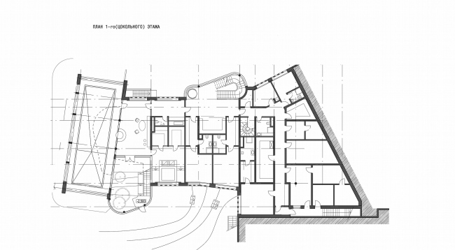
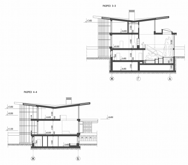
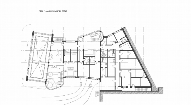
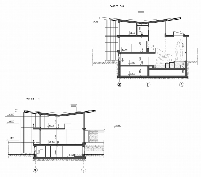
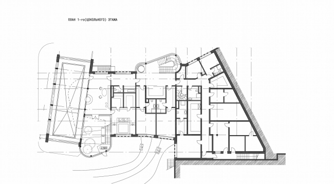
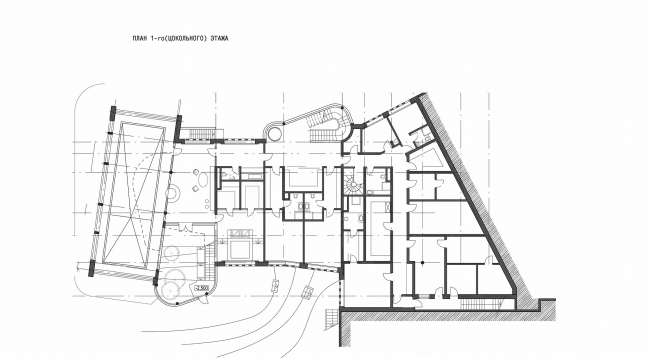
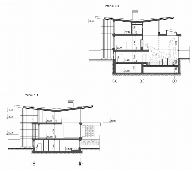
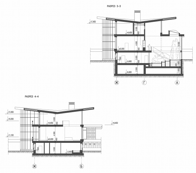
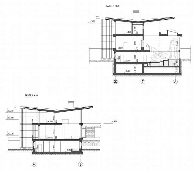
Благодаря ландшафтным условиям дом заглублен относительно проезжей части и снаружи выглядит двухэтажным, хотя в действительности у него 3 этажа. Главный вход приводит сразу на второй этаж. Дом получился достаточно богатым по наполнению: тут и гараж на 4 машины, и настоящий зимний сад со всем необходимым для содержания тропических растений, и 2 гостиные по панакомовской традиции, и большая комната отдыха у бассейна, а лестничный узел включает стеклянный лифт.

Эта расширенная программа любопытно отразилась на конфигурации плана – прямоугольную «коробочку» как будто бы распирает, отчего у нее появляются дополнительные выпуклости и изгибы. Все стеклянные, они кажутся прорывами не только в пластике дома, но и в менталитете клиента. Правда, архитекторы говорят, что им просто-напросто захотелось создать более романтичный образ.

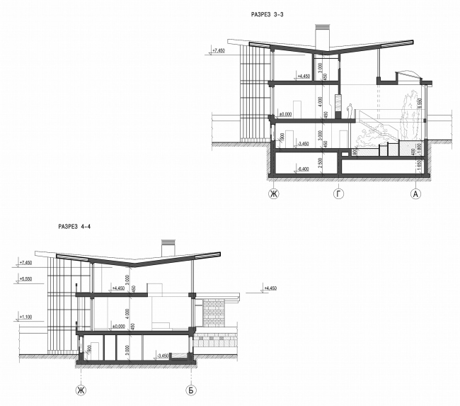
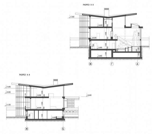
Впрочем в романтичности проекту не откажешь – достаточно взглянуть на форму крыши, скаты которой напоминают крылья белой чайки. Они становятся логичным завершением вертикальной градации характера пространств, которая получилась обратной их назначению. Я бы назвала это поэмой о взлете. Так, например, первый этаж с бассейном и садом, предназначенный для расслабления, по степени закрытости больше напоминает пещеру. Этот ярус хотя и находится на земле, а не под землей, все же не утрачивает цокольный характер – длинная стена бассейна глухая, окна гостевых комнат снаружи застроены каменной стеной, орнаментированной небольшими «бойницами». Лишь сад максимально остеклен – растения стремятся к солнцу и слиянию с окружающей природой, из-за чего помещение приобретает трехсветную высоту. Второй этаж относительно предыдущего выглядит вполне нейтральным. Спальни же третьего, наиболее приватного уровня, плотно укомплектованные видами на опушку из-за формы крыши неожиданно оказываются наиболее открытыми. Есть ощущение, что они могли бы расти вверх до бесконечности, вслед за полетом этих крыльев.

Индивидуальный жилой дом, Ватутинки
Индивидуальный жилой дом, Ватутинки
© PANACOM
Индивидуальный жилой дом, Ватутинки
Индивидуальный жилой дом, Ватутинки
© PANACOM
Индивидуальный жилой дом, Ватутинки
Индивидуальный жилой дом, Ватутинки
© PANACOM
Индивидуальный жилой дом, Ватутинки. Генплан
Индивидуальный жилой дом, Ватутинки. Генплан
© PANACOM
Индивидуальный жилой дом, Ватутинки. Цоколь
Индивидуальный жилой дом, Ватутинки. Цоколь
© PANACOM
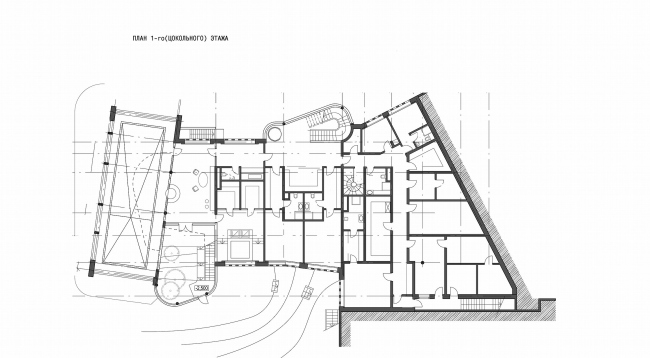
Индивидуальный жилой дом, Ватутинки. 2 этаж
Индивидуальный жилой дом, Ватутинки. 2 этаж
© PANACOM
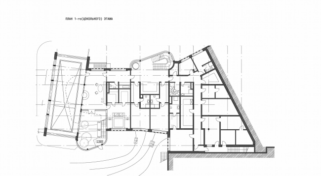
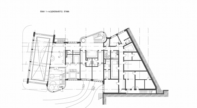
Индивидуальный жилой дом, Ватутинки. 3 этаж
Индивидуальный жилой дом, Ватутинки. 3 этаж
© PANACOM
Индивидуальный жилой дом, Ватутинки
Индивидуальный жилой дом, Ватутинки
© PANACOM
Индивидуальный жилой дом, Ватутинки
Индивидуальный жилой дом, Ватутинки
© PANACOM
Индивидуальный жилой дом, Ватутинки
Индивидуальный жилой дом, Ватутинки
© PANACOM
Индивидуальный жилой дом, Ватутинки
Индивидуальный жилой дом, Ватутинки
© PANACOM