Размещено на портале Архи.ру (www.archi.ru)

22.12.2015

Библиотека без книг

Нина Фролова
Объект:
Студенческий учебный центр Университета Райерсона
Адрес:
Канада, None, Торонто.
Мастерская:
Snøhetta

Студенческий учебный центр университета Райерсона в Торонто по проекту бюро Snøhetta и Zeidler Partnership Architects.

Студенческий учебный центр Университета Райерсона © Lorne Bridgman
Студенческий учебный центр Университета Райерсона © Lorne Bridgman

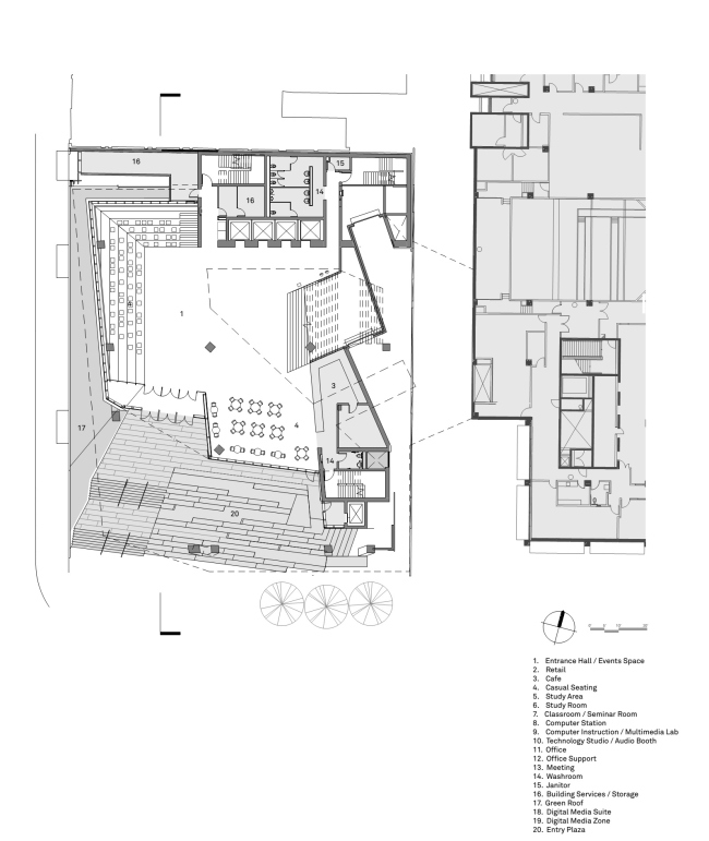
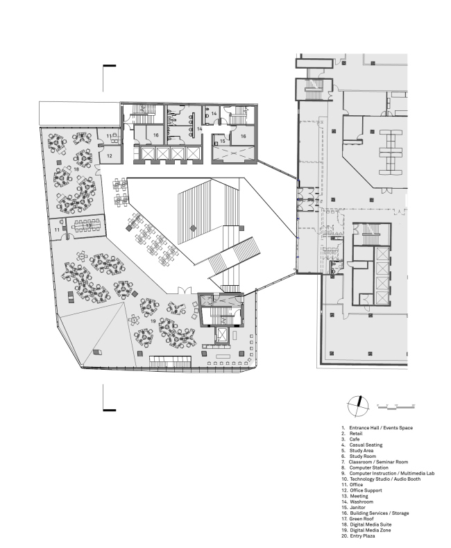
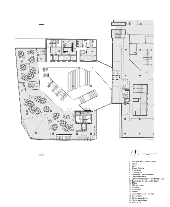
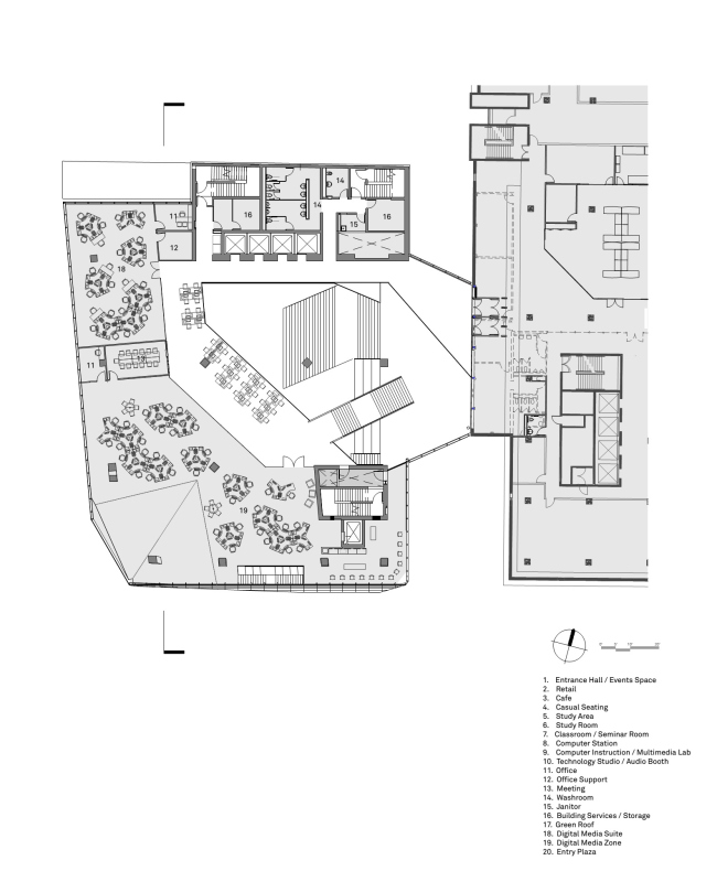
Учебный центр университета Райерсона дополняет связанную с ним «мостом» вузовскую библиотеку. Сам он выполняет схожую, и, в то же время, кардинально иную функцию. В начале XXI века цифровые носители информации вытесняют бумажные – особенно среди молодых читателей, тех же студентов. Поэтому традиционным библиотекам приходится трансформироваться в многофункциональные центры, где посетителям, помимо чтения книг, предлагается целый ряд услуг – от курсов иностранных языков до чашки кофе.
 
Студенческий учебный центр Университета Райерсона © Younes Bounhar & Amanda Large | DoubleSpace
Photography
Студенческий учебный центр Университета Райерсона © Younes Bounhar & Amanda Large | DoubleSpace Photography

Случай библиотек учебных заведений несколько другой: их основная роль – пространства для учебы и общения, доступного почти круглые сутки (так, здание Snøhetta открыто с 7 утра до часу ночи). Здесь можно найти тихий угол, если в общежитии – шумные соседи, также в здании всегда тепло и сухо, если на дворе зима, и на газоне уже не полежать (на кампусе университета Райерсона, кстати, лужаек нет вообще).
 
Студенческий учебный центр Университета Райерсона © Marc Mitanis
Студенческий учебный центр Университета Райерсона © Marc Mitanis

Архитекторы Snøhetta видят прообраз своей постройки в античных общественных пространствах – агорах и стоях, где философы, прогуливаясь, объясняли ученикам устройство мира. По тому же принципу, современные студенты учатся здесь не в тишине и в одиночестве, а в общественном окружении.
 
Студенческий учебный центр Университета Райерсона © Younes Bounhar & Amanda Large | DoubleSpace
Photography
Студенческий учебный центр Университета Райерсона © Younes Bounhar & Amanda Large | DoubleSpace Photography

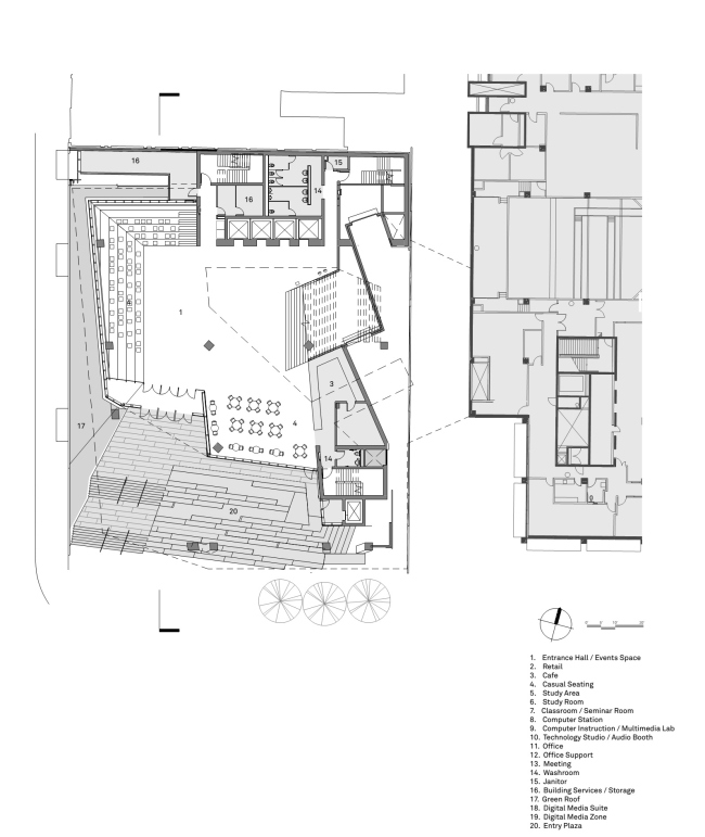
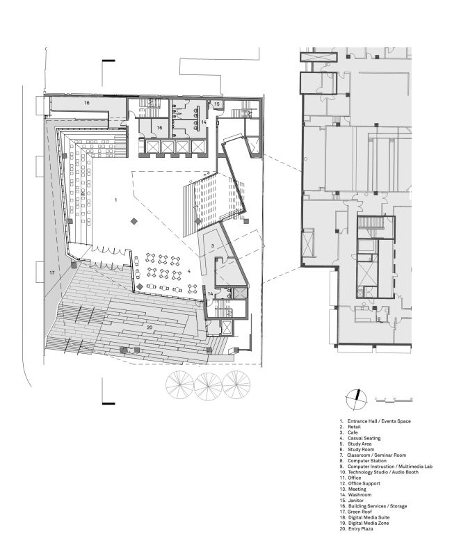
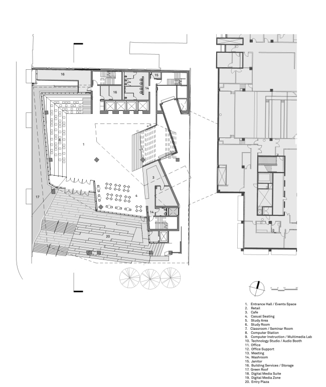
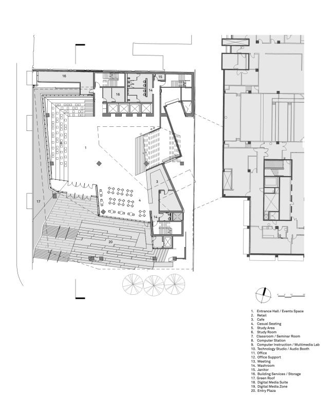
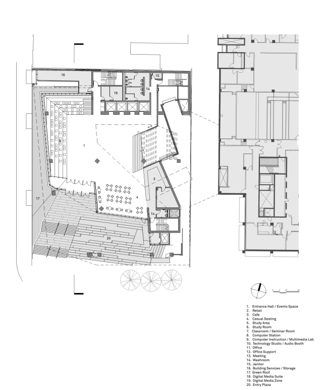
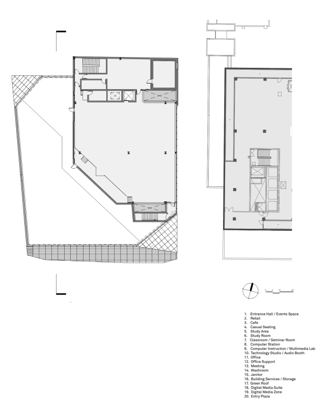
Кроме образовательной, у нового учебного центра есть еще одна функция: это первое здание университета Райерсона, построенное специально для него на красной линии улицы, то есть заметное в городской среде и служащее «лицом» этого учебного заведения. Поэтому его облик играет особую роль, в том числе и благодаря расположению на главной торговой «артерии» Торонто – Янг-стрит. Чтобы вписать постройку в окружение из кафе и магазинов, архитекторы снабдили ее подиумом с «ретейлом», а вход в собственно учебный центр приподняли над уровнем земли. Он расположен с угла, издалека заметен благодаря ярко-синим панелям навеса из переливчатого металла (эта обшивка продолжается в интерьере, на потолке вестибюля) и широким ступеням, где можно отдохнуть и пообщаться не только студентам, но и любому горожанину.
Студенческий учебный центр Университета Райерсона © Lorne Bridgman
Студенческий учебный центр Университета Райерсона © Lorne Bridgman

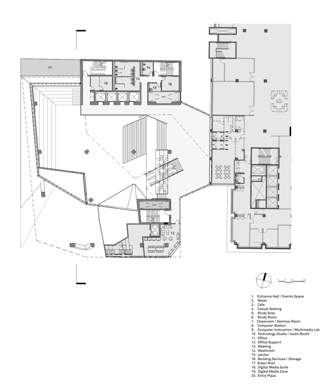
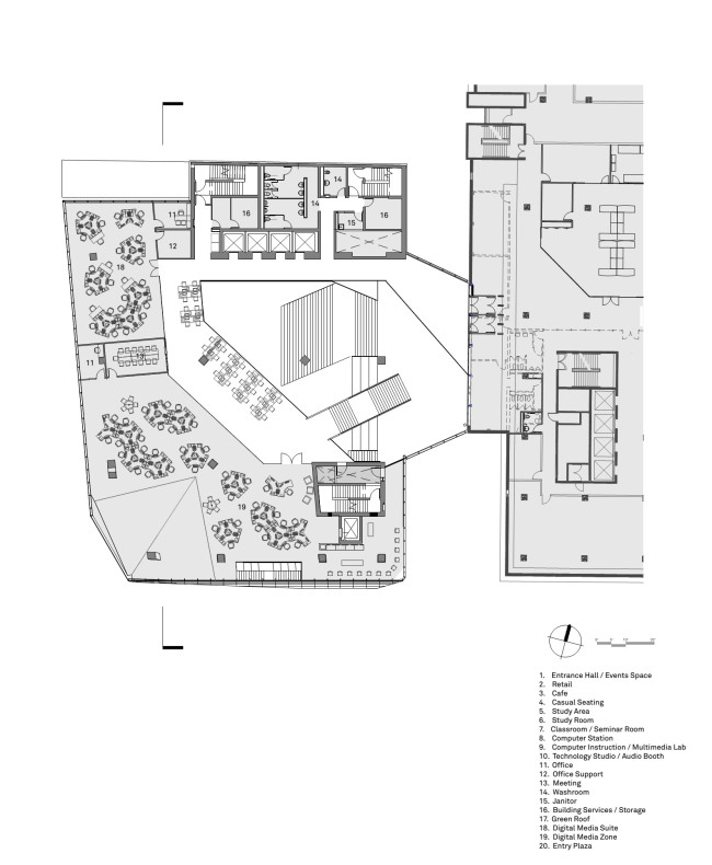
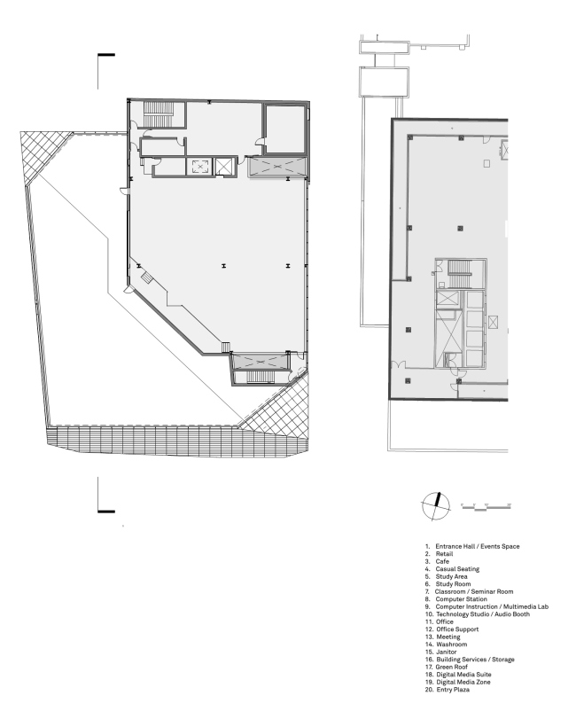
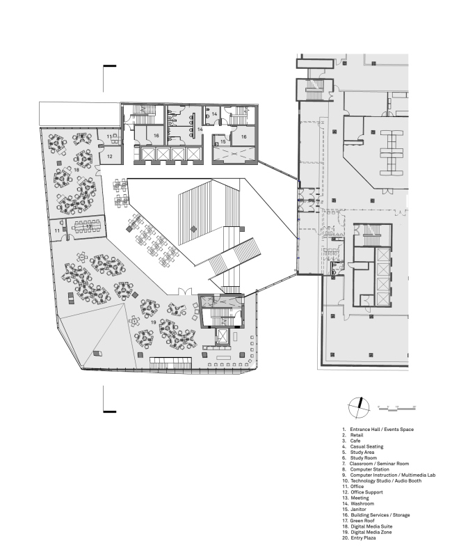
Также открыт для всех вестибюль с многофункциональными ступенями: там можно проводить собрания, показы мод, концерты (для этого имеется встроенная акустическая система). Оттуда переход-мост ведет в соседний корпус библиотеки, а сверху нависает «Зона пуска» – лаборатория цифровых медиа и бизнес-инкубатор для технологических стартапов.
 
Студенческий учебный центр Университета Райерсона © Lorne Bridgman
Студенческий учебный центр Университета Райерсона © Lorne Bridgman

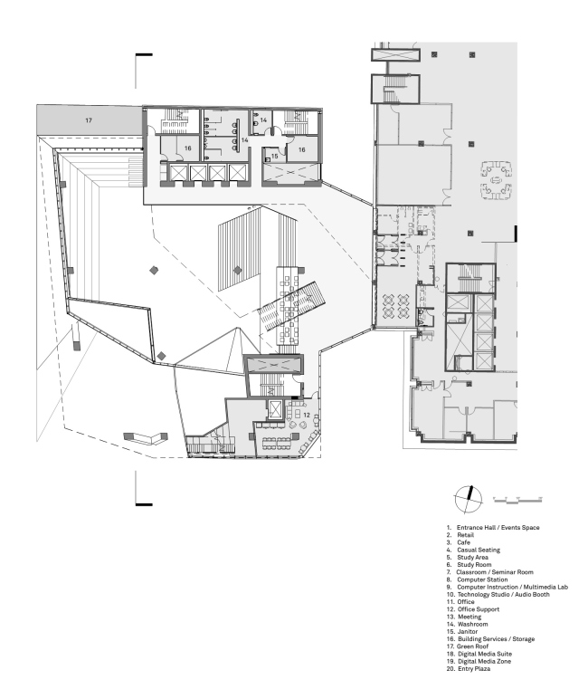
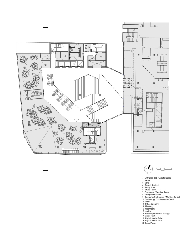
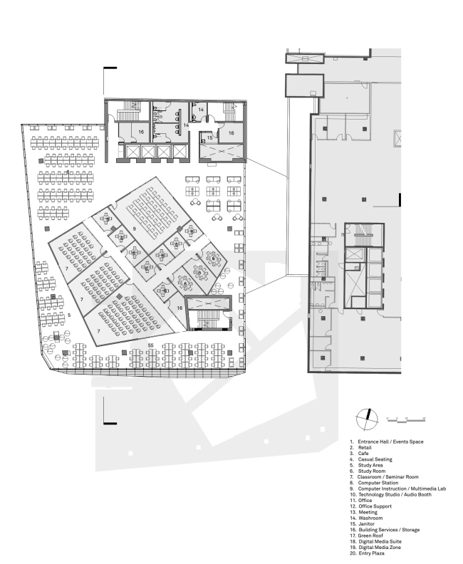
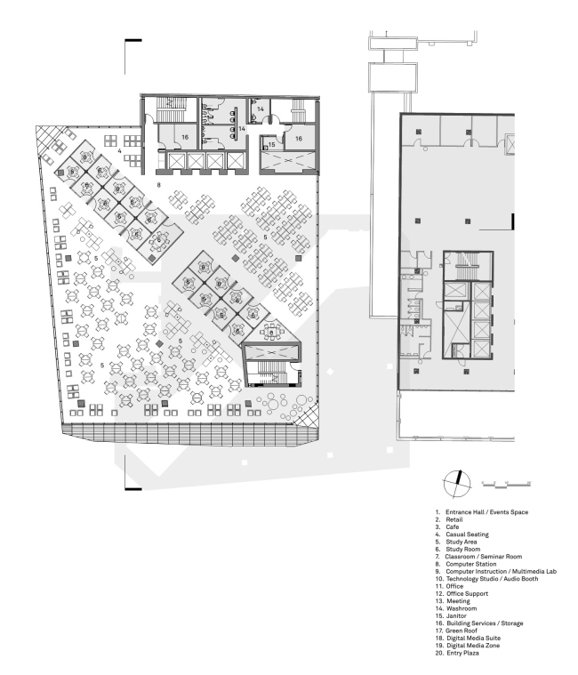
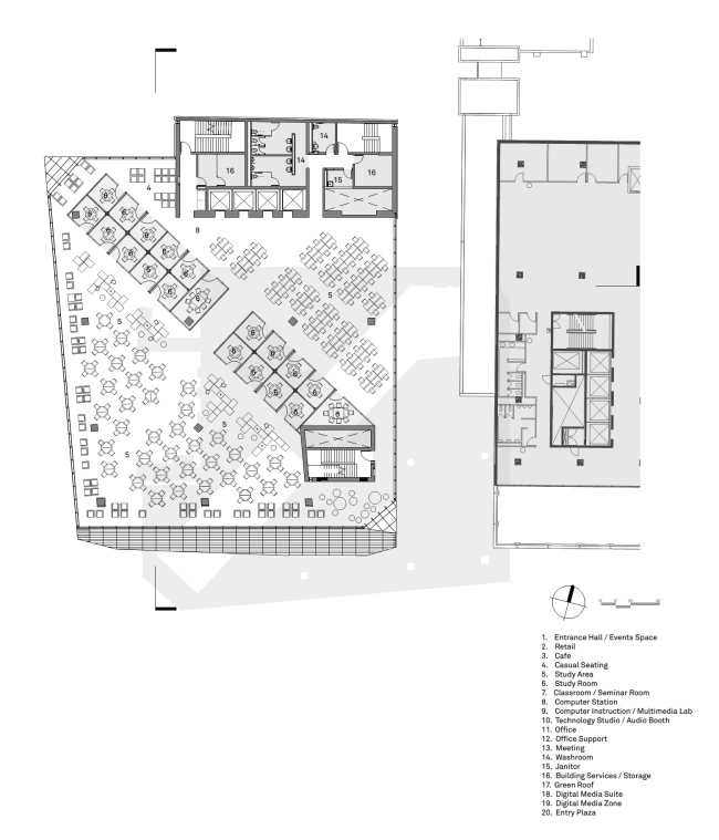
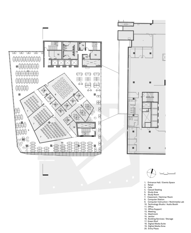
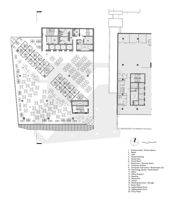
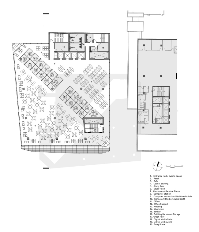
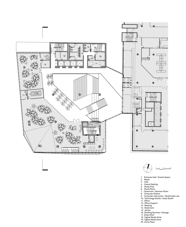
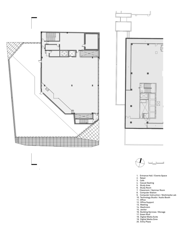
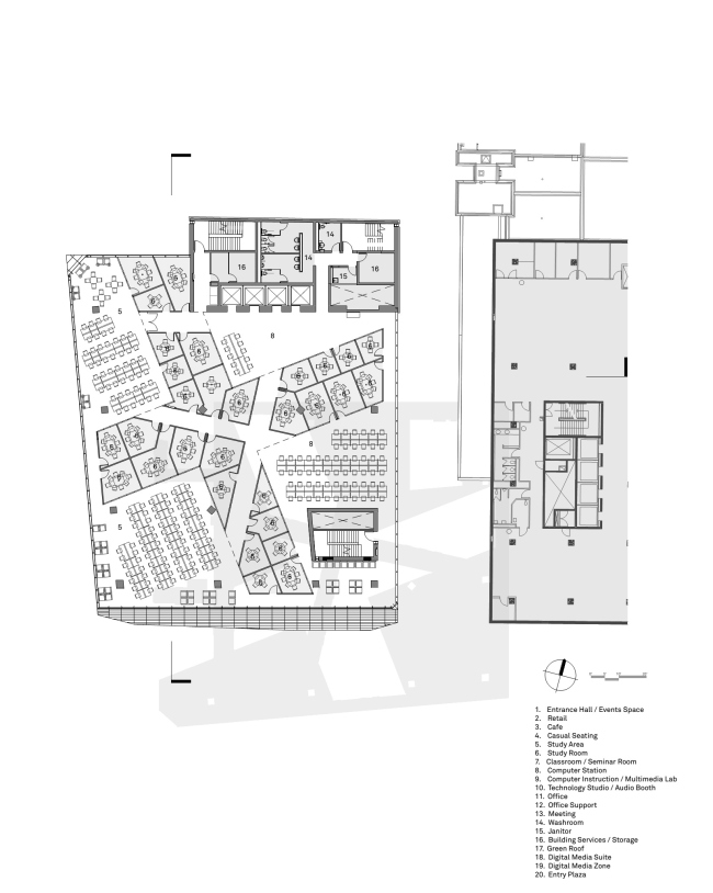
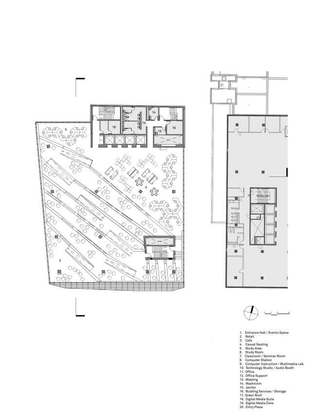
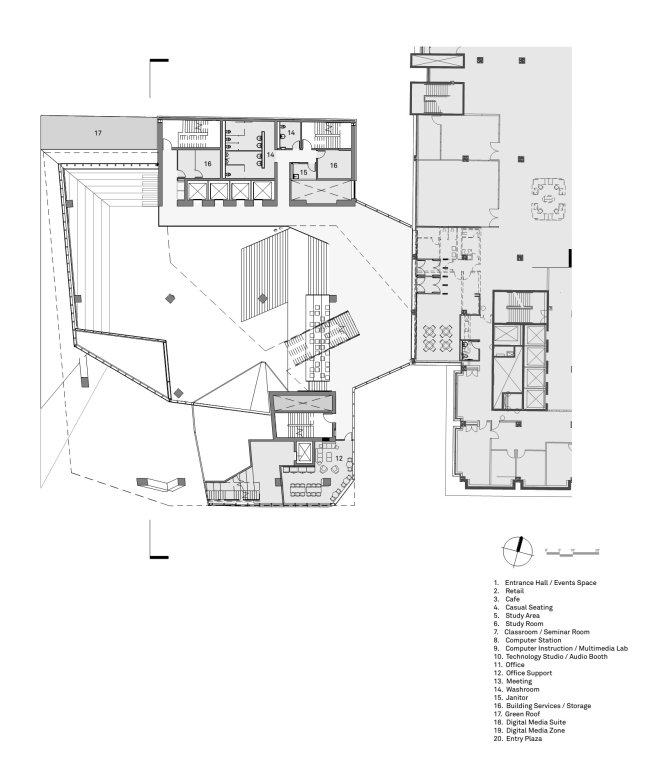
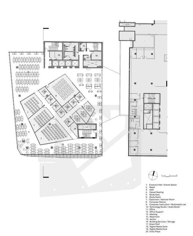
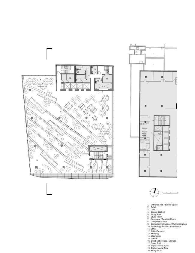
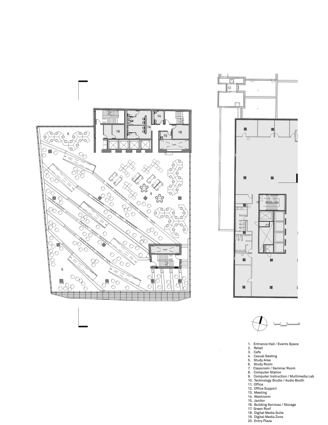
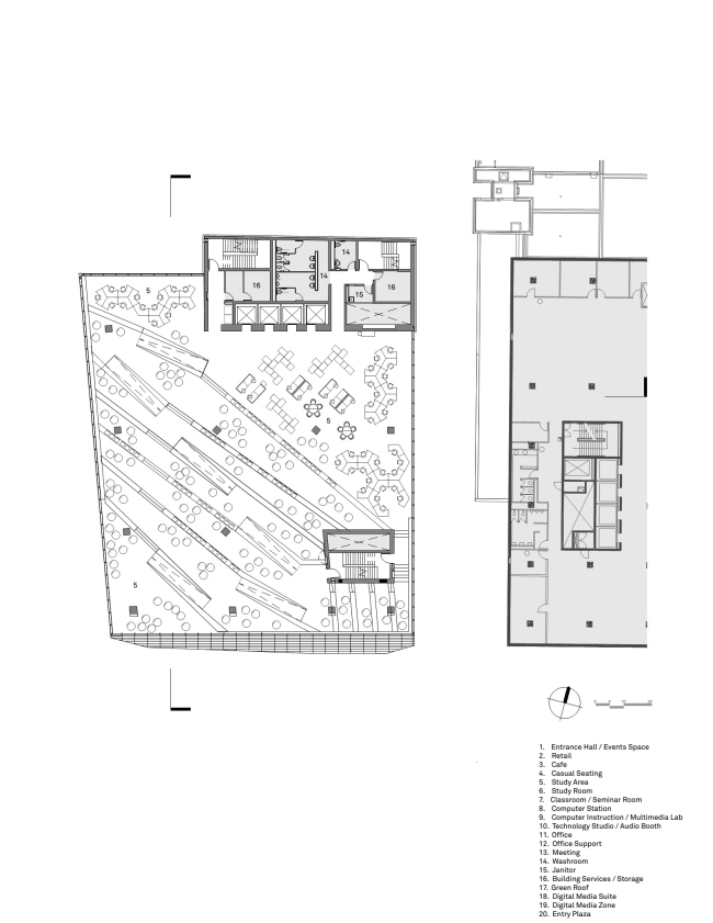
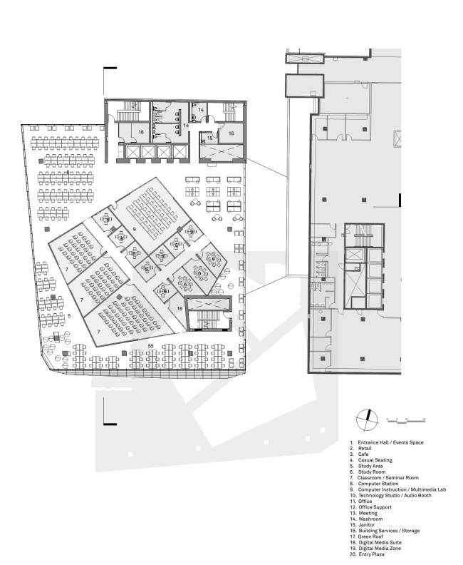
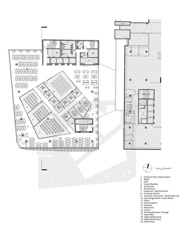
Выше расположены этажи с пространствами для общения, совместных или индивидуальных занятий, учебными помещениями. Лестничные площадки и лифты отмечены цветовыми акцентами, что не только помогает ориентироваться, но и придает перемещению по зданию эффект неожиданности. Каждый уровень получил «природное» название и решение: «Сад» и «Лес» предназначены для тихих занятий, «Пляж» предлагает свободно расположиться на террасах и на пандусах, верхний этаж, «Небо», отличает высокий потолок и эффектные виды на город.
 
Студенческий учебный центр Университета Райерсона © Ryerson University
Студенческий учебный центр Университета Райерсона © Ryerson University

Все пространства учебного центра – как и его внешний облик – определяет фасад из фриттованного стекла: нанесенный цифровым методом рисунок защищает интерьер от излишнего солнечного жара, кадрирует виды, разнообразит интенсивность освещения помещений.
Студенческий учебный центр Университета Райерсона © Snøhetta
Студенческий учебный центр Университета Райерсона © Snøhetta
Студенческий учебный центр Университета Райерсона © Snøhetta
Студенческий учебный центр Университета Райерсона © Snøhetta
Студенческий учебный центр Университета Райерсона © Snøhetta
Студенческий учебный центр Университета Райерсона © Snøhetta
Студенческий учебный центр Университета Райерсона © Snøhetta
Студенческий учебный центр Университета Райерсона © Snøhetta
Студенческий учебный центр Университета Райерсона © Lorne Bridgman
Студенческий учебный центр Университета Райерсона © Lorne Bridgman
Студенческий учебный центр Университета Райерсона © Lorne Bridgman
Студенческий учебный центр Университета Райерсона © Lorne Bridgman
Студенческий учебный центр Университета Райерсона © Lorne Bridgman
Студенческий учебный центр Университета Райерсона © Lorne Bridgman
Студенческий учебный центр Университета Райерсона © Lorne Bridgman
Студенческий учебный центр Университета Райерсона © Lorne Bridgman
Студенческий учебный центр Университета Райерсона © Lorne Bridgman
Студенческий учебный центр Университета Райерсона © Lorne Bridgman
Студенческий учебный центр Университета Райерсона © Lorne Bridgman
Студенческий учебный центр Университета Райерсона © Lorne Bridgman
Студенческий учебный центр Университета Райерсона © Lorne Bridgman
Студенческий учебный центр Университета Райерсона © Lorne Bridgman
Студенческий учебный центр Университета Райерсона © Ryerson University
Студенческий учебный центр Университета Райерсона © Ryerson University
Студенческий учебный центр Университета Райерсона © Lorne Bridgman
Студенческий учебный центр Университета Райерсона © Lorne Bridgman
Студенческий учебный центр Университета Райерсона © Lorne Bridgman
Студенческий учебный центр Университета Райерсона © Lorne Bridgman
Студенческий учебный центр Университета Райерсона © Lorne Bridgman
Студенческий учебный центр Университета Райерсона © Lorne Bridgman
Студенческий учебный центр Университета Райерсона © Lorne Bridgman
Студенческий учебный центр Университета Райерсона © Lorne Bridgman
Студенческий учебный центр Университета Райерсона © Lorne Bridgman
Студенческий учебный центр Университета Райерсона © Lorne Bridgman
Студенческий учебный центр Университета Райерсона © Lorne Bridgman
Студенческий учебный центр Университета Райерсона © Lorne Bridgman
Студенческий учебный центр Университета Райерсона © Lorne Bridgman
Студенческий учебный центр Университета Райерсона © Lorne Bridgman
Студенческий учебный центр Университета Райерсона © Clifton Li for Ryerson University
Студенческий учебный центр Университета Райерсона © Clifton Li for Ryerson University
Студенческий учебный центр Университета Райерсона © Ryerson University
Студенческий учебный центр Университета Райерсона © Ryerson University
Студенческий учебный центр Университета Райерсона © Snøhetta
Студенческий учебный центр Университета Райерсона © Snøhetta
Студенческий учебный центр Университета Райерсона © Snøhetta
Студенческий учебный центр Университета Райерсона © Snøhetta
Студенческий учебный центр Университета Райерсона © Snøhetta
Студенческий учебный центр Университета Райерсона © Snøhetta
Студенческий учебный центр Университета Райерсона © Snøhetta
Студенческий учебный центр Университета Райерсона © Snøhetta
Студенческий учебный центр Университета Райерсона © Snøhetta
Студенческий учебный центр Университета Райерсона © Snøhetta
Студенческий учебный центр Университета Райерсона © Snøhetta
Студенческий учебный центр Университета Райерсона © Snøhetta
Студенческий учебный центр Университета Райерсона © Snøhetta
Студенческий учебный центр Университета Райерсона © Snøhetta
Студенческий учебный центр Университета Райерсона © Snøhetta
Студенческий учебный центр Университета Райерсона © Snøhetta
Студенческий учебный центр Университета Райерсона © Snøhetta
Студенческий учебный центр Университета Райерсона © Snøhetta
Студенческий учебный центр Университета Райерсона © Snøhetta
Студенческий учебный центр Университета Райерсона © Snøhetta
Студенческий учебный центр Университета Райерсона © Snøhetta
Студенческий учебный центр Университета Райерсона © Snøhetta
Студенческий учебный центр Университета Райерсона © Snøhetta
Студенческий учебный центр Университета Райерсона © Snøhetta