Размещено на портале Архи.ру (www.archi.ru)

15.02.2016

Башни над лесом

Лилия Аронова
Объект:
ЖК PerovSky
Адрес:
Россия, Москва. шоссе Энтузиастов, 88
Архитектор:
Андрей Романов
Екатерина Кузнецова
Мастерская:
ADM
Авторский коллектив:
Архитекторы: Романов А.С., Кузнецова Е.И., Маломуж А.А., Дорошенко Е.А., Заец Б.Н.

У границы Терлецкой дубравы по проекту бюро ADM строится жилой комплекс PerovSky, воплощающий в себе не букву, но дух идеологии квартальности.

ЖК Perovsky. Проект, 2015 © ADM
ЖК Perovsky. Проект, 2015 © ADM

Участок под застройку, на котором компания MR Group возводит новый многофункциональный жилой комплекс, расположен в уникальном для столичных условий природном окружении. Мало того что от близкого шоссе Энтузиастов и плотной застройки жилых микрорайонов Перова он отделен зелёными территориями двух больниц и Дома ветеранов сцены, так еще и практически у самой его восточной границы, буквально в паре минут ходьбы, начинается территория знаменитого Терлецкого парка – памятника ландшафтного искусства с каскадом прудов, старинной дубравой и прочими парковыми радостями, не говоря уже о просторах Измайловского леса, тянущегося с другой стороны шоссе. В таком роскошном с точки зрения экологии и будущих видовых характеристик местоположении есть и еще одно преимущество – архитекторам не пришлось задумываться о том, как вписать проект в городской контекст ввиду полного его, контекста, отсутствия. Один из авторов строящегося комплекса Андрей Романов сравнивает подобные объекты с подводной лодкой, существующей автономно, исключительно по собственным правилам. «Главное, – добавляет он, – чтобы объект был сам по себе целостным и внутренне гармоничным».

Основной идеей, которую Андрей Романов и Екатерина Кузнецова положили в основу проекта, стала тема «своей территории», иными словами – пресловутой квартальности, ведь квартал по своей сути есть не что иное, как некая сомасштабная человеку ячейка городской структуры, внутри которой у её обитателей должно возникнуть ощущение «дома». Понятно, что соорудить такую ячейку проще всего традиционным способом – огородив внутридомовое пространство замкнутым контуром, – но если это невозможно, того же результата можно добиться и с помощью менее очевидных архитектурных приемов. ЖК PerovSky состоит из трёх 23-этажных башен: как ни старайся, традиционный квартал из таких составляющих не построишь. Поэтому архитекторы ADM объединили башни двухэтажным стилобатом. Такой прием отлично себя зарекомендовал: невысокий массив не давит на зрителя, не затеняет двор, но отлично справляется с ролью связующего звена – архитекторы использовали его и в предыдущей своей работе для MR Group, жилом комплексе на Воробьевых горах.

В данном случае сложный в плане объем, то педантично повторяющий прямые линии башен, то вдруг отступающий вглубь параболическим изгибом, не только вмещает в себя всю необходимую инфраструктуру – от супермаркета и кафе до фитнес-центра, – но и служит барьером, который отделяет внутридомовую территорию от внешней, уличной. Через главное лобби стилобата можно войти в один из жилых корпусов; чтобы попасть в два других, придется пересечь двор. Выемка второго входа ведёт в детский сад, рассчитанный не только на жителей комплекса, но и на их соседей. Его прогулочную площадку, расчерченную цветными треугольниками, архитекторы вынесли за пределы двора – она примыкает к внешней стороне стилобата.
ЖК Perovsky.  Главный вход. Проект, 2015 © ADM
ЖК Perovsky. Главный вход. Проект, 2015 © ADM
ЖК Perovsky. Главный вход. Проект, 2015 © ADM
ЖК Perovsky. Главный вход. Проект, 2015 © ADM
ЖК Perovsky.  Двор. Проект, 2015 © ADM
ЖК Perovsky. Двор. Проект, 2015 © ADM

Фасады жилых корпусов, при очевидном стилевом единстве, пластически решены по-разному. Точнее говоря, тема одна, а вариаций несколько. Отчасти это обусловлено различной квартирографией, расположением по сторонам света, а отчасти – желанием придать индивидуальность каждому из высотных параллелепипедов. Для всех фасадов использован клинкерный кирпич, но широкая цветовая гамма этого материала позволила выбрать для каждого корпуса собственный тон, оживленный то более, то менее подчеркнутой пикселизацией, создающей ощущение объема и даже движения – легкая пестрота для глаза комфортнее, чем глухая монотонность. В междуэтажных полосах ригели поставлены вертикально, образуя легкие ненавязчивые фризы, данные намеком, только через рисунок швов облицовки.

Ещё один инструмент организации стены – ритм окон; как и в предыдущих своих проектах, Андрей Романов и Екатерина Кузнецова выстраивают его виртуозно. В одном из корпусов – краснокирпичном – выстроенные вертикальными рядами окна позволяют себе диагональную динамику, созвучную такому же, через этаж, чередованию угловых окон. Регулярный, но подвижный рисунок проёмов облегчает стену, компенсируя ощутимую материальность темно-красного кирпича. Второй корпус светлее, строже и регулярнее, его проемы ощутимо сгущаются к центру фасадов, акцентируя плотность углов. Третий корпус ещё светлее, и его ритм усложнен горизонтальным чередованием, превращающим фасад в шахматный паттерн. Тему поддерживают металлизированные горизонтальные вставки в верхней и нижней частях окон, вертикальные деревянные панели (они встречаются во втором корпусе) и небольшие решетчатые балкончики для кондиционеров.

У стилобата простенки ощутимо тоньше, плоскость остекления больше, его объем распастанный по земле воспринимается как стройный и легкий. Полоса светлого дерева прошивает оба яруса стилобата в верхней части сплошным фризом; она расположена глубже рельефных ребер, но выше плоскостей стекла, подчиняясь тому же эффекту многослойной стены, что и жилые башни. Там, где прямые плоскости фасадов стилобата продолжают линии стен корпусов, они превращены в красно-кирпичную решетку, генетически связанную с терракотовой темой первого корпуса. В углублениях мини-площадей перед входами архитекторы заменяют кирпичные ребра ещё более тонкими белыми – полученный таким образом эффект «надкушенного яблока» подчеркивает открытость входных зон, приглашает внутрь, и в то же время позволяет ощутить пространство площадок как переходное, расположенное уже внутри геометрических контуров параллелепипеда, но ещё снаружи, за прозрачной поверхностью стекла. Кровлю стилобата планируется озеленить, так что вид на неё из окон корпусов не будет нарушать гармонию лесной панорамы вокруг.
ЖК Perovsky. Проект, 2015 © ADM
ЖК Perovsky. Проект, 2015 © ADM
ЖК Perovsky. Фрагмент 1 корпуса. Проект, 2015 © ADM
ЖК Perovsky. Фрагмент 1 корпуса. Проект, 2015 © ADM
ЖК Perovsky. Фрагмент 2 корпуса. Проект, 2015 © ADM
ЖК Perovsky. Фрагмент 2 корпуса. Проект, 2015 © ADM
ЖК Perovsky. Фрагмент 3 корпуса. Проект, 2015 © ADM
ЖК Perovsky. Фрагмент 3 корпуса. Проект, 2015 © ADM
ЖК Perovsky. Фрагмент 3 корпуса. Проект, 2015 © ADM
ЖК Perovsky. Фрагмент 3 корпуса. Проект, 2015 © ADM
ЖК Perovsky. Проект, 2015 © ADM
ЖК Perovsky. Проект, 2015 © ADM
ЖК Perovsky. Вход в детский сад. Проект, 2015 © ADM
ЖК Perovsky. Вход в детский сад. Проект, 2015 © ADM

На чём Андрей Романов и Екатерина Кузнецова никогда не экономят, так это на благоустройстве. И речь не только и не столько о бюджете, сколько об идеях и времени, потраченном на разработку. Ведь помимо выполнения прикладных функций: скамейки – для отдыха, детские площадки – для игры, деревья – для тени, – правильный дизайн придомовых территорий решает и серьёзные макрозадачи. Архитекторы уверены, что даже самый лучший фасад человек не способен воспринимать в отрыве от ландшафтного контекста. «Это вопрос целеполагания, – комментирует Андрей Романов. – Мы хотим сделать среду, в которой человеку должно быть интересно и комфортно, даже если многие детали он воспринимает только на подсознательном уровне».

ЖК PerovSky должен интриговать ещё на подходе – перед главным лобби расположилась живописная аванплощадь с деревьями, круговыми скамейками и концентрическими кругами из разноцветной плитки; такая же, но поменьше, появится и у входа в детский сад. Но, конечно, самый затейливый и тщательно проработанный ландшафтный дизайн достанется жителям комплекса. Во внутреннем дворе предполагается насыпать настоящие холмы (поскольку под двором расположится подземный гараж, для посадки деревьев необходимо будет добавить определенный объем почвы), обустроить детские площадки, не говоря уже о клумбах, газонах и дорожках, которые складываются в картины, подчас напоминающие об образцах классического авангарда. Детям, выросшим в таком дворе, можно только позавидовать – у них будет собственный маленький мир с горами, садами и закоулками; да и взрослые в такой среде найдут, где отдохнуть и на чём остановить взгляд. Насыщенный ландшафт совместно с ограждающим, но лёгким и прозрачным объемом стилобата сформируют на уровне восприятия пешехода фрагмент обустроенного города – комфортное пространство человеческого масштаба. В какой-то степени это можно считать вариантом решения проблемы а-приори бесчеловечного масштаба высотных корпусов: башни отступают на второй план, с улицы воспринимается и «работает» только двухэтажная часть, и хотя поднявшись домой, человек почувствует высоту башен, отсюда она воспринимается иначе – через панораму окружающих парков и города в перспективе. А в наше, всё менее комфортное, время полезны как ландшафтный уют, так и эффект "полёта над городом".
 
ЖК Perovsky. Проект, 2015 © ADM
ЖК Perovsky. Проект, 2015 © ADM
ЖК Perovsky. Детский сад. Проект, 2015 © ADM
ЖК Perovsky. Детский сад. Проект, 2015 © ADM
ЖК Perovsky. Проект, 2015 © ADM
ЖК Perovsky. Проект, 2015 © ADM
ЖК Perovsky.  Детский сад. Проект, 2015 © ADM
ЖК Perovsky. Детский сад. Проект, 2015 © ADM
ЖК PerovSky. Генеральный план. Проект, 2015 © ADM
ЖК PerovSky. Генеральный план. Проект, 2015 © ADM
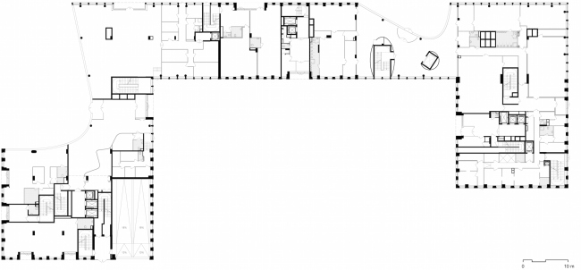
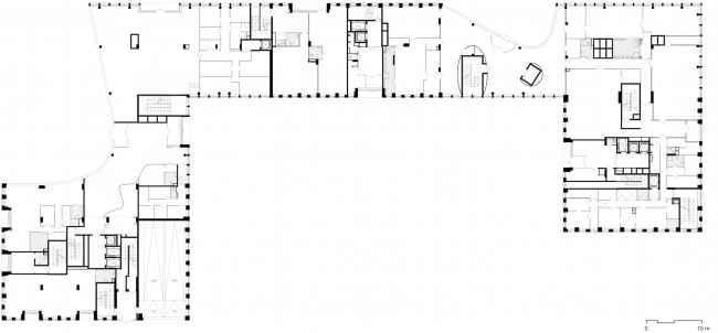
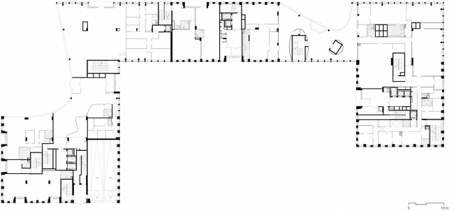
ЖК PerovSky. План 1 этажа. Проект, 2015 © ADM
ЖК PerovSky. План 1 этажа. Проект, 2015 © ADM
ЖК PerovSky. План типового этажа. Проект, 2015 © ADM
ЖК PerovSky. План типового этажа. Проект, 2015 © ADM