Размещено на портале Архи.ру (www.archi.ru)

16.12.2015

«Педагогический сад» на крыше

Инесса Ковалева
Объект:
Школа имени Розалинд Франклин и студенческое общежитие
Адрес:
Франция, None, Иври-сюр-Сен.
Мастерская:
ChartierDalix

Архитекторы Сhartier Dalix завершили вторую школу биоразнообразия в Париже.

Школа имени Розалинд Франклин и студенческое общежитие © Takuji Shimmura
Школа имени Розалинд Франклин и студенческое общежитие © Takuji Shimmura

Почти год назад Архи.ру публиковал эко-школу Сhartier Dalix в столичном пригороде Булонь-Бийанкур, а теперь еще одна во всех смыслах «зеленая» школа авторства тех же архитекторов появилась в другом пригороде Парижа – Иври-сюр-Сен.
 
Школа имени Розалинд Франклин и студенческое общежитие © Takuji Shimmura
Школа имени Розалинд Франклин и студенческое общежитие © Takuji Shimmura

Она расположена в границах ZAC – «зоны координируемого планирования» – Иври-Конфлуанс, одного из крупнейших градостроительных проектов парижской агломерации. Он направлен на то, чтобы включить Иври-сюр-Сен в городские «сети» и повысить там качество урбанизации. Учебный комплекс имени Розалинд Франклин, состоящий из школы биоразнообразия и общежития для студентов и исследователей – один из первых объектов, появившийся в рамках этого амбициозного плана.
 
Школа имени Розалинд Франклин и студенческое общежитие © David Foessel
Школа имени Розалинд Франклин и студенческое общежитие © David Foessel

Участок застройки находится на границе двух масштабов: с одной стороны – открытый ландшафт очистных сооружений по проекту Доминика Перро, а с другой – строящийся жилой квартал, для которого школа и общежитие станут центром притяжения.
 
Школа имени Розалинд Франклин и студенческое общежитие © David Foessel
Школа имени Розалинд Франклин и студенческое общежитие © David Foessel

Здание состоит из трех «полуостровов», которые формируют два внутренних двора с игровыми площадками, обращенными на юг. Сюда же выходят окна всех основных учебных помещений, чтобы обеспечить там достаточный уровень естественной освещенности. Внутреннее пространство решено максимально гибко: светлые просторные коридоры, многофункциональные залы, множество открытых пространств для игр и встреч связаны между собой функционально и визуально.
 
Школа имени Розалинд Франклин и студенческое общежитие © David Foessel
Школа имени Розалинд Франклин и студенческое общежитие © David Foessel

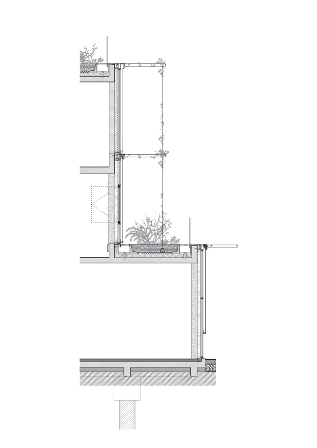
Живописный ландшафт школы сформирован тремя наслаивающимися друг на друга зелеными террасами. На первом уровне в помощь учителям для преподавания тем биоразнообразия организован «педагогический сад», где можно выращивать овощи и травы. Альтернативным пространством для исследования природы в плохую погоду станет большой читальный зал на антресольном этаже над библиотекой, откуда видны все террасы.
 
Школа имени Розалинд Франклин и студенческое общежитие © Takuji Shimmura
Школа имени Розалинд Франклин и студенческое общежитие © Takuji Shimmura

Тонкие металлические ограждения проходят по всему периметру террас и частично вдоль фасадов. Фасады они защищают от солнечного жара, а на террасах служат опорой для вьющихся растений. Также ограждения позволяют отделить пространство школы от расположенных рядом торгового центра и жилых домов.
 
Школа имени Розалинд Франклин и студенческое общежитие © Takuji Shimmura
Школа имени Розалинд Франклин и студенческое общежитие © Takuji Shimmura

Единственная вертикаль комплекса – 9-этажное студенческое общежитие. Оно отнесено к северу от школы, что придает ему определенную независимость. Кроме того, такое местоположение продиктовано желанием архитекторов дать как можно больше солнца учебному комплексу, поэтому корпус общежития поставили так, чтобы оно не нависало над школой и ее дворами.
 
Школа имени Розалинд Франклин и студенческое общежитие © Takuji Shimmura
Школа имени Розалинд Франклин и студенческое общежитие © Takuji Shimmura

Основные принципы планировки общежития – рациональность и компактность. На первом этаже предусмотрены магазины, остальные этажи заняты 131 квартирой-студией. Каждая – площадью 19 м2, рассчитана на одного жильца и содержит все необходимое: комнату в 10 м2, прихожую и санузел. Корпус значительно выше окружающей его застройки, поэтому все его помещения хорошо освещены и из них открывается прекрасный вид на Сену и город.
 
Школа имени Розалинд Франклин и студенческое общежитие © Takuji Shimmura
Школа имени Розалинд Франклин и студенческое общежитие © Takuji Shimmura

Фасад общежития выполнен из легких металлических перфорированных панелей. Они защищают интерьеры от взглядов с улицы и от излишних солнечных лучей. Часть из них установлена стационарно, остальные – скользящие.
 
Школа имени Розалинд Франклин и студенческое общежитие © Takuji Shimmura
Школа имени Розалинд Франклин и студенческое общежитие © Takuji Shimmura

Грамотный подход архитекторов позволил максимально интегрировать учебный комплекс в городскую среду: проницаемость первых этажей подчеркивает ощущение открытости центра жителям прилегающих кварталов. Общая площадь комплекса – 8 650 м2, бюджет – 19,7 млн евро.
Школа имени Розалинд Франклин и студенческое общежитие © David Foessel
Школа имени Розалинд Франклин и студенческое общежитие © David Foessel
Школа имени Розалинд Франклин и студенческое общежитие © David Foessel
Школа имени Розалинд Франклин и студенческое общежитие © David Foessel
Школа имени Розалинд Франклин и студенческое общежитие © David Foessel
Школа имени Розалинд Франклин и студенческое общежитие © David Foessel
Школа имени Розалинд Франклин и студенческое общежитие © Takuji Shimmura
Школа имени Розалинд Франклин и студенческое общежитие © Takuji Shimmura
Школа имени Розалинд Франклин и студенческое общежитие © David Foessel
Школа имени Розалинд Франклин и студенческое общежитие © David Foessel
Школа имени Розалинд Франклин и студенческое общежитие © David Foessel
Школа имени Розалинд Франклин и студенческое общежитие © David Foessel
Школа имени Розалинд Франклин и студенческое общежитие © Takuji Shimmura
Школа имени Розалинд Франклин и студенческое общежитие © Takuji Shimmura
Школа имени Розалинд Франклин и студенческое общежитие © Takuji Shimmura
Школа имени Розалинд Франклин и студенческое общежитие © Takuji Shimmura
Школа имени Розалинд Франклин и студенческое общежитие © Takuji Shimmura
Школа имени Розалинд Франклин и студенческое общежитие © Takuji Shimmura
Школа имени Розалинд Франклин и студенческое общежитие © David Foessel
Школа имени Розалинд Франклин и студенческое общежитие © David Foessel
Школа имени Розалинд Франклин и студенческое общежитие © Takuji Shimmura
Школа имени Розалинд Франклин и студенческое общежитие © Takuji Shimmura
Школа имени Розалинд Франклин и студенческое общежитие © Takuji Shimmura
Школа имени Розалинд Франклин и студенческое общежитие © Takuji Shimmura
Школа имени Розалинд Франклин и студенческое общежитие © Takuji Shimmura
Школа имени Розалинд Франклин и студенческое общежитие © Takuji Shimmura
Школа имени Розалинд Франклин и студенческое общежитие © Takuji Shimmura
Школа имени Розалинд Франклин и студенческое общежитие © Takuji Shimmura
Школа имени Розалинд Франклин и студенческое общежитие © David Foessel
Школа имени Розалинд Франклин и студенческое общежитие © David Foessel
Школа имени Розалинд Франклин и студенческое общежитие © David Foessel
Школа имени Розалинд Франклин и студенческое общежитие © David Foessel
Школа имени Розалинд Франклин и студенческое общежитие © David Foessel
Школа имени Розалинд Франклин и студенческое общежитие © David Foessel
Школа имени Розалинд Франклин и студенческое общежитие © David Foessel
Школа имени Розалинд Франклин и студенческое общежитие © David Foessel
Школа имени Розалинд Франклин и студенческое общежитие © Takuji Shimmura
Школа имени Розалинд Франклин и студенческое общежитие © Takuji Shimmura
Школа имени Розалинд Франклин и студенческое общежитие © Takuji Shimmura
Школа имени Розалинд Франклин и студенческое общежитие © Takuji Shimmura
Школа имени Розалинд Франклин и студенческое общежитие © Takuji Shimmura
Школа имени Розалинд Франклин и студенческое общежитие © Takuji Shimmura
Школа имени Розалинд Франклин и студенческое общежитие © Takuji Shimmura
Школа имени Розалинд Франклин и студенческое общежитие © Takuji Shimmura
Школа имени Розалинд Франклин и студенческое общежитие © David Foessel
Школа имени Розалинд Франклин и студенческое общежитие © David Foessel
Школа имени Розалинд Франклин и студенческое общежитие © Takuji Shimmura
Школа имени Розалинд Франклин и студенческое общежитие © Takuji Shimmura
Школа имени Розалинд Франклин и студенческое общежитие © Takuji Shimmura
Школа имени Розалинд Франклин и студенческое общежитие © Takuji Shimmura
Школа имени Розалинд Франклин и студенческое общежитие © Takuji Shimmura
Школа имени Розалинд Франклин и студенческое общежитие © Takuji Shimmura
Школа имени Розалинд Франклин и студенческое общежитие © Takuji Shimmura
Школа имени Розалинд Франклин и студенческое общежитие © Takuji Shimmura
Школа имени Розалинд Франклин и студенческое общежитие © Takuji Shimmura
Школа имени Розалинд Франклин и студенческое общежитие © Takuji Shimmura
Школа имени Розалинд Франклин и студенческое общежитие © Takuji Shimmura
Школа имени Розалинд Франклин и студенческое общежитие © Takuji Shimmura
Школа имени Розалинд Франклин и студенческое общежитие © Chartier Dalix Architectes
Школа имени Розалинд Франклин и студенческое общежитие © Chartier Dalix Architectes
Школа имени Розалинд Франклин и студенческое общежитие © Chartier Dalix Architectes
Школа имени Розалинд Франклин и студенческое общежитие © Chartier Dalix Architectes
Школа имени Розалинд Франклин и студенческое общежитие © Chartier Dalix Architectes
Школа имени Розалинд Франклин и студенческое общежитие © Chartier Dalix Architectes
Школа имени Розалинд Франклин и студенческое общежитие © Chartier Dalix Architectes
Школа имени Розалинд Франклин и студенческое общежитие © Chartier Dalix Architectes
Школа имени Розалинд Франклин и студенческое общежитие © Chartier Dalix Architectes
Школа имени Розалинд Франклин и студенческое общежитие © Chartier Dalix Architectes
Школа имени Розалинд Франклин и студенческое общежитие © Chartier Dalix Architectes
Школа имени Розалинд Франклин и студенческое общежитие © Chartier Dalix Architectes
Школа имени Розалинд Франклин и студенческое общежитие © Chartier Dalix Architectes
Школа имени Розалинд Франклин и студенческое общежитие © Chartier Dalix Architectes