Размещено на портале Архи.ру (www.archi.ru)

09.12.2015

Белая гармоника

Нина Фролова
Объект:
Университет имени Антона Брукнера
Адрес:
Австрия, None, Линц.
Мастерская:
Architekturbüro 1

Новое здание Университета имени Антона Брукнера в Линце по проекту Architekturbüro 1.

Университет имени Антона Брукнера © Simon Bauer
Университет имени Антона Брукнера © Simon Bauer

Частный университет имени Антона Брукнера (великий композитор родился в пригороде Линца) дает образование в области музыки, драматического театра и танца. Его история началась более 200 лет назад, с открывшейся в 1799 музыкальной школы, однако до последнего времени его отделения находились в разных частях города. Теперь же все они объединены в новом корпусе, что должно способствовать как эффективности учебного процесса, так и «перекрестному вдохновению» студентов и преподавателей разных творческих специальностей.
 
Университет имени Антона Брукнера © Simon Bauer
Университет имени Антона Брукнера © Simon Bauer

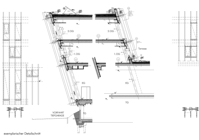
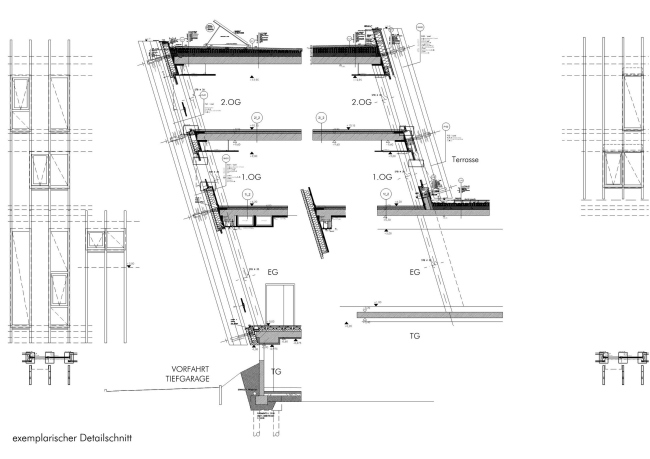
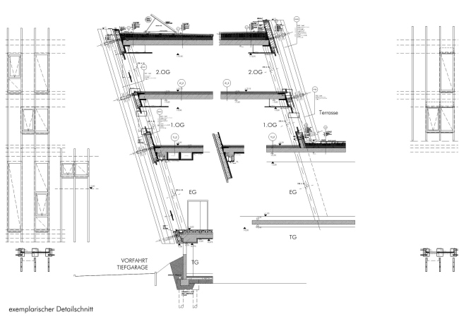
Постройка расположена у подножия холма Пёстлингберг, в парке бывшего замка Хаген. Архитекторы постарались вписать сооружение в природную среду, для чего снабдили его фасадом из ламелей, скрадывающим его значительные габариты (площадь трехэтажной постройки – 13 700 м2). Эти ламели сразу вызывают различные музыкальные ассоциации – от аккордеона до арфы, не говоря уже о занавесе. Отдельного упоминания заслуживает наклонная стеклянная стена вестибюля и открытая парадная лестница, которая может служить зрительскими местами для концертов на открытом воздухе.
 
Университет имени Антона Брукнера © Matthias Seyfert
Университет имени Антона Брукнера © Matthias Seyfert

Внутри – почти 100 учебных помещений, не считая 10 залов (три для драматического театра, четыре для танца и три для музыки), а также концертного зала на 325 зрителей, органного зала, зала камерной музыки и зала-студии для танца и драмы (каждый из трех вмещает 70–140 зрителей). В здании 220 преподавателей учат 850 студентов, однако вместимость подземного гаража невелика: из соображений экономии вместо двух ярусов автомобилям отвели лишь один, на 131 машиноместо.
Университет имени Антона Брукнера © Simon Bauer
Университет имени Антона Брукнера © Simon Bauer
Университет имени Антона Брукнера © Simon Bauer
Университет имени Антона Брукнера © Simon Bauer
Университет имени Антона Брукнера © Simon Bauer
Университет имени Антона Брукнера © Simon Bauer
Университет имени Антона Брукнера © Simon Bauer
Университет имени Антона Брукнера © Simon Bauer
Университет имени Антона Брукнера © Simon Bauer
Университет имени Антона Брукнера © Simon Bauer
Университет имени Антона Брукнера © Simon Bauer
Университет имени Антона Брукнера © Simon Bauer
Университет имени Антона Брукнера © Simon Bauer
Университет имени Антона Брукнера © Simon Bauer
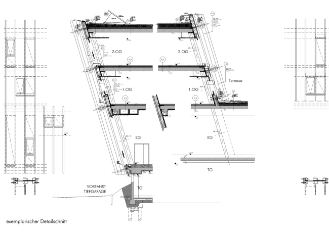
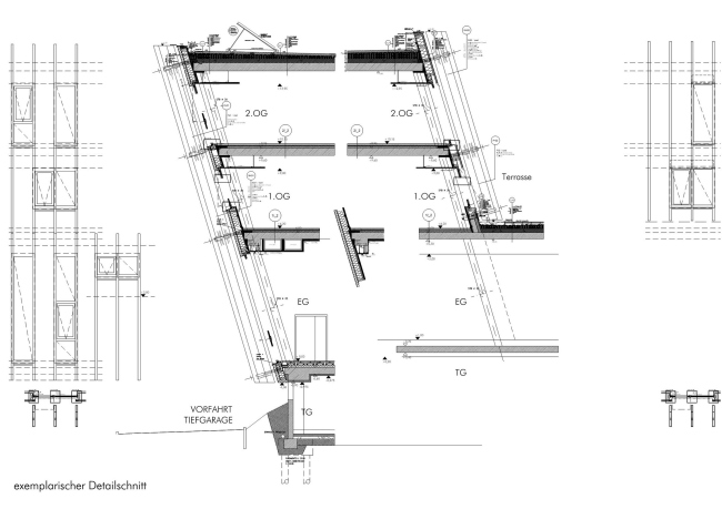
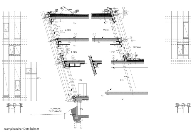
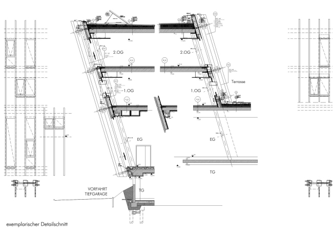
Университет имени Антона Брукнера © ARCHITEKTUBUERO 1 ZT GmbH.
Университет имени Антона Брукнера © ARCHITEKTUBUERO 1 ZT GmbH.
Университет имени Антона Брукнера © ARCHITEKTUBUERO 1 ZT GmbH.
Университет имени Антона Брукнера © ARCHITEKTUBUERO 1 ZT GmbH.
Университет имени Антона Брукнера © ARCHITEKTUBUERO 1 ZT GmbH.
Университет имени Антона Брукнера © ARCHITEKTUBUERO 1 ZT GmbH.
Университет имени Антона Брукнера © ARCHITEKTUBUERO 1 ZT GmbH.
Университет имени Антона Брукнера © ARCHITEKTUBUERO 1 ZT GmbH.
Университет имени Антона Брукнера © ARCHITEKTUBUERO 1 ZT GmbH.
Университет имени Антона Брукнера © ARCHITEKTUBUERO 1 ZT GmbH.
Университет имени Антона Брукнера © ARCHITEKTUBUERO 1 ZT GmbH.
Университет имени Антона Брукнера © ARCHITEKTUBUERO 1 ZT GmbH.
Университет имени Антона Брукнера © ARCHITEKTUBUERO 1 ZT GmbH.
Университет имени Антона Брукнера © ARCHITEKTUBUERO 1 ZT GmbH.
Университет имени Антона Брукнера © ARCHITEKTUBUERO 1 ZT GmbH.
Университет имени Антона Брукнера © ARCHITEKTUBUERO 1 ZT GmbH.
Университет имени Антона Брукнера © ARCHITEKTUBUERO 1 ZT GmbH.
Университет имени Антона Брукнера © ARCHITEKTUBUERO 1 ZT GmbH.
Университет имени Антона Брукнера © ARCHITEKTUBUERO 1 ZT GmbH.
Университет имени Антона Брукнера © ARCHITEKTUBUERO 1 ZT GmbH.