Размещено на портале Архи.ру (www.archi.ru)

03.03.2016

Два сердца в одном теле

Анна Старостина
Объект:
Научно-технический центр в Сколково
Адрес:
Россия, Москва. д. Сколково
Архитектор:
Борис Левянт
Мастерская:
ABD architects
Авторский коллектив:
Концепция, стадия ПП – ABD architects
Руководитель: Б. Левянт
Зам.рук-ля: Б. Стучебрюков
Главные архитекторы проекта: И. Левянт, Д. Спивак
Директор по управлению проектами: А. Корзенкова
Главный инженер проекта: В. Лагунов

Генпроектировщик, стадия РД – Aurora Group

В квартале D4 иннограда Сколково заложен первый камень в основание штаб-квартиры и исследовательского центра компании «ТМК».

Научно-технический центр в Сколково
Научно-технический центр в Сколково
© ABD architects

Вслед за архитекторами жилых кластеров и другие участники самого масштабного российского проекта последних лет пытаются «играть в тетрис», используя в качестве поля территорию экспериментального научно-технического центра. Создавая исследовательский центр для одного из крупнейших производителей труб, ABD architects оказались перед непростой задачей: на довольно узком и протяженном участке необходимо было разместить и офисный, и промышленный объемы. В результате низкий и вытянутый прямоугольный цех, в котором тестируется продукция, «обнимает» семиэтажная, Г-образная рабочая зона – две очень узнаваемые фигуры из знаменитой, инновационной для своего времени игры.

Участок под застройку, площадью чуть более 1 га, расположен в зоне D4. Он зажат между двумя главными транспортными артериями будущего иннограда: так называемым Парквеем и Сколковским бульваром. Именно на последний, центральный, и «раскрывается» здание. С третьей стороны запланирована гостевая парковка в виде гигантской «шайбы», более точной информации о ней пока нет. Напротив ещё одного протяженного фасада проектируется офисный центр, но его визуальные и планировочные характеристики пока также не определены. Окружающая среда мало «помогала» архитекторам, ориентироваться можно было лишь на общие, довольно жестко сформулированные нормативы по строительству на территории Сколково и технологические потребности заказчика.
Научно-технический центр в Сколково. Общий вид со стороны бульвара
Научно-технический центр в Сколково. Общий вид со стороны бульвара
© ABD architects
Научно-технический центр в Сколково. Ситуационный план
Научно-технический центр в Сколково. Ситуационный план
© ABD architects
Научно-технический центр в Сколково. Схема планировочной организации земельного участка
Научно-технический центр в Сколково. Схема планировочной организации земельного участка
© ABD architects
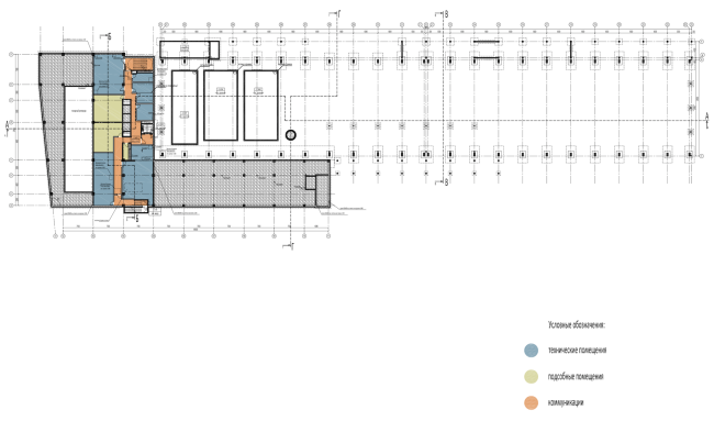
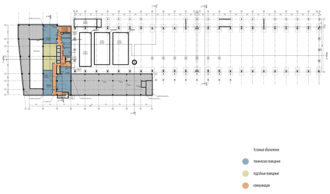
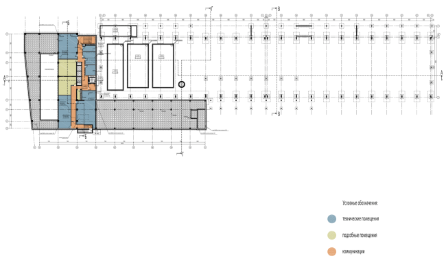
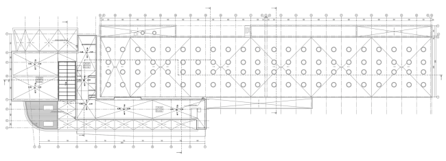
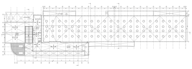
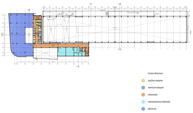
Научно-технический центр в Сколково. План -1 этажа
Научно-технический центр в Сколково. План -1 этажа
© ABD architects

По мнению главного архитектора проекта Ильи Левянта, именно типология стала самым большим вызовом для всех участников. «Мы проектировали здание для конкретного заказчика, и оно должно было отвечать его технологическим требованиям, – поясняет архитектор. – Здесь нам помог опыт компании «ТМК», у которой уже есть два подобных центра. Во всяком случае, у нас не было недостатка в информации».

«Узкий и длинный участок не позволял создать два отдельных здания, однозначно отделив офисную часть от производственной, – продолжает Илья Левянт, – и возник некий компромиссный вариант: каждая часть имеет собственный фундамент, каждая спроектирована по своим нормативам, но композиционно они объединены и связаны длинным коммуникационным коридором. А чтобы вибрации четырех установок для испытания образцов труб (каждая также на своем фундаменте) не мешали работе сотрудников, пришлось сделать специальный деформационный шов».
Научно-технический центр в Сколково. Южный фасад
Научно-технический центр в Сколково. Южный фасад
© ABD architects

Но научно-исследовательские лаборатории расположили всё же в офисной части. В целом она устроена как обычный офис класса А. Застекленный атриум во всю высоту здания расположен в центре: он собирает вокруг себя все помещения и связывает их с вестибюлем. Такое решение позволило еще и доставить естественный свет внутрь, обеспечив тем самым возможность максимально гибко зонировать рабочее пространство. Обусловленное функцией внутреннее устройство нашло отражение в композиции фасадов: скруглённый главный угол на первом этаже логично занимает шоу-рум; заметный выступ на уровне второго этажа отмечает присутствие вместительного двухэтажного конференц-зала, наконец, седьмой, верхний этаж, также с выступающей застекленной частью, отведен под VIP-зону с наиболее выгодными панорамными видами во все стороны. Запланирован и выход на благоустроенную, озелененную крышу с деревянным настилом, оборудованную для неформальных переговоров на высшем уровне.

Функциональные различия двух частей здания находят точное отражение и во внешней отделке. Единый объем испытательного центра решен довольно жестко. Он имеет двухслойный фасад, где в качестве внешних панелей используются алюминиевые просечно-вытяжные листы. Никаких оконных проемов в этой сплошной «решетке» не предусмотрено, а естественный свет поступает внутрь лишь через особые, круглые и плоские фонари в крыше – любопытный и довольно неожиданный «кивок» архитекторов в сторону библиотеки Алвара Аалто в Выборге. Административный блок имеет также двухслойный вентилируемый фасад, но верхняя оболочка привычно стеклянная, со встроенными элементами светодиодной подсветки и специальной защитой от ультрафиолета на южной и западной сторонах здания.
Научно-технический центр в Сколково
Научно-технический центр в Сколково
© ABD architects
Научно-технический центр в Сколково. Фасады
Научно-технический центр в Сколково. Фасады
© ABD architects
Научно-технический центр в Сколково. Фасады
Научно-технический центр в Сколково. Фасады
© ABD architects
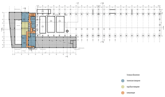
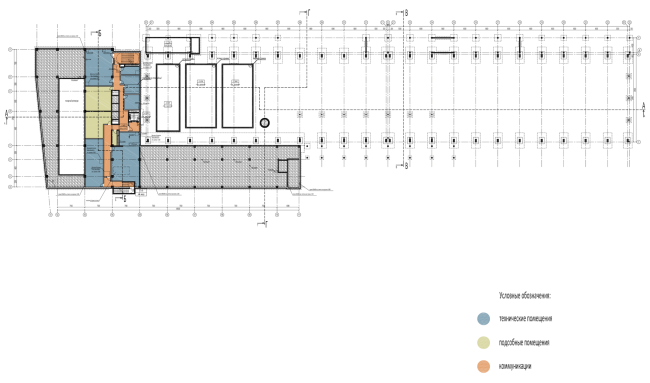
Научно-технический центр в Сколково. План 1 этажа
Научно-технический центр в Сколково. План 1 этажа
© ABD architects
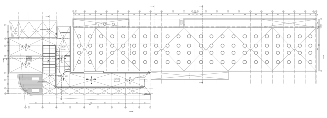
Научно-технический центр в Сколково. План кровли
Научно-технический центр в Сколково. План кровли
© ABD architects

В соответствии с требованиями руководства иннограда постройка получит экологический сертификат LEED: кроме обслуживаемых вентилируемых фасадов и защиты от солнца предусмотрена система сбора дождевой воды, повышена энергоэффективность, на крыше использовано специальное покрытие, защищающее от нагрева. Архитекторам пришлось также отдельно разработать и согласовать варианты доставки образцов труб для испытаний, так как на территории Сколково запрещено движение любого автотранспорта, ведь перемещаться здесь можно только на велосипедах и электромобилях.

Строительство исследовательского центра «ТМК» планируется завершить к началу 2017 года. 
Научно-технический центр в Сколково. Южный фасад
Научно-технический центр в Сколково. Южный фасад
© ABD architects
Научно-технический центр в Сколково. Северный фасад
Научно-технический центр в Сколково. Северный фасад
© ABD architects
Научно-технический центр в Сколково. Восточный и западный фасады
Научно-технический центр в Сколково. Восточный и западный фасады
© ABD architects
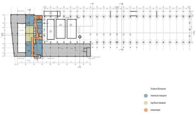
Научно-технический центр в Сколково. План 2 этажа
Научно-технический центр в Сколково. План 2 этажа
© ABD architects
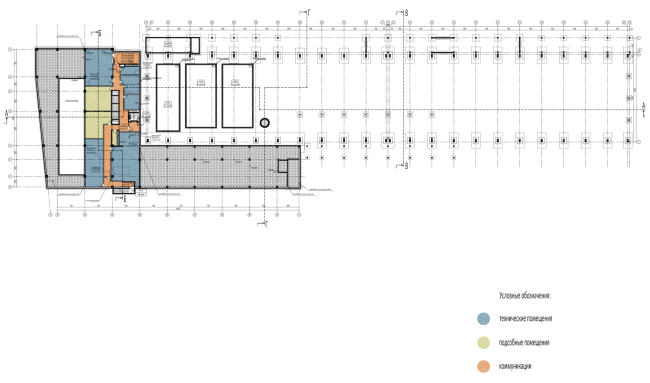
Научно-технический центр в Сколково. План 3 этажа
Научно-технический центр в Сколково. План 3 этажа
© ABD architects
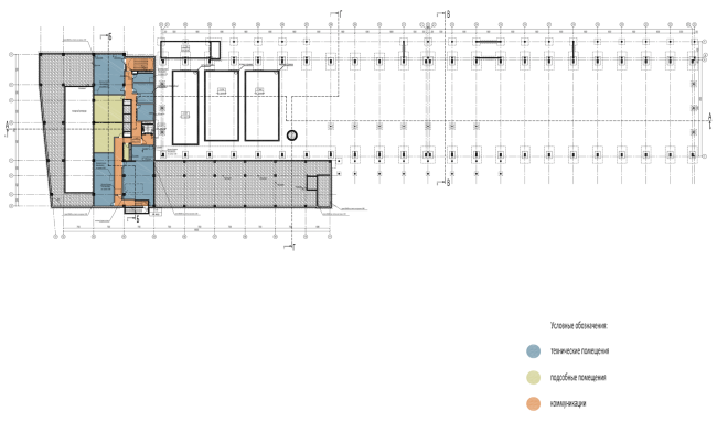
Научно-технический центр в Сколково. План типового (4-5) этажа
Научно-технический центр в Сколково. План типового (4-5) этажа
© ABD architects
Научно-технический центр в Сколково. Разрез
Научно-технический центр в Сколково. Разрез
© ABD architects
Научно-технический центр в Сколково. Разрезы
Научно-технический центр в Сколково. Разрезы
© ABD architects
Научно-технический центр в Сколково. Схема движения грузового транспорта
Научно-технический центр в Сколково. Схема движения грузового транспорта
© ABD architects
Научно-технический центр в Сколково. Макет
Научно-технический центр в Сколково. Макет
© ABD architects