Размещено на портале Архи.ру (www.archi.ru)

30.11.2015

Без коридоров

Нина Фролова
Объект:
Общежитие для бездомных на улице Маунт-Плезант
Адрес:
Великобритания, None, Лондон.

Общежитие для бездомных на улице Маунт-Плезант в Лондоне по проекту бюро Питера Барбера.

Общежитие для бездомных на улице Маунт-Плезант © Morley von Sternberg
Общежитие для бездомных на улице Маунт-Плезант © Morley von Sternberg

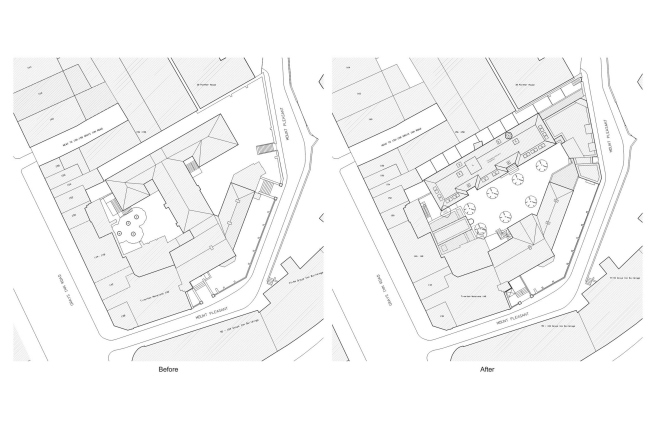
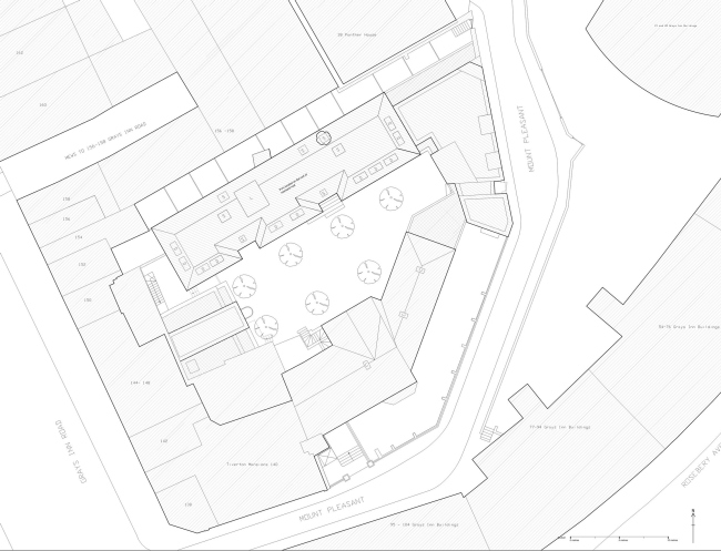
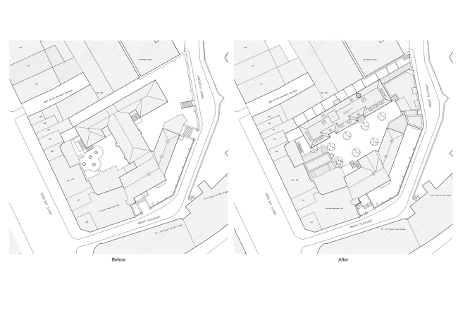
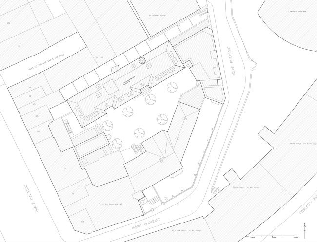
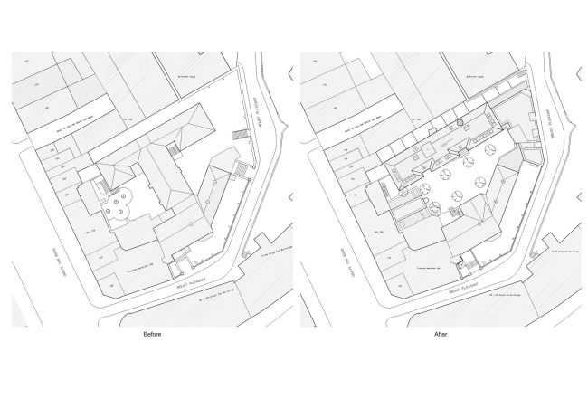
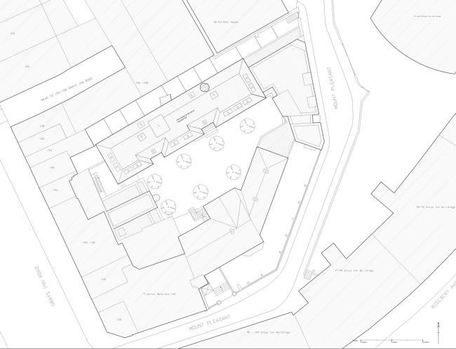
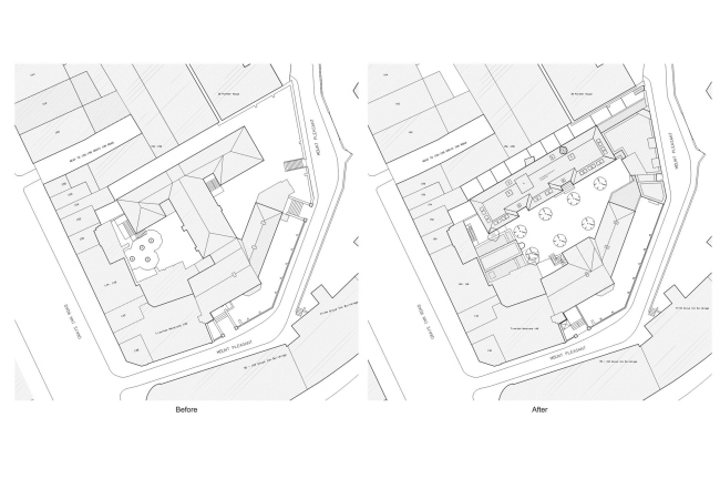
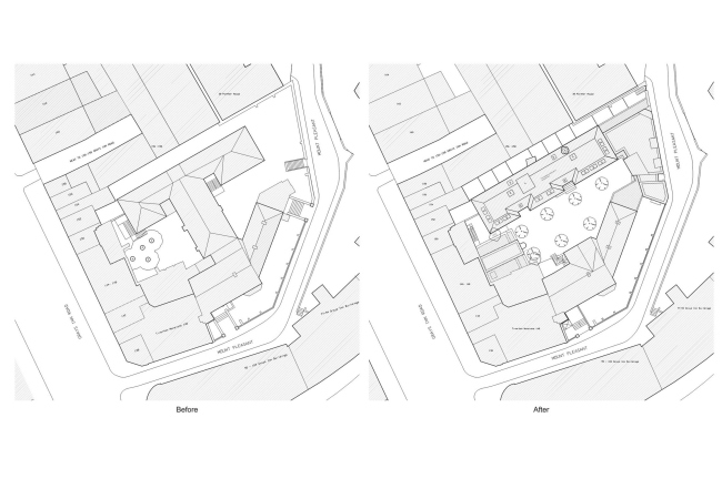
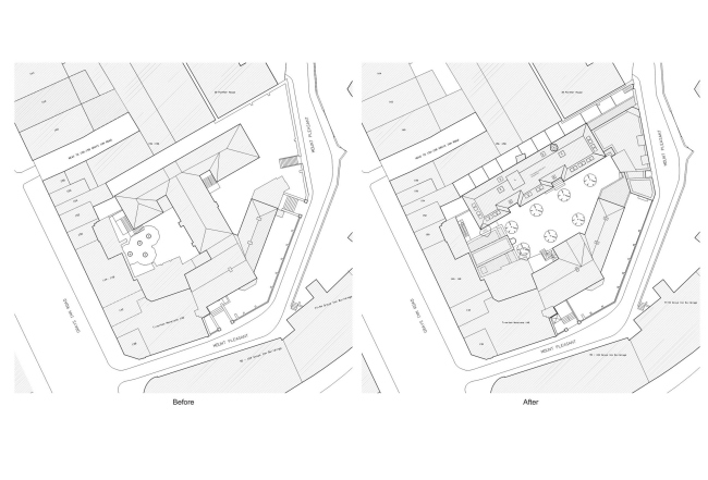
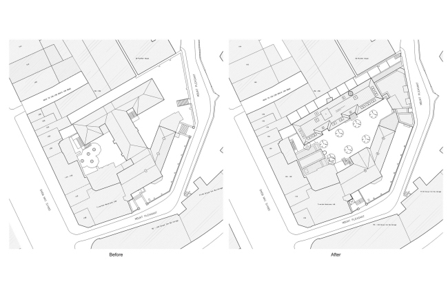
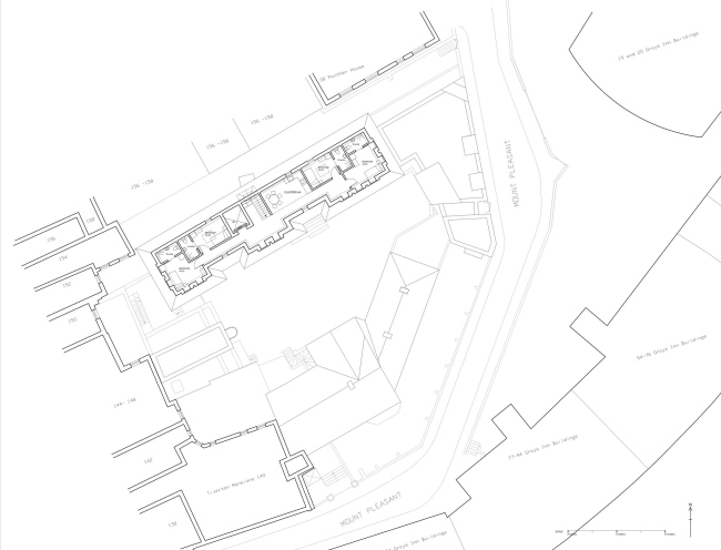
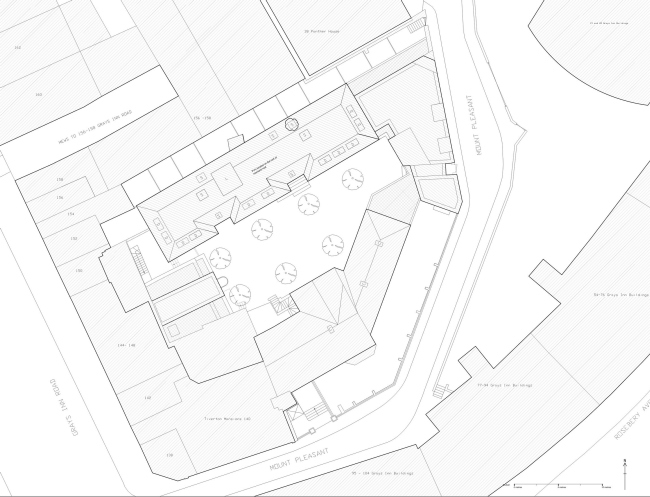
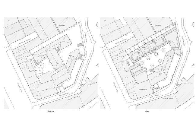
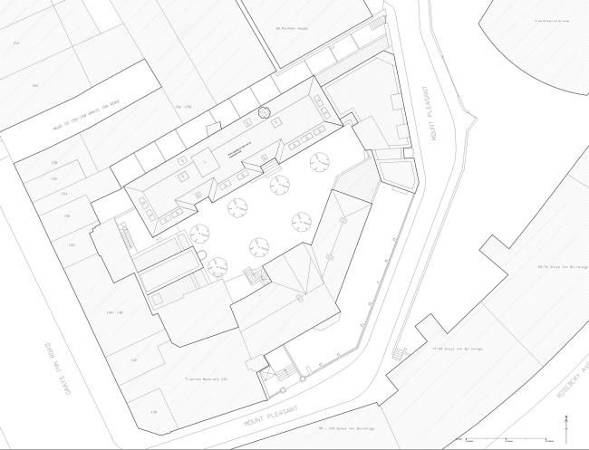
Общежитие, построенное в рамках 15-летнего плана района Кэмден по строительству новых школ, жилья и социальных объектов – это перестроенный комплекс того же назначения начала XX века. Он не имел статус памятника, поэтому архитекторы имели право снести его, однако Питер Барбер посчитал такой подход расточительным и пошел по пути реконструкции.
 
Общежитие для бездомных на улице Маунт-Плезант © Morley von Sternberg
Общежитие для бездомных на улице Маунт-Плезант © Morley von Sternberg

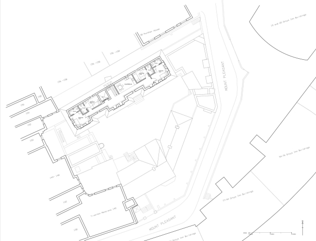
Речь идет о районе исторической застройки с нерегулярным планом, и Маунт-Плезант – узкая и кривая улочка. Бюро Барбера известно своей тонкой работой с контекстом, поэтому перестройка была выполнена c сохранением камерного масштаба и использованием традиционных материалов, в «местном лондонском стиле» (London Vernacular). Красный и желтый кирпич старой части был дополнен желтым кирпичом новых корпусов, обращенная на улицу часть получила фасад из белой штукатурки, характерный для соседних зданий.
 
Общежитие для бездомных на улице Маунт-Плезант © Morley von Sternberg
Общежитие для бездомных на улице Маунт-Плезант © Morley von Sternberg

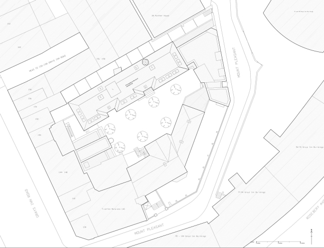
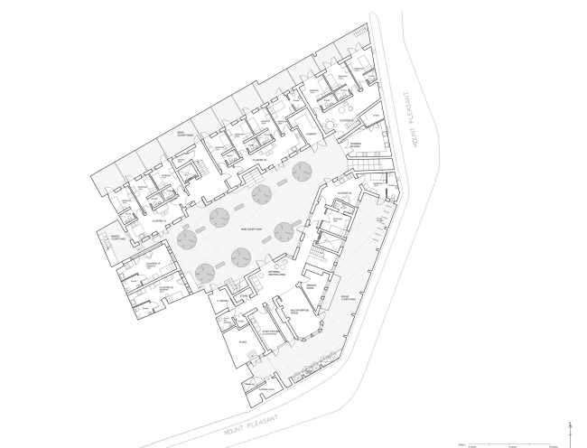
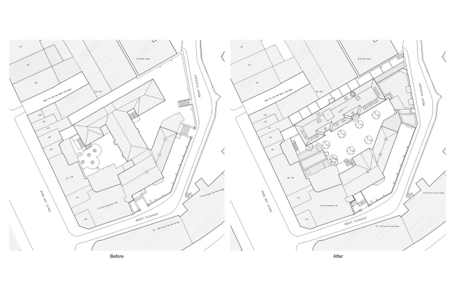
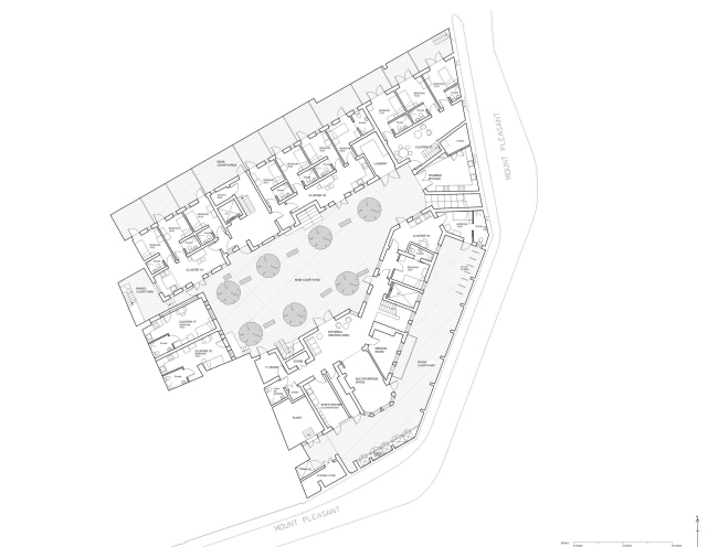
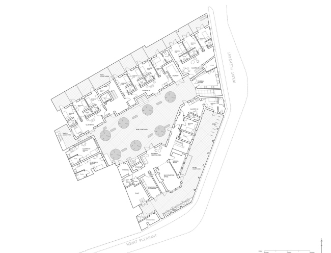
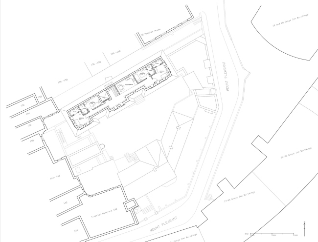
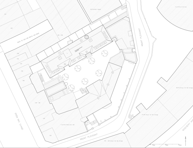
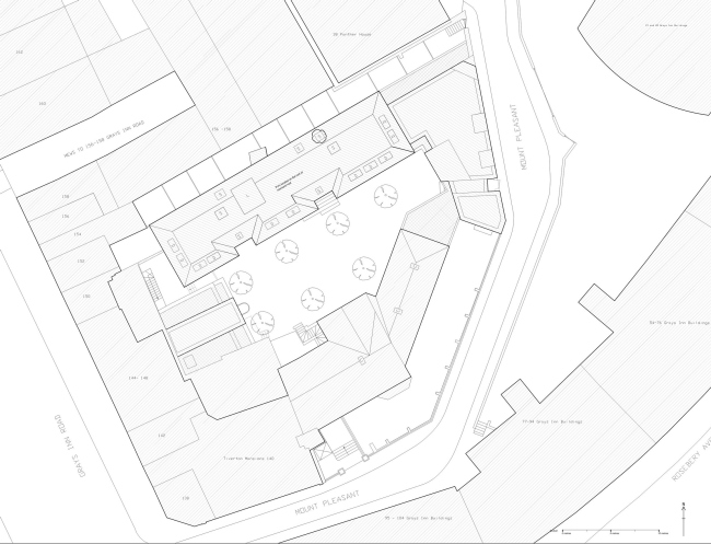
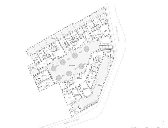
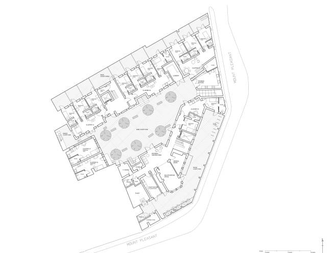
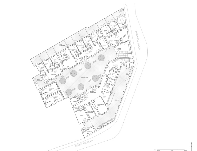
Викторианская постройка имела Н-образный план, и множество коридоров в интерьере производили тягостное впечатление, напоминая «тамбуры». Архитекторы, в портфолио которых преобладают социальные проекты – подобные общежития для незащищенных слоев населения, доступное жилье, образовательные центры для безработных и т.д. – постарались избежать коридоров вовсе, а вместе с ними – атмосферы «учреждения» вообще. Вместо них главным связующим пространством стал внутренний двор (ради него снесли «перекладину» Н), куда посетители попадают через главный вход с улицы. Он ниже уровня улицы на один этаж, там расставлены скамьи, посажены деревья, он защищен от ветра и открыт солнечным лучам. Помимо прочего, он служит для незапланированных встреч сотрудников и обитателей общежития: ведь на назначенную встречу последние могут и не прийти, учитывая их подчас тяжелое психологическое состояние. Двор, как и здание в целом, обитатели уже оценили и рассказывают архитекторам, что им нравится сидеть там на солнце или участвовать в занятиях ИЗО.
 
Общежитие для бездомных на улице Маунт-Плезант © Morley von Sternberg
Общежитие для бездомных на улице Маунт-Плезант © Morley von Sternberg

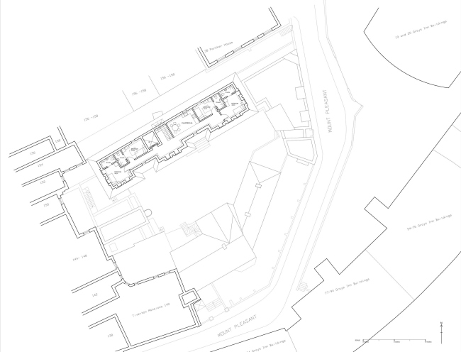
Во двор выходят прачечная, кухня, общие комнаты. Часть из 52 одноместных комнат обращена и во двор, и на улицу, но преобладают окна «в город». Все спальни снабжены собственными ванными комнатами и объединены в «кластеры» с одной общей комнатой. Однако есть жилые помещения более «приватные», есть рассчитанные на больший контакт с соседями. Предусмотрены комнаты и для тех, кому может быть сложно передвигаться самостоятельно.
 
Общежитие для бездомных на улице Маунт-Плезант © Morley von Sternberg
Общежитие для бездомных на улице Маунт-Плезант © Morley von Sternberg

14 комнат предназначены для 2-месячного «аттестационного» пребывания, 34 рассчитаны на период в 1–1,5 года, оставшиеся – на экстренные случаи. Значительная часть обитателей комплекса на Маунт-Плезант страдала или страдает от алкоголизма и наркомании, немало имеют психические заболевания, большинство – безработные. Во время жизни там сотрудники социальных служб помогают жильцам справиться с проблемами со здоровьем, найти жилье, получить новое образование и просто вновь освоить необходимые для нормальной жизни навыки. Безопасное и удобное пространство общежития призвано помочь в этом сложном процессе.
Общежитие для бездомных на улице Маунт-Плезант © Morley von Sternberg
Общежитие для бездомных на улице Маунт-Плезант © Morley von Sternberg
Общежитие для бездомных на улице Маунт-Плезант © Morley von Sternberg
Общежитие для бездомных на улице Маунт-Плезант © Morley von Sternberg
Общежитие для бездомных на улице Маунт-Плезант © Peter Barber Architects
Общежитие для бездомных на улице Маунт-Плезант © Peter Barber Architects
Общежитие для бездомных на улице Маунт-Плезант © Peter Barber Architects
Общежитие для бездомных на улице Маунт-Плезант © Peter Barber Architects
Общежитие для бездомных на улице Маунт-Плезант © Peter Barber Architects
Общежитие для бездомных на улице Маунт-Плезант © Peter Barber Architects
Общежитие для бездомных на улице Маунт-Плезант © Peter Barber Architects
Общежитие для бездомных на улице Маунт-Плезант © Peter Barber Architects
Общежитие для бездомных на улице Маунт-Плезант © Peter Barber Architects
Общежитие для бездомных на улице Маунт-Плезант © Peter Barber Architects
Общежитие для бездомных на улице Маунт-Плезант © Peter Barber Architects
Общежитие для бездомных на улице Маунт-Плезант © Peter Barber Architects
Общежитие для бездомных на улице Маунт-Плезант © Peter Barber Architects
Общежитие для бездомных на улице Маунт-Плезант © Peter Barber Architects
Общежитие для бездомных на улице Маунт-Плезант © Peter Barber Architects
Общежитие для бездомных на улице Маунт-Плезант © Peter Barber Architects