Размещено на портале Архи.ру (www.archi.ru)

26.11.2015

«Вертикальный ангар»

Нина Фролова
Объект:
MRI – научный центр нового поколения
Адрес:
Франция, None, Кан.
Мастерская:
Bruther

В Нормандии открылся «Дом исследований и воображения» – научный центр нового поколения по проекту бюро Bruther.

MRI – научный центр нового поколения © Filip Dujardin
MRI – научный центр нового поколения © Filip Dujardin

Центр MRI (Maison de la Recherche et de l'Imagination) располагается в Кане, на «полуострове» между рекой Орн и каналом, соединяющим город с Ла-Маншем. Эта территория сейчас реконструируется, в последние годы там появились концертный зал для «актуальной» музыки Cargö и новое здание Высшей школы искусств и медиа Кан-Шербур (непосредственно рядом с ними и построен MRI), через небольшой канал находится новый Дворец правосудия и строится по проекту ОМА региональная библиотека мультимедиа.
 
MRI – научный центр нового поколения © Julien Hourcade
MRI – научный центр нового поколения © Julien Hourcade

Архитекторы Bruther столкнулись с проблемой отсутствия контекста: на «полуострове» город фактически создается заново, и пока частично сформированное окружение состоит из серии объектов-достопримечательностей. Выходом стала идея «столкновения», «победительной позиции»: MRI не сливается с местностью, а заявляет свое право на важную роль в новом районе. Однако геометрия его плана и выбор материалов (мембрана ETFE, бетон, сталь и т.д.) связаны с градостроительной ситуацией, в частности, с промышленным прошлым «полуострова».
 
MRI – научный центр нового поколения © Filip Dujardin
MRI – научный центр нового поколения © Filip Dujardin

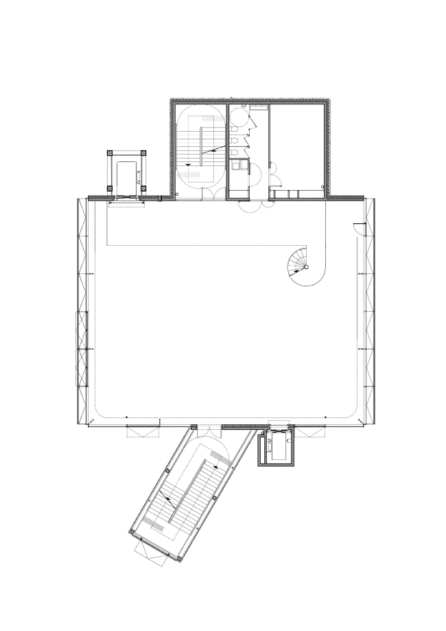
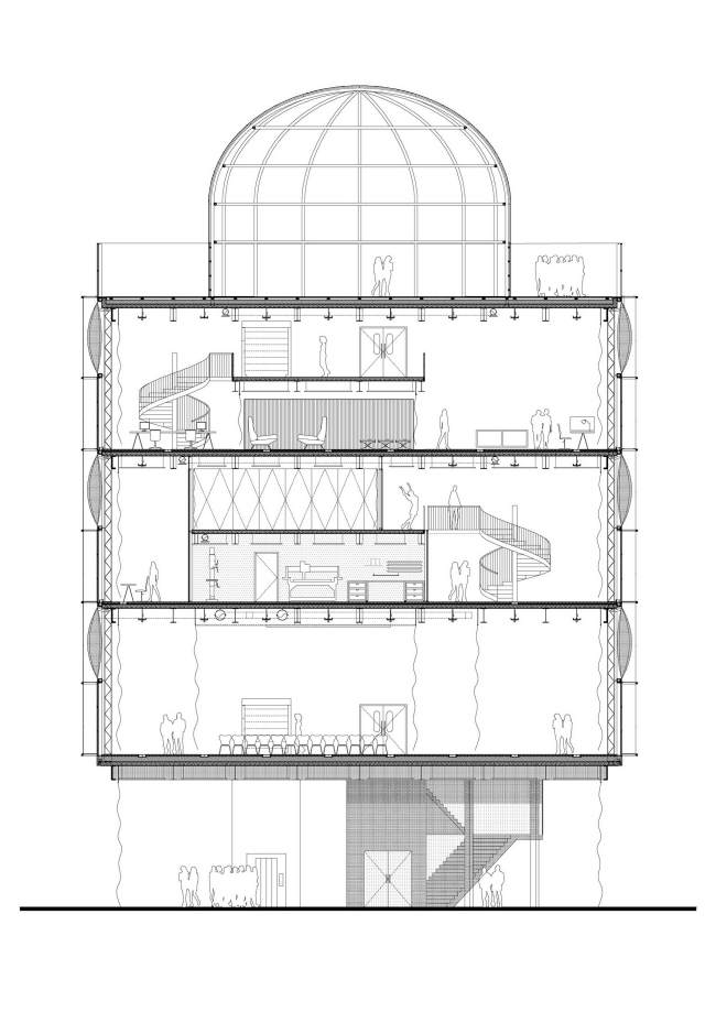
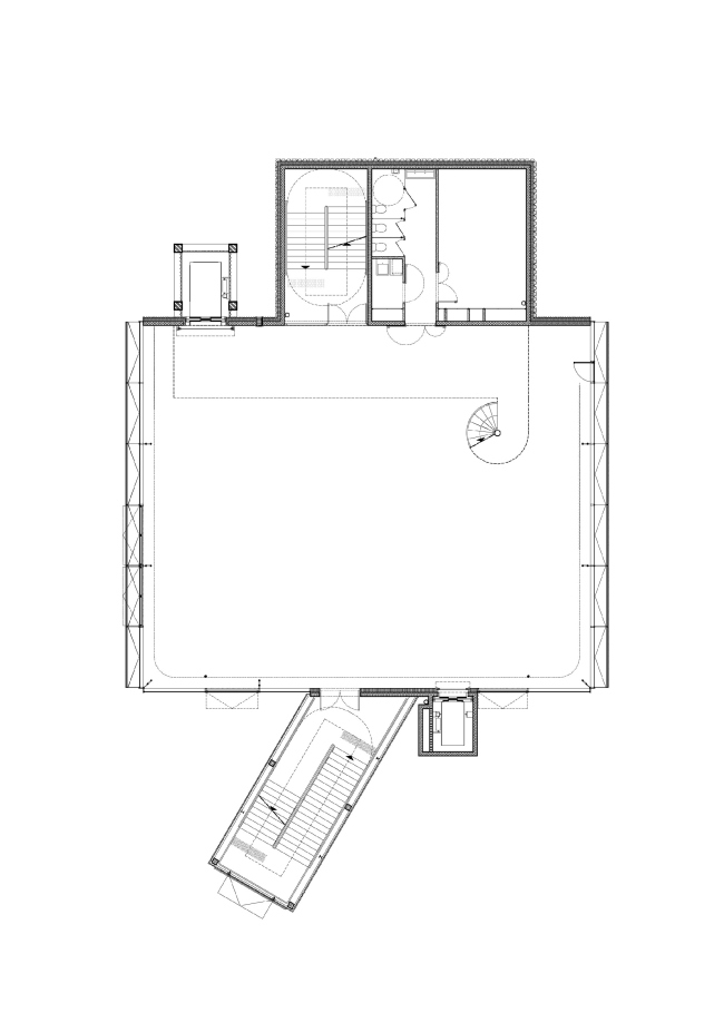
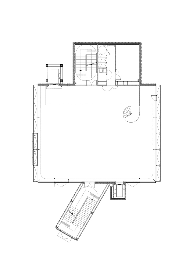
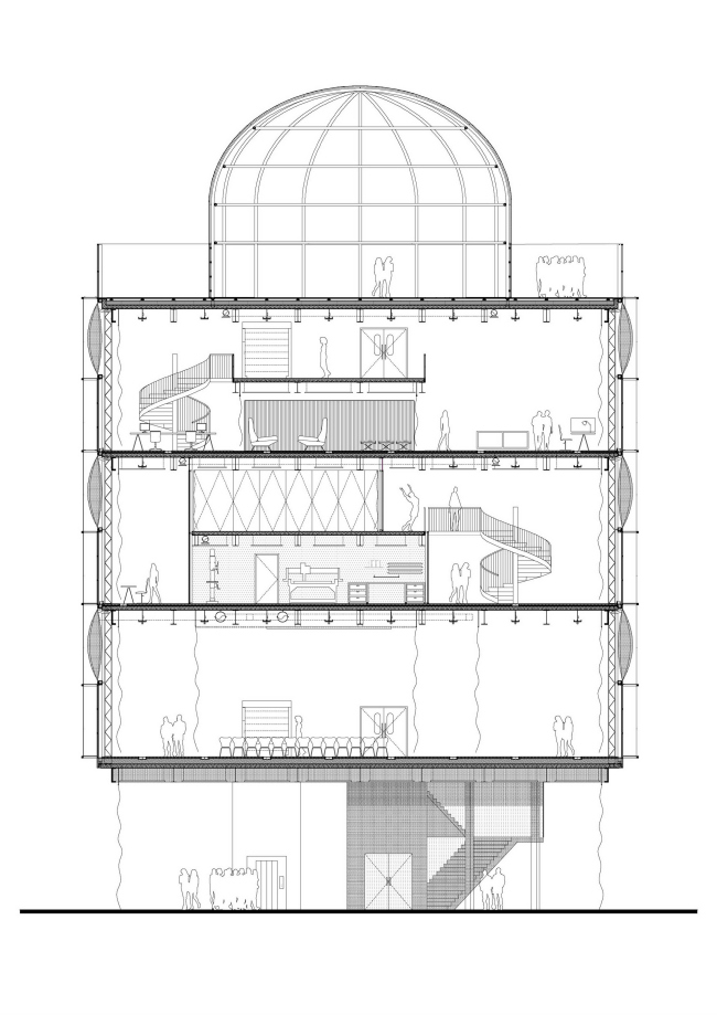
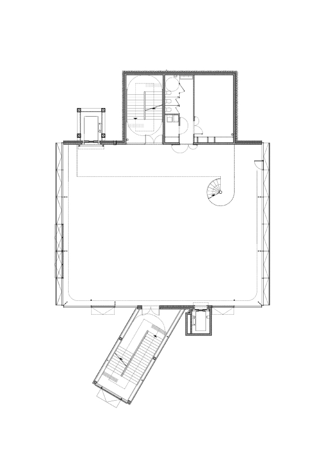
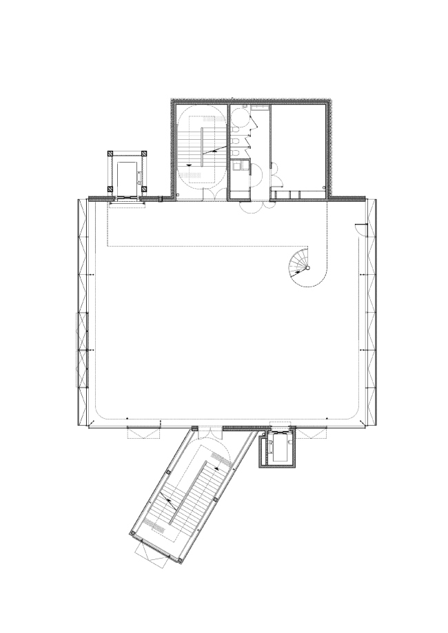
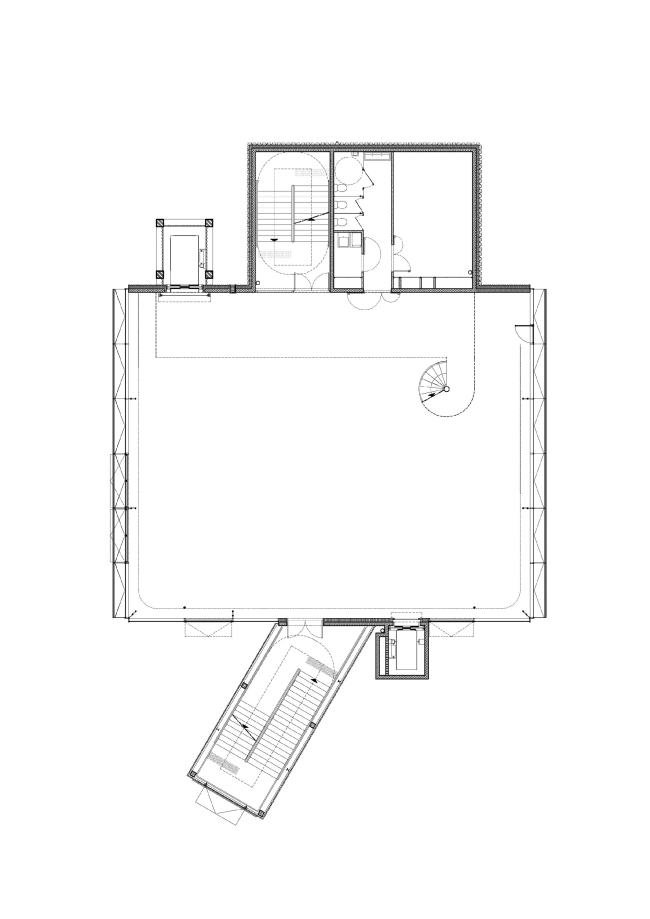
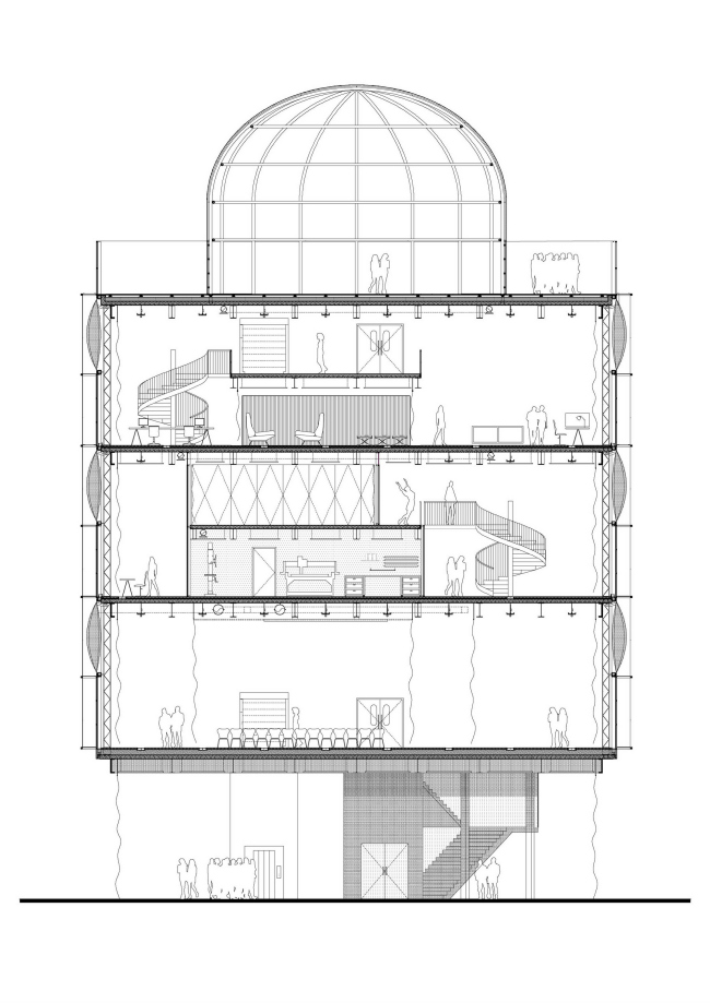
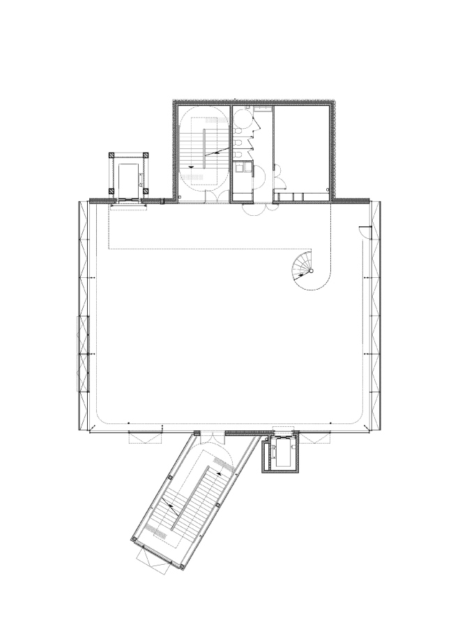
MRI компактен: так авторы проекта сэкономили исчерпаемый ресурс – земную поверхность – и создали необходимые пространственные паузы между своей постройкой и концертным залом и высшей школой. Они называют свою концепцию «вертикальным ангаром». Кроме того, MRI приподнят над землей на столбах, так что его первый этаж проницаем для пешеходов, а пространство вокруг может служить для общественных мероприятий.
 
MRI – научный центр нового поколения © Julien Hourcade
MRI – научный центр нового поколения © Julien Hourcade

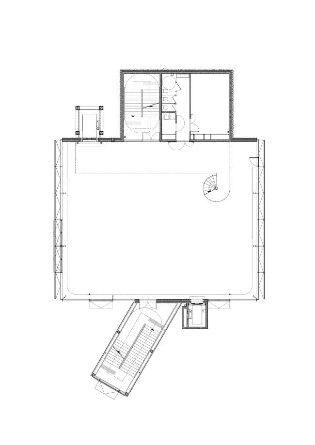
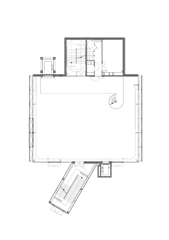
Выше расположены три этажа, каждый – с пространством площадью 500 м2. Эти этажи можно легко перепланировать в зависимости от нужд учреждения, а также использовать независимо друг от друга в любое время суток. Их высота – 6 м – позволяет устраивать антресольные ярусы. Все технические зоны (хранилища, лестницы и лифты, санузлы и т.д.) вынесены на периферию постройки. Максимальная гибкость обусловлена функцией: MRI соединяет в себе общественные лаборатории, бизнес-инкубатор, разнообразные пространства для мероприятий, в том числе публичных. Все это объединяет идея науки и исследований. Основателями центра выступили научная ассоциация Relais d’sciences и канская Торгово-промышленная палата.
 
MRI – научный центр нового поколения © Julien Hourcade
MRI – научный центр нового поколения © Julien Hourcade

Первый этаж, как упоминалось, «пуст», на втором расположено пространство для конференций, кинопоказов и т.д., а также «живая лаборатория», Living Lab для разнообразных экспериментов и проверки пилотных проектов. На третьем находится Fab Lab – «лаборатория производства» с цифровыми станками, 3D-принтером и подобным оборудованием. Зал для собраний на 90 человек (его можно поделить на три части) занимает антресольный ярус. Четвертый этаж отдан под офис свободного плана для сотрудников учреждений-основателей MRI, стартапов и т.д. Он подобен коворкингу примерно на 40 человек.
 
MRI – научный центр нового поколения © Julien Hourcade
MRI – научный центр нового поколения © Julien Hourcade

Завершает здание купол с террасой вокруг, откуда, с высоты 40 метров, открывается панорамный вид Кана. Здесь можно оценить замысел архитекторов, ориентировавших свою постройку на один из главных исторических памятников города – монастырь Ла-Трините XI века – по линии парка, который появится на «полуострове» в ближайшем будущем. Терраса, естественно, подходит для проведения различных мероприятий. Также в MRI имеются бар и магазин дизайна.
MRI – научный центр нового поколения © Julien Hourcade
MRI – научный центр нового поколения © Julien Hourcade
MRI – научный центр нового поколения © Julien Hourcade
MRI – научный центр нового поколения © Julien Hourcade
MRI – научный центр нового поколения © Julien Hourcade
MRI – научный центр нового поколения © Julien Hourcade
MRI – научный центр нового поколения © Julien Hourcade
MRI – научный центр нового поколения © Julien Hourcade
MRI – научный центр нового поколения © Filip Dujardin
MRI – научный центр нового поколения © Filip Dujardin
MRI – научный центр нового поколения © Filip Dujardin
MRI – научный центр нового поколения © Filip Dujardin
MRI – научный центр нового поколения © Filip Dujardin
MRI – научный центр нового поколения © Filip Dujardin
MRI – научный центр нового поколения © Filip Dujardin
MRI – научный центр нового поколения © Filip Dujardin
MRI – научный центр нового поколения © Filip Dujardin
MRI – научный центр нового поколения © Filip Dujardin
MRI – научный центр нового поколения © Filip Dujardin
MRI – научный центр нового поколения © Filip Dujardin
MRI – научный центр нового поколения © Filip Dujardin
MRI – научный центр нового поколения © Filip Dujardin
MRI – научный центр нового поколения © Filip Dujardin
MRI – научный центр нового поколения © Filip Dujardin
MRI – научный центр нового поколения © Filip Dujardin
MRI – научный центр нового поколения © Filip Dujardin
MRI – научный центр нового поколения © Filip Dujardin
MRI – научный центр нового поколения © Filip Dujardin
MRI – научный центр нового поколения © Julien Hourcade
MRI – научный центр нового поколения © Julien Hourcade
MRI – научный центр нового поколения © Julien Hourcade
MRI – научный центр нового поколения © Julien Hourcade
MRI – научный центр нового поколения © Julien Hourcade
MRI – научный центр нового поколения © Julien Hourcade
MRI – научный центр нового поколения © Filip Dujardin
MRI – научный центр нового поколения © Filip Dujardin
MRI – научный центр нового поколения © Julien Hourcade
MRI – научный центр нового поколения © Julien Hourcade
MRI – научный центр нового поколения © Julien Hourcade
MRI – научный центр нового поколения © Julien Hourcade
MRI – научный центр нового поколения © Julien Hourcade
MRI – научный центр нового поколения © Julien Hourcade
MRI – научный центр нового поколения © Julien Hourcade
MRI – научный центр нового поколения © Julien Hourcade
MRI – научный центр нового поколения © Julien Hourcade
MRI – научный центр нового поколения © Julien Hourcade
MRI – научный центр нового поколения © Julien Hourcade
MRI – научный центр нового поколения © Julien Hourcade
MRI – научный центр нового поколения © Bruther
MRI – научный центр нового поколения © Bruther
MRI – научный центр нового поколения © Bruther
MRI – научный центр нового поколения © Bruther
MRI – научный центр нового поколения © Bruther
MRI – научный центр нового поколения © Bruther
MRI – научный центр нового поколения © Bruther
MRI – научный центр нового поколения © Bruther
MRI – научный центр нового поколения © Bruther
MRI – научный центр нового поколения © Bruther
MRI – научный центр нового поколения © Bruther
MRI – научный центр нового поколения © Bruther