Размещено на портале Архи.ру (www.archi.ru)

23.11.2015

Жизнь на болотах

Анна Старостина
Объект:
Комплекс жилых построек в водном парке Сиси
Адрес:
Китай, None, Ханчжоу.

На окраине Ханчжоу построена современная «деревня» по проекту Дэвида Чипперфильда.

Комплекс жилых построек в водном парке Сиси © Simon Menges
Комплекс жилых построек в водном парке Сиси © Simon Menges

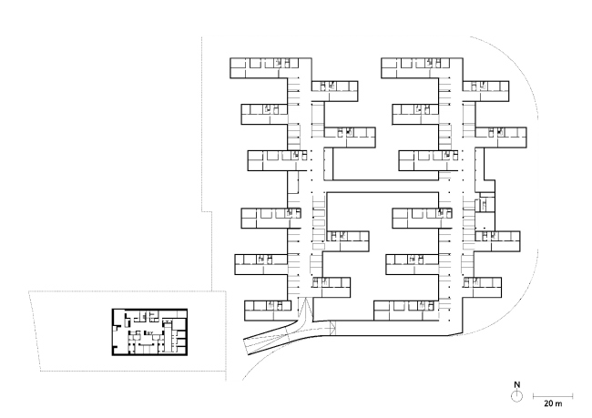
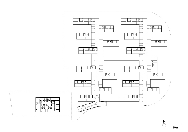
Комплекс небольших жилых домов общей площадью 11 800 м2 расположен на западе города Ханчжоу в Национальном парке водно-болотных угодий Сиси. Занимающий территорию почти в 60 км2, парк славится не только тщательно формируемым и оберегаемым заболоченным ландшафтом, но и памятниками культуры, истории, архитектуры (современной в том числе). На стыке почти дикой природы, свободной глади воды, рукотворных объектов и сформированных веками представлений о месте и роли человека в этой необычной среде Дэвид Чипперфильд и создал свой проект. Работа велась в берлинском и шанхайском офисах бюро.
Комплекс жилых построек в водном парке Сиси © Simon Menges
Комплекс жилых построек в водном парке Сиси © Simon Menges

Поддерживая общую тему парка, 20 двухэтажных построек полностью окружены водным садом. Планировка всего комплекса тем не менее вполне регулярна: дома соединены сложной Н-образной системой переходов с небольшими приватными зонами на пересечениях и интересными видовыми площадками. Более того, под всем этим даже организована подземная парковка.
Комплекс жилых построек в водном парке Сиси © Simon Menges
Комплекс жилых построек в водном парке Сиси © Simon Menges

Сами дома представляют собой правильной формы параллелепипеды с вертикальными прорезями окон во всю высоту. Установлены они на популярных в этих местах фундаментах из серого камня. Продолжая тему, в качестве фасадного материала архитекторы выбрали вытянутые прямоугольные плиты натурального камня, но не однотонные, а различных оттенков серого. В результате получилась живая, как бы рукотворная поверхность. Но смурные, слишком правильные по своей геометрии объемы все равно жестко противопоставлены окружающей зелени. Во внутренней отделке архитекторы, наоборот, отдали предпочтение белым, глянцевым поверхностям, чтобы максимально наполнить интерьеры светом. И, конечно же, панорамные окна позволяют активно «сопереживать» природному ландшафту. В общем, вряд ли обитателям домов жизнь покажется «жестянкой», как всеми любимому водяному.
Комплекс жилых построек в водном парке Сиси © David Chipperfield Architects
Комплекс жилых построек в водном парке Сиси © David Chipperfield Architects
Комплекс жилых построек в водном парке Сиси © David Chipperfield Architects
Комплекс жилых построек в водном парке Сиси © David Chipperfield Architects
Комплекс жилых построек в водном парке Сиси © David Chipperfield Architects
Комплекс жилых построек в водном парке Сиси © David Chipperfield Architects
Комплекс жилых построек в водном парке Сиси © David Chipperfield Architects
Комплекс жилых построек в водном парке Сиси © David Chipperfield Architects
Комплекс жилых построек в водном парке Сиси © David Chipperfield Architects
Комплекс жилых построек в водном парке Сиси © David Chipperfield Architects
Комплекс жилых построек в водном парке Сиси © David Chipperfield Architects
Комплекс жилых построек в водном парке Сиси © David Chipperfield Architects
Комплекс жилых построек в водном парке Сиси © David Chipperfield Architects
Комплекс жилых построек в водном парке Сиси © David Chipperfield Architects
Комплекс жилых построек в водном парке Сиси © David Chipperfield Architects
Комплекс жилых построек в водном парке Сиси © David Chipperfield Architects
Комплекс жилых построек в водном парке Сиси © David Chipperfield Architects
Комплекс жилых построек в водном парке Сиси © David Chipperfield Architects
Комплекс жилых построек в водном парке Сиси © David Chipperfield Architects
Комплекс жилых построек в водном парке Сиси © David Chipperfield Architects
Комплекс жилых построек в водном парке Сиси © David Chipperfield Architects
Комплекс жилых построек в водном парке Сиси © David Chipperfield Architects