Размещено на портале Архи.ру (www.archi.ru)

20.11.2015

Гарлемская готика

Нина Фролова
Объект:
Жилой комплекс в районе Шугар-Хилл
Адрес:
США, None, Нью-Йорк.

Комплекс социального жилья в нью-йоркском районе Шугар-Хилл по проекту Дэвида Аджайе.

Жилой комплекс в районе Шугар-Хилл © Wade Zimmerman
Жилой комплекс в районе Шугар-Хилл © Wade Zimmerman

Жилой дом на 124 квартиры рассчитан на беднейших жителей Нью-Йорка, из них 25 предназначены бывшим бездомным, 50 – семьям, где на 4 человека приходится менее $41 500 годового дохода, 12 – семьям такого же размера, получающим менее $24 900 в год. В целом, доход жильцов варьируется от 13 до 79 тыс. долларов в год. В зависимости от размера квартиры (студия, 1, 2, или 3 спальни) и финансового положения объем арендной платы колеблется от 349 до 1588 долларов в месяц, что по меркам Нью-Йорка очень мало. В то же время, житель дома в Шугар-Хилл или других объектов некоммерческого застройщика Broadway Housing Communities (BHC) обходится американским налогоплательщикам в среднем в 12 500 долларов в год. При этом койкоместо в государственном приюте стоит в два раза больше, в психиатрической лечебнице – в 10 раз больше.
 
Жилой комплекс в районе Шугар-Хилл © Wade Zimmerman
Жилой комплекс в районе Шугар-Хилл © Wade Zimmerman


На квартиры в этом доме было подано более 50 000 заявок, то есть конкурс составил более 400 заявок на квартиру. Это отражение серьезного дефицита жилья в Нью-Йорке, который затрагивает в первую очередь социально незащищенные слои населения, и с этой проблемой как с приоритетной борется мэр Билл де Блазио, обещавший в ходе предвыборной кампании значительно расширить фонд доступного жилья.
 
Жилой комплекс в районе Шугар-Хилл © Wade Zimmerman
Жилой комплекс в районе Шугар-Хилл © Wade Zimmerman

Расположение постройки Дэвида Аджайе именно в Шугар-Хилл неслучайно: эта территория входит в самый неблагополучный район Нью-Йорка – Западный Гарлем, где 70% детей рождается в семьях за чертой бедности, население (смешанное по этническому составу) бедно и плохо образовано, а инфраструктура совершенно не развита. Строительство оплатили государство и благотворители. Бюджет составил 80 млн долларов, из них значительная часть ушла на очистку почвы (раньше там располагался газовый завод, а затем гараж) и подобные утилитарные цели, а вовсе не на огромный гонорар известному архитектору, как предполагали некоторые критики.
 
Жилой комплекс в районе Шугар-Хилл © Wade Zimmerman
Жилой комплекс в районе Шугар-Хилл © Wade Zimmerman

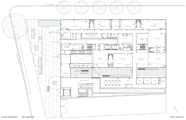
Дом в Шугар-Хилл входит в число улучшенных с точки зрения архитектуры и дополнительной программы новых нью-йоркских социальных комплексов (к примеру, Via Verde Николаса Гримшо), но даже на их фоне его «обременение» выглядит впечатляюще. В первых двух уровнях здания расположены Детский музей искусства и рассказов (Children’s Museum of Art & Storytelling; площадь 1675 м2) и центр дошкольного образования для детей 0-5 лет (на 120–200 мест; площадь 1133 м2). Такой упор на детскую тему – и ответ на нужды местного населения, и отражение политики де Блазио, который считает особо важным усиливать именно дошкольное образование.
 
Жилой комплекс в районе Шугар-Хилл © Wade Zimmerman
Жилой комплекс в районе Шугар-Хилл © Wade Zimmerman

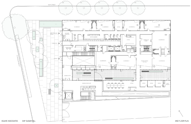
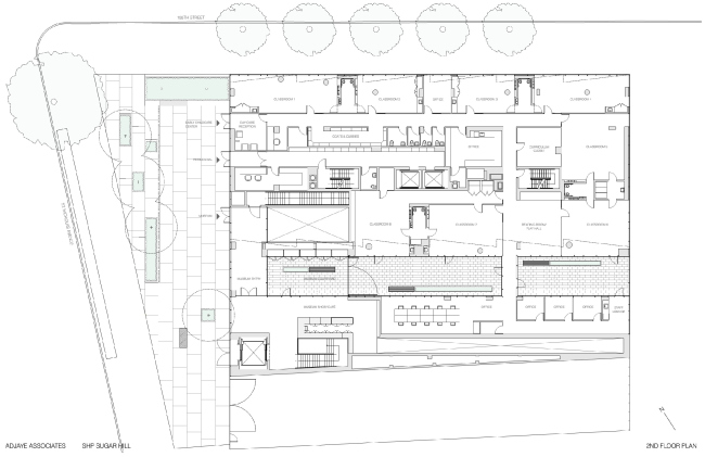
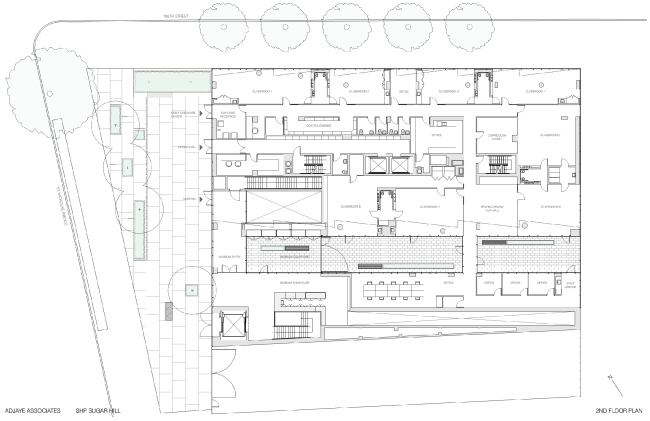
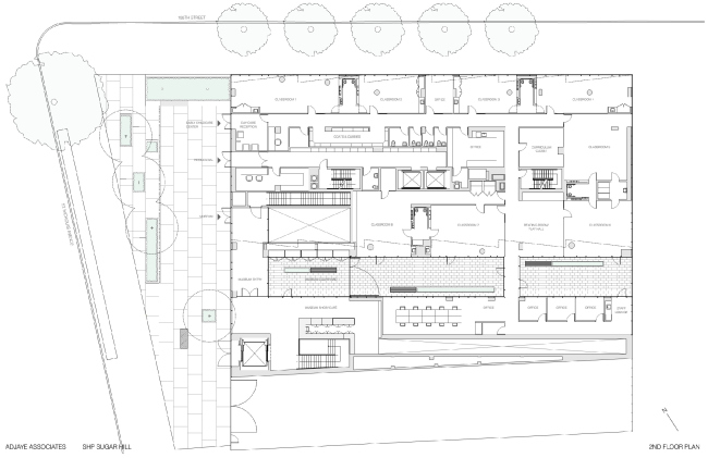
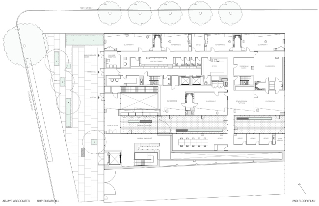
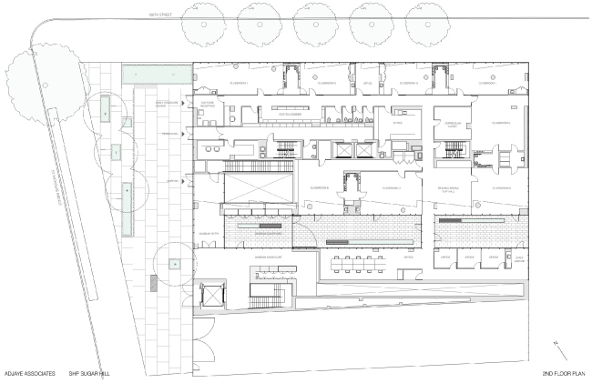
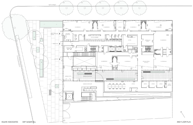
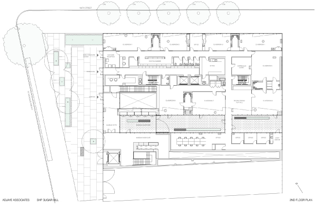
Первый этаж занят музеем с залами для представлений и выставок, изостудией и мастерской художника-«резидента». Среди эффектных компонентов – «световая труба», через которую солнечные лучи проникают в узкий коридор. Выше находится центр детского образования с 6 классными комнатами с панорамным остеклением и двумя внутренними двориками под открытым небом. Также в широкой базе здания расположены пространство под сдачу в аренду некоммерческому учреждению и коммерческий гараж.
 
Жилой комплекс в районе Шугар-Хилл © Wade Zimmerman
Жилой комплекс в районе Шугар-Хилл © Wade Zimmerman

Выше расположены 11 этажей жилья, хотя на 9-м также устроены общественная комната, офис BHC и терраса, так как именно там объем здания «сдвигается». На крыше планируется разбить огород, но пока она просто засыпана гравием и доступна для прогулок.
 
Жилой комплекс в районе Шугар-Хилл © Wade Zimmerman
Жилой комплекс в районе Шугар-Хилл © Wade Zimmerman

Экстерьер дома определяет упомянутый «сдвиг», создающий с одного фасада консоль, с другого – террасу, а также графитовый цвет покрытых вертикальными желобками бетонных панелей фасада. На них нанесен абстрактный узор, отсылающий к «гарлемским розам»: это и пышная лепнина исторических домов Шугар-Хилл, и не менее исторические розы, растущие в Гарлеме с XIX века. Окрестные дома в неоготическом и неороманском стилях с характерным зубчатым контуром фасада и многочисленными выступами башенок и эркеров нашли отражение в таких же зубцах здания Аджайе. Отклик на окружение был включен BHC в задание закрытого конкурса, который британский архитектор выиграл в 2010. Шугар-Хилл охраняется государством как комплекс исторической застройки конца XIX – начала XX веков, когда здесь жили преуспевающие афроамериканцы. Кроме того, в период между двумя мировыми войнами он стал сценой «Гарлемского ренессанса», расцвета афроамериканской культуры: там жили и работали выдающиеся музыканты, литераторы, художники и фотографы. Этому явлению посвящен отдельный зал Детского музея.
 
Жилой комплекс в районе Шугар-Хилл © Wade Zimmerman
Жилой комплекс в районе Шугар-Хилл © Wade Zimmerman

Наблюдатели отмечают, что стоящее на холме темное здание напоминает суровую крепость, а жилье для нуждающихся должно быть «оптимистическим». Однако сам Аджайе отвечает на эту критику вопросом: почему решенные в той же эстетике его дома для богатых лондонцев считались «крутыми», а дом для бедных сразу назвали «суровым»? – на который ожидаемо ответа не находится.
Жилой комплекс в районе Шугар-Хилл © Wade Zimmerman
Жилой комплекс в районе Шугар-Хилл © Wade Zimmerman
Жилой комплекс в районе Шугар-Хилл © Wade Zimmerman
Жилой комплекс в районе Шугар-Хилл © Wade Zimmerman
Жилой комплекс в районе Шугар-Хилл © Wade Zimmerman
Жилой комплекс в районе Шугар-Хилл © Wade Zimmerman
Жилой комплекс в районе Шугар-Хилл. Детский музей искусства и рассказов © Wade Zimmerman
Жилой комплекс в районе Шугар-Хилл. Детский музей искусства и рассказов © Wade Zimmerman
Жилой комплекс в районе Шугар-Хилл. Детский музей искусства и рассказов © Wade Zimmerman
Жилой комплекс в районе Шугар-Хилл. Детский музей искусства и рассказов © Wade Zimmerman
Жилой комплекс в районе Шугар-Хилл. Детский музей искусства и рассказов © Wade Zimmerman
Жилой комплекс в районе Шугар-Хилл. Детский музей искусства и рассказов © Wade Zimmerman
Жилой комплекс в районе Шугар-Хилл. Детский музей искусства и рассказов © Wade Zimmerman
Жилой комплекс в районе Шугар-Хилл. Детский музей искусства и рассказов © Wade Zimmerman
Жилой комплекс в районе Шугар-Хилл. Детский музей искусства и рассказов © Wade Zimmerman
Жилой комплекс в районе Шугар-Хилл. Детский музей искусства и рассказов © Wade Zimmerman
Жилой комплекс в районе Шугар-Хилл. Детский музей искусства и рассказов © Wade Zimmerman
Жилой комплекс в районе Шугар-Хилл. Детский музей искусства и рассказов © Wade Zimmerman
Жилой комплекс в районе Шугар-Хилл. Детский музей искусства и рассказов © Wade Zimmerman
Жилой комплекс в районе Шугар-Хилл. Детский музей искусства и рассказов © Wade Zimmerman
Жилой комплекс в районе Шугар-Хилл. Детский музей искусства и рассказов © Wade Zimmerman
Жилой комплекс в районе Шугар-Хилл. Детский музей искусства и рассказов © Wade Zimmerman
Жилой комплекс в районе Шугар-Хилл. Детский музей искусства и рассказов © Wade Zimmerman
Жилой комплекс в районе Шугар-Хилл. Детский музей искусства и рассказов © Wade Zimmerman
Жилой комплекс в районе Шугар-Хилл. Детский музей искусства и рассказов © Wade Zimmerman
Жилой комплекс в районе Шугар-Хилл. Детский музей искусства и рассказов © Wade Zimmerman
Жилой комплекс в районе Шугар-Хилл. Детский музей искусства и рассказов © Wade Zimmerman
Жилой комплекс в районе Шугар-Хилл. Детский музей искусства и рассказов © Wade Zimmerman
Жилой комплекс в районе Шугар-Хилл © Adjaye Associates
Жилой комплекс в районе Шугар-Хилл © Adjaye Associates
Жилой комплекс в районе Шугар-Хилл © Adjaye Associates
Жилой комплекс в районе Шугар-Хилл © Adjaye Associates
Жилой комплекс в районе Шугар-Хилл © Adjaye Associates
Жилой комплекс в районе Шугар-Хилл © Adjaye Associates
Жилой комплекс в районе Шугар-Хилл © Adjaye Associates
Жилой комплекс в районе Шугар-Хилл © Adjaye Associates
Жилой комплекс в районе Шугар-Хилл © Adjaye Associates
Жилой комплекс в районе Шугар-Хилл © Adjaye Associates
Жилой комплекс в районе Шугар-Хилл © Adjaye Associates
Жилой комплекс в районе Шугар-Хилл © Adjaye Associates