|
Проекты-призеры XXIV Международного смотра–конкурса выпускных квалификационных работ по
архитектуре и дизайну, отмеченные дипломами Archiprix Russia.
Ежегодный смотр-конкурс дипломных работ архитектурных ВУЗов России прошел в начале октября в Железноводске. Его провела Академия архитектуры и искусства Южного федерального университета под патронатом Межрегиональной общественной организации содействия архитектурному образованию (МООСАО) и Учебно-методическим объединением вузов РФ по образованию в области архитектуры (УМО).
Подведение итогов. Председатель жюри АRCHIPRIX Оскар Мамлеев., председатель МООСАО Сергей Бровченко, зав. кафедрой Нижегородского Университета Анна Гельфонд
В этом году в рамках смотра работало объединенное жюри Archiprix Russia и Фонда Якова Чернихова. Работы выпускников на смотре-конкурсе оцениваются с точки зрения концептуальной составляющей, новаторства и графического мастерства.
В состав жюри вошли:- Оскар Мамлеев, профессор МАРХИ и МАРШ, директор Российского регионального отделения ARCHIPRIX
- Андрей Чернихов, президент фонда им. Якова Чернихова
- Алексей Муратов, партнер КБ «Стрелка»
- Дмитрий Ликин, партнер бюро WOWHAUS
- Татьяна Шулика, профессор, зам. зав. кафедрой МАРХИ
- Виталий Саморогов, профессор, зав. кафедрой СамГАСУ
Оскар Мамлеев и член жюри зав. кафедрой Самарского Университета Виталий Самогоров
Дипломами Archiprix Russia были награждены 5 проектов. На смотр было представлено достаточно грамотных, профессиональных работ, но ни одна из них не соответствовала необходимому критерию креативности, открывающей новые горизонты архитектурного мышления. Поэтому премию фонда Якова Чернихова жюри решило не присуждать.
Ниже представлены проекты, награжденные дипломами Archiprix Russia. *** Аномия как новый инструмент городского развития Юлия Заречкина / Уфимский государственный нефтяной технический университет Руководитель: проф. Баймуратов Р.Ф., доц. Баймуратова С.Х.
Развитие города и формирование городской среды неразрывной связаны с историческими процессами, политическими событиями, изменениями в обществе, научными открытиями. Для того, чтобы понять состояние современного города, необходимо рассмотреть динамику его развития, диагностировать период спада или подъема и понять, чем он вызван. А также понять, проходит ли город те же периоды кризиса и подъема, как и общество, чем характеризуются эти периоды, какие существуют способы преодоления состояния кризиса городской среды.
Переходный период – объективное состояние современного общества. Об этом говорится в ряде наук и концепций: состояние перехода от индустриального общества к постиндустриальному, от аналогового мира к цифровому, от одного технологического уклада к другому. В России данный период дополняется условиями перехода от социализма к капитализму, от плановой к рыночной экономике, от классового общества к гражданскому.
Период кризиса по аналогии с многими смежными науками был назван аномией. Аномия в социологии – отсутствие четкой системы социальных норм, разрушение единства культуры, вследствие чего жизненный опыт людей перестает соответствовать идеальным общественным нормам. В более общем смысле, аномия характеризует состояние кризиса, хаоса, дезинтеграции и распада.
Переход от индустриального общества к постиндустриальному неизбежно сопровождается состоянием аномической дезинтеграции общества. В постсоветских странах этот процесс получил распространение в 90-е годы XX века и продолжается по сей день.
В процессе исследования применительно к градостроительной плоскости также был выявлен ряд кризисных периодов и круг общемировых проблем, характерных для современных городов. Были выделены три основные группы проявлений аномии в городе: социо-культурные (изменения на уровне самоощущения человека и восприятия им города), экономическо-управленческие (политика градостроительного планирования) и пространственные (отражение в пространстве города).
Исходя из этих проявлений был выделен определенный инструментарий, который так или иначе направлен на эти кризисные явления. На каждый блок проблем был подобран ряд кейсов по их преодолению.
Тренды городского развития, теории прогнозирования. Проект «Аномия как новый инструмент городского развития». Автор: Юлия Заречкина
Мировое циклическое развитие. Переломные моменты. Проект «Аномия как новый инструмент городского развития». Автор: Юлия Заречкина
Состояние аномии города и методы ее преодоления. Проект «Аномия как новый инструмент городского развития». Автор: Юлия Заречкина
Модель действия совокупного метода аномии. Проект «Аномия как новый инструмент городского развития». Автор: Юлия Заречкина
Применение метода на примере города Уфа. Проект «Аномия как новый инструмент городского развития». Автор: Юлия Заречкина
***
Историческая эволюция и современные подходы к проектированию городских рынков Алина Георгиевская / Самарский государственный архитектурно-строительный университет Руководитель: канд. архитектуры, проф. Данилова Э.В. доц. Вальшин Р.М.
Диссертационное исследование рассматривает вопрос о переосмыслении роли рынков в городской структуре, как нового типа общественного пространства, которое поддерживает городские традиции и является центром для обмена между сообществами не только экономически, но и социально.
Несмотря на то, что рынки наиболее публичные пространства, сегодня их влияние на город почти не учитывается, а архитектура и роль мало изучены. Актуальность исследования определяется поиском новых форм рынка и функциональных программ, отвечающих требованиям современного потребителя.
Среди основных выводов исследования можно выделить:- радиусы доступности рынков и связь с транспортным каркасом были важными факторами на протяжении всей истории;
- для процветания рынка необходима его функциональная насыщенность;
- рынок может совмещаться с любой функцией, при этом экономика сама формирует запрос, создавая уникальность объекта;
- отсутствие капитальных законных рынков провоцирует возникновение незаконной торговли. Независимо от запретов, рыночная торговля существовала и будет существовать, вопрос только в том, какого качества и в каком виде.
В результате анализа шести глобальных городов (Париж, Барселона, Лондон, Амстердам, Чикаго, Москва), где было выявлено количество, функциональный состав и специфика каждого рынка в условиях градостроительного контекста, очевидна органичная и неразрывная связь рынка с городской структурой, что усиливает ее значимость.
Концепция рынка на Хлебной площади в городе Самаре предполагает объединение рыночной торговли с культурными функциями, образовательными площадками и апартаментами. Рынок в данном проекте – это живое, интерактивное пространство, отвечающее современным потребностям городского жителя, а также платформа для коммуникации между местными сообществами.
Концепция рынка на Хлебной площади. Автор: Алина Георгиевская
Концепция рынка на Хлебной площади. Автор: Алина Георгиевская
Концепция рынка на Хлебной площади. Автор: Алина Георгиевская
***
Международный арт-центр в составе кластера театрального, музыкального и визуального искусства «The NEXT Helsinki» Артем Скалкин / Московский архитектурный институт (Государственная академия) Руководитель: рук. проф. Шутиков А.В., доц. Перекладов А.А., доц. Киселев В.В.
Проект изначально готовился как предложение по стратегии развития территории Южной гавани (South Harbour) города Хельсинки в рамках открытого международного конкурса THE NEXT HELSINKI. Позже он был развит и дополнен до дипломной работы.
Проект разработан на нескольких уровнях работы со средой:- как глобальная концепция единения стран Финского залива через сеть культурных центров в каждом городе. Также формируется «музейный» морской маршрут между этими городами. В каждом таком центре искусство страны противопоставлено другим в форме диалога выставочных пространств.> как часть городского пешеходного каркаса, сформированного из ценностей Хельсинки (таких как парки, музеи, театры, пешеходные зоны) путем особой формы благоустройства. Этот каркас построен по принципу дороги из желтого кирпича – куда бы вы ни пошли, вы придете к одному из знаковых мест города без гидов и карт. Такая система задает сценарии прогулок и помогает городу раскрыть себя.
- как утилитарная городская структура, способная видоизмениться со временем (ее гибкость обеспечивает возможность изменения функции). Эта структура живет параллельно с городской набережной-променадом – одновременно она и имеет приметные маяки-входы, и интегрирована в среду, сохраняя идентичность города и его восприятие.
[ARTesium] – это некий монастырь искусства, где художник может жить, работать или учиться, а посетитель познавать культуру стран Балтики через 5 дворов человеческих чувств. Во дворе зрения представлена коллекция в привычном понимании в виде скульптуры, живописи и графики. Пространство осязания представляет современное направление тач-арта (от англ. touch – прикосновение). Двор слуха наполнен небольшими залами для музыкальных и поэтических выступлений, а также лекций и презентаций. Двор обоняния представлен как сад местной финской флоры, а двор вкуса масштабным ресторанным двориком.
Все эти дворы окружены функциональными «ячейками» с выставочными пространствами, арт-резиденциями, образовательным центром, мастерскими. Двор вкуса, например, включает не только фуд-корт и национальные рестораны, но и кулинарную школу. Помимо этого, в уровне набережной, также присутствует инфраструктура в виде магазинов и кафе, входных блоков арт-центра и пунктов велопроката.
Павильон «Финляндия» существует в диалоге и оппозиции с остальной частью музея, являясь символом места. Его форма продиктована и национальными мотивами, философским образом, и видовыми точками Хельсинки (Олений рог – национальный символ, его лучи направлены на Кафедральный и Успенский соборы и старую рыночную площадь. Основанием для рога является отсылка к балтийским шхерам и сосновым лесам). Напротив него находится Чаша-форум, мозговой центр с искусствоведами, кураторами и многофункциональным лекторием, способный раскрываться подобно шишке.
Культурное пространство [ARTesium] не отменяет основную функцию старой гавани, а, наоборот, подчеркивает ее, являясь отсылкой на сухие доки и корабельные верфи.
 Концепция международного арт-центра в составе кластера театрального, музыкального и визуального искусства «The NEXT Helsinki». Автор: Артем Скалкин
Концепция международного арт-центра в составе кластера театрального, музыкального и визуального искусства «The NEXT Helsinki». Автор: Артем Скалкин
Концепция международного арт-центра в составе кластера театрального, музыкального и визуального искусства «The NEXT Helsinki». Автор: Артем Скалкин
Концепция международного арт-центра в составе кластера театрального, музыкального и визуального искусства «The NEXT Helsinki». Автор: Артем Скалкин
Концепция международного арт-центра в составе кластера театрального, музыкального и визуального искусства «The NEXT Helsinki». Автор: Артем Скалкин
Концепция международного арт-центра в составе кластера театрального, музыкального и визуального искусства «The NEXT Helsinki». Автор: Артем Скалкин
Концепция международного арт-центра в составе кластера театрального, музыкального и визуального искусства «The NEXT Helsinki». Автор: Артем Скалкин
Концепция международного арт-центра в составе кластера театрального, музыкального и визуального искусства «The NEXT Helsinki». Автор: Артем Скалкин
Концепция международного арт-центра в составе кластера театрального, музыкального и визуального искусства «The NEXT Helsinki». Автор: Артем Скалкин
Концепция международного арт-центра в составе кластера театрального, музыкального и визуального искусства «The NEXT Helsinki». Автор: Артем Скалкин
Концепция международного арт-центра в составе кластера театрального, музыкального и визуального искусства «The NEXT Helsinki». Автор: Артем Скалкин
Концепция международного арт-центра в составе кластера театрального, музыкального и визуального искусства «The NEXT Helsinki». Автор: Артем Скалкин
Концепция международного арт-центра в составе кластера театрального, музыкального и визуального искусства «The NEXT Helsinki». Автор: Артем Скалкин
Концепция международного арт-центра в составе кластера театрального, музыкального и визуального искусства «The NEXT Helsinki». Автор: Артем Скалкин
***
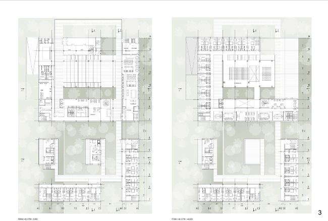
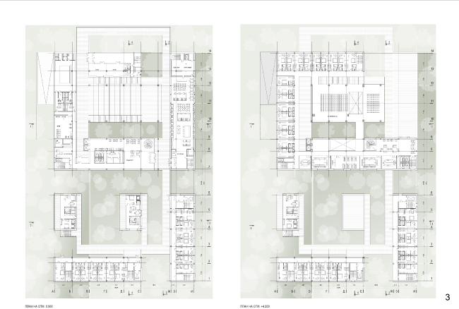
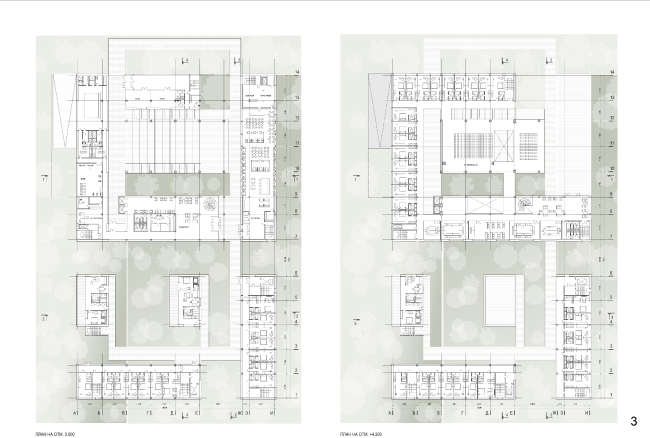
Гостиничный комплекс бизнес-класса в Самаре Татьяна Спиридонова / Самарский государственный архитектурно-строительный университет Руководитель: проф. Пастушенко В. Л., доц. Рыбачева О. С.
Гостиница расположена в лесном массиве недалеко от въезда в город по трассе М5. По функциональной организации это гостиница бизнес-класса. В основу архитектурной концепции положена идея «прозрачности» пространственно-планировочной структуры здания для внешнего окружения. Эффект прозрачности достигается за счет разомкнутой структуры планов и разрезов объекта, раскрытия интерьеров внутренних дворов объекта вовне через большие сквозные проемы. Отдельные блоки гостиницы связываются открытыми галереями и переходами. Склоны, включенные в периметр комплекса, сохраняются в естественном состоянии. Атмосфера гостиницы пронизана запахами и звуками леса. Лес «проникает» в объект, имиджи живой природы формируют визуальные сценарии общественных и жилых пространств гостиницы. Времена года сменяют картины пейзажа за витражами и окнами и «работают» над оформлением интерьерного пространства объекта.
Гостиница представляет многофункциональный комплекс с номерами, рестораном, бизнес зоной, фитнес-клубом с бассейном, выставочным залом, конференц-залом, летним амфитеатром со сценой и двумя отдельно стоящими коттеджами. Перепад рельефа повлиял на архитектурно-планировочное решение гостиницы. В результате, некоторые корпуса подняты над землей на опорах, другие врезаны в рельеф. В плане функциональные блоки формируют внутренние дворы, которые раскрываются вовне через горизонтальные протяженные проемы корпусов на опорах.
Гостиница состоит из главного трёхэтажного корпуса, в состав которого входят: главный вход, ресторан, офисы, 20 жилых номеров, два конференц-зала; двух жилых корпусов на 28 номеров и 21 номер; двух коттеджей для VIP гостей по 2 номера каждый. Все блоки комплекса соединяются между собой в двух уровнях: на отм. +0.000 м и на отм. -3.300 м. Одним из композиционных центров пространства гостиницы является уличный амфитеатр с нависающим над ним объёмом конференц-зала в уровне 2-го этажа. Для освещения пространства амфитеатра естественным светом объем нависающего конференц-зала разделен сквозным проемом верхнего света. В отделке фасадов здания применены натуральные состаренные материалы: дерево, металл, штукатурка песчано-серого цвета, что позволило органично встроить объект в цветовую и световую среду природного ландшафта.
Технико-экономические показатели:- Общая площадь здания – 8320 м2;
- Площадь застройки – 3460 м2;
- Строительный объем – 29900 м3;
- Количество номеров – 73;
- Количество парковочных мест 55
Гостиничный комплекс бизнес-класса в Самаре. Автор: Татьяна Спиридонова
Гостиничный комплекс бизнес-класса в Самаре. Автор: Татьяна Спиридонова
Гостиничный комплекс бизнес-класса в Самаре. Автор: Татьяна Спиридонова
Гостиничный комплекс бизнес-класса в Самаре. Автор: Татьяна Спиридонова
Гостиничный комплекс бизнес-класса в Самаре. Автор: Татьяна Спиридонова
Гостиничный комплекс бизнес-класса в Самаре. Автор: Татьяна Спиридонова
Гостиничный комплекс бизнес-класса в Самаре. Автор: Татьяна Спиридонова
Гостиничный комплекс бизнес-класса в Самаре. Автор: Татьяна Спиридонова
***
Проект научно–исследовательской магнитометрической станции в экстремальных условиях Арктики Аюна Митупова / Московский архитектурный институт (Государственная академия) Руководитель: проф. Кулиш В.О., ст.преп. Самойлова Н.И., констр. Ермолов В.В.
Идея проекта – в создании подвижной научной-исследовательской станции, адаптирующейся под условия изменчивой внешней среды.
Проектное решение представляет собой кинематический механизм подвижной геодезической оболочки для воссоздания ползущей локомоции всего объема станции при помощи применения последних исследований в области роботики (патент Case Western Reserve University, Кливленд, штат Огайо). В соответствии с симметричным радиальным строением оболочки к ней закрепляются подвижным тросами в направлении постоянных ангулярных векторов внутренние объемы капсул. Строение Внутренних капсул основано на принципе гироскопа, что дает нам прочную стабилизирующую систему соединения и поддержания постоянного уровня платформ для обитания человека.
Капсульный принцип с соединительными гибкими кольцами обеспечивает сегментированное строение внутреннего насыщения, что дает свободу движения и также предусматривает разнообразное функциональное использование отдельных капсул и возможность самостоятельного жизнеобеспечения в случае экстренной ситуации.
Все это обеспечивает прочную стабилизирующую систему соединения внутренней оболочки с внешней приводной системой ( движитель). Двигатель находится в моторных отсеках станции, закрепленные к приводным дискам в обоих концах станции, что обеспечивает нам движение по принципу «Тяни-Толкай».
Общая гибкая конфигурация станции дает возможность удлинения ее и расширения тем самым пространства обитания. А также возможность множественных композиций переплетений данной станции. С архитектурной точки зрения интересом представляет возможность плавного соединения различных по функциям помещения и в то же время хорошей логистики внутри всего объема станции, поэтому каждая капсула имеет свой выход, и также ее модулярность конструкций предусматривает возможность переконфигураций капсул.
В момент стабилизации на водной плоскости 2 ( 3, 4 и т.д.) станции свертываются в луп (узелок, торус) и надувая балласт в межпространстве внутренней и внешней оболочки – закольцовываясь в бесконечную ленту внутри, симулируя полноценное жизненное пространство для обитания на воде.
Необходимые ресурсы. Использование инновационных материалов, с целью максимального облегчения конструкции ( необходимость держаться на плаву, а также на прослойке льда ( макс нагрузка до 9 тонн) . Применение карбоновых технологий, последних разработок в области энергетики на альтернативных источниках, знания и консультации по робототехнике и механике, и главное выработка общей стратегии для комплексного решения проблемы .
Ожидаемые результаты и эффекты. Освоение одного из фундаментальных региона нашей планеты и раскрытие феномена магнетометрии и магнитных аномалий, наблюдение за арктической средой, предоставление всех необходимых условий для этого, а также обезвоживание проживания и обитания человека в условиях экстремальных сред. (Арктика – не единственный возможный регион применения данной проектной концепции)
Проект научно – исследовательской магнитометрической станции в экстремальных условиях Арктики. Автор: Аюна Митупова
Проект научно – исследовательской магнитометрической станции в экстремальных условиях Арктики. Автор: Аюна Митупова
Проект научно – исследовательской магнитометрической станции в экстремальных условиях Арктики. Автор: Аюна Митупова
|