Размещено на портале Архи.ру (www.archi.ru)

16.11.2015

Двигаясь вместе

Екатерина Ровнова
Объект:
Спортивно-рекреационный центр Musholm
Адрес:
Дания, None, Корсёр.
Мастерская:
AART architects

По проекту бюро AART в датском городе Корсёр возведен спортивно-рекреационный центр для людей с ограниченными физическими возможностями.

Спортивно-рекреационный центр Musholm. Фото: Kirstine Mengel
Спортивно-рекреационный центр Musholm. Фото: Kirstine Mengel

Построенный на берегу пролива Большой Бельт комплекс – одно из самых доступных для людей с ограниченными физическими возможностями зданий. По программе датского фонда борьбы с нервно-мышечными заболеваниями Muskelsvindfonden был расширен курорт Musholm: там появился спортивно-рекреационный центр, предназначенный для активного отдыха людей с различными формами инвалидности.
 
Спортивно-рекреационный центр Musholm. Фото: Kirstine Mengel
Спортивно-рекреационный центр Musholm. Фото: Kirstine Mengel

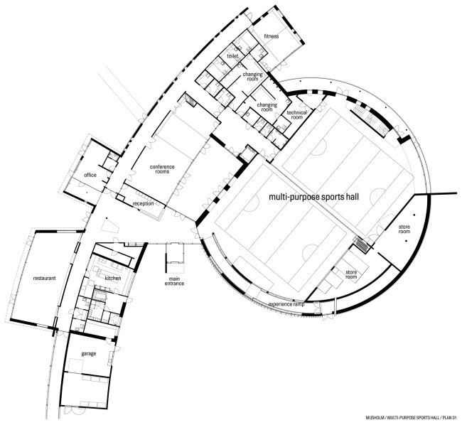
Проект разрабатывался AART при участии Keinicke & Overgaard Arkitekter, ландшафтных архитекторов BSAA Arkitekter и UrbanLAB и инженеров из MOE и D&N. Их задачей было максимально учесть специальные потребности гостей комплекса, чтобы создать комфортное пространство, мотивирующее их к движению и позволяющее полноценно отдохнуть. В процессе проектирования проводились многочисленные консультации со специалистами, а важные детали моделировались в масштабе 1:1 и тестировались будущими пользователями. В результате этой работы в октябре 2015 года появились два здания общей площадью 3 200 м2: общественный центр с многофункциональным залом и жилая периферия из 24 номеров.
 
Спортивно-рекреационный центр Musholm. Фото: Kirstine Mengel
Спортивно-рекреационный центр Musholm. Фото: Kirstine Mengel

Основной элемент главного здания – 100-метровый пандус: поднимаясь по нему, человек огибает по остекленному периметру зал, предназначенный для концертов, лекций, спортивных состязаний, минует скалолазную стенку, приспособленную для пользователей инвалидных колясок, переговорные комнаты, зрительскую «трибуну», верхнюю точку зиплайна, откуда по воздуху можно вернуться на середину рампы, и завершает свой путь на смотровой площадке с панорамным видом на побережье.
 
Спортивно-рекреационный центр Musholm. Фото: Kirstine Mengel
Спортивно-рекреационный центр Musholm. Фото: Kirstine Mengel

Жилая часть комплекса – разомкнутое кольцо в плане; такая форма позволяет аккуратно вписать строение в ландшафт. Соответствующая ей геометрия внутреннего двора символизирует сообщество, которому, в свою очередь, «аккомпанируют» индивидуальные выходы на улицу через террасу в каждом из 24 номеров. Все окна, двери, занавеси в жилых комнатах открываются дистанционно, высота сантехнических приборов регулируется, кровати оснащены механизмами подъема головной части, чтобы была возможность привести человека в положение полусидя.
 
Спортивно-рекреационный центр Musholm. Фото: Kirstine Mengel
Спортивно-рекреационный центр Musholm. Фото: Kirstine Mengel

Архитекторы старались создать пространство, приспособленное не только для людей с проблемами опорно-двигательного аппарата, но и для слабовидящих и -слышащих: им в пространственной ориентации помогают вмонтированные в поверхности световые и звуковые индикаторы, для навигации по территории комплекса используются тактильные карты, а в переговорных комнатах установлен специальный режим усиленного освещения, необходимого для людей, читающих по губам.
 
Спортивно-рекреационный центр Musholm. Фото: Kirstine Mengel
Спортивно-рекреационный центр Musholm. Фото: Kirstine Mengel

Круглящиеся фасады с чередованием стеклянных отражающих и плотных непрозрачных поверхностей меняют восприятие сложившегося ландшафта, открывая непривычные ракурсы на морской берег; такое единение с природой проявляется и в деревянной отделке: фасады облицованы древесиной лиственницы, а в интерьере использован ясень.
 
Спортивно-рекреационный центр Musholm. Фото: Kirstine Mengel
Спортивно-рекреационный центр Musholm. Фото: Kirstine Mengel

Стоимость реализации проекта, финансируемого благотворительными организациями, составила около €13,4 млн.
Спортивно-рекреационный центр Musholm. Фото: Jens Markus Lindhe
Спортивно-рекреационный центр Musholm. Фото: Jens Markus Lindhe
Спортивно-рекреационный центр Musholm. Фото: Jens Markus Lindhe
Спортивно-рекреационный центр Musholm. Фото: Jens Markus Lindhe
Спортивно-рекреационный центр Musholm. Фото: Kirstine Mengel
Спортивно-рекреационный центр Musholm. Фото: Kirstine Mengel
Спортивно-рекреационный центр Musholm. Фото: Jens Markus Lindhe
Спортивно-рекреационный центр Musholm. Фото: Jens Markus Lindhe
Спортивно-рекреационный центр Musholm. Фото: Jens Markus Lindhe
Спортивно-рекреационный центр Musholm. Фото: Jens Markus Lindhe
Спортивно-рекреационный центр Musholm. Фото: Kirstine Mengel
Спортивно-рекреационный центр Musholm. Фото: Kirstine Mengel
Спортивно-рекреационный центр Musholm. Фото: Jens Markus Lindhe
Спортивно-рекреационный центр Musholm. Фото: Jens Markus Lindhe
Спортивно-рекреационный центр Musholm. Фото: Jens Markus Lindhe
Спортивно-рекреационный центр Musholm. Фото: Jens Markus Lindhe
Спортивно-рекреационный центр Musholm. Фото: Jens Markus Lindhe
Спортивно-рекреационный центр Musholm. Фото: Jens Markus Lindhe
Спортивно-рекреационный центр Musholm © AART architects
Спортивно-рекреационный центр Musholm © AART architects
Спортивно-рекреационный центр Musholm © AART architects
Спортивно-рекреационный центр Musholm © AART architects
Спортивно-рекреационный центр Musholm © AART architects
Спортивно-рекреационный центр Musholm © AART architects
Спортивно-рекреационный центр Musholm © AART architects
Спортивно-рекреационный центр Musholm © AART architects