Размещено на портале Архи.ру (www.archi.ru)

16.12.2015

Библиотека Варшавского университета

Ирина Бембель
Объект:
Библиотека Варшавского университета
Адрес:
Польша, Варшава. Dobra, 56/66
Мастерская:
Budzynski & Badowski
Авторский коллектив:
Архитекторы: Марек Будзинский, Збигнев Бадовский

Библиотека Варшавского университета с факультетом права и администрации была построена по проекту бюро Budzynski & Badowski в 2000 году и сразу стала одной из достопримечательностей польской столицы.

Библиотека Варшавского университета. Постройка, 2000. Фотография © Архитектурная мастерская “Budzynski & Badowski”
Библиотека Варшавского университета. Постройка, 2000. Фотография © Архитектурная мастерская “Budzynski & Badowski”

Библиотека – самостоятельный комплекс, расположенный на берегу Вислы, в удалении от старого здания университета в центре Варшавы.

«Конкурсный проект возник в 1993 году, на четвёртом году существования новой Польши, – пишет Марек Будзинский. – Это были годы надежды, смятения, растерянности между новым и старым. Для меня это были годы поиска отношения к реальности, выработки своего мировоззрения, а также простой борьбы за выживание. Главное – я старался двигаться в том направлении, которое мы называем устойчивым развитием».

Предыстория комплекса такова: в начале XX века на территории Варшавского университета, вдоль улицы Краковское предместье, было построено новое здание библиотеки. Спустя сто лет оно морально устарело, и потребовалась новая постройка, более вместительная и отвечающая требованиям противопожарной безопасности. Сначала предполагалось использовать для размещения библиотеки здание Центрального комитета Польской объединённой рабочей партии, которое было национализировано после 1989 года. Это, однако, оказалось невозможным из-за недостаточной надёжности конструкции. Здание сдали внаём варшавской бирже, а прибыль направили на строительство нового здания библиотеки.

В 1993 году был объявлен открытый международный конкурс на проект нового здания, в котором победил Марек Будзинский и его соавтор Збигнев Бадовский с коллективом. Строительные работы на участке вблизи набережной начались в 1995 году.

Исторически Варшава развивалась «спиной» к реке, и берега Вислы оставались до недавнего времени довольно беспорядочно и редко застроенными окраинами. В конкурсном задании учитывалось преимущество соседства реки, оно включало требование создать рядом с библиотекой ботанический сада. Победители конкурса предложили сделать ботанический сад университетским, объединив его в одно целое с эксплуатируемой кровлей: зелёный массив «плавно взбирается» на крышу здания, образуя единое разноуровневое рекреационное пространство. Такой приём плюс небольшая высота и классицизированная регулярность остальных трёх фасадов обеспечили монументальной постройке мягкое и гармоничное вхождение в ответственную зону панорамы Вислы.
Библиотека Варшавского университета. Генеральный план Постройка, 2000. Фотография © Архитектурная мастерская “Budzynski & Badowski”
Библиотека Варшавского университета. Генеральный план Постройка, 2000. Фотография © Архитектурная мастерская “Budzynski & Badowski”
Библиотека Варшавского университета. Вид с высоты птичьего полёта. Постройка, 2000. Фотография © Архитектурная мастерская “Budzynski & Badowski”
Библиотека Варшавского университета. Вид с высоты птичьего полёта. Постройка, 2000. Фотография © Архитектурная мастерская “Budzynski & Badowski”

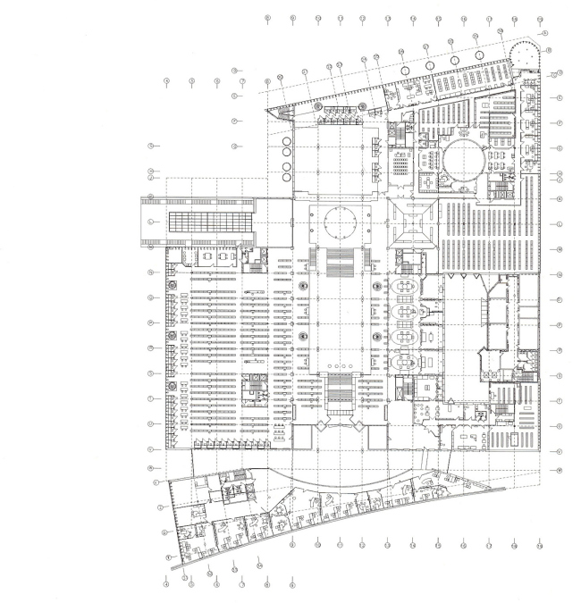
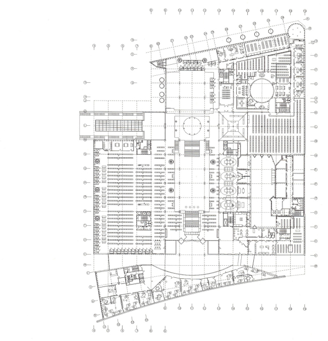
Библиотека имеет два подземных и четыре наземных этажа. Конкурсное задание предусматривало создание дополнительной коммерческой зоны на территории библиотеки. Поэтому первый подземный этаж практически весь занят торговлей, сервисными мастерскими, книжными магазинами и т.д. (этаж -2, как обычно, отдан паркингу). Нулевой уровень библиотеки (1 этаж) занят, в основном, фондами. Главные публичные пространства располагаются на втором этаже, третий и четвёртый вмещают читальные залы и служебные помещения.
Библиотека Варшавского университета. План -2 этажа. Постройка, 2000. Фотография © Архитектурная мастерская “Budzynski & Badowski”
Библиотека Варшавского университета. План -2 этажа. Постройка, 2000. Фотография © Архитектурная мастерская “Budzynski & Badowski”
Библиотека Варшавского университета. План -1 этажа. Постройка, 2000. Фотография © Архитектурная мастерская “Budzynski & Badowski”
Библиотека Варшавского университета. План -1 этажа. Постройка, 2000. Фотография © Архитектурная мастерская “Budzynski & Badowski”
Библиотека Варшавского университета. План 1 этажа. Постройка, 2000. Фотография © Архитектурная мастерская “Budzynski & Badowski”
Библиотека Варшавского университета. План 1 этажа. Постройка, 2000. Фотография © Архитектурная мастерская “Budzynski & Badowski”
Библиотека Варшавского университета. Разрез. Постройка, 2000. Фотография © Архитектурная мастерская “Budzynski & Badowski”
Библиотека Варшавского университета. Разрез. Постройка, 2000. Фотография © Архитектурная мастерская “Budzynski & Badowski”

Наземный объём разделён на две части. Первая – так называемый «Рогалик» – вытянутый в плане треугольник неправильной формы, где на всех этажах размещается торговля и кафе. Вторая – основное здание, близкое в плане к квадрату, занимающее целый квартал. Примерно четверть этого квартала занимает факультет права и администрации, образуя отдельное внутреннее каре с собственным двором. В диагонально противоположном углу библиотечного массива сделана выемка, огибающая историческое здание Серой виллы.

Между «Рогаликом» и основным зданием проходит «Уличка» – пешеходный променад с верхним остеклением.
Библиотека Варшавского университета. Здание «Рогалик». Постройка, 2000. Фотография © Архитектурная мастерская “Budzynski & Badowski”
Библиотека Варшавского университета. Здание «Рогалик». Постройка, 2000. Фотография © Архитектурная мастерская “Budzynski & Badowski”
Библиотека Варшавского университета. Здание «Рогалик». Постройка, 2000. Фотография © Архитектурная мастерская “Budzynski & Badowski”
Библиотека Варшавского университета. Здание «Рогалик». Постройка, 2000. Фотография © Архитектурная мастерская “Budzynski & Badowski”

Дойдя до середины «Улички», можно попасть собственно в библиотеку, хотя её пространство начинается не сразу: его предваряет своего рода переходная, буферная зона. На перпендикулярной «Уличке» оси расположены символические ворота «Святыни знаний», над которыми «парит» укреплённая на стеклянной стене медная книга с латинской надписью: Hinc omnia («Отсюда всё»).
Библиотека Варшавского университета. Основное здание. Постройка, 2000. Фотография © Архитектурная мастерская “Budzynski & Badowski”
Библиотека Варшавского университета. Основное здание. Постройка, 2000. Фотография © Архитектурная мастерская “Budzynski & Badowski”

Справа от них расположен ресторан библиотеки, слева – выставочный зал. Представительный главный фасад – «Фасад культуры» – находится со стороны «Рогалика», два входа в комплекс расположены по концам «Улички».
Библиотека Варшавского университета. Постройка, 2000. Фотография © Архитектурная мастерская “Budzynski & Badowski”
Библиотека Варшавского университета. Постройка, 2000. Фотография © Архитектурная мастерская “Budzynski & Badowski”

На главном фасаде, как и в здании Дворца правосудия (ещё одна знаковая постройка Будзинского в Варшаве), применён приём сочетания стеклянной стены и патинированной медной колоннады. В данном случае колонны тонкие, попарно соединённые большими медными таблицами. На них воспроизведены старинные тексты на санскрите, иврите, арабском, греческом, древнерусском и старопольском языках, а также рукописи математических формул и нот. Колонны поддерживают массивный символический фриз с надписью «Университетская библиотека».

Один польский критик написал, что «Фасад культуры», подобно фиговому листку, стыдливо прикрывает коммерческую зону, доход от которой направляется на поддержание работы библиотеки. На мой взгляд, ни стыдливости, ни, тем более, сарказма в нём нет: фасад серьёзен. В нём есть ясно читаемая идея связи времён через высокие точки мысли и вдохновения – что мы и называем культурой. А «Рогалик» коммерции даже вносит в библиотечную зону тот необходимый элемент «житейского», без которого она была бы слишком «строгой» и однозначной. Сквозная для Марека Будзинского тема творческой роли противоречий находит здесь своё органичное отражение.

«Уличка» с её магазинами и кафе «засасывает» внешний хаос в ясный строй библиотечного пространства, где доминирует Культура. Даже сидя в кафе или прогуливаясь по торговым галереям, люди видят вход в сокровищницу знаний и напоминание: «Отсюда всё». Эта надпись открывает перпендикулярную «Уличке» перспективу библиотечного пространства. В неё «втягивают» символические пропилеи: развёрнутые под 45 градусов две спаренных тонких колонны и два монументальных уплощённых пилона с изображениями текстов. Далее читатель пересекает «магическую» стеклянную черту, обозначенную парящей книгой, и попадает в священное пространство знаний. Направление продолжает широкий лестничный марш, подхваченный взлётом четырех входных колонн. Отсюда глазу открывается обширное пространство высокого холла каталогов и информации.
Библиотека Варшавского университета. Холл каталогов и информации. Постройка, 2000. Фотография © Архитектурная мастерская “Budzynski & Badowski”
Библиотека Варшавского университета. Холл каталогов и информации. Постройка, 2000. Фотография © Архитектурная мастерская “Budzynski & Badowski”

Колоннада философов – это простые вытянутые цилиндры из грубого бетона, без баз, энтазиса и капителей, ставшие постаментами для четырёх реалистичных скульптур польских мыслителей. Обращает на себя внимание полное отсутствие патетики, мягкая, добрая интонация и искра юмора в трактовке их образов.
Библиотека Варшавского университета. Основное здание. Постройка, 2000. Фотография © Архитектурная мастерская “Budzynski & Badowski”
Библиотека Варшавского университета. Основное здание. Постройка, 2000. Фотография © Архитектурная мастерская “Budzynski & Badowski”

В глубине открывающейся перспективы зала ещё одна лестница ведёт к окружённой колоннами ротонде под стеклянным куполом. Это место пересечения трёх перпендикулярных осей координат: вертикальной и двух горизонтальных. Под ротондой находится главная сокровищница библиотеки – закрытые фонды, отделённые от верхних уровней стеклом. Таким образом, вся вертикальная ось напоминает символический колодец, откуда можно черпать знания. Стеклянный купол пропускает таинственные лучи розоватого света как нити, связывающие «колодец знаний» со вселенной.
Библиотека Варшавского университета. Ротонда. Постройка, 2000. Фотография © Архитектурная мастерская “Budzynski & Badowski”
Библиотека Варшавского университета. Ротонда. Постройка, 2000. Фотография © Архитектурная мастерская “Budzynski & Badowski”

Протяжённый неф каталожного зала, стеклянный купол над средокрестием осей, ритмичный шаг спаренных колонн, отделяющих три уровня «хор» – сакральная символика буквально пронизывает главное пространство библиотеки. Колоннам придан образ деревьев: своими металлическими «ветвями» они тянутся к небу, поддерживая прозрачную стеклянную крышу над главным пространством библиотеки. Вокруг центрального нефа группируются читальные залы, помещения для обработки собраний и другие необходимые отделы библиотеки. Одним из главных достоинств проекта члены конкурсного жюри называли «эластичность» пространств, возможность их трансформации под меняющиеся нужды библиотеки. Наземные ярусы, помимо двух широких лестничных маршей на главной оси, объединены четырьмя вертикалями изящных винтовых лестниц по обе стороны от главного нефа. Все пять уровней библиотеки связаны семью стволами коммуникаций с лифтами и пожарными лестницами.
Библиотека Варшавского университета. Лестница. Постройка, 2000. Фотография © Архитектурная мастерская “Budzynski & Badowski”
Библиотека Варшавского университета. Лестница. Постройка, 2000. Фотография © Архитектурная мастерская “Budzynski & Badowski”
Библиотека Варшавского университета. Верхний ярус. Постройка, 2000. Фотография © Архитектурная мастерская “Budzynski & Badowski”
Библиотека Варшавского университета. Верхний ярус. Постройка, 2000. Фотография © Архитектурная мастерская “Budzynski & Badowski”

Через пространство главного холла переброшен стеклянный мостик, с которого можно разглядеть в доступной близости каменных чудаков-философов, венчающих входные колонны. Верхний ярус оказывается в «лесу» металлических ветвей (или доисторических тычинок) в качестве «капителей» огромных парных колонн. Гигантское, насквозь прозрачное металлостеклянное пространство открывается отсюда неожиданными, острыми ракурсами.
Библиотека Варшавского университета. Постройка, 2000. Фотография © Архитектурная мастерская “Budzynski & Badowski”
Библиотека Варшавского университета. Постройка, 2000. Фотография © Архитектурная мастерская “Budzynski & Badowski”

В отличие от строгих и спокойных интерьеров Дворца правосудия, здесь незримо присутствует дух игры, выражающийся в непредсказуемой смене удивительных пространственных сюжетов. Эта игра, не имеющая ничего общего с постмодернистской пародийной иронией, присутствует и во внешнем облике здания. Совершенно непредсказуема смена фасадов, каждый из которых наделён собственным неповторимым обликом. У входа в «Уличку», который примыкает к улице Липовой, установлена марганцево-розовая стеллажная конструкция, которая утратила свою функцию, но стала важным декоративным элементом.
Фотография © Архитектурная мастерская “Budzynski & Badowski”
Фотография © Архитектурная мастерская “Budzynski & Badowski”

Фасад по улице Липовой состоит из трёх самостоятельных по характеру частей: стеклянного фасада факультета права и администрации с медной ликторской символикой и обрамляющих его с двух сторон стен, увитых зеленью (они относятся, соответственно, к общественному пространству «Улички» и к библиотеке). Эта бетонная поверхность («экологический» фасад) является основной тканью оболочки здания, повторяясь в разных комбинациях с каждой из его сторон.
Библиотека Варшавского университета. Факультет Права и Администрации. Постройка, 2000. Фотография © а
Архитектурная мастерская “Budzynski & Badowski”
Библиотека Варшавского университета. Факультет Права и Администрации. Постройка, 2000. Фотография © а Архитектурная мастерская “Budzynski & Badowski”
Библиотека Варшавского университета. Факультет Права и Администрации. Постройка, 2000. Фотография © Архитектурная мастерская “Budzynski & Badowski”
Библиотека Варшавского университета. Факультет Права и Администрации. Постройка, 2000. Фотография © Архитектурная мастерская “Budzynski & Badowski”
Библиотека Варшавского университета. Факультет Права и Администрации. Постройка, 2000. Фотография © Архитектурная мастерская “Budzynski & Badowski”
Библиотека Варшавского университета. Факультет Права и Администрации. Постройка, 2000. Фотография © Архитектурная мастерская “Budzynski & Badowski”

Угол улицы Липовой и Костюшковской набережной закреплён полукруглым выступом и венчающей его смотровой ротондой («Бельведерик») с видом на Вислу. Здесь же, на углу, поставлена небольшая классическая арка с бюстом – фрагменты бывшей здесь ранее застройки, выполняющие роль «памяти места».
Библиотека Варшавского университета. Постройка, 2000. Фотография © Ирина Бембель
Библиотека Варшавского университета. Постройка, 2000. Фотография © Ирина Бембель

Фасад по Костюшковской набережной делает отступ для реконструированного здания Серой виллы начала XX века. Вогнутый угол облицован зеркальным стеклом, отражающим краснокирпичные неоготические очертания. И к стеклянной, и к основной «экологической» поверхности примыкает ряд высоких цилиндров, вмещающих вентиляционные устройства . Они имеют вид могучих отдельно стоящих колонн и усиливают монументальное звучание здания.

Наконец, четвёртый фасад решён как «экологическая» стена с зелёным пандусом, по которому университетский сад плавно «переползает» на крышу.

Библиотечный комплекс имеет целую сеть продуманных градостроительных связей: улица Добрая несёт сюда ритм городской жизни, улица Липовая протягивает ось к старому университету, на перекрёсток улиц Добжей и Генстей простреливает историческая Ось Саска – ещё одна нить, связывающая с прошлым Варшавы. Вместе с тем, удачное расположение здания на Варшавском склоне (берегу Вислы) кладёт основание дальнейшему обустройству этого района. Таким образом, здесь вновь звучат в полную силу лейтмотивы творчества Будзинского: единство противоречий, связь прошлого и будущего, диалог природы и культуры.

 
***
Сад на крыше 
Библиотека Варшавского университета. План сада библиотеки. Постройка, 2000. Фотография © Архитектурная мастерская “Budzynski & Badowski”
Библиотека Варшавского университета. План сада библиотеки. Постройка, 2000. Фотография © Архитектурная мастерская “Budzynski & Badowski”

Висячий сад на крыше библиотеки, занимающий площадь более одного гектара – один из самых больших и красивых в Европе (дизайнер Ирэна Баэрска). Он состоит из двух частей – верхней и нижней, объединённых пологим склоном с потоками стекающей каскадом воды. Особыми украшениями нижнего сада стали «космогонические» гранитные скульптуры-валуны Рыхарда Стрыецкого (Stryjecki).
Верхний сад разбит на несколько участков, и в каждом разворачивается собственный сюжет форм, цвета, аромата и настроения. Это золотой, серебряный, карминовый и зелёный сады (последний находится над «Рогаликом» коммерции, со стороны улицы Доброй). На крышу ведёт пологий озеленённый пандус, переходящий в контуры беседки над стеклянным куполом библиотеки.
Библиотека Варшавского университета. Сад на крыше. Постройка, 2000. Фотография © Архитектурная мастерская “Budzynski & Badowski”
Библиотека Варшавского университета. Сад на крыше. Постройка, 2000. Фотография © Архитектурная мастерская “Budzynski & Badowski”

Эта беседка – стальной полусферический каркас, увитый зеленью, и продолжает тему связи с космосом. Поэтому она называется «беседка-антенна». Стеклянные фонари верхнего света занимают 20% территории крыши. В двух местах над ними проложены видовые прогулочные мостики. Отсюда открываются прекрасные панорамы.
Библиотека Варшавского унивеситета. Сад на крыше. Постройка, 2000. Фотография © Архитектурная мастерская “Budzynski & Badowski”
Библиотека Варшавского унивеситета. Сад на крыше. Постройка, 2000. Фотография © Архитектурная мастерская “Budzynski & Badowski”
Библиотека Варшавского университета. Сад на крыше. Постройка, 2000. Фотография © Архитектурная мастерская “Budzynski & Badowski”
Библиотека Варшавского университета. Сад на крыше. Постройка, 2000. Фотография © Архитектурная мастерская “Budzynski & Badowski”

Несмотря на современный ландшафтный дизайн, крыша университетской библиотеки поражает своей дворцовой нарядностью. При этом роль мраморных ваз выполняют вентиляционные устройства, а роль павильонов – стеклянные купола над читальными залами. Каскады воды, «космогоническая» скульптура, искусные пространственные сюжеты – всё это превращает зелёную крышу библиотеки в настоящие сады Семирамиды или перемещённые наверх партеры Версаля.
Библиотека Варшавского университета. Сад на крыше. Постройка, 2000. Фотография © Ирина Бембель
Библиотека Варшавского университета. Сад на крыше. Постройка, 2000. Фотография © Ирина Бембель
Библиотека Варшавского университета. Сад на крыше. Постройка, 2000. Фотография © Ирина Бембель
Библиотека Варшавского университета. Сад на крыше. Постройка, 2000. Фотография © Ирина Бембель
Библиотека Варшавского университета. Сад на крыше. Постройка, 2000. Фотография © Ирина Бембель
Библиотека Варшавского университета. Сад на крыше. Постройка, 2000. Фотография © Ирина Бембель

Марек Будзинский любит подчёркивать, что при высокой технической оснащённости и наличии верхнего сада, стоимость библиотеки получилась относительно умеренной – в первую очередь, за счёт использования бетона как основного строительного материала.
Библиотека Варшавского университета. Сад на крыше. Постройка, 2000. Фотография © Архитектурная мастерская “Budzynski & Badowski”
Библиотека Варшавского университета. Сад на крыше. Постройка, 2000. Фотография © Архитектурная мастерская “Budzynski & Badowski”
Библиотека Варшавского университета. Сад на крыше. Постройка, 2000. Фотография © Архитектурная мастерская “Budzynski & Badowski”
Библиотека Варшавского университета. Сад на крыше. Постройка, 2000. Фотография © Архитектурная мастерская “Budzynski & Badowski”
***
 
Архитектура библиотеки и почерк Будзинского в целом с трудом поддаётся стилевой классификации. Порой ему приклеивают ярлык постмодерниста, но это неверно. В общественных зданиях Будзинского всегда присутствуют символические элементы, фокусирующие внимание в том или ином locum sacrum (таких священных мест может быть несколько). В университетской библиотеке, трактуемой как «Святыня знаний», это средокрестие осей с «Сокровищницей» закрытых фондов и беседкой-антеной на крыше. Эти «историзмы» Будзинского направлены на отыскание в архитектуре первоначальной «платоновской» сущности, надфункционального смысла, тогда как постмодернизм является по сути пародией на традицию, снимая с неё тысячелетний ореол. Иными словами, если постмодернизм низводит священное до обыденного, то Будзинский, напротив, возводит обыденное до статуса священного.

Постмодернистская игра абсурда на самом деле очень рассудочна, интеллектуальна. Иррациональность Будзинского, напротив, стихийна, интуитивна. Их посыл прямо противоположен: в первом случае констатируется утрата смысла, во втором – переживается обретение смысла.
 
Библиотека Варшавского университета. Сад на крыше. Постройка, 2000. Фотография © Архитектурная мастерская “Budzynski & Badowski”
Библиотека Варшавского университета. Сад на крыше. Постройка, 2000. Фотография © Архитектурная мастерская “Budzynski & Badowski”