Размещено на портале Архи.ру (www.archi.ru)

11.11.2015

Дом в себе

Антон Преображенский
Объект:
Частный жилой дом
Адрес:
Россия, Москва. Московская область, Пушкинский район
Авторский коллектив:
Архитекторы и интерьеры: Алексей Ильин

Собственный деревянный дом – реализация мечты архитектора о доме-интроверте, способном при необходимости спрятать своих обитателей от внешнего мира.

Частный жилой дом. Фотография © Дмитрий Чебаненко
Частный жилой дом. Фотография © Дмитрий Чебаненко

Дом площадью 210м2 со стороны производит впечатление предельно компактного сооружения. На этот образ работают и конфигурация самого объема, и его расположение на участке. Архитектор придал плану форму вытянутого прямоугольника, расположив его поперёк и при этом посередине прямоугольного же участка с минимальными, продиктованными нормами, отступами от заборов. Десять соток таким образом визуально распались на две не зависимых друг от друга территории: парадный палисадник и задний двор-огород. «Классическая для русской деревни планировка участка», – комментирует автор проекта.
Частный жилой дом. Генеральный план © Алексей Ильин
Частный жилой дом. Генеральный план © Алексей Ильин
Частный жилой дом. Фотография © Дмитрий Чебаненко
Частный жилой дом. Фотография © Дмитрий Чебаненко
Частный жилой дом. Фотография © Дмитрий Чебаненко
Частный жилой дом. Фотография © Дмитрий Чебаненко

Дом имеет два этажа, но далеко не с каждого ракурса это очевидно. Дело в том, что почти все помещения верхнего уровня освещены через мансардные окна, а уклон двухскатной кровли сделан минимальным. На «длинных» фасадах (т.е. на главном и на том, что обращен к огороду), под скаты заводятся абсолютно глухие деревянные поверхности, и хотя торцы дома решены иначе, при входе на участок и тем более с улицы видны лишь эти непроницаемые конструкции, создающие ощущение «вещи в себе». Его многократно усиливают ставни – выполненные из того же дерева, что и фасады, и выкрашенные в точно такой же светло-серый оттенок, они способны закрыть заподлицо все остекленные проемы. И тогда единственным намёком на наличие окон остаются лишь собранные из более узких реек, чем фасады, ставни и их тонкие прямоугольные окантовки-рамы. В таком «зачехленном» виде дом выглядел бы идеальным параллелепипедом, если бы не террасы по обоим торцам, а также глубокая квадратная ниша главного входа.
Частный жилой дом. Фотография © Дмитрий Чебаненко
Частный жилой дом. Фотография © Дмитрий Чебаненко
Частный жилой дом. Фотография © Дмитрий Чебаненко
Частный жилой дом. Фотография © Дмитрий Чебаненко
Частный жилой дом. Фотография © Дмитрий Чебаненко
Частный жилой дом. Фотография © Дмитрий Чебаненко
Частный жилой дом. Фотография © Дмитрий Чебаненко
Частный жилой дом. Фотография © Дмитрий Чебаненко
Частный жилой дом. Фотография © Дмитрий Чебаненко
Частный жилой дом. Фотография © Дмитрий Чебаненко

К террасам обращены два основных общественных пространства дома – гостиная-столовая с одной стороны и мастерская с другой. Оба они двухсветные, хотя количество окон разное: в мастерской при желании можно «расчехлить» настоящие панорамные окна, тогда как над частью гостиной расположена антресоль с игровой детской зоной, что автоматически уменьшает проемы до сравнительно стандартных. Разнесённые в разные концы дома гостиная и мастерская замыкают основную – продольную – ось его жилого пространства, на которую посередине нанизаны «бусины» поменьше – технические помещения и гостевая спальня на первом этаже, три спальни на втором. Впрочем, есть и не менее важная поперечная ось, которую образуют входной холл и расположенный напротив него лестничный. Воздуха и пространственной интриги этому формально совсем небольшому расстоянию добавляют остеклённые проемы – окно в сад и собственно входная дверь, которая также сделана прозрачной. Даже с улицы этот эффектный видовой «прострел» хорошо заметен.
Частный жилой дом. Фотография © Дмитрий Чебаненко
Частный жилой дом. Фотография © Дмитрий Чебаненко
Частный жилой дом. Фотография © Дмитрий Чебаненко
Частный жилой дом. Фотография © Дмитрий Чебаненко
Частный жилой дом. Фотография © Дмитрий Чебаненко
Частный жилой дом. Фотография © Дмитрий Чебаненко
Частный жилой дом. Фотография © Дмитрий Чебаненко
Частный жилой дом. Фотография © Дмитрий Чебаненко
Частный жилой дом. Фотография © Дмитрий Чебаненко
Частный жилой дом. Фотография © Дмитрий Чебаненко
Частный жилой дом. Фотография © Дмитрий Чебаненко
Частный жилой дом. Фотография © Дмитрий Чебаненко
Частный жилой дом. Фотография © Дмитрий Чебаненко
Частный жилой дом. Фотография © Дмитрий Чебаненко

Темы монохромного решения фасадов и открытости/закрытости Алексей Ильин педантично развивает и во всех интерьерах своего дома. Первое, что бросается в глаза, – это, конечно, цвет. В отделке помещений не просто доминирует всё тот же серый (справедливости ради, на несколько оттенков светлее, чем на фасадах) – он трактован как единственно возможный. «Белый слишком маркий, все остальные цвета слишком яркие», – поясняет архитектор, рассказывая, как выбирал оптимальный фон для редких (редчайших!) цветовых акцентов вроде оранжевого дивана или желтого цветочного горшка. Поначалу, кстати, архитектор хотел обтянуть желтой тканью и самодельный абажур над обеденным столом, но потом оставил лишь сплетенный из бамбука каркас – говорит, что иначе абажур «съедал» слишком много пространства.
Частный жилой дом. Фотография © Дмитрий Чебаненко
Частный жилой дом. Фотография © Дмитрий Чебаненко
Частный жилой дом. Фотография © Дмитрий Чебаненко
Частный жилой дом. Фотография © Дмитрий Чебаненко
Частный жилой дом. Фотография © Дмитрий Чебаненко
Частный жилой дом. Фотография © Дмитрий Чебаненко

А в том, что именно пространство здесь главное, сомневаться не приходится: ни одной лишней детали. Чисто технически реализовать идею подобного порядка помогла встроенная мебель: за исключением одного открытого стеллажа в гостиной никакой видимой глазу корпусной мебели здесь нет. Причем, как и на фасадах, здесь Ильин добивается отсутствия явных визуальных намеков на границу между просто стеной и системами хранения. Под стены из бруса замаскированы все платяные шкафы, кухонная мебель, даже холодильник. Этот прием позволил даже очень скромные по площади спальни сделать визуально просторными, а габариты гостиной и мастерской подчеркнуть максимально выгодно. Сам архитектор признается, что наиболее сложным в практической реализации этого замысла было добиться примыкания досок стен, пола и потолка без использования традиционных и в каком-то смысле неотъемлемых для любого деревянного интерьера бесконечных плинтусов, планок и карнизов, скрепляющих углы. В этом доме все подобные сопряжения решены при помощи специально подготовленных угловых брусков. Такие решения стоили немалых усилий строителям, но позволили воплотить идею архитектора об интерьере без лишних деталей и шкафов. В частности, все межкомнатные двери воспринимаются органичным и неотъемлемым продолжением стен – открывая и закрывая их, можно менять внутреннюю планировку дома практически до бесконечности.
Частный жилой дом. Фотография © Дмитрий Чебаненко
Частный жилой дом. Фотография © Дмитрий Чебаненко
Частный жилой дом. Фотография © Дмитрий Чебаненко
Частный жилой дом. Фотография © Дмитрий Чебаненко
Частный жилой дом. Фотография © Дмитрий Чебаненко
Частный жилой дом. Фотография © Дмитрий Чебаненко
Частный жилой дом. Фотография © Дмитрий Чебаненко
Частный жилой дом. Фотография © Дмитрий Чебаненко
Частный жилой дом. Фотография © Дмитрий Чебаненко
Частный жилой дом. Фотография © Дмитрий Чебаненко
Частный жилой дом. Фотография © Дмитрий Чебаненко
Частный жилой дом. Фотография © Дмитрий Чебаненко
Частный жилой дом. Фотография © Дмитрий Чебаненко
Частный жилой дом. Фотография © Дмитрий Чебаненко
Частный жилой дом. Фотография © Дмитрий Чебаненко
Частный жилой дом. Фотография © Дмитрий Чебаненко
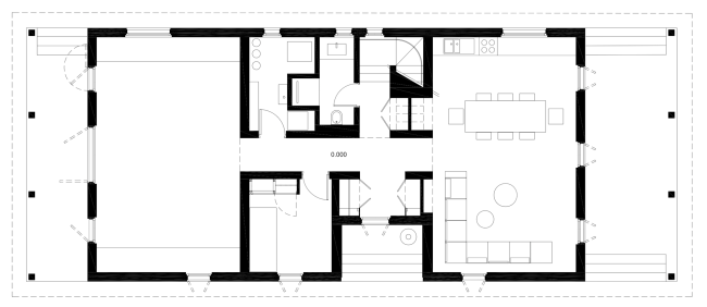
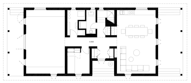
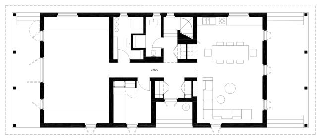
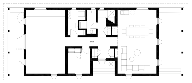
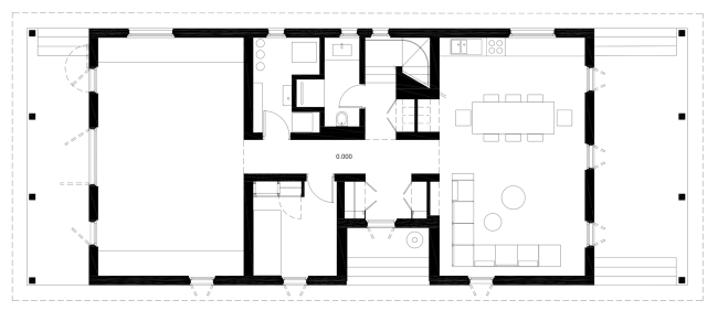
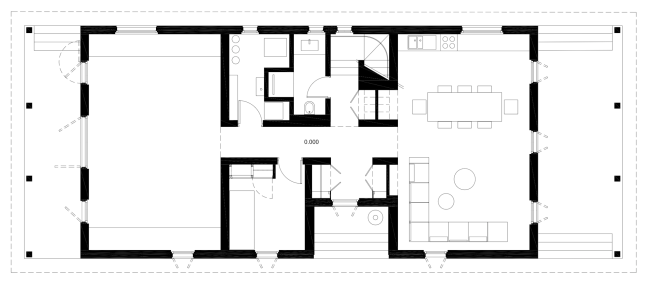
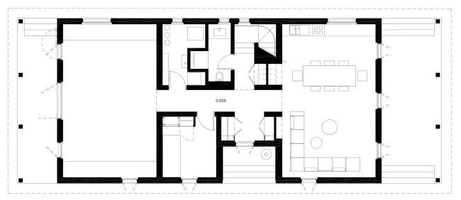
Частный жилой дом. План 1 этажа © Алексей Ильин
Частный жилой дом. План 1 этажа © Алексей Ильин
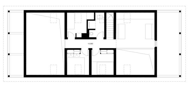
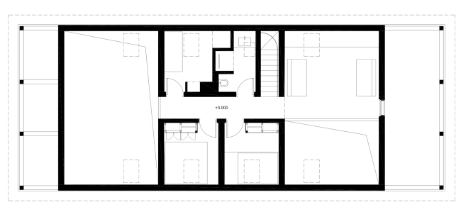
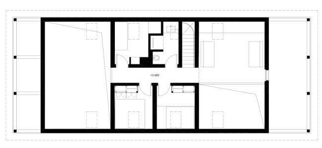
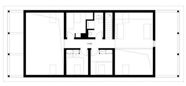
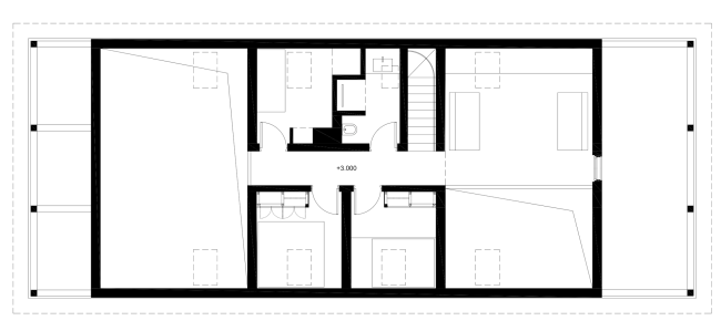
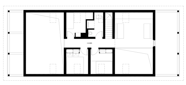
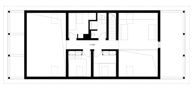
Частный жилой дом. План 2 этажа © Алексей Ильин
Частный жилой дом. План 2 этажа © Алексей Ильин
Частный жилой дом. Разрез © Алексей Ильин
Частный жилой дом. Разрез © Алексей Ильин
Частный жилой дом. Фасад © Алексей Ильин
Частный жилой дом. Фасад © Алексей Ильин
Частный жилой дом. Фасад © Алексей Ильин
Частный жилой дом. Фасад © Алексей Ильин