Размещено на портале Архи.ру (www.archi.ru)

26.10.2015

Идеальный фон

Анна Старостина
Объект:
Репетиционный центр балетной труппы Немецкой Рейнской Оперы
Адрес:
Германия, None, Дюссельдорф.
Мастерская:
gmp
Авторский коллектив:

PPP scheme gmp ∙ Architects von Gerkan, Marg and Partners

in cooperation with HOCHTIEF Solutions AG and HMI, BIG and Capatti Staubach

Design Volkwin Marg and Hubert Nienhoff with Kristian SpenckerTeam Veit Lieneweg, Silvia Schneider, Michael Scholz, Ramona Schwertfeger, Elisa Rodriguez, 

Elke Glass, Katerine Witte, Daniel Tome

В Дюссельдорфе открылось новое здание балетной труппы Немецкой Рейнской Оперы по проекту gmp.

Репетиционный центр балетной труппы Немецкой Рейнской Оперы © Marcus Bredt
Репетиционный центр балетной труппы Немецкой Рейнской Оперы © Marcus Bredt

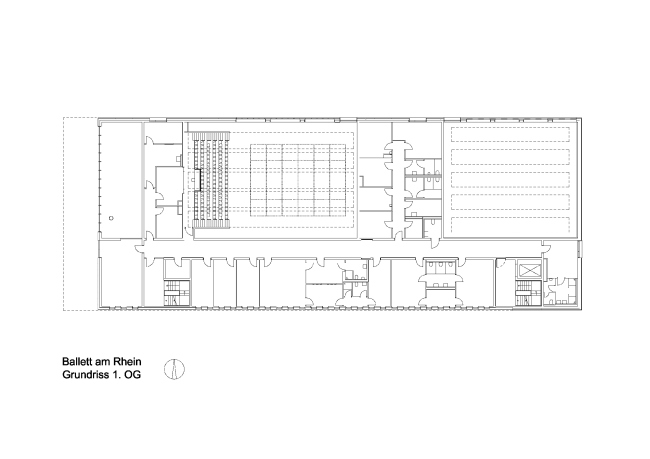
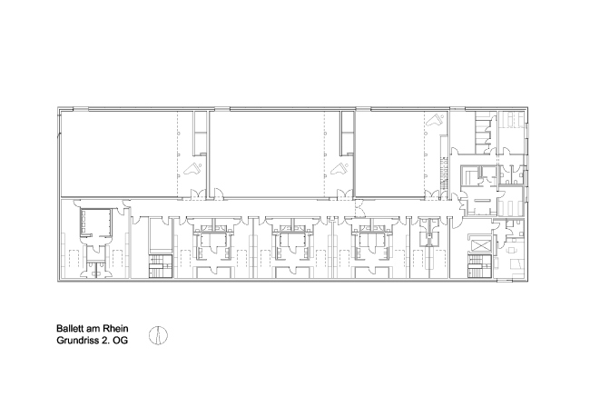
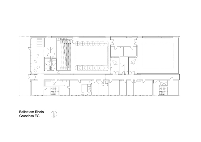
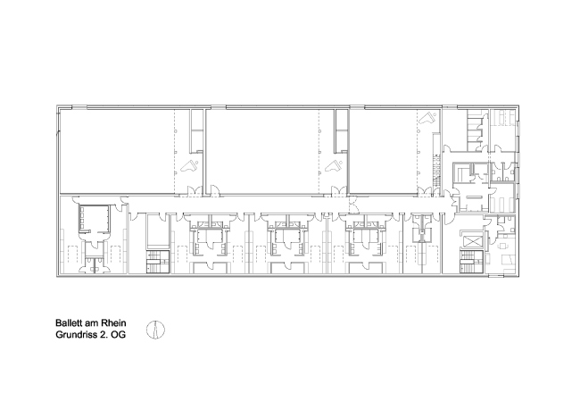
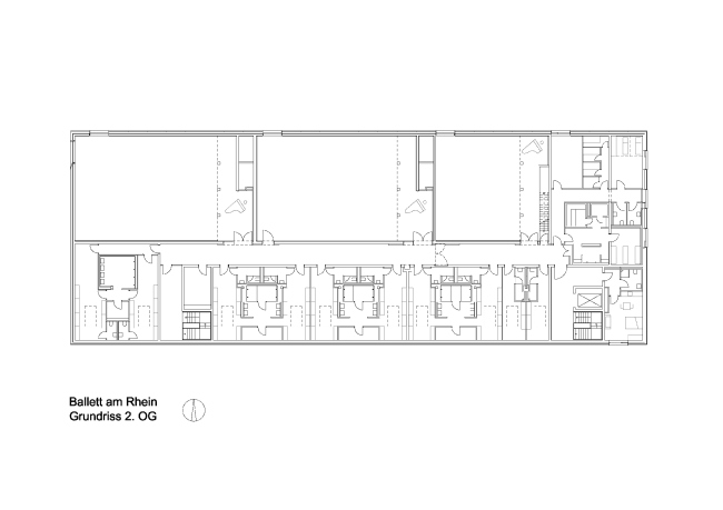
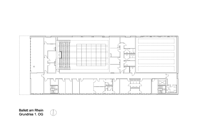
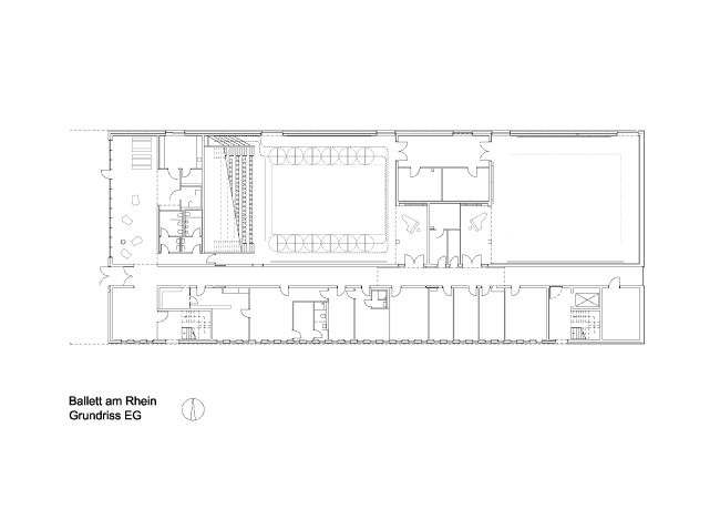
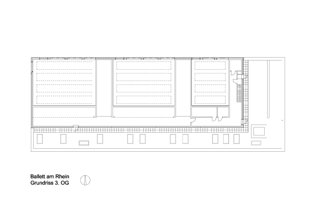
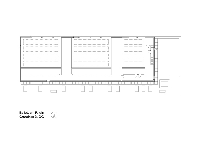
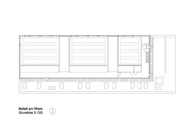
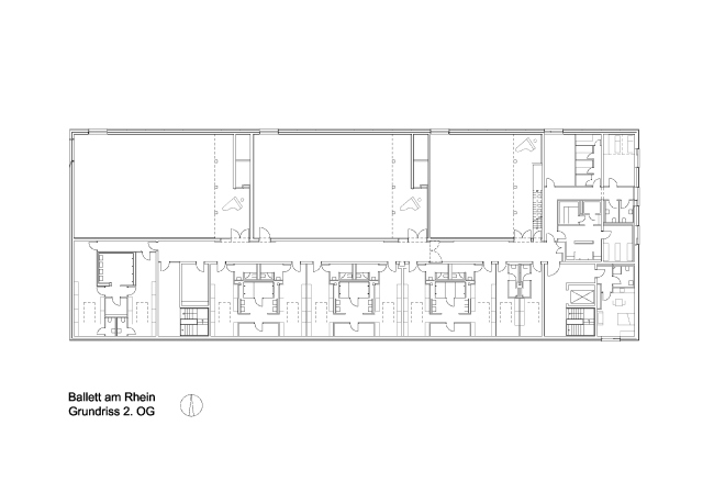
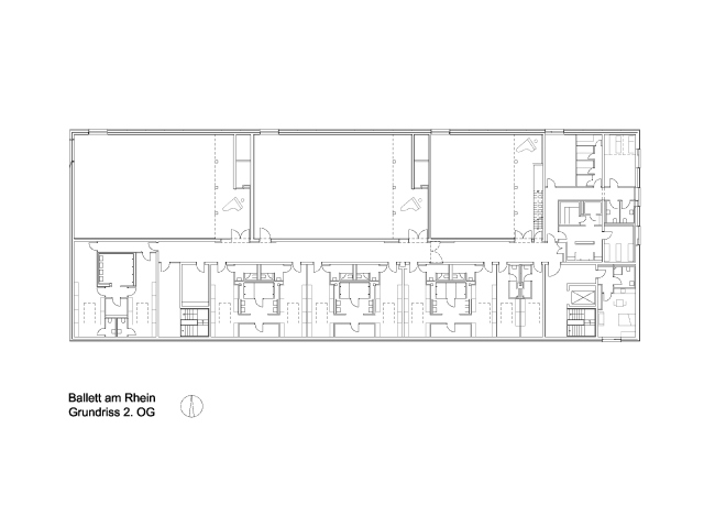
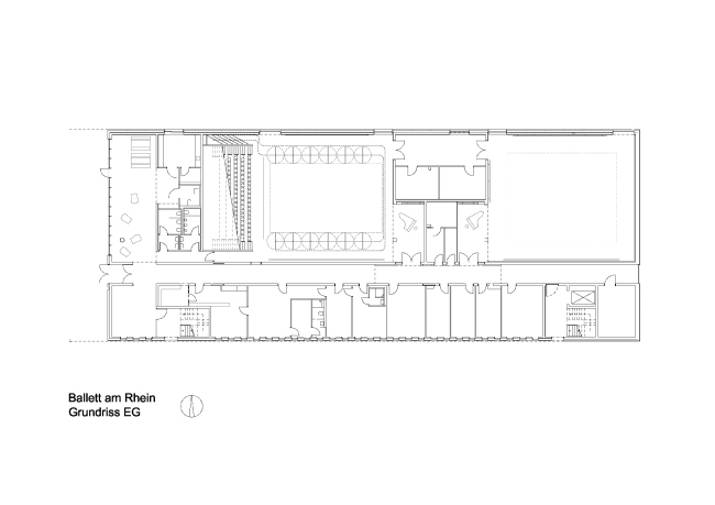
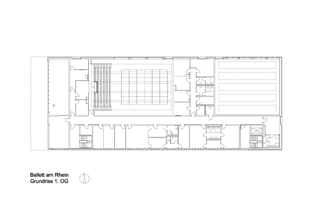
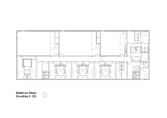
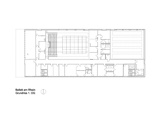
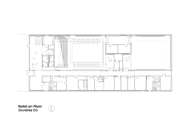
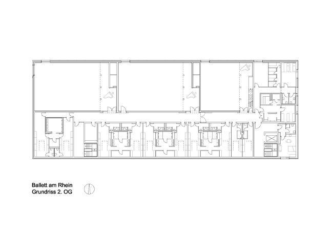
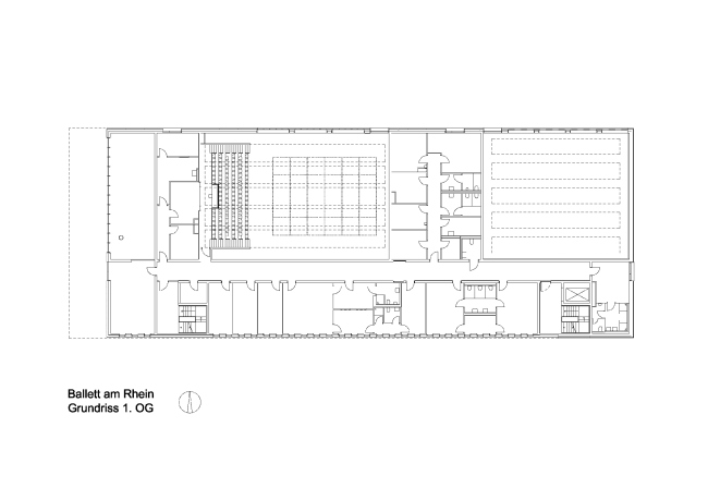
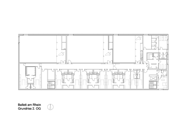
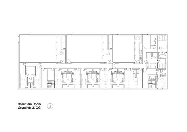
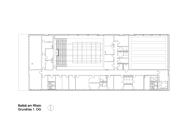
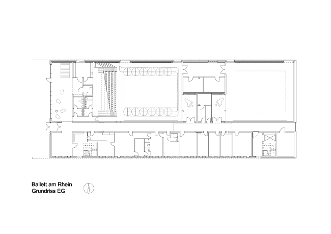
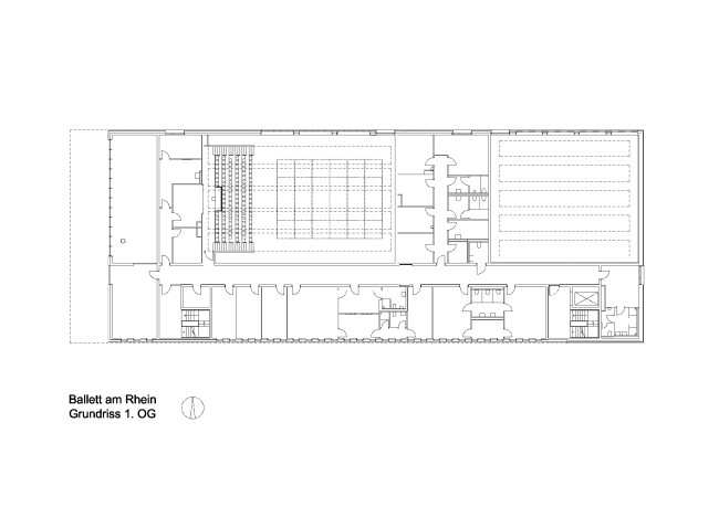
Строительство нового репетиционного центра заняло всего около 10 месяцев. Бюро gmp работало над этим объектом совместно с компанией Hochtief Solutions AG. Небольшое здание общей площадью 4500 м2 рассчитано на работу 50 штатных танцоров труппы, также в нем размещена балетная школа на 55 учащихся. Кроме двух больших репетиционных залов, повторяющих размеры сцены Рейнского оперного театра, предусмотрены еще три зала поменьше, раздевалки, комнаты отдыха и физиотерапии, даже апартаменты для приглашенных артистов.
Репетиционный центр балетной труппы Немецкой Рейнской Оперы © Marcus Bredt
Репетиционный центр балетной труппы Немецкой Рейнской Оперы © Marcus Bredt

Трехэтажный прямоугольный объем расположен в глубине квартала, на Коперникусштрассе (район Бильк). Индустриальный характер окружающей застройки, небольшие разномастные дома вокруг и, главное, соседнее здание бывшего трамвайного депо определили основные решения архитекторов: прежде всего, выбранную ими нарочито нейтральную, даже жесткую стилистику и «скучную» цветовую гамму. Более того, почти правильный параллелепипед балетного центра с серыми бетонными фасадами по своей высоте соответствует жилым корпусам, но получил уважительный уступ со стороны более низкого исторического комплекса депо.
Репетиционный центр балетной труппы Немецкой Рейнской Оперы © Marcus Bredt
Репетиционный центр балетной труппы Немецкой Рейнской Оперы © Marcus Bredt

«Ступеньке» отвечает нависающая над входом массивная часть верхнего яруса с интригующим окном, которое может трактоваться и как обязательное для балетного мира зеркало, и как картина. А за утопленной, полностью стеклянной стеной находится высокий входной атриум. Он предваряет сложно скомпонованные двухъярусные объемы собственно репетиционных залов и более низкие – с остальными помещениями. Открытые бетонные поверхности и скупую цветовую гамму архитекторы использовали и во внутренней отделке центра, придав ей необходимую брутальность и значимость, но полностью лишив какой-либо избыточности.
Репетиционный центр балетной труппы Немецкой Рейнской Оперы © Marcus Bredt
Репетиционный центр балетной труппы Немецкой Рейнской Оперы © Marcus Bredt
Репетиционный центр балетной труппы Немецкой Рейнской Оперы © Marcus Bredt
Репетиционный центр балетной труппы Немецкой Рейнской Оперы © Marcus Bredt
Репетиционный центр балетной труппы Немецкой Рейнской Оперы © Marcus Bredt
Репетиционный центр балетной труппы Немецкой Рейнской Оперы © Marcus Bredt
Репетиционный центр балетной труппы Немецкой Рейнской Оперы © Marcus Bredt
Репетиционный центр балетной труппы Немецкой Рейнской Оперы © Marcus Bredt
Репетиционный центр балетной труппы Немецкой Рейнской Оперы © Marcus Bredt
Репетиционный центр балетной труппы Немецкой Рейнской Оперы © Marcus Bredt
Репетиционный центр балетной труппы Немецкой Рейнской Оперы © Marcus Bredt
Репетиционный центр балетной труппы Немецкой Рейнской Оперы © Marcus Bredt
Репетиционный центр балетной труппы Немецкой Рейнской Оперы © gmp
Репетиционный центр балетной труппы Немецкой Рейнской Оперы © gmp
Репетиционный центр балетной труппы Немецкой Рейнской Оперы © gmp
Репетиционный центр балетной труппы Немецкой Рейнской Оперы © gmp
Репетиционный центр балетной труппы Немецкой Рейнской Оперы © gmp
Репетиционный центр балетной труппы Немецкой Рейнской Оперы © gmp
Репетиционный центр балетной труппы Немецкой Рейнской Оперы © gmp
Репетиционный центр балетной труппы Немецкой Рейнской Оперы © gmp
Репетиционный центр балетной труппы Немецкой Рейнской Оперы © gmp
Репетиционный центр балетной труппы Немецкой Рейнской Оперы © gmp
Репетиционный центр балетной труппы Немецкой Рейнской Оперы © gmp
Репетиционный центр балетной труппы Немецкой Рейнской Оперы © gmp
Репетиционный центр балетной труппы Немецкой Рейнской Оперы © gmp
Репетиционный центр балетной труппы Немецкой Рейнской Оперы © gmp