Размещено на портале Архи.ру (www.archi.ru)

25.01.2016

По направлению к воде

Лилия Аронова
Объект:
ЖК «Ривер парк» в районе Нагатинского затона
Адрес:
Россия, Москва. ул. Речников, вл. 7; Корабельная ул., 15
Архитектор:
Александр Скокан
Раис Баишев
Мастерская:
АБ «Остоженка»
Авторский коллектив:

А. Скокан, Р. Баишев, Г. Чертанов, С. Помелов, К.Гладкий, Д. Кодичев, Е. Алексеенко, А. Старостин, М. Елизарова, Д. Воронкова; при участии: А. Аникеев, А. Бутусов, А. Федорова

Представляем проект жилого квартала «Ривер-парк» на берегу Нагатинского затона от архитектурного бюро «Остоженка».

Жилой комплекс в районе Нагатинского затона
Жилой комплекс в районе Нагатинского затона
© АБ «Остоженка»

Случилось так, что территорию на берегу Нагатинского затона архитектурному бюро «Остоженка» пришлось осваивать дважды. Первый раз – как оказалось, несколько преждевременно, зато второй – в самый правильный момент: сразу после конкурса на развитие территорий, прилегающих к Москве-реке, в эпоху безоговорочной победы квартальной застройки над точечной. Можно с большой долей вероятности предположить, что именно с учётом этих обстоятельств участок, плюс ко всему прочему подпадающий под программу реновации промышленных территорий, при втором «подходе» получил более пристальное внимание и более солидное финансирование. В связи с этим, собственно, архитекторам и предложили «убрать со стола» первоначальный, вполне уже сформировавшийся проект жилого комплекса, предполагавший типовую застройку, и подготовить для того же участка совершенно новое объемно-пространственное решение. Не самая простая ситуация, особенно если учесть, что строительство первой очереди типовых домов уже началось, – но легкой жизни архитекторам, да ещё и в Москве, никто никогда не обещал.

До недавнего времени на территории между Нагатинским затоном и параллельной ему улицей Речников располагались корпуса крупного промышленного предприятия – Московского судоремонтного и судостроительного завода. Затем производство решено было перевести в более подходящее для этого место, но восьмидесятилетняя «кораблестроительная» история, кажется, навсегда закрепилась и в большинстве местных топонимов, и в памяти жителей города. Александр Скокан и его команда рассматривали этот факт как один из элементов контекста, в который им предстояло вписать свой проект. Ещё один действующий фактор – собственно микрорайон Нагатино, частью которого должен стать будущий жилой комплекс. Как считает главный архитектор проекта Раис Баишев, район этот «очень недооценен: добротная советская застройка с очень гуманными плотностью и этажностью, с озелененной территорией, которую с известной долей идеализма можно сравнить с европейскими или прибалтийскими жилыми районами». Вот эту негромко существующую, очень спокойную и комфортную атмосферу архитекторы хотели бы привнести и в свой проект – в новом, само собой, качестве, как архитектурном, так и идеологическом.

Ну а главной контекстуальной доминантой стало, разумеется, непосредственное соседство будущего квартала с водой. Вся вторая очередь Ривер-парка ориентирована на затон. Добиться этого было не так просто – план её квартала представляет собой правильный прямоугольник, почти квадрат, организованный вокруг большого двора, внутри которого запланировано строительство школы и детского сада. Своеобразным хороводом двор окружают семь жилых блоков – то есть композиция предполагает скорее центростремительную направленность, чем центробежную. Тем не менее игнорировать такой мощный магнит, как река, было совершенно немыслимо как с градостроительной, так и с коммерческой точки зрения. Если взглянуть на предварительные макеты, видно, что изначально архитекторы представляли себе шесть из семи блоков (седьмой, замыкающий двор сбоку, отличается и по расположению, и по архитектуре) практически идентичными, но затем – по здравом размышлении и согласившись с аргументами заказчика – внесли в проект изменения, и теперь первый ряд домов по объемно-планировочному решению отличается от заднего, при сохранении общей типологии. Вдобавок к очевидным риэлторским преимуществам такое решение добавило к образу квартала новую эмоцию: задние блоки словно выглядывают из-за спин передних, встав на цыпочки и вытянувшись изо всех сил, чтобы тоже полюбоваться престижным видом, которым так вальяжно наслаждаются обитатели первой линии. Возвращаясь от лирики к практике, заметим, что достижение этого результата было похоже на решение сложной математической задачи: учитывая повышенную коммерческую привлекательность первого ряда, продажный объем этих блоков удалось сделать больше, чем задних, хотя те и выше.
Жилой комплекс в районе Нагатинского затона. Макет
Жилой комплекс в районе Нагатинского затона. Макет
© АБ «Остоженка»
Жилой комплекс в районе Нагатинского затона. Макет
Жилой комплекс в районе Нагатинского затона. Макет
© АБ «Остоженка»
Жилой комплекс в районе Нагатинского затона
Жилой комплекс в районе Нагатинского затона
© АБ «Остоженка»

Каждый из блоков выглядит как раскрытое к реке полузамкнутое пространство с приподнятым над уровнем набережной двором, под которым запланирован гараж. Типологически это нечто среднее между отдельным зданием – поскольку все его части стоят на едином стилобате – и мини-кварталом, состоящим из трех не повторяющих друг друга объемов, окружающих внутренний двор. Комфортное безопасное пространство – разница высот между двором и проезжей частью делает въезд транспорта (кроме, при необходимости, спецтехники) физически невозможным – окружено по внутреннему периметру галереей, углубленной внутрь зданий. Таким образом невеликая в принципе площадь двора расширяется, прирастая уютными небольшими закоулками, где можно укрыться от дождя или просто посидеть – подышать речным воздухом. Сюда выходят вторые этажи двусветных вестибюлей, на уровне земли сообщающихся с улицей. Ориентация на затон подчеркнута благодаря террасированию: проектированию террас, в том числе открытых, было уделено особое внимание, поскольку элемент это для наших погодных условий достаточно опасный, а провоцировать архитектурный вандализм в форме разнокалиберного остекления и прочей самодеятельности не хотелось. Добавим, что в первой линии домов нет ни одной квартиры без вида на затон. В результате всё вместе – набережная, террасированные объемы первой линии, внутренний двор с детскими учреждениями, замыкающий композицию ряд более высоких блоков – складывается в стройную композицию с ярко выраженным вектором тяготения к воде.
Жилой комплекс в районе Нагатинского затона. План галереи
Жилой комплекс в районе Нагатинского затона. План галереи
© АБ «Остоженка»
Жилой комплекс в районе Нагатинского затона. Северная развёртка
Жилой комплекс в районе Нагатинского затона. Северная развёртка
© АБ «Остоженка»

Все кафе, магазинчики и прочие ритейлы в проекте выведены во внешние помещения первого ряда зданий, обращенные к затону. «Мы хотели, – говорит Раис Баишев, – чтобы набережная взяла на себя притягательную функцию, чтобы она была живой и функционально богатой». В этом стремлении с архитекторами оказались солидарны и инвестор, и Москомархитектуры, рассматривающий эту зону в рамках единого стандарта благоустройства московских набережных. Конечно, строго говоря, Нагатинский затон – это не Москва-река, но, кстати, в АБ «Остоженка» все многочисленные «реки и речушки», впадающие в главную водную артерию столицы, программно рассматривают как неотъемлемую часть водной системы; эта концепция была положена в основу проекта, с которым бюро участвовало в конкурсе на развитие прибрежных территорий, таким образом существенно расширив конкурсное задание.

А Нагатинский затон, в отличие от множества забытых богом и градостроителями малых рек, не нужно ни выпускать из подземных труб, ни разыскивать среди заболоченных топей: вот он, буквально за углом, глубокий, живописный и даже судоходный. Сам бог велел благоустроить его берега на радость людям – и лучше, конечно, на конкурсной основе. Между прочим, набережная Ривер-парка стала первым в Москве проектом благоустройства прибрежной территории, на который был объявлен отдельный архитектурный конкурс, стартовавший в феврале 2015. А летом были объявлены имена победителей. Первое место заняло не нуждающееся в представлении бюро WOWhaus с проектом цепочки разнообразных площадок с маяком в качестве композиционной кульминации. Генеральный проектировщик будущим сотрудничеством очень доволен: ещё со времен работы над генпланом Остоженки Александр Скокан и его коллеги стремятся к тому, чтобы территория осваивалась «не одной рукой», ведь чем больше разнообразного креатива, тем лучше результат. В частности, они искренне радуются нестандартным проектам детского сада и школы, в основу которых легли работы участников конкурса «Новый облик детских садов», показанные два года назад на Винзаводе. А благоустройством территории жилого комплекса будет заниматься команда T+T architects, чья концепция набережной Нагатинского затона заняла в конкурсе второе место. Их задача – увязать в проекте множество разноформатных факторов, как очевидных, таких как связь собственно жилого квартала авторства «Остоженки» с концепцией набережной от WOWhaus, так и пока только прогнозируемых.

Поскольку на данный момент построена лишь первая очередь, три 19-этажных корпуса с внутренним двором, решение этой территории должно стать чем-то вроде пилотного проекта, который стилистически определит благоустройство всего будущего квартала – и большого внутреннего пространства с детским садом и школой, и приподнятых двориков отдельных блоков, и планируемых в будущем офисных и торговых пространств. Все это «лоскутное одеяло» нужно обыграть функционально и не скучно, а главное – в русле общей композиции жилого района, заданной генеральным проектировщиком. Если все пойдет по плану, элементы этой композиции, иногда разнородные и достаточно четко зонированные, составят в результате единую, целостную и гармоничную городскую среду – понятие, особенно дорогое для Александра Скокана и архитекторов бюро «Остоженка».
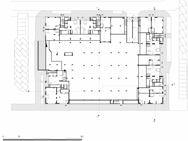
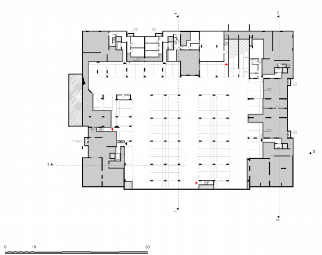
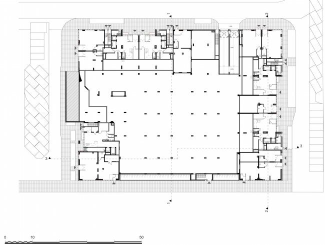
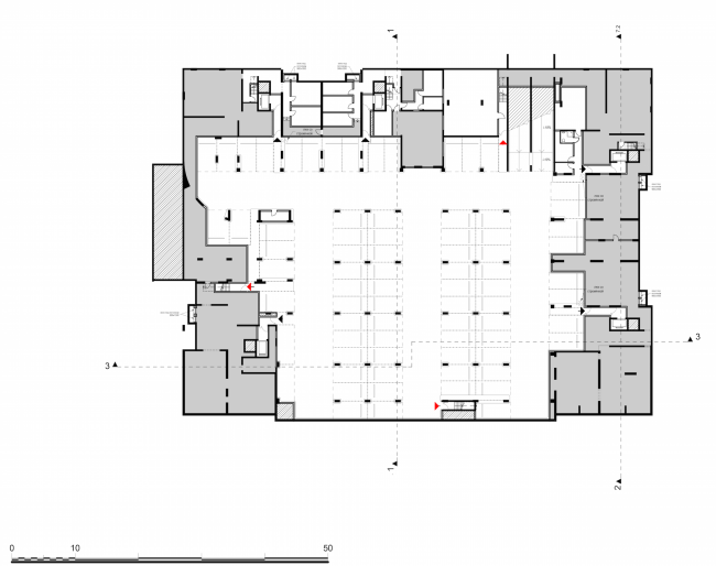
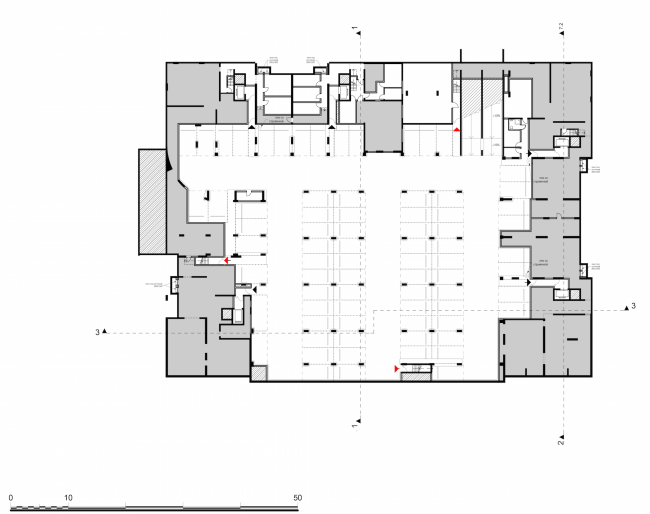
Жилой комплекс в районе Нагатинского затона. План подвала
Жилой комплекс в районе Нагатинского затона. План подвала
© АБ «Остоженка»
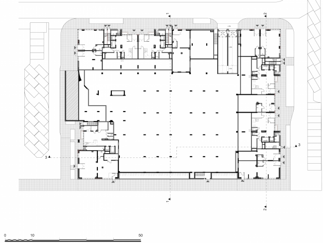
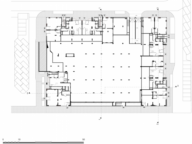
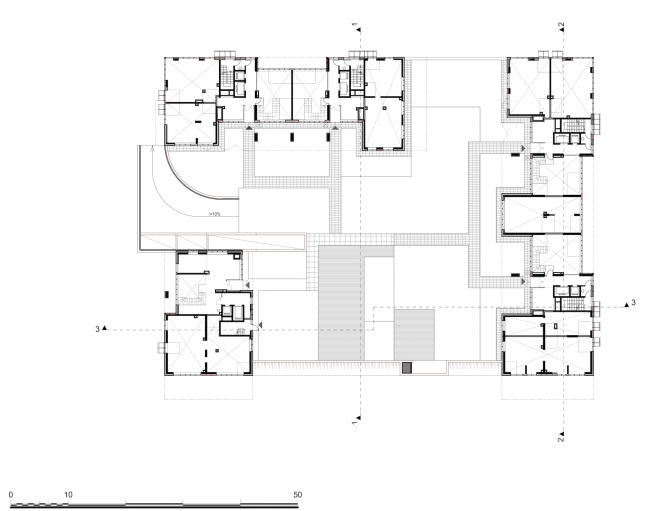
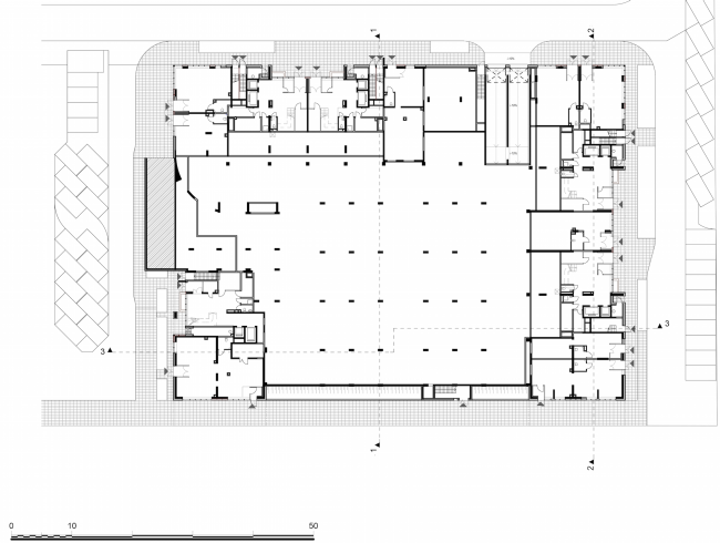
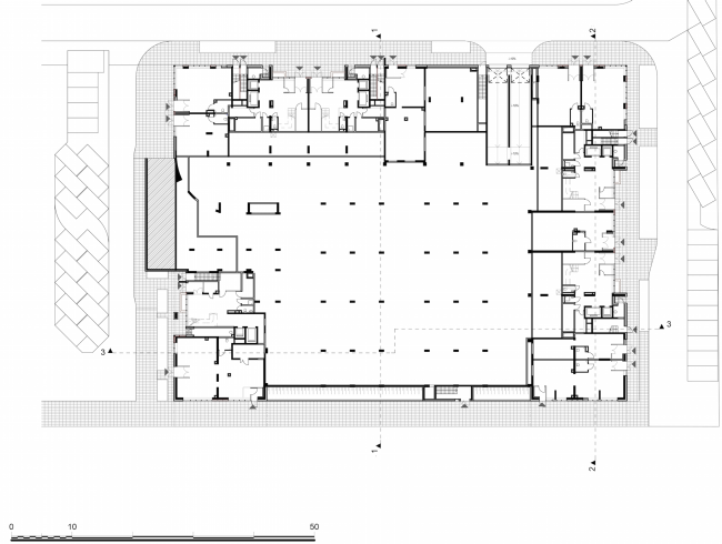
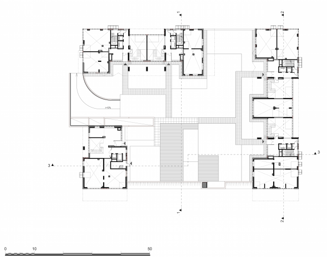
Жилой комплекс в районе Нагатинского затона. План 1 этажа
Жилой комплекс в районе Нагатинского затона. План 1 этажа
© АБ «Остоженка»
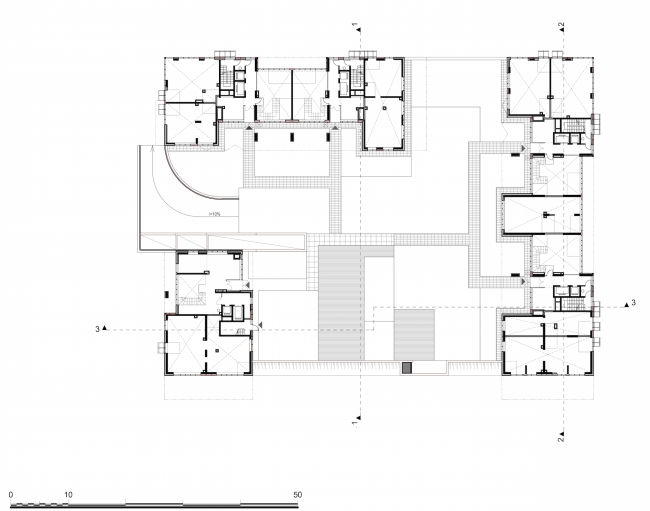
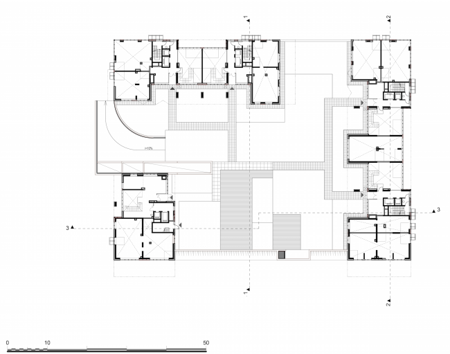
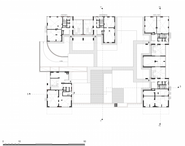
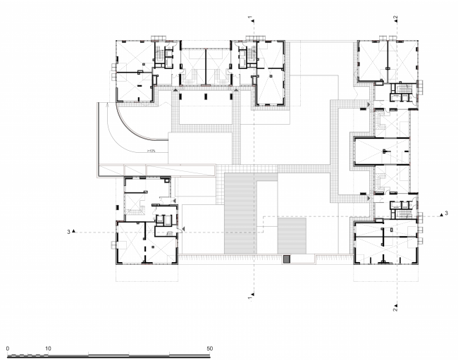
Жилой комплекс в районе Нагатинского затона. План типового этажа
Жилой комплекс в районе Нагатинского затона. План типового этажа
© АБ «Остоженка»
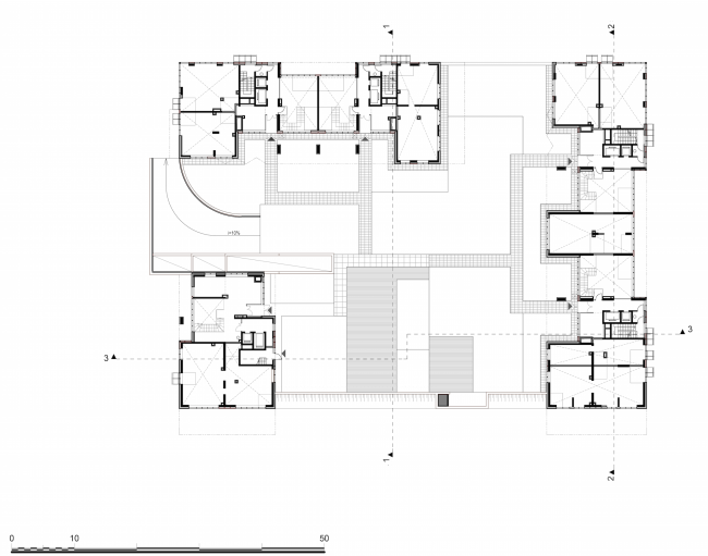
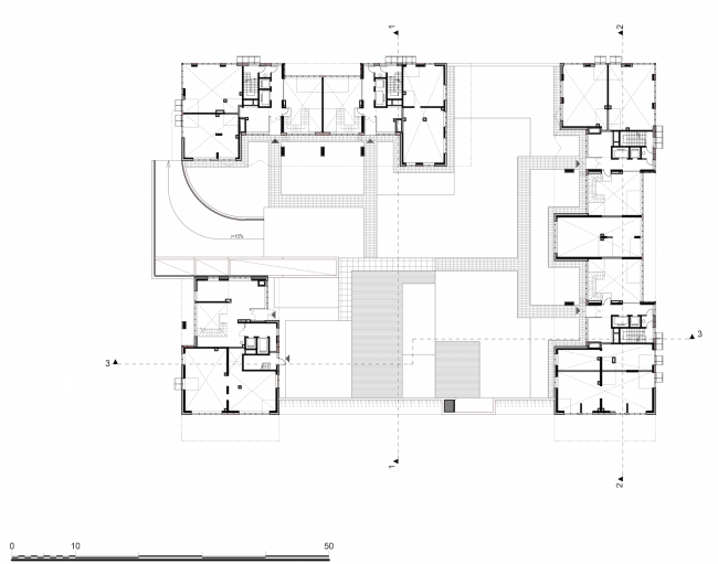
Жилой комплекс в районе Нагатинского затона. План антрисоли
Жилой комплекс в районе Нагатинского затона. План антрисоли
© АБ «Остоженка»
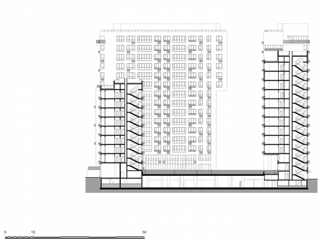
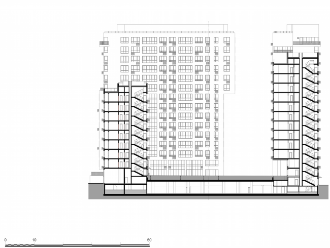
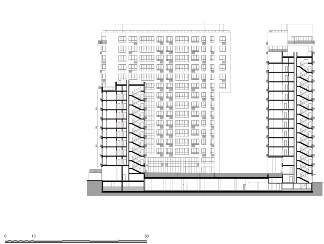
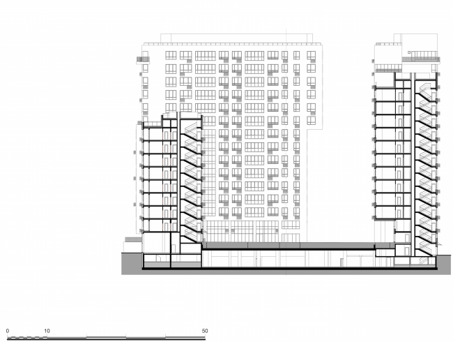
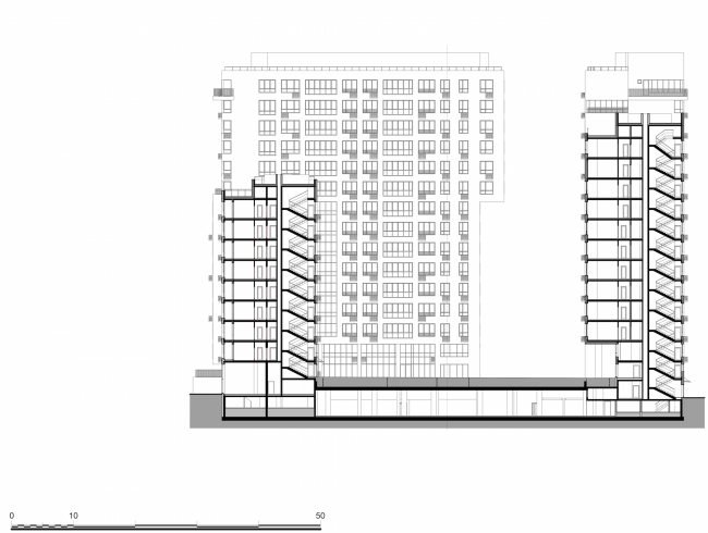
Жилой комплекс в районе Нагатинского затона. Разрез
Жилой комплекс в районе Нагатинского затона. Разрез
© АБ «Остоженка»
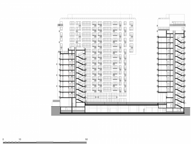
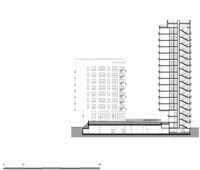
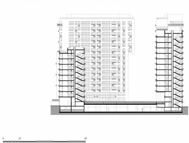
Жилой комплекс в районе Нагатинского затона. Разрез
Жилой комплекс в районе Нагатинского затона. Разрез
© АБ «Остоженка»
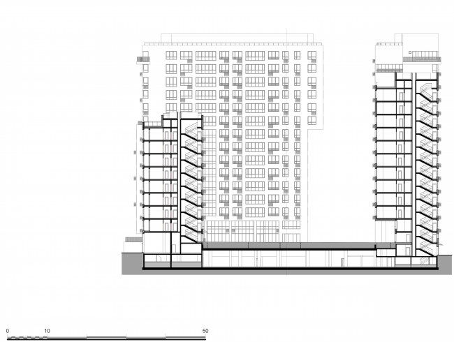
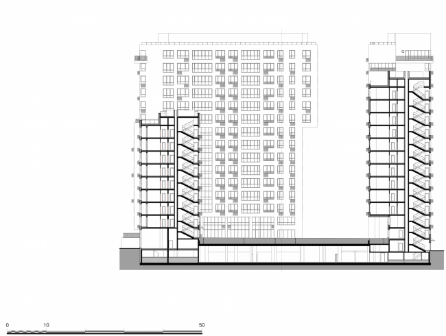
Жилой комплекс в районе Нагатинского затона. Разрез
Жилой комплекс в районе Нагатинского затона. Разрез
© АБ «Остоженка»