Размещено на портале Архи.ру (www.archi.ru)

15.10.2015

Не только теннис

Нина Фролова
Объект:
Теннисный клуб The Couch
Адрес:
Нидерланды, None, Амстердам.
Мастерская:
MVRDV

В Амстердаме открылся спроектированный MVRDV теннисный клуб The Couch, служащий не только для занятий спортом, но и как центр общественной жизни нового района Эйбург.

Теннисный клуб The Couch © Daria Scagliola & Stijn Brakkee
Теннисный клуб The Couch © Daria Scagliola & Stijn Brakkee

Эйбург – район на 45 000 жителей, который создается сейчас на шести искусственных островах на озере Эй. Сейчас там живет всего 16 000 человек, поэтому важно привлечь туда новых обитателей. Один из способов сделать это – развить там досуговую и спортивную инфраструктуру, поэтому создан пляж в Блейбург-ан-Зе, а также c 2008 работает Эйбургский теннисный клуб, бесплатная и открытая для всех организация с 10 грунтовыми кортами и спортивной школой. Количество его членов исчисляется тысячами, но собственного здания у клуба до сих пор не было (эту роль исполняла временная постройка).
 
Теннисный клуб The Couch © Daria Scagliola & Stijn Brakkee
Теннисный клуб The Couch © Daria Scagliola & Stijn Brakkee

The Couch по проекту MVRDV призван восполнить этот пробел, причем новое здание одновременно служит и клубом, и трибунами, и смотровой площадкой с видом на озеро. В соответствии с важной для заказчиков и архитекторов идеей общедоступности, оно предназначается не только для любителей тенниса. Там может приятно провести время любой желающий – перекусить, встретиться с друзьями или просто отдохнуть у воды. Авторы проекта сравнивают его с предметом городской мебели или «городской гостиной».
 
Теннисный клуб The Couch © Daria Scagliola & Stijn Brakkee
Теннисный клуб The Couch © Daria Scagliola & Stijn Brakkee

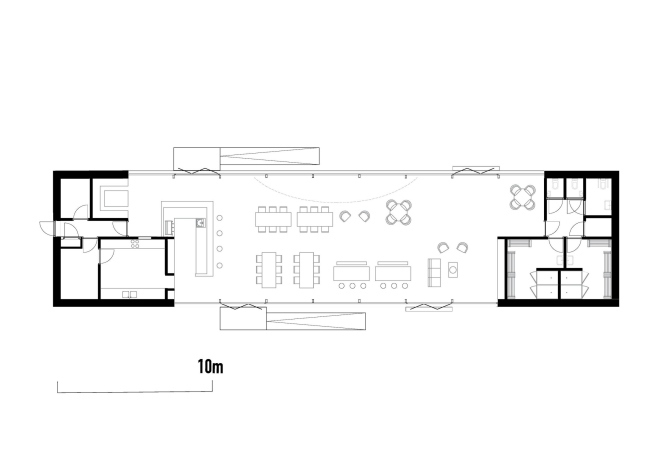
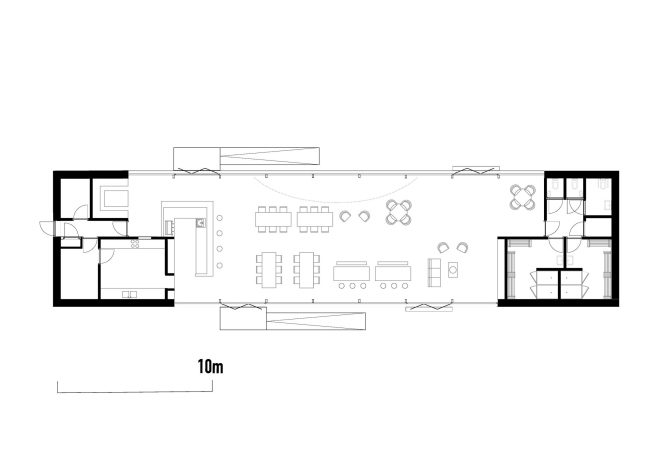
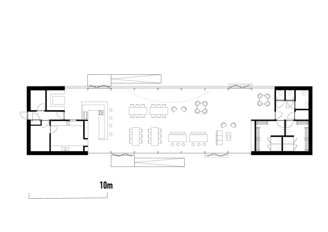
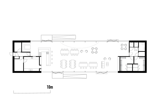
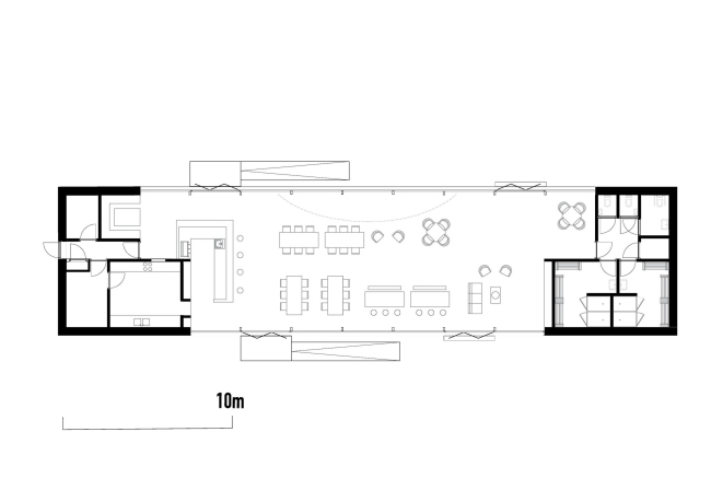
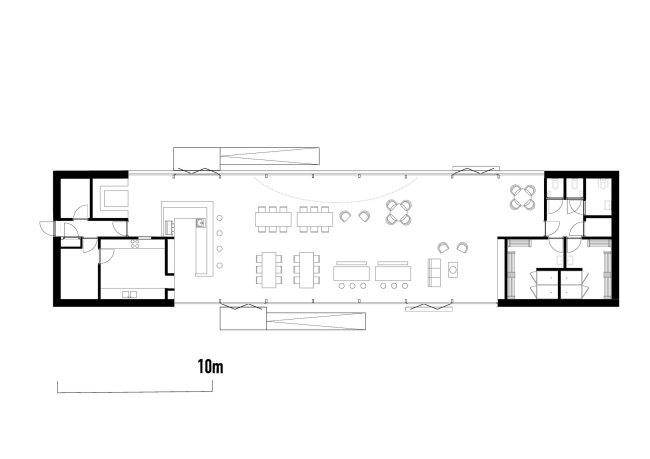
С торцов вытянутого объема здания длиной 36 м помещены раздевалки, санузлы, кухня, кладовки, а в центре находится основное многофункциональное пространство. По центру же снаружи, благодаря мягкому изгибу формы, устроены трибуны, обращенные к югу – к кортам. С этой стороны площадь остекления минимальна – чтобы защитить интерьер от солнечного жара, зато с севера The Couch получил панорамное окно, позволяющее любоваться водами Эй.
 
Теннисный клуб The Couch © Daria Scagliola & Stijn Brakkee
Теннисный клуб The Couch © Daria Scagliola & Stijn Brakkee

Бетонная конструкция постройки снаружи покрыта синтетическим каучуком EPDM, имитирующим по цвету и фактуре поверхность грунтового корта, а внутри обшита деревом. Общая площадь постройки составила 322 м2, ее трибуны вмещают порядка 200 зрителей.
Теннисный клуб The Couch © Daria Scagliola & Stijn Brakkee
Теннисный клуб The Couch © Daria Scagliola & Stijn Brakkee
Теннисный клуб The Couch © Daria Scagliola & Stijn Brakkee
Теннисный клуб The Couch © Daria Scagliola & Stijn Brakkee
Теннисный клуб The Couch © Daria Scagliola & Stijn Brakkee
Теннисный клуб The Couch © Daria Scagliola & Stijn Brakkee
Теннисный клуб The Couch © Daria Scagliola & Stijn Brakkee
Теннисный клуб The Couch © Daria Scagliola & Stijn Brakkee
Теннисный клуб The Couch © MVRDV
Теннисный клуб The Couch © MVRDV
Теннисный клуб The Couch © MVRDV
Теннисный клуб The Couch © MVRDV
Теннисный клуб The Couch © MVRDV
Теннисный клуб The Couch © MVRDV
Теннисный клуб The Couch © MVRDV
Теннисный клуб The Couch © MVRDV
Теннисный клуб The Couch © MVRDV
Теннисный клуб The Couch © MVRDV