Размещено на портале Архи.ру (www.archi.ru)

14.10.2015

Проницаемый объем

Нина Фролова
Объект:
Школа в районе Ауде-Доккен
Адрес:
Бельгия, None, Гент.

Бюро Ксавера де Гейтера выиграло конкурс на проект школы в Генте.

Школа в районе Ауде-Доккен © Xaveer De Geyter Architects
Школа в районе Ауде-Доккен © Xaveer De Geyter Architects

Школа будет построена в районе Ауде-Доккен – «Старые доки», которые с 2000-х из промзоны превращаются в жилой массив с зелеными пространствами, пристанями и пешеходными мостами по генплану ОМА.
 
Школа в районе Ауде-Доккен © Xaveer De Geyter Architects
Школа в районе Ауде-Доккен © Xaveer De Geyter Architects

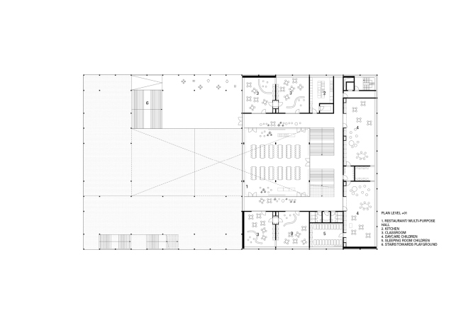
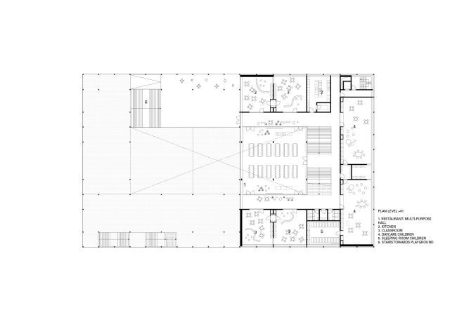
Главной трудностью, с которой столкнулись архитекторы XDGA, было сочетание разнообразной программы с очень небольшим участком. В новом здании разместятся начальная школа на 240 учеников, центр продленного дня на 56 мест и ясли на 28 мест. Также предусмотрены спортивные сооружения, которые будут использовать как школьники, так и жители окрестных домов.
 
Школа в районе Ауде-Доккен © Xaveer De Geyter Architects
Школа в районе Ауде-Доккен © Xaveer De Geyter Architects

Решением стало размещение всех пунктов программы в двух спаренных объемах – открытом и закрытом. Вместе они занимают максимально возможную часть участка, а объединяет их внешний каркас из оцинкованной стали.
 
Школа в районе Ауде-Доккен © Xaveer De Geyter Architects
Школа в районе Ауде-Доккен © Xaveer De Geyter Architects

В объеме, где собраны все пространства «на открытом воздухе», каркас частично закрыт металлической сеткой, которая станет опорой для вьющихся растений. Проемы в сетке вторят сочетанию монолитных и прозрачных частей «закрытого» объема, из окон которого открываются виды на близлежащие площадь, улицу, пристань и парк.
Школа в районе Ауде-Доккен © Xaveer De Geyter Architects
Школа в районе Ауде-Доккен © Xaveer De Geyter Architects
Школа в районе Ауде-Доккен © Xaveer De Geyter Architects
Школа в районе Ауде-Доккен © Xaveer De Geyter Architects
Школа в районе Ауде-Доккен © Xaveer De Geyter Architects
Школа в районе Ауде-Доккен © Xaveer De Geyter Architects
Школа в районе Ауде-Доккен © Xaveer De Geyter Architects
Школа в районе Ауде-Доккен © Xaveer De Geyter Architects
Школа в районе Ауде-Доккен © Xaveer De Geyter Architects
Школа в районе Ауде-Доккен © Xaveer De Geyter Architects