Размещено на портале Архи.ру (www.archi.ru)

06.10.2015

Жизнь в порту

Нина Фролова
Объект:
Жилой комплекс Bassins à flot
Адрес:
Франция, None, Бордо.
Мастерская:
ANMA

Бюро ANMA построило комплекс социального и доступного жилья в гавани Бордо – объекте Всемирного наследия ЮНЕСКО.

Жилой комплекс Bassins à flot  © Cyrille Weiner
Жилой комплекс Bassins à flot © Cyrille Weiner

Два жилых дома расположились у двух шлюзовых портовых бассейнов (Bassins à flot): территория вокруг них сейчас превращается из промзоны в район смешанной застройки – с квартирами, офисами, коммерческими и досуговыми учреждениями. При этом сохранены объекты индустриального наследия: превращенная в культурный центр знаменитая база подводных лодок BETASOM, элеваторы, краны, шлюзы, разного рода склады и т.д.
 
Жилой комплекс Bassins à flot  © Cyrille Weiner
Жилой комплекс Bassins à flot © Cyrille Weiner

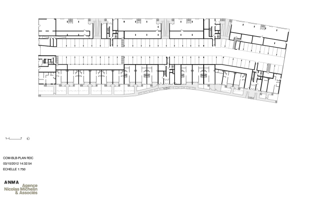
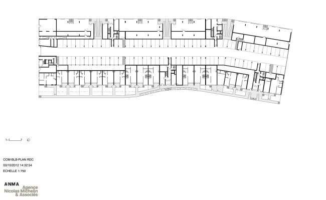
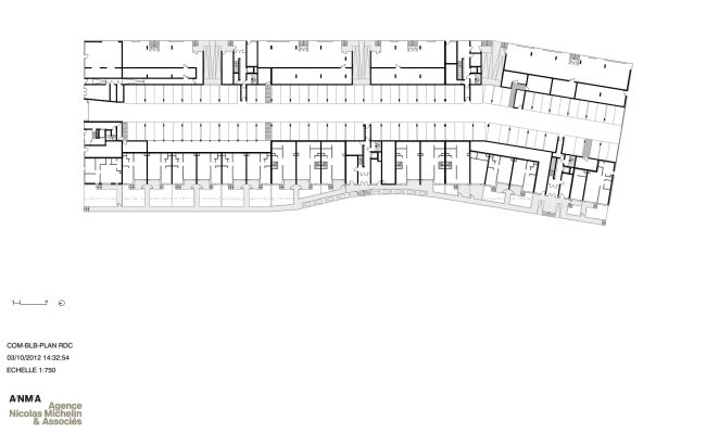
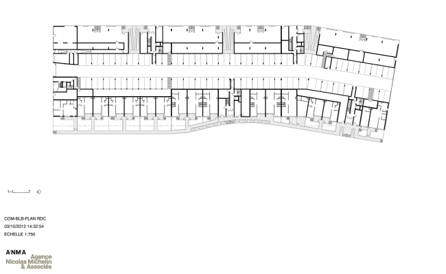
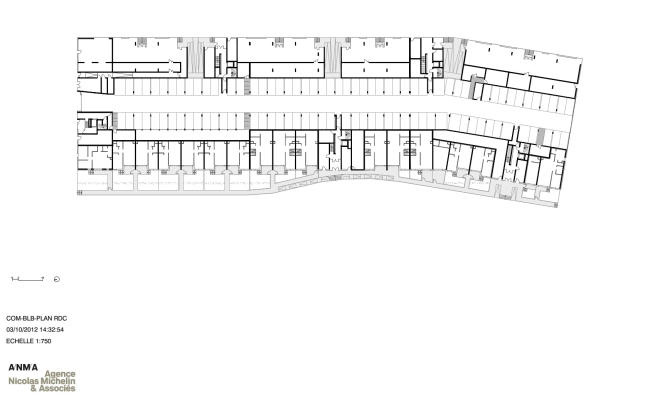
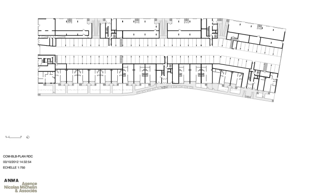
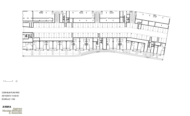
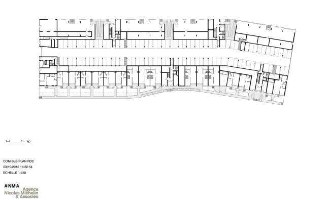
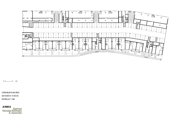
Включенное в список Всемирного наследия ЮНЕСКО окружение не могло не повлиять на проект: архитекторы придали своей постройке образ «ангара», также о промышленной истории напоминают металлические панели уличных фасадов. При этом во дворе между корпусами создан совсем иной образ: белоснежные фасады стоящих параллельно домов – Résidence Blanqui на 149 социальных квартир и Native origin на 196 квартир, продающихся на привлекательных условиях льготным категориям населения – фланкируют зимний сад, расположенный на уровне второго (при этом – первого жилого) этажа. Двор – остекленное пространство с естественной вентиляцией – прохладно летом и тепло зимой, что положительно влияет на «климат» в квартирах (дворовые фасады поэтому можно было сделать сравнительно тонкими). Часть кровли двора остеклена, часть – металлическая, часть – покрыта солнечными батареями (выбор материала зависит от угла падения солнечных лучей). Сад орошается собранной для этой цели дождевой водой, а под ним, на уровне нежилого первого этажа, устроена парковка.
 
Жилой комплекс Bassins à flot  © Cyrille Weiner
Жилой комплекс Bassins à flot © Cyrille Weiner

Общая площадь комплекса – 27 363 м2, бюджет – 30 млн евро. «Социальный» корпус Résidence Blanqui вмещает 10 222 м2 жилой площади и 533 м2 коммерческих помещений, парковки и сервисных объектов. Квартиры там варьируются по площади от одной спальни до пяти спален. В Native origin – 15 663 м2 жилой площади и 945 м2 коммерческих помещений. Его квартиры также представлены в 5 «размерах», причем у дуплексов с 4 спальнями есть терраса-солярий на крыше.
Жилой комплекс Bassins à flot  © Cyrille Weiner
Жилой комплекс Bassins à flot © Cyrille Weiner
Жилой комплекс Bassins à flot  © Cyrille Weiner
Жилой комплекс Bassins à flot © Cyrille Weiner
Жилой комплекс Bassins à flot  © Cyrille Weiner
Жилой комплекс Bassins à flot © Cyrille Weiner
Жилой комплекс Bassins à flot  © Cyrille Weiner
Жилой комплекс Bassins à flot © Cyrille Weiner
Жилой комплекс Bassins à flot  © Cyrille Weiner
Жилой комплекс Bassins à flot © Cyrille Weiner
Жилой комплекс Bassins à flot  © Cyrille Weiner
Жилой комплекс Bassins à flot © Cyrille Weiner
Жилой комплекс Bassins à flot  © Cyrille Weiner
Жилой комплекс Bassins à flot © Cyrille Weiner
Жилой комплекс Bassins à flot  © Cyrille Weiner
Жилой комплекс Bassins à flot © Cyrille Weiner
Жилой комплекс Bassins à flot  © Cyrille Weiner
Жилой комплекс Bassins à flot © Cyrille Weiner
Жилой комплекс Bassins à flot  © Cyrille Weiner
Жилой комплекс Bassins à flot © Cyrille Weiner
Жилой комплекс Bassins à flot  © Cyrille Weiner
Жилой комплекс Bassins à flot © Cyrille Weiner
Жилой комплекс Bassins à flot  © Cyrille Weiner
Жилой комплекс Bassins à flot © Cyrille Weiner
Жилой комплекс Bassins à flot  © Cyrille Weiner
Жилой комплекс Bassins à flot © Cyrille Weiner
Жилой комплекс Bassins à flot  © Cyrille Weiner
Жилой комплекс Bassins à flot © Cyrille Weiner
Жилой комплекс Bassins à flot  © Cyrille Weiner
Жилой комплекс Bassins à flot © Cyrille Weiner
Жилой комплекс Bassins à flot  © Cyrille Weiner
Жилой комплекс Bassins à flot © Cyrille Weiner
Жилой комплекс Bassins à flot  © Cyrille Weiner
Жилой комплекс Bassins à flot © Cyrille Weiner
Жилой комплекс Bassins à flot  © Cyrille Weiner
Жилой комплекс Bassins à flot © Cyrille Weiner
Жилой комплекс Bassins à flot  © Cyrille Weiner
Жилой комплекс Bassins à flot © Cyrille Weiner
Жилой комплекс Bassins à flot  © Cyrille Weiner
Жилой комплекс Bassins à flot © Cyrille Weiner
Жилой комплекс Bassins à flot  © Cyrille Weiner
Жилой комплекс Bassins à flot © Cyrille Weiner
Жилой комплекс Bassins à flot  © Cyrille Weiner
Жилой комплекс Bassins à flot © Cyrille Weiner
Жилой комплекс Bassins à flot  © Cyrille Weiner
Жилой комплекс Bassins à flot © Cyrille Weiner
Жилой комплекс Bassins à flot  © Cyrille Weiner
Жилой комплекс Bassins à flot © Cyrille Weiner
Жилой комплекс Bassins à flot  © Cyrille Weiner
Жилой комплекс Bassins à flot © Cyrille Weiner
Жилой комплекс Bassins à flot  © ANMA – Agence Nicolas Michelin & Associés
Жилой комплекс Bassins à flot © ANMA – Agence Nicolas Michelin & Associés
Жилой комплекс Bassins à flot  © ANMA – Agence Nicolas Michelin & Associés
Жилой комплекс Bassins à flot © ANMA – Agence Nicolas Michelin & Associés
Жилой комплекс Bassins à flot  © ANMA – Agence Nicolas Michelin & Associés
Жилой комплекс Bassins à flot © ANMA – Agence Nicolas Michelin & Associés
Жилой комплекс Bassins à flot  © ANMA – Agence Nicolas Michelin & Associés
Жилой комплекс Bassins à flot © ANMA – Agence Nicolas Michelin & Associés
Жилой комплекс Bassins à flot  © ANMA – Agence Nicolas Michelin & Associés
Жилой комплекс Bassins à flot © ANMA – Agence Nicolas Michelin & Associés
Жилой комплекс Bassins à flot  © ANMA – Agence Nicolas Michelin & Associés
Жилой комплекс Bassins à flot © ANMA – Agence Nicolas Michelin & Associés
Жилой комплекс Bassins à flot  © ANMA – Agence Nicolas Michelin & Associés
Жилой комплекс Bassins à flot © ANMA – Agence Nicolas Michelin & Associés
Жилой комплекс Bassins à flot  © ANMA – Agence Nicolas Michelin & Associés
Жилой комплекс Bassins à flot © ANMA – Agence Nicolas Michelin & Associés
Жилой комплекс Bassins à flot  © ANMA – Agence Nicolas Michelin & Associés
Жилой комплекс Bassins à flot © ANMA – Agence Nicolas Michelin & Associés