Размещено на портале Архи.ру (www.archi.ru)

01.10.2015

Фасад с драпировкой

Объект:
Магазин Dior в Сеуле
Адрес:
Южная Корея, Сеул.

Магазин Dior в Сеуле по проекту Кристиана де Портзампарка.

Магазин Dior в Сеуле © Nicolas_Borel
Магазин Dior в Сеуле © Nicolas_Borel

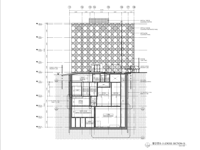
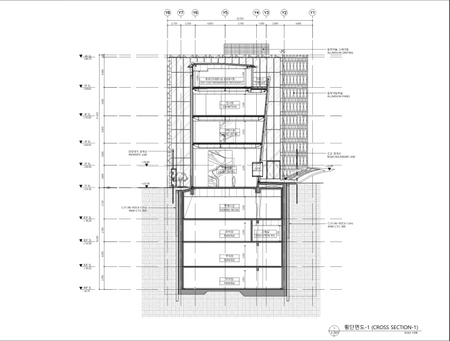
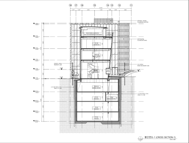
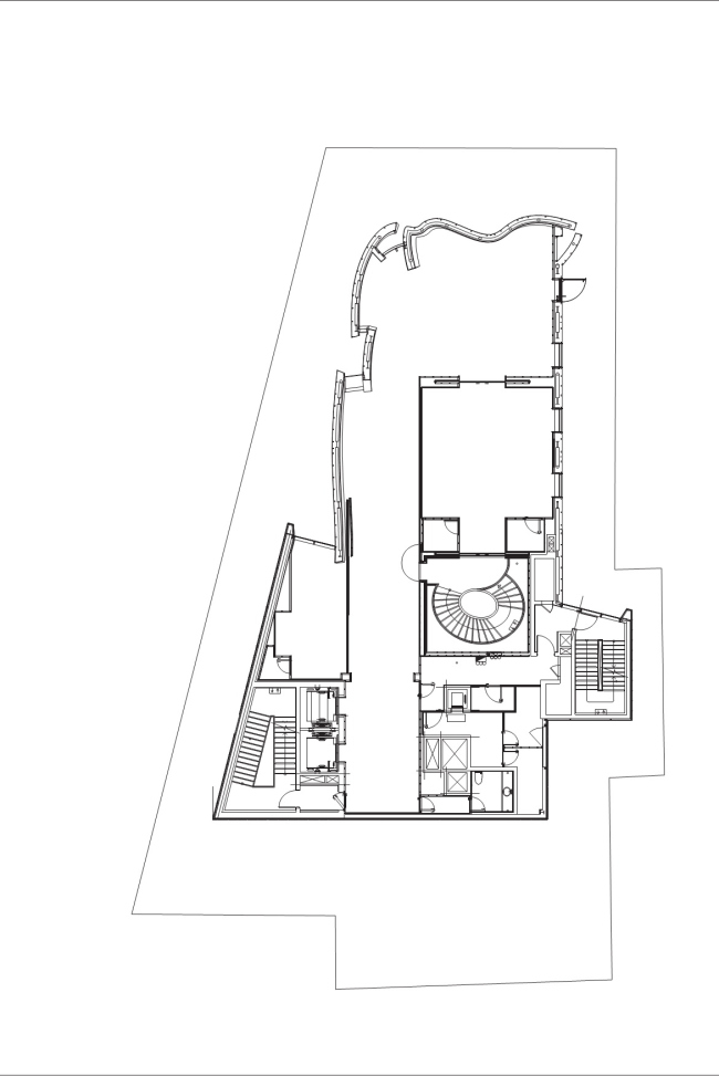
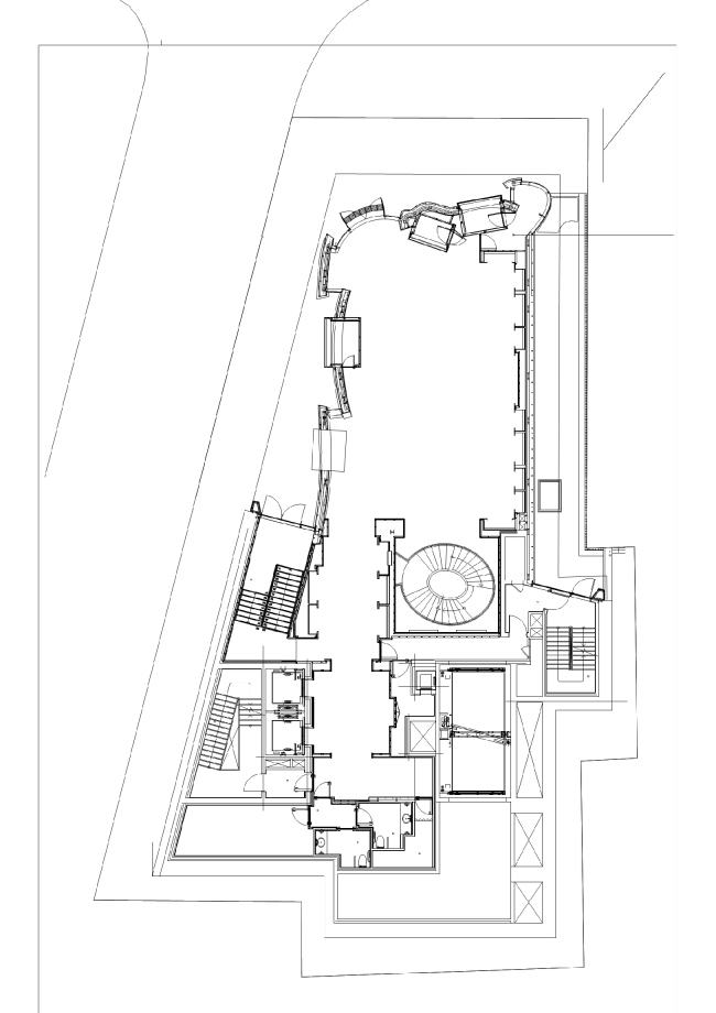
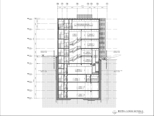
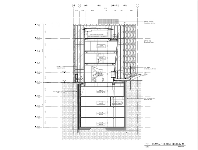
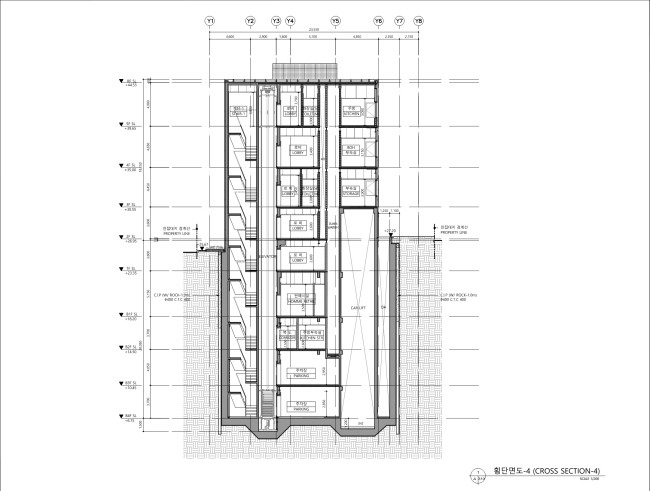
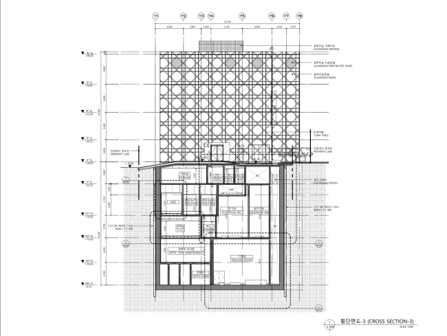
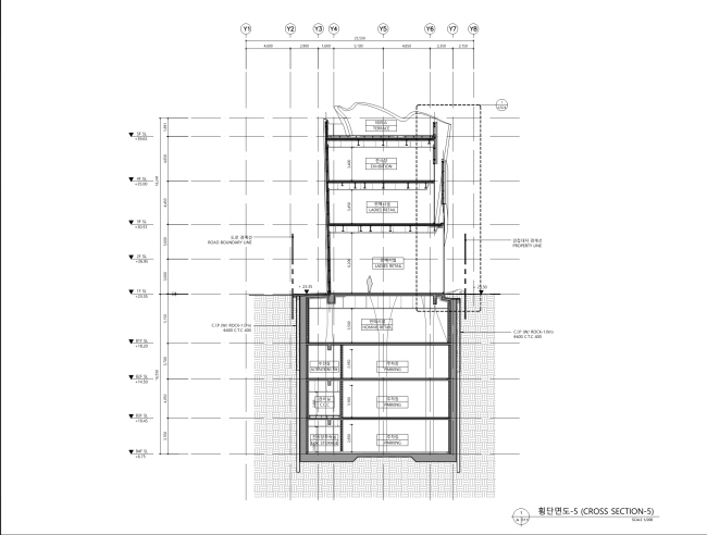
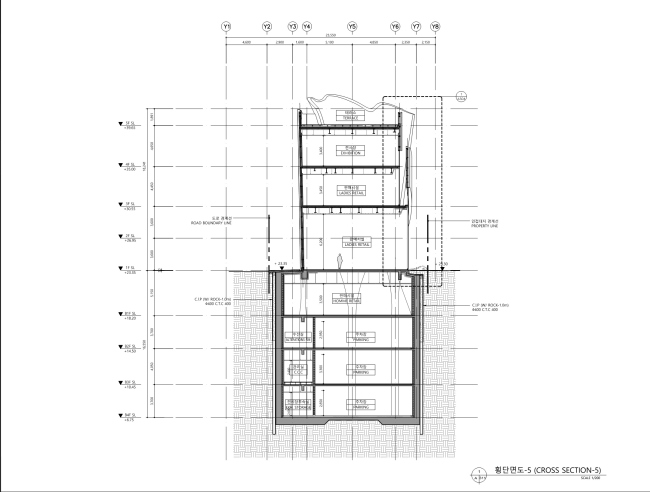
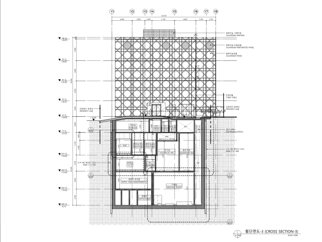
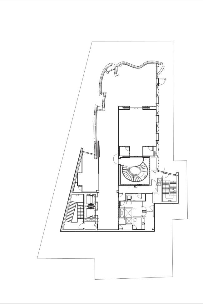
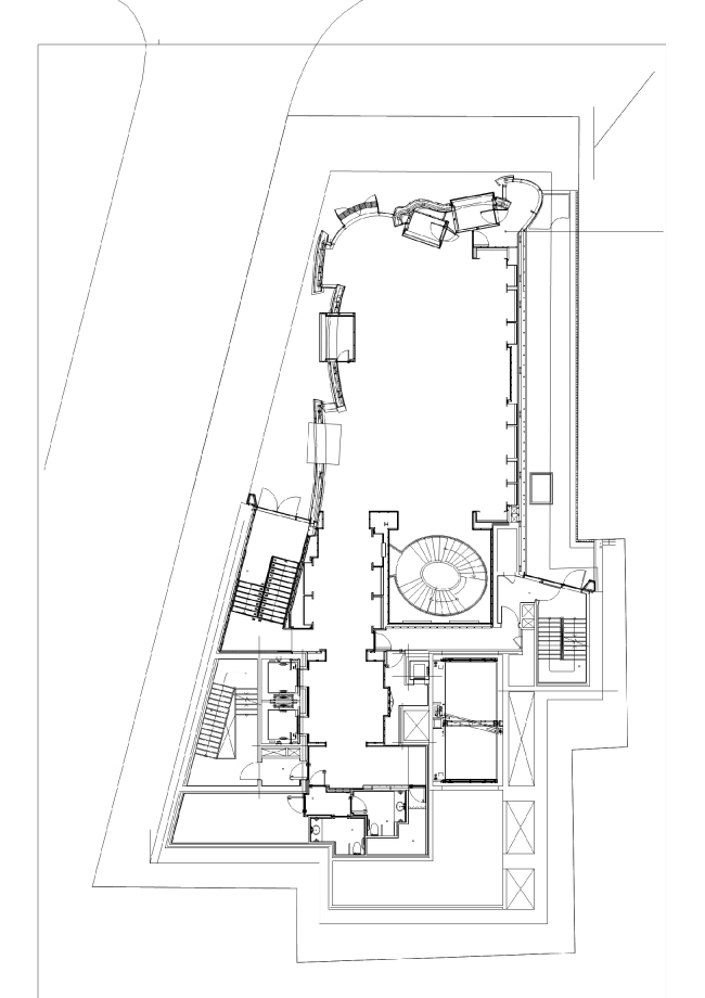
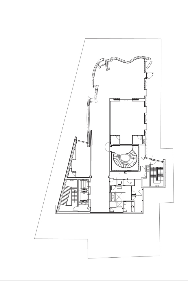
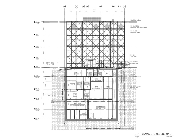
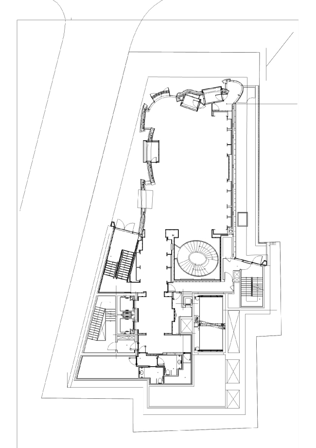
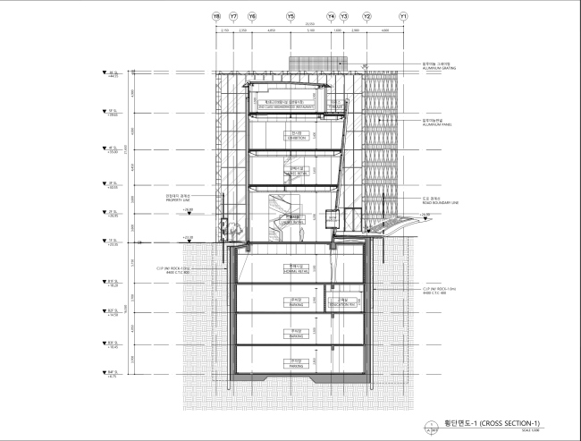
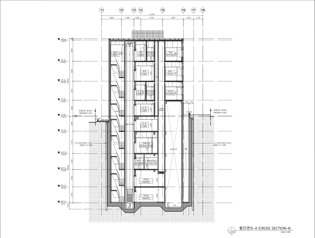
Бутик Dior расположен в престижном районе Каннамгу, среди других магазинов крупных модных домов. Прямоугольные блоки этих зданий чаще всего вторят регулярной планировке улиц, однако Кристиан де Портзампарк придумал для своей постройки более сложное решение. Основной объем магазина получил фасад из 11 белых панелей из стеклопластика размером 6 м на 20 м каждая. Их сложные, текучие очертания, по мысли автора, призваны напоминать полотнища белой хлопковой ткани, которую использовал Кристиан Диор.
 
Магазин Dior в Сеуле © Nicolas_Borel
Магазин Dior в Сеуле © Nicolas_Borel

Две панели расступаются, оставляя пространство для главного входа: здесь они, дополненные перфорированными металлическими поверхностями, образуют «современную стрельчатую арку».
 
Магазин Dior в Сеуле. Кристиан де Портзампарк. 2011-2015. Фотография © Nicolas_Borel
Магазин Dior в Сеуле. Кристиан де Портзампарк. 2011-2015. Фотография © Nicolas_Borel

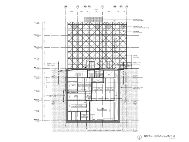
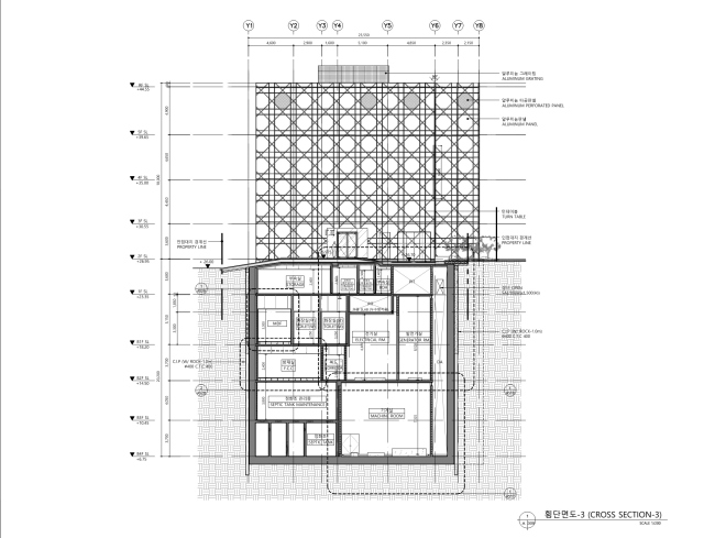
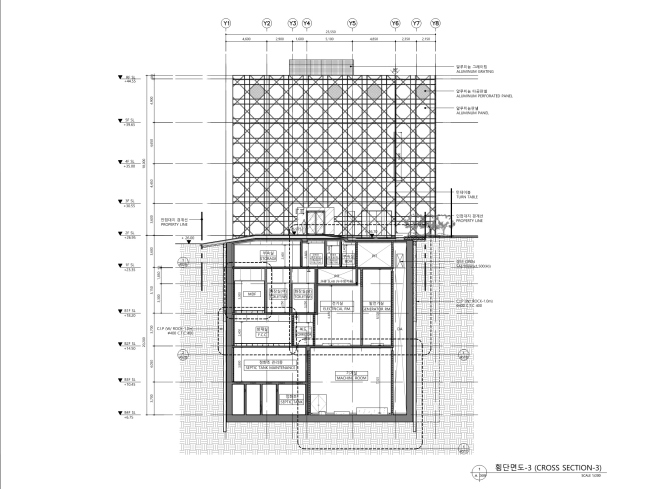
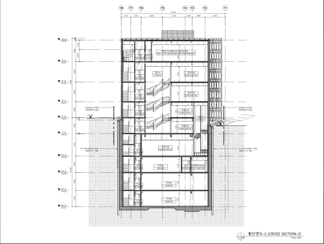
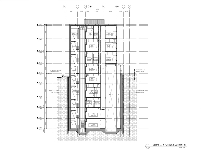
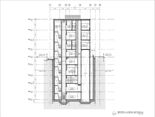
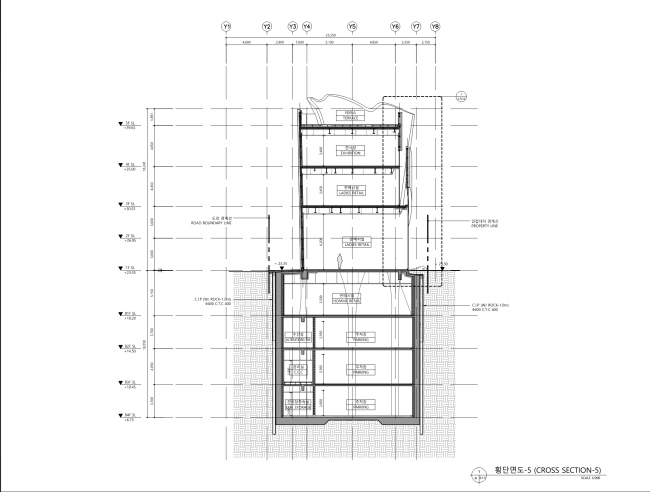
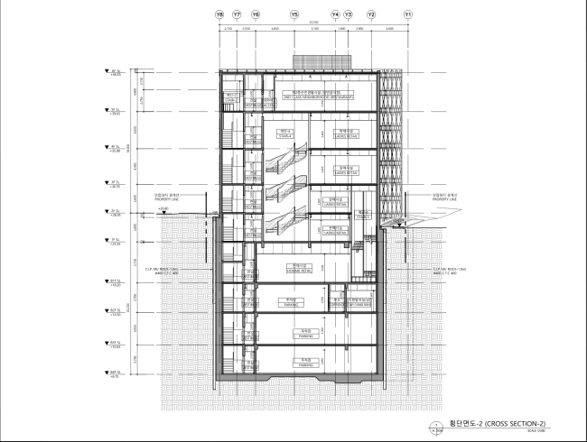
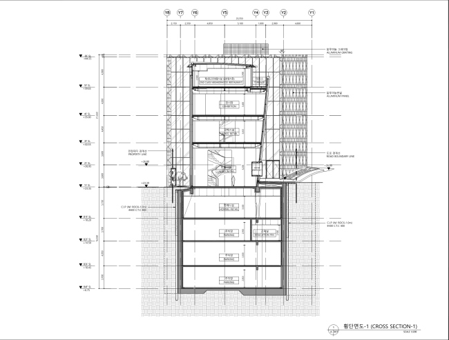
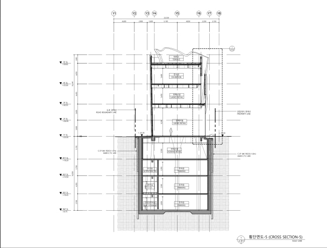
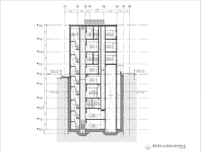
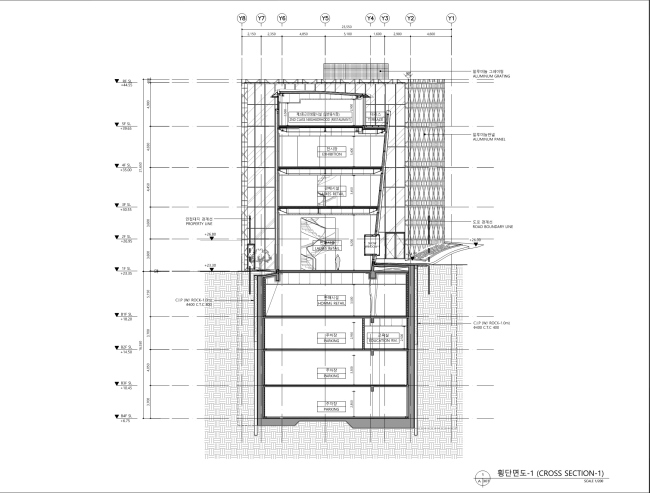
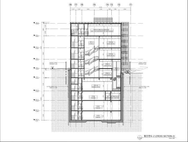
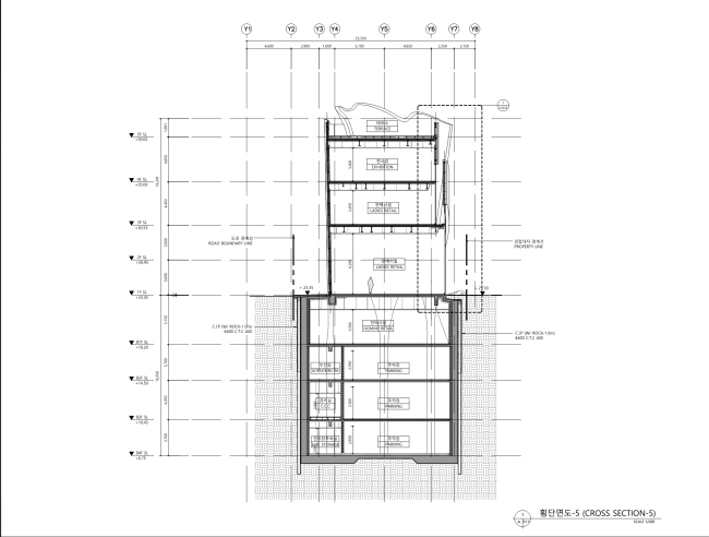
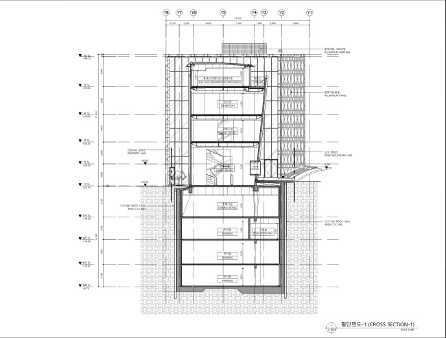
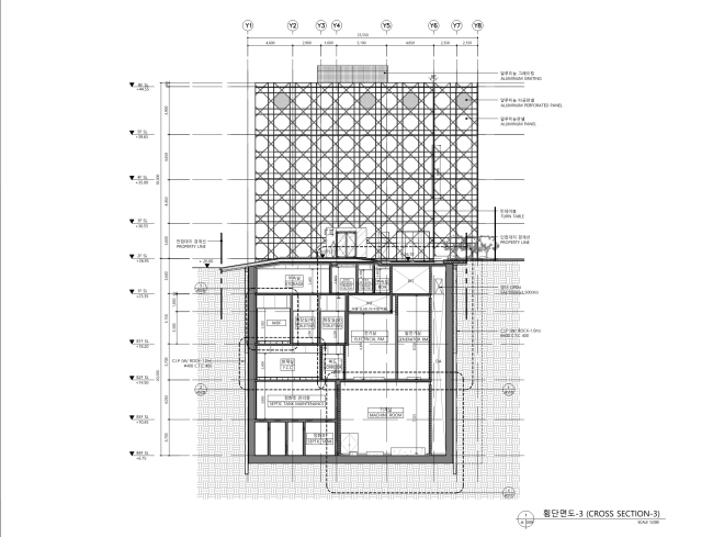
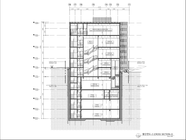
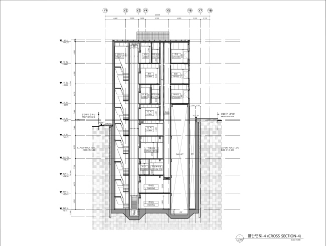
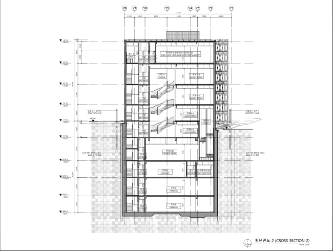
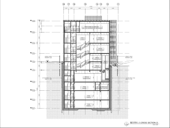
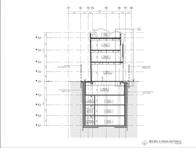
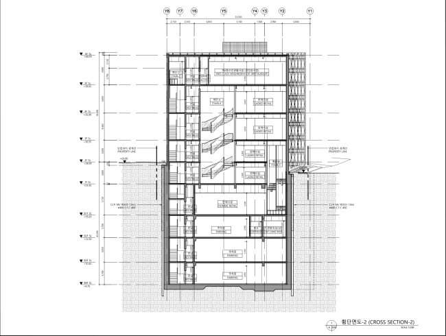
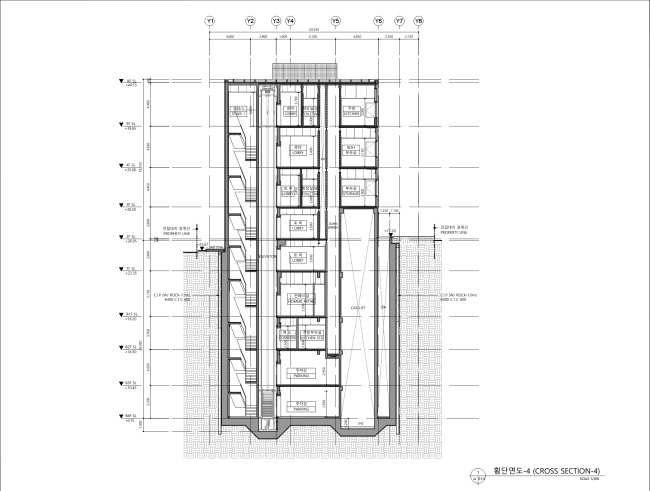
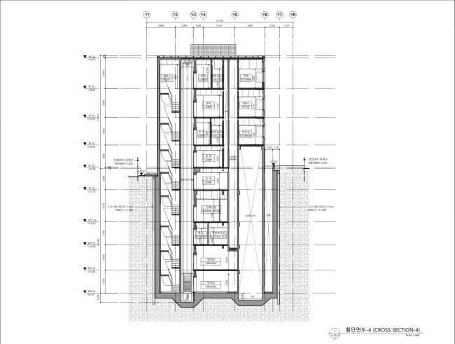
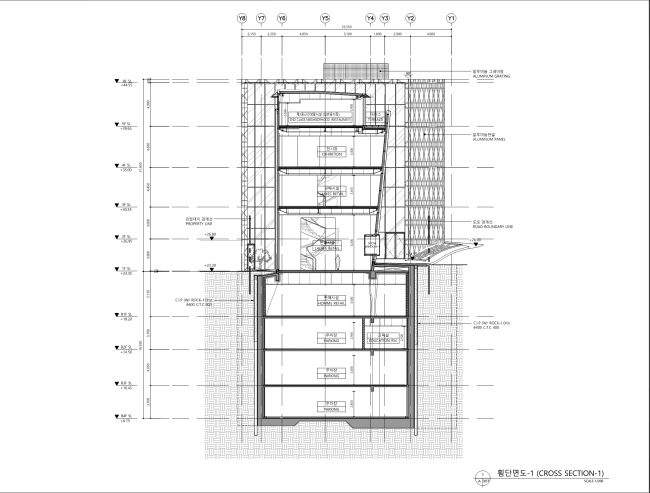
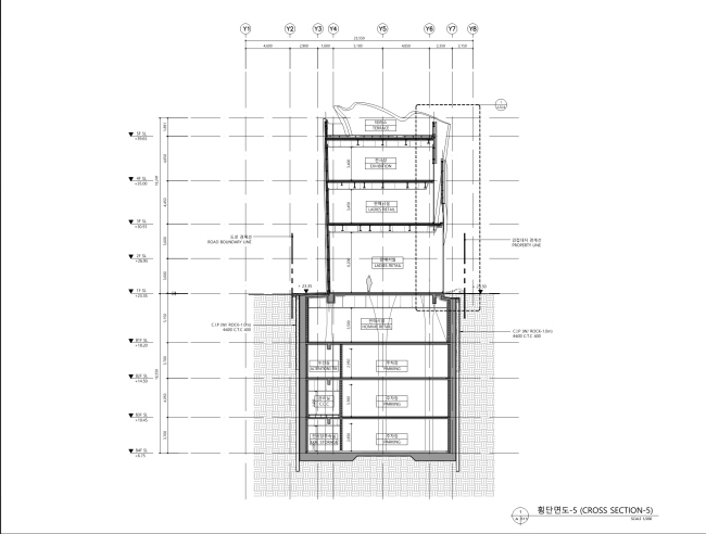
Обтекаемый объем соединен с задним, кубическим, покрытым панелями анодированного алюминия. На крыше магазина расположено кафе с террасой.
 
Магазин Dior в Сеуле © Nicolas_Borel
Магазин Dior в Сеуле © Nicolas_Borel

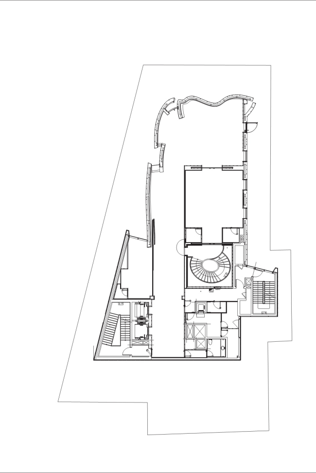
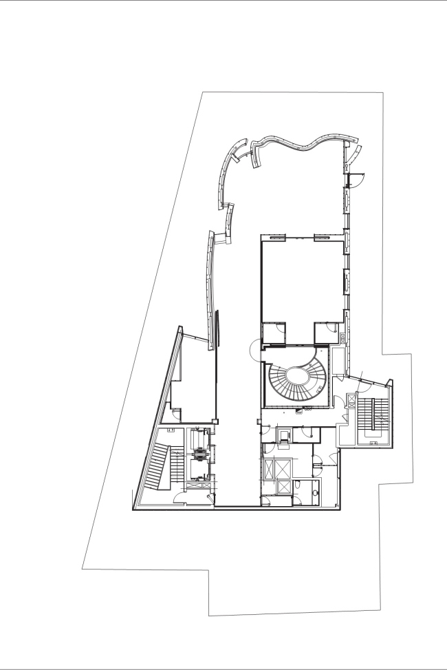
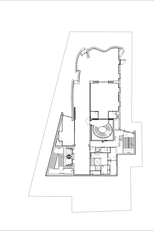
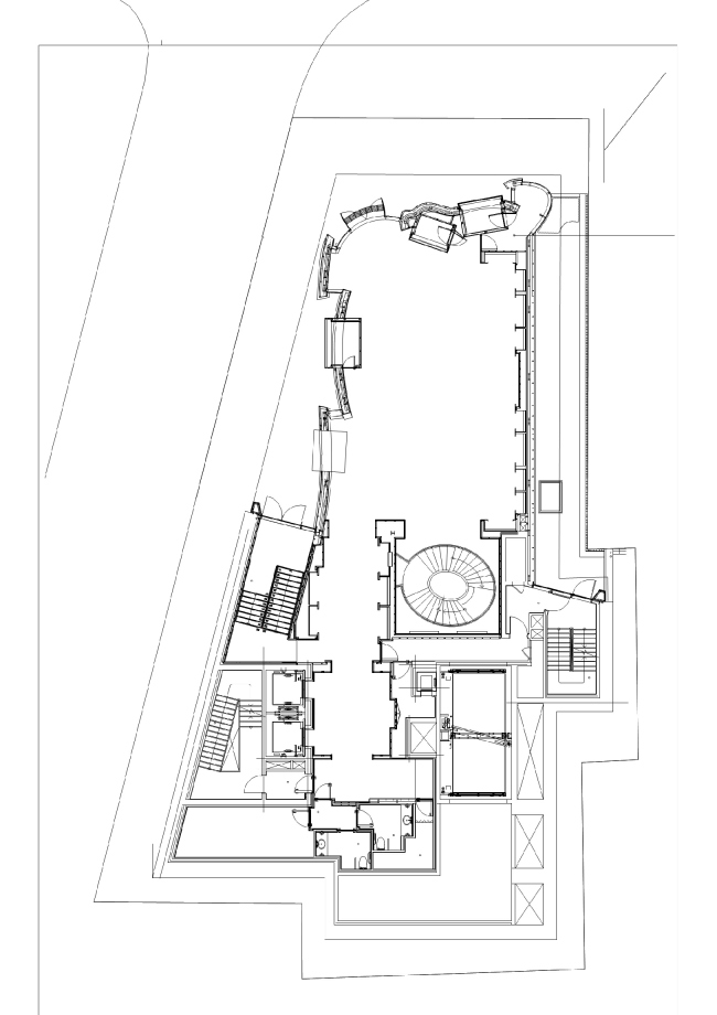
Интерьеры 6-этажного здания, где, помимо торговых площадей, имеются VIP-салон и галерея, разрабатывал американский архитектор Питер Марино.
 
Магазин Dior в Сеуле © Nicolas_Borel
Магазин Dior в Сеуле © Nicolas_Borel
Магазин Dior в Сеуле © Nicolas_Borel
Магазин Dior в Сеуле © Nicolas_Borel
Магазин Dior в Сеуле © Nicolas_Borel
Магазин Dior в Сеуле © Nicolas_Borel
Магазин Dior в Сеуле © Nicolas_Borel
Магазин Dior в Сеуле © Nicolas_Borel
Магазин Dior в Сеуле © Nicolas_Borel
Магазин Dior в Сеуле © Nicolas_Borel
Магазин Dior в Сеуле © Nicolas_Borel
Магазин Dior в Сеуле © Nicolas_Borel
Магазин Dior в Сеуле © Nicolas_Borel
Магазин Dior в Сеуле © Nicolas_Borel
Магазин Dior в Сеуле © Nicolas_Borel
Магазин Dior в Сеуле © Nicolas_Borel
Магазин Dior в Сеуле © Nicolas_Borel
Магазин Dior в Сеуле © Nicolas_Borel
Магазин Dior в Сеуле © Nicolas_Borel
Магазин Dior в Сеуле © Nicolas_Borel
Магазин Dior в Сеуле © Nicolas_Borel
Магазин Dior в Сеуле © Nicolas_Borel
Магазин Dior в Сеуле © Nicolas_Borel
Магазин Dior в Сеуле © Nicolas_Borel
Магазин Dior в Сеуле © Nicolas_Borel
Магазин Dior в Сеуле © Nicolas_Borel
Магазин Dior в Сеуле © Nicolas_Borel
Магазин Dior в Сеуле © Nicolas_Borel
Магазин Dior в Сеуле © Nicolas_Borel
Магазин Dior в Сеуле © Nicolas_Borel
Магазин Dior в Сеуле © Nicolas_Borel
Магазин Dior в Сеуле © Nicolas_Borel
Магазин Dior в Сеуле © Nicolas_Borel
Магазин Dior в Сеуле © Nicolas_Borel
Магазин Dior в Сеуле © Nicolas_Borel
Магазин Dior в Сеуле © Nicolas_Borel
Магазин Dior в Сеуле © Nicolas_Borel
Магазин Dior в Сеуле © Nicolas_Borel
Магазин Dior в Сеуле © Nicolas_Borel
Магазин Dior в Сеуле © Nicolas_Borel
Магазин Dior в Сеуле © Nicolas_Borel
Магазин Dior в Сеуле © Nicolas_Borel
Магазин Dior в Сеуле © Nicolas_Borel
Магазин Dior в Сеуле © Nicolas_Borel
Магазин Dior в Сеуле © Agence Christian de Portzamparc
Магазин Dior в Сеуле © Agence Christian de Portzamparc
Магазин Dior в Сеуле © Agence Christian de Portzamparc
Магазин Dior в Сеуле © Agence Christian de Portzamparc
Магазин Dior в Сеуле © Agence Christian de Portzamparc
Магазин Dior в Сеуле © Agence Christian de Portzamparc
Магазин Dior в Сеуле © Agence Christian de Portzamparc
Магазин Dior в Сеуле © Agence Christian de Portzamparc
Магазин Dior в Сеуле © Agence Christian de Portzamparc
Магазин Dior в Сеуле © Agence Christian de Portzamparc
Магазин Dior в Сеуле © Agence Christian de Portzamparc
Магазин Dior в Сеуле © Agence Christian de Portzamparc
Магазин Dior в Сеуле © Agence Christian de Portzamparc
Магазин Dior в Сеуле © Agence Christian de Portzamparc
Магазин Dior в Сеуле © Agence Christian de Portzamparc
Магазин Dior в Сеуле © Agence Christian de Portzamparc
Магазин Dior в Сеуле © Agence Christian de Portzamparc
Магазин Dior в Сеуле © Agence Christian de Portzamparc
Магазин Dior в Сеуле © Agence Christian de Portzamparc
Магазин Dior в Сеуле © Agence Christian de Portzamparc
Магазин Dior в Сеуле © Agence Christian de Portzamparc
Магазин Dior в Сеуле © Agence Christian de Portzamparc
Магазин Dior в Сеуле © Agence Christian de Portzamparc
Магазин Dior в Сеуле © Agence Christian de Portzamparc
Магазин Dior в Сеуле © Agence Christian de Portzamparc
Магазин Dior в Сеуле © Agence Christian de Portzamparc
Магазин Dior в Сеуле © Agence Christian de Portzamparc
Магазин Dior в Сеуле © Agence Christian de Portzamparc
Магазин Dior в Сеуле © Agence Christian de Portzamparc
Магазин Dior в Сеуле © Agence Christian de Portzamparc
Магазин Dior в Сеуле © Agence Christian de Portzamparc
Магазин Dior в Сеуле © Agence Christian de Portzamparc
Магазин Dior в Сеуле © Agence Christian de Portzamparc
Магазин Dior в Сеуле © Agence Christian de Portzamparc
Магазин Dior в Сеуле © Agence Christian de Portzamparc
Магазин Dior в Сеуле © Agence Christian de Portzamparc
Магазин Dior в Сеуле © Agence Christian de Portzamparc
Магазин Dior в Сеуле © Agence Christian de Portzamparc
Магазин Dior в Сеуле © Agence Christian de Portzamparc
Магазин Dior в Сеуле © Agence Christian de Portzamparc
Магазин Dior в Сеуле © Agence Christian de Portzamparc
Магазин Dior в Сеуле © Agence Christian de Portzamparc
Магазин Dior в Сеуле © Agence Christian de Portzamparc
Магазин Dior в Сеуле © Agence Christian de Portzamparc
Магазин Dior в Сеуле © Agence Christian de Portzamparc
Магазин Dior в Сеуле © Agence Christian de Portzamparc
Магазин Dior в Сеуле © Agence Christian de Portzamparc
Магазин Dior в Сеуле © Agence Christian de Portzamparc
Магазин Dior в Сеуле © Agence Christian de Portzamparc
Магазин Dior в Сеуле © Agence Christian de Portzamparc
Магазин Dior в Сеуле © Agence Christian de Portzamparc
Магазин Dior в Сеуле © Agence Christian de Portzamparc
Магазин Dior в Сеуле © Agence Christian de Portzamparc
Магазин Dior в Сеуле © Agence Christian de Portzamparc
Магазин Dior в Сеуле © Agence Christian de Portzamparc
Магазин Dior в Сеуле © Agence Christian de Portzamparc
Магазин Dior в Сеуле © Agence Christian de Portzamparc
Магазин Dior в Сеуле © Agence Christian de Portzamparc
Магазин Dior в Сеуле © Agence Christian de Portzamparc
Магазин Dior в Сеуле © Agence Christian de Portzamparc
Магазин Dior в Сеуле © Agence Christian de Portzamparc
Магазин Dior в Сеуле © Agence Christian de Portzamparc
Магазин Dior в Сеуле © Agence Christian de Portzamparc
Магазин Dior в Сеуле © Agence Christian de Portzamparc
Магазин Dior в Сеуле © Agence Christian de Portzamparc
Магазин Dior в Сеуле © Agence Christian de Portzamparc
Магазин Dior в Сеуле © Agence Christian de Portzamparc
Магазин Dior в Сеуле © Agence Christian de Portzamparc
Магазин Dior в Сеуле © Agence Christian de Portzamparc
Магазин Dior в Сеуле © Agence Christian de Portzamparc
Магазин Dior в Сеуле © Agence Christian de Portzamparc
Магазин Dior в Сеуле © Agence Christian de Portzamparc
Магазин Dior в Сеуле © Christian de Portzamparc
Магазин Dior в Сеуле © Christian de Portzamparc
Магазин Dior в Сеуле © Christian de Portzamparc
Магазин Dior в Сеуле © Christian de Portzamparc
Магазин Dior в Сеуле © Christian de Portzamparc
Магазин Dior в Сеуле © Christian de Portzamparc
Магазин Dior в Сеуле © Christian de Portzamparc
Магазин Dior в Сеуле © Christian de Portzamparc
Магазин Dior в Сеуле © Christian de Portzamparc
Магазин Dior в Сеуле © Christian de Portzamparc
Магазин Dior в Сеуле © Christian de Portzamparc
Магазин Dior в Сеуле © Christian de Portzamparc
Магазин Dior в Сеуле © Christian de Portzamparc
Магазин Dior в Сеуле © Christian de Portzamparc
Магазин Dior в Сеуле © Christian de Portzamparc
Магазин Dior в Сеуле © Christian de Portzamparc
Магазин Dior в Сеуле © Christian de Portzamparc
Магазин Dior в Сеуле © Christian de Portzamparc