Размещено на портале Архи.ру (www.archi.ru)

29.09.2015

За белым экраном

Анна Старостина
Объект:
Жилая башня 55 Timeless
Адрес:
Тайвань, None, Тайбэй.

В Тайбэе по проекту Ричарда Майера строится жилая башня 55 Timeless.

Жилая башня 55 Timeless © Vize.com. Предоставлено Richard Meier & Partners Architects
Жилая башня 55 Timeless © Vize.com. Предоставлено Richard Meier & Partners Architects

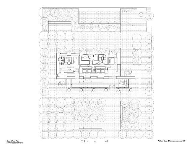
Верный идеям модернизма, Майер упорно продолжает поиски простой и ясной формы своих объектов. Его 31-этажное здание общей площадью чуть менее 26 000 м2 появится на улице Синь-И, недалеко от знаменитого небоскреба «Тайбэй 101». В настоящий момент завершается возведение несущих конструкций, а полностью закончить строительство планируется в 2017 году. Заказчиком проекта выступила влиятельная Continental Development Corporation.
Жилая башня 55 Timeless © Vize.com. Предоставлено  Richard Meier & Partners Architects
Жилая башня 55 Timeless © Vize.com. Предоставлено Richard Meier & Partners Architects

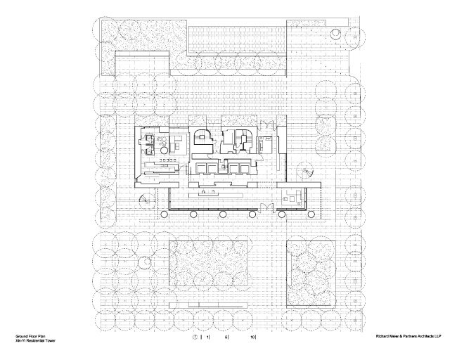
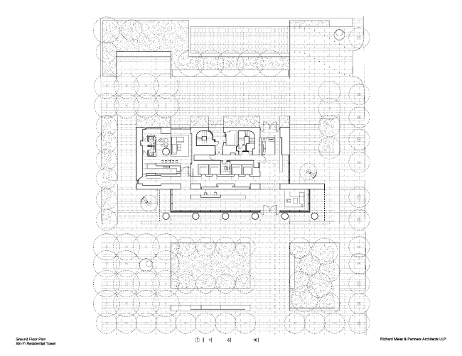
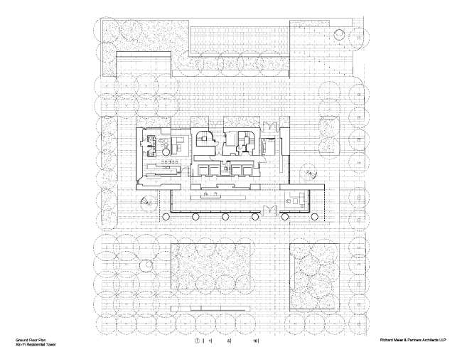
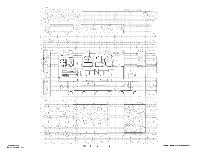
Как обычно происходит с высотными башнями, 55 Timeless имеет два уровня восприятия. Нижняя часть активно вписана в городской ландшафт и помогает организовать комфортное и вполне соразмерное человеку общественное пространство, дополненное деревьями и современной скульптурой. Второй пласт – градостроительный. Белая «пластина» высотой 127 м существенно изменит силуэт города и, конечно же, будет активно взаимодействовать и даже «спорить» с причудливым «Тайбэй 101» – главным небоскребом города, демонстрируя нарочитую скромность и чистоту форм.
Жилая башня 55 Timeless © Vize.com. Предоставлено Richard Meier & Partners Architects
Жилая башня 55 Timeless © Vize.com. Предоставлено Richard Meier & Partners Architects

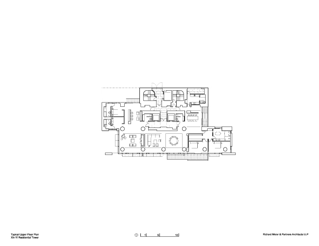
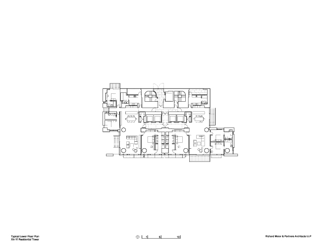
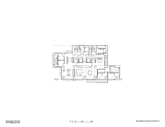
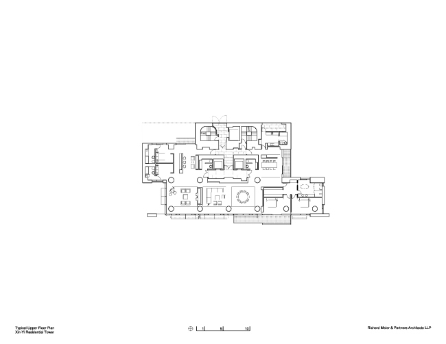
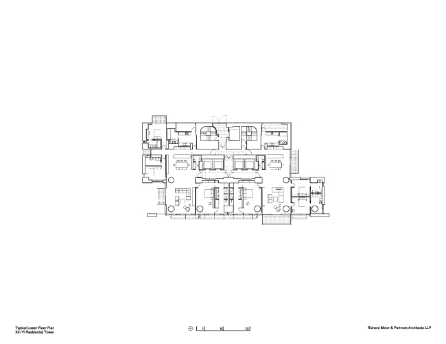
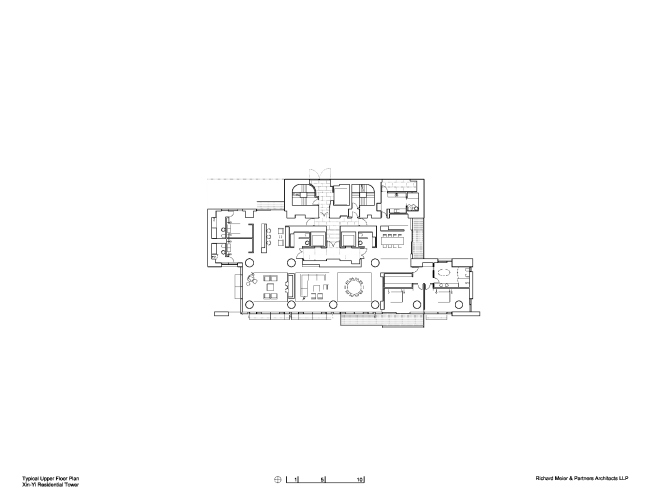
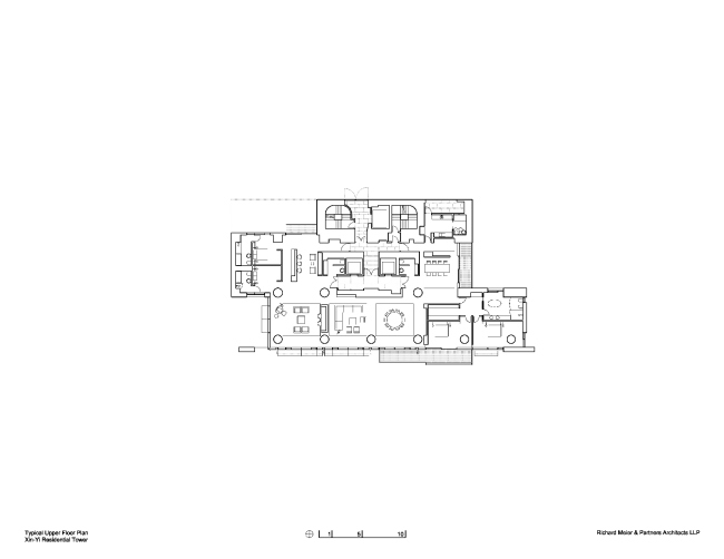
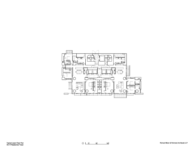
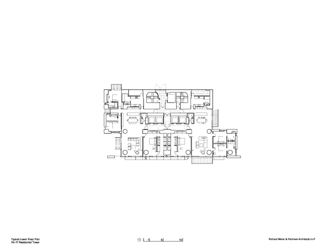
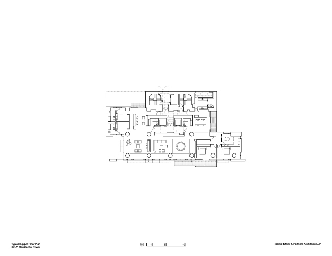
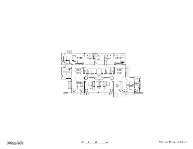
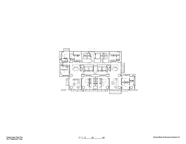
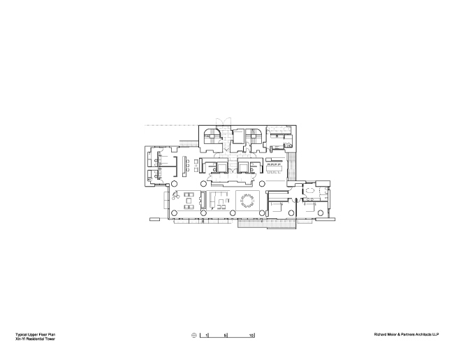
Башню составят два основных объема. Северный, закрытый и массивный, будет отделан белыми алюминиевыми панелями, а южный, выполненный из прозрачного стекла, «закроет» основной объем как своеобразный экран. В первом расположатся собственно квартиры: по две на этаже в нижней части здания и по одной на каждый этаж в верхней – всего их будет 43. Второй объем займут залитые солнцем общественные зоны и специальные коридоры, позволяющие насладиться эффектными горными видами. На самом верху появятся открытый бассейн и терраса, с которых прекрасно будет виден 500-метровый «Тайбэй 101».
Жилая башня 55 Timeless © Vize.com. Предоставлено Richard Meier & Partners Architects
Жилая башня 55 Timeless © Vize.com. Предоставлено Richard Meier & Partners Architects

Стекло, которое Майер планирует использовать на южном фасаде, не совсем обычное. В нем максимально снижено содержание железа, что позволяет полностью избавиться от неуместного в данном случае зеленоватого оттенка. Благодаря этому, белые, абсолютно прозрачные панели прекрасно пропускают солнечные лучи внутрь не слишком глубокого пространства. Не случайно именно такой тип стекла часто используется в производстве фотоэлементов. Своей плоской прямоугольной формой и жесткой решеткой рисунка фасада новая башня действительно может напомнить такую гигантскую солнечную батарею.
Жилая башня 55 Timeless © Vize.com. Предоставлено Richard Meier & Partners Architects
Жилая башня 55 Timeless © Vize.com. Предоставлено Richard Meier & Partners Architects
Жилая башня 55 Timeless © Vize.com. Предоставлено Richard Meier & Partners Architects
Жилая башня 55 Timeless © Vize.com. Предоставлено Richard Meier & Partners Architects
Жилая башня 55 Timeless © Richard
Meier & Partners Architects
Жилая башня 55 Timeless © Richard Meier & Partners Architects
Жилая башня 55 Timeless © Richard
Meier & Partners Architects
Жилая башня 55 Timeless © Richard Meier & Partners Architects
Жилая башня 55 Timeless © Richard
Meier & Partners Architects
Жилая башня 55 Timeless © Richard Meier & Partners Architects
Жилая башня 55 Timeless © Richard
Meier & Partners Architects
Жилая башня 55 Timeless © Richard Meier & Partners Architects
Жилая башня 55 Timeless © Richard
Meier & Partners Architects
Жилая башня 55 Timeless © Richard Meier & Partners Architects
Жилая башня 55 Timeless © Richard
Meier & Partners Architects
Жилая башня 55 Timeless © Richard Meier & Partners Architects
Жилая башня 55 Timeless © Richard
Meier & Partners Architects
Жилая башня 55 Timeless © Richard Meier & Partners Architects
Жилая башня 55 Timeless © Richard
Meier & Partners Architects
Жилая башня 55 Timeless © Richard Meier & Partners Architects
Жилая башня 55 Timeless © Richard
Meier & Partners Architects
Жилая башня 55 Timeless © Richard Meier & Partners Architects
Жилая башня 55 Timeless © Richard
Meier & Partners Architects
Жилая башня 55 Timeless © Richard Meier & Partners Architects
Жилая башня 55 Timeless © Richard
Meier & Partners Architects
Жилая башня 55 Timeless © Richard Meier & Partners Architects
Жилая башня 55 Timeless © Richard
Meier & Partners Architects
Жилая башня 55 Timeless © Richard Meier & Partners Architects
Жилая башня 55 Timeless © Richard
Meier & Partners Architects
Жилая башня 55 Timeless © Richard Meier & Partners Architects
Жилая башня 55 Timeless © Richard
Meier & Partners Architects
Жилая башня 55 Timeless © Richard Meier & Partners Architects
Жилая башня 55 Timeless © Richard
Meier & Partners Architects
Жилая башня 55 Timeless © Richard Meier & Partners Architects
Жилая башня 55 Timeless © Richard
Meier & Partners Architects
Жилая башня 55 Timeless © Richard Meier & Partners Architects
Жилая башня 55 Timeless © Richard
Meier & Partners Architects
Жилая башня 55 Timeless © Richard Meier & Partners Architects
Жилая башня 55 Timeless © Richard
Meier & Partners Architects
Жилая башня 55 Timeless © Richard Meier & Partners Architects
Жилая башня 55 Timeless © Richard
Meier & Partners Architects
Жилая башня 55 Timeless © Richard Meier & Partners Architects
Жилая башня 55 Timeless © Richard
Meier & Partners Architects
Жилая башня 55 Timeless © Richard Meier & Partners Architects