Размещено на портале Архи.ру (www.archi.ru)

10.12.2015

Юлий Борисов: «Мы работали с этим проектом на высочайшем, можно сказать ювелирном уровне»

Анна Старостина
Объект:
Жилой комплекс «Голландский квартал» в Ивантеевке
Адрес:
Россия, Ивантеевка. Московская область
Архитектор:
Юлий Борисов
Мастерская:
UNK

На окраине Ивантеевки завершается строительство малоэтажного жилого комплекса, бюджетного, но симпатичного, тщательно проработанного архитекторами и реализованного практически точь-в-точь так, как хотелось авторам.

Жилой комплекс «Голландский квартал» в Ивантеевке
Жилой комплекс «Голландский квартал» в Ивантеевке
© UNK project

Два года назад мы подробно рассказывали о проекте жилого комплекса «Голландский квартал» в подмосковной Ивантеевке – примере малобюджетной, низкоэтажной строчной застройки, которую архитекторам в рамках отведенных финансов удалось сделать разнообразной пластически и планировочно. Сейчас «Голландский квартал» построен. Первая очередь уже сдана в эксплуатацию, владельцы квартир на днях должны получить ключи. Работы по второй очереди завершатся до конца текущего года. Архитекторы утверждают, что практически все проектные идеи им удалось воплотить в жизнь и именно так, как было задумано. Что, как известно, в наших широтах встречается редко.

Жилой комплекс сразу же стал лауреатом главной премии в области жилой городской недвижимости Urban Awards 2015 в номинации «Комплекс года с лучшей архитектурой».

Кроме того, «квартал» – пример поиска реальной альтернативы панельным спальным районам, что в последние годы наконец-то стало одной из основных тем размышлений российских архитекторов. О том, какое решение удалось найти в данном случае, нам рассказал Юлий Борисов, сооснователь бюро UNK project и главный архитектор проекта.

Archi.ru:
В чем на ваш взгляд залог успеха подобных смелых, но низкобюджетных проектов?

Юлий Борисов: Хоть комплекс и позиционируется как «комфорт-класс», участники проекта делали все на высочайшем, я бы сказал ювелирном уровне. И заказчики, и консультанты, и наши архитекторы работали ровно так же, как и с дорогими частными заказами. Это в равной степени касается фасадных, планировочных, конструкторских, архитектурных, инженерных составляющих проекта. Мы как правило сталкиваемся с очень низким бюджетом на проектирование, в такой ситуации даже самый высококлассный архитектор мало что сможет сделать помимо простого тиражирования одной-единственной разработанной секции. В данном случае уже на стадии выработки идей от нас потребовалась полная отдача и грамотная организация процесса. Верный изначальный «посыл» заказчика сыграл в конечном счете ключевую роль.

То есть, желание и просвещенность заказчика оказываются решающими? 

Ю.Б.: Конечно! В Подмосковье достаточно четырех-пятиэтажных комплексов, которые схожи по характеристикам с «Голландским кварталом», но выглядят как однотипные бараки. Хорошо, если скатную кровлю добавят, а в остальном – всем знакомые хрущевки. В нашем случае сказался большой опыт заказчика и его ориентированность на самые передовые решения, зарубежные в том числе. Уже на стадии проектирования было четкое понимание: необходимо дать рынку лучшее из возможного. Жесткие градостроительные ограничения (можно было строить не выше четырех этажей), как ни странно, также сыграли положительную роль. Если бы их не было, вполне вероятно, что и наш просвещенный заказчик не стал бы усложнять себе задачу и просто выстроил на участке двенадцатиэтажные дома, ведь они существенно выгоднее экономически. Но надзорные органы проявили твердость, которая была воспринята заказчиком не как досадная помеха, а как дополнительный стимул создать нестандартный, интересный продукт. Ну а наша уже заслуга в том, что мы смогли его спроектировать.
Жилой комплекс «Голландский квартал» в Ивантеевке
Жилой комплекс «Голландский квартал» в Ивантеевке
© UNK project
Жилой комплекс «Голландский квартал» в Ивантеевке. Генеральный план. Проект, 2013 © UNK project
Жилой комплекс «Голландский квартал» в Ивантеевке. Генеральный план. Проект, 2013 © UNK project

Есть довольно очевидные параллели в решениях, предложенных UNK project для десятого жилого квартала в иннограде Сколково и для «Голландского квартала»: чередование проезжих и пешеходных дорог, дробность объемов, различие композиционного, планировочного и фасадного решений каждой секции при некоторой общей типологичности и так далее. Можно все это громко назвать общими тенденциями? 

Ю.Б.: Разница между эконом и премиум-классом не должна сказываться на базовых характеристиках жилья: таких как комфорт и безопасность. Многие крупные строительные компании превращают дешевое жилье в какое-то гетто. Но почему, если люди не могут себе позволить дорогие квартиры, они должны ощущать себя каким-то вторым сортом? Мы убеждены, что есть некоторые базовые принципы, которые обязаны распространяться на любое жилье. Дети в любом случае не должны попадать под колеса машин выходя из подъезда или играя на площадке, поэтому мы разделяем проезжие и общественные зоны. Всем нужно общение – и мы создаем специальные места, где могут собраться люди всех возрастов, то есть закладываем и формируем общественную жизнь еще на стадии проекта. В любом случае людям необходимы магазины и хотя бы минимальный набор услуг, и поскольку комплекс расположен на окраине города, нам пришлось создавать всю инфраструктуру. Все это мы действительно делали и в Сколково. Наконец, люди не должны мучиться, где им поставить машину. Даже если мы делаем не подземные паркинги, а просто наземные площадки, мы ориентируемся не на нормативы, а на потребности людей. Да, машины в более бюджетных проектах будут стоять не в боксах, а просто на улице, но мест будет достаточно. Очевидно, что архитектурные решения напрямую влияют на психологический комфорт человека.
Жилой комплекс «Голландский квартал» в Ивантеевке
Жилой комплекс «Голландский квартал» в Ивантеевке
© UNK project
Жилой комплекс «Голландский квартал» в Ивантеевке
Жилой комплекс «Голландский квартал» в Ивантеевке
© UNK project

В Сколково, чтобы разнообразить среду, мы использовали игру объемов и материалов, а в «Голландском квартале» разработали около семнадцати различных типов домов. Такая застройка визуально не воспринимается как монотонная и скучная: разная фактура и цвет отделки фасада, переменная высотность секций, нерегулярный ритм окон позволяют людям без труда идентифицировать свою секцию. Функциональный комфорт также продуман: мы, например, отказались от центральной системы холодоснабжения, но заранее предусмотрели всё для установки кондиционеров. Если люди решатся на этот шаг, то наружные блоки, спрятанные за специальными панелями, не нарушат внешний вид зданий, а также, благодаря гасящим звук экранам, не будут слишком шуметь. Кстати, при работе над проектами бюджетного жилья необходимо учитывать не только стоимость самого объекта, но и стоимость владения квартирой. Нам не легко далось решение отказаться от лифтов, но они и сами по себе дороги, и стоимость обслуживания также высока. Подняться по лестнице на четвертый этаж в принципе не слишком большая проблема, но только если ты не с детской коляской, поэтому, чтобы снизить негативные последствия такой экономии мы на первых этажах предусмотрели специальные колясочные.
Жилой комплекс «Голландский квартал» в Ивантеевке
Жилой комплекс «Голландский квартал» в Ивантеевке
© UNK project
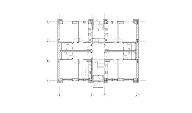
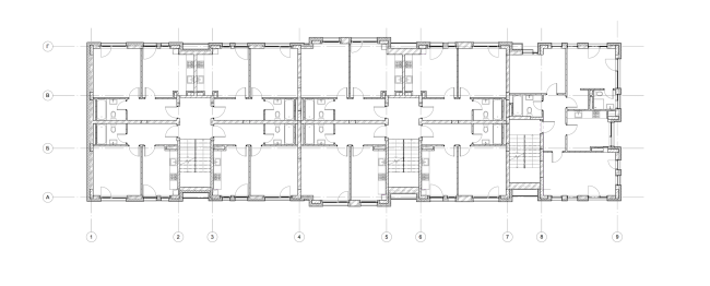
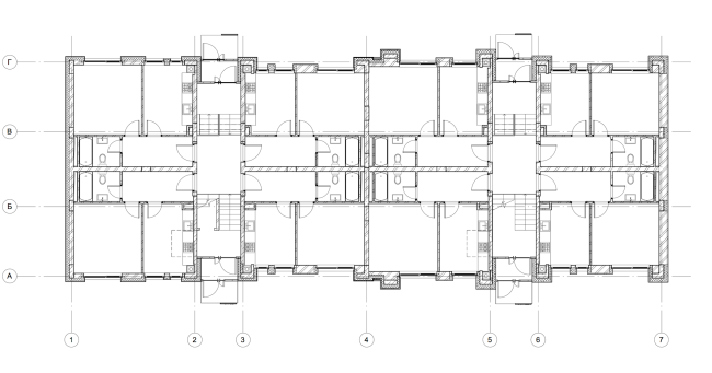
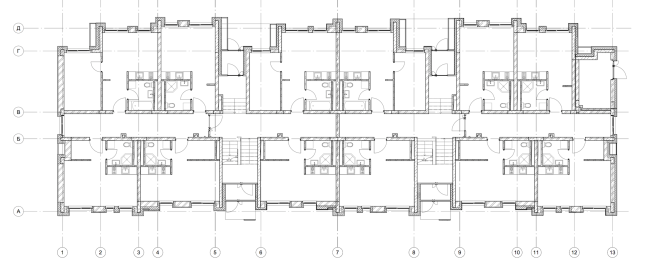
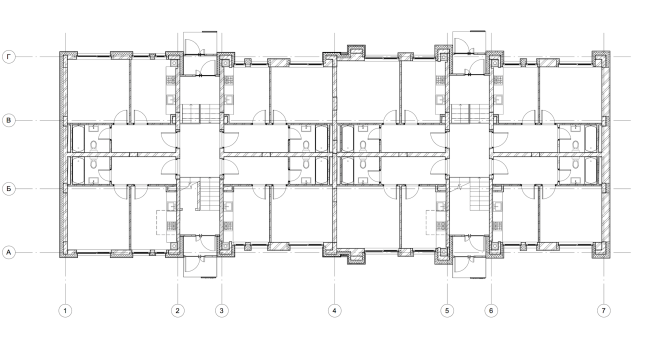
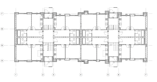
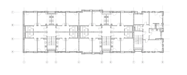
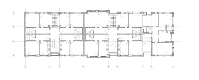
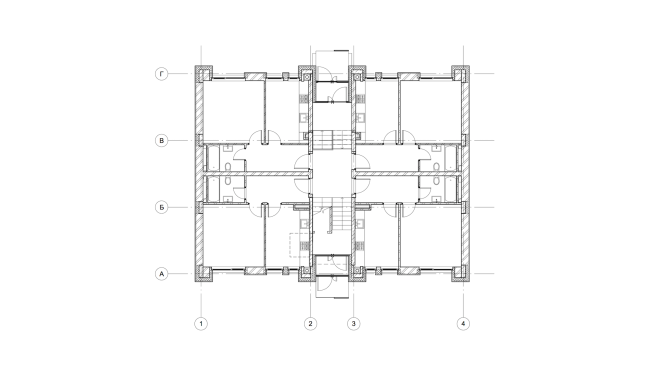
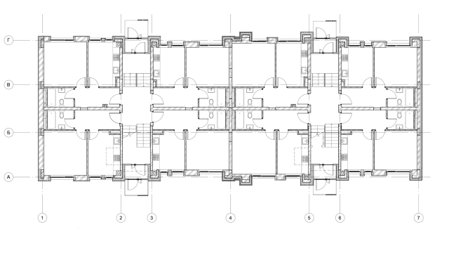
Жилой комплекс «Голландский квартал» в Ивантеевке. Дом 1, план 1 этажа. Постройка, 2015 © UNK project
Жилой комплекс «Голландский квартал» в Ивантеевке. Дом 1, план 1 этажа. Постройка, 2015 © UNK project
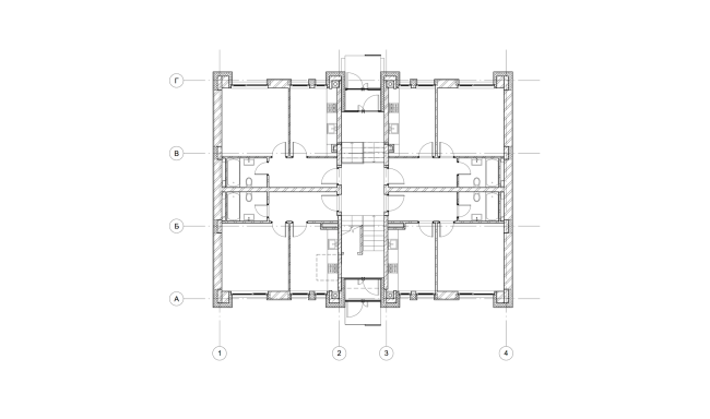
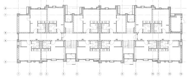
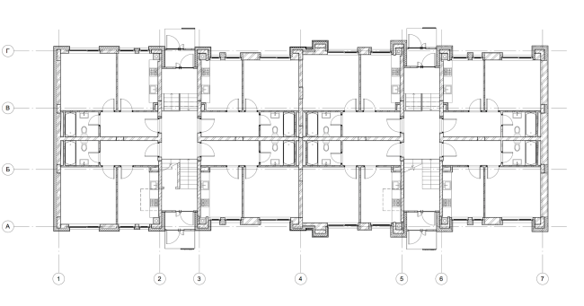
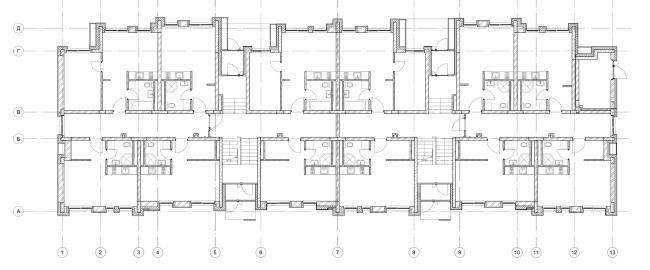
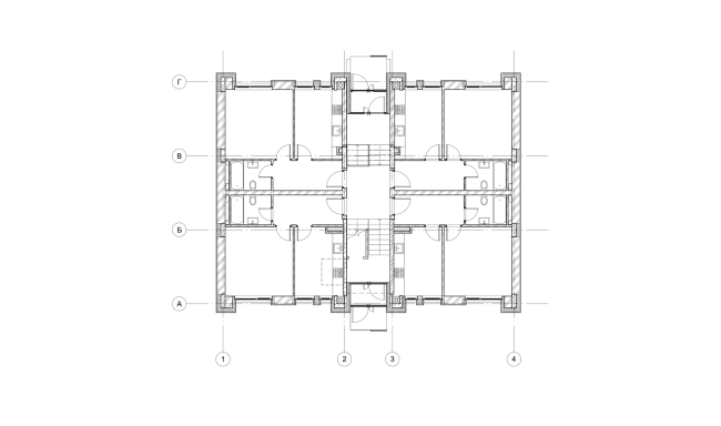
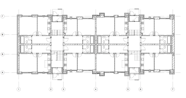
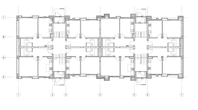
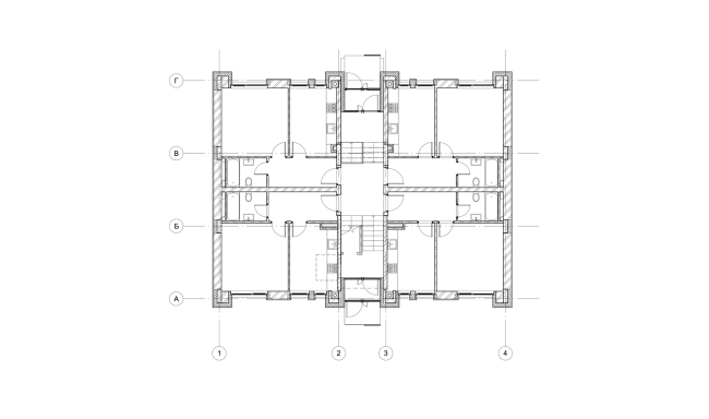
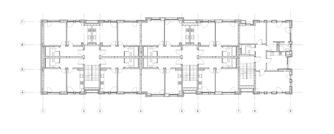
Жилой комплекс «Голландский квартал» в Ивантеевке. Дом 2, план 1 этажа. Постройка, 2015 © UNK project
Жилой комплекс «Голландский квартал» в Ивантеевке. Дом 2, план 1 этажа. Постройка, 2015 © UNK project

Всё-таки, какими конкретными приемами достигается необходимый уровень визуального комфорта?

Ю.Б.: Мы пытались создать у людей впечатление, что они живут в комплексе более высокого класса и поэтому использовали дорогие отделочные материалы. Например, клинкерный кирпич, который раньше активно использовался в основном на элитной Остоженке. Точнее у нас два вида кирпича и два вида штукатурки, которые и формируют декоративный «паттерн» застройки. Охристый или белый цвета оштукатуренных фасадов создают яркие акценты и отдаленно напоминают о Голландии. Кирпичные же фасады призваны наглядно демонстрировать качество создаваемой среды. Есть еще несколько важных деталей: например, промежутки между окнами в некоторых местах заполнены HPL-панелями, что еще больше разнообразит рисунок, лестничные марши и блоки кондиционеров «защищают» специальные рейки из окрашенного алюминия, которые на углах и оштукатуренных, и кирпичных зданий «подхватывают» фактурные полосочки-раскреповки. Кроме того, вместо стандартных стеклопакетов мы использовали более качественные и презентабельные, с темным ламинированным профилем. Ну и сами секции скорее напоминают европейские таунхаусы, а не многоквартирные жилые дома, которыми являются на самом деле.
Жилой комплекс «Голландский квартал» в Ивантеевке
Жилой комплекс «Голландский квартал» в Ивантеевке
© UNK project

Использовали ли вы какие-то элементы зеленого строительства, какие-то технологические новинки, или им нет места в бюджетном проекте?

Ю.Б.: Уникальных решений, вроде пневматического мусоропровода в Сколково, я, пожалуй, не назову. Тем не менее есть несколько важных моментов. Во-первых, мы для каждой квартиры установили свой двухконтурный котел, как это принято делать в Германии. Такое решение позволило эффективно использовать природные ресурсы и серьезно снизить уровень коммунальных платежей, так как уезжая можно выставить минимальную температуру и не топить помещения впустую. Регулировать тепло может сам пользователь и это большой плюс. В ландшафтном освещении и подсветке общественных зон мы использовали экономичные светодиоды, так что энергозатраты на освещение всего поселка сравнительно невелики. Мы придумали установить не стандартные городские фонари, а более низкие, эффективные и экономичные светильники. Решение оказалось очень важным еще и с точки зрения общего комфорта, так как удалось полностью избавиться от назойливо бьющих в окна источников света. Наконец, качественное утепление на фасадах, позволило снизить потребление тепловой энергии зимой и кондиционирования летом. Еще важно упомянуть качественную программу озеленения территории, к разработке которой привлекли швейцарских специалистов.
Жилой комплекс «Голландский квартал» в Ивантеевке
Жилой комплекс «Голландский квартал» в Ивантеевке
© UNK project

Комплекс «Голландский квартал» находится не в центре, а на окраине Ивантеевки, на границе с лесом, тем не менее, как он взаимодействует с окружающей средой и городом?

Ю.Б.: Действительно, у нас все основные бульвары ведут от въезда к лесу. Люди, повинуясь естественному ритму жизни, могут выйти из подъезда и пойти прогуляться. С другой стороны участка расположен район малоэтажной застройки и мы поставили там невысокие корпуса с самыми недорогими квартирами-студиями, которые становятся своеобразным «буфером». Мы, конечно же, учитывали окружающую застройку, но поскольку она совершенно безлика, то именно наш квартал должен в ближайшем будущем стать «драйвером роста» всего района, именно на него будут ориентироваться при дальнейшей застройке.
 
Жилой комплекс «Голландский квартал» в Ивантеевке. Вид с высоты птичьего полёта. Проект, 2013 © UNK project
Жилой комплекс «Голландский квартал» в Ивантеевке. Вид с высоты птичьего полёта. Проект, 2013 © UNK project
Жилой комплекс «Голландский квартал» в Ивантеевке
Жилой комплекс «Голландский квартал» в Ивантеевке
© UNK project
Жилой комплекс «Голландский квартал» в Ивантеевке
Жилой комплекс «Голландский квартал» в Ивантеевке
© UNK project
Жилой комплекс «Голландский квартал» в Ивантеевке
Жилой комплекс «Голландский квартал» в Ивантеевке
© UNK project
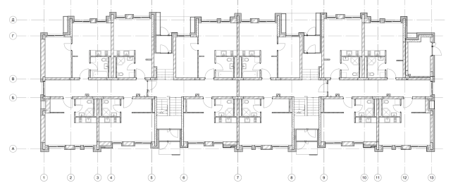
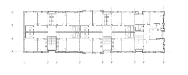
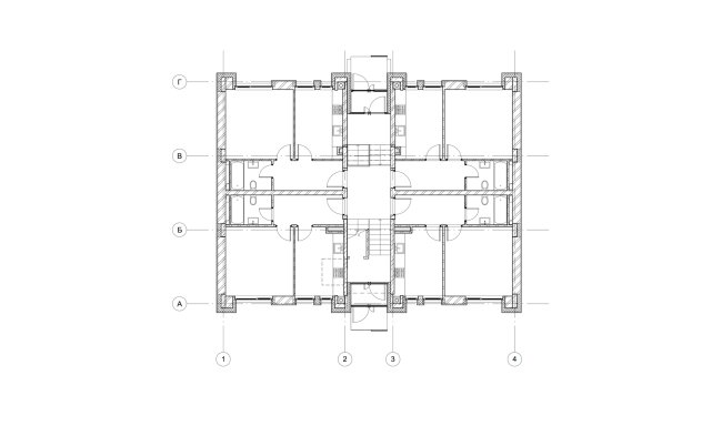
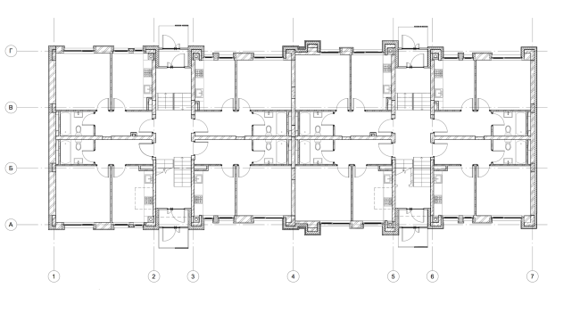
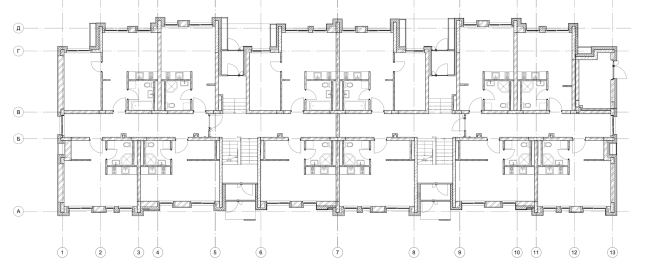
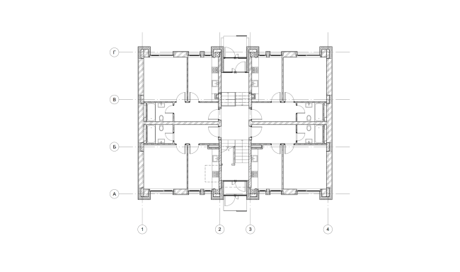
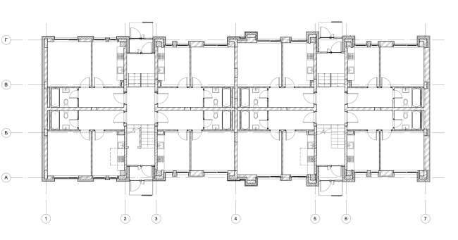
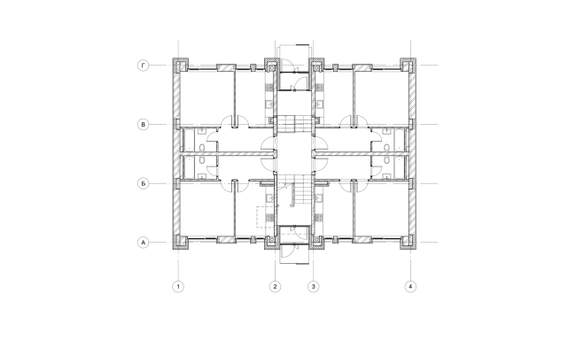
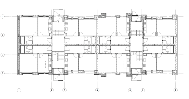
Жилой комплекс «Голландский квартал» в Ивантеевке. Дом 3, план 1 этажа. Постройка, 2015 © UNK project
Жилой комплекс «Голландский квартал» в Ивантеевке. Дом 3, план 1 этажа. Постройка, 2015 © UNK project
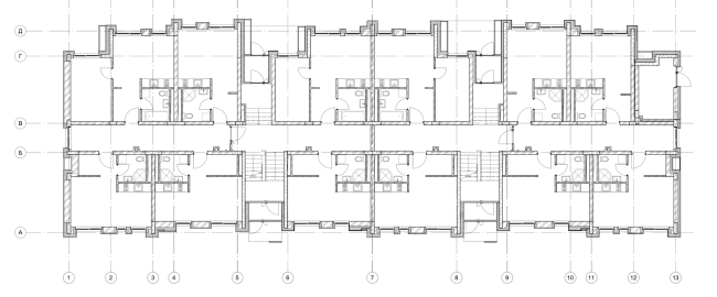
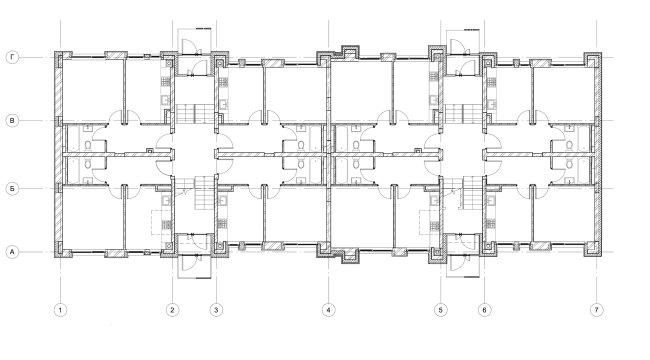
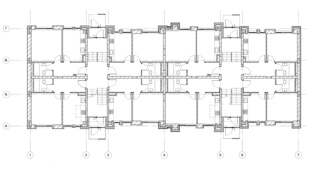
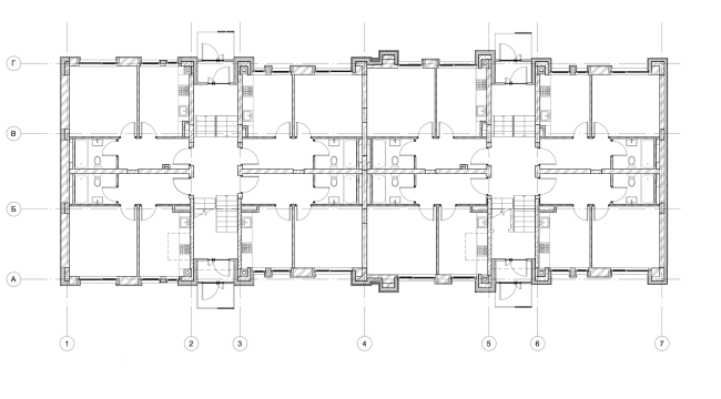
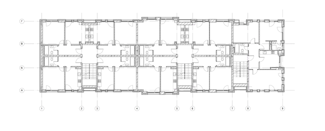
Жилой комплекс «Голландский квартал» в Ивантеевке. Дом 4, план 1 этажа. Постройка, 2015 © UNK project
Жилой комплекс «Голландский квартал» в Ивантеевке. Дом 4, план 1 этажа. Постройка, 2015 © UNK project
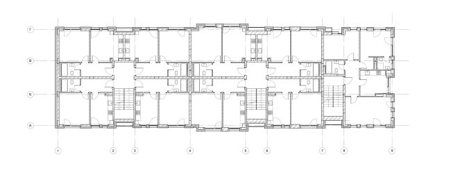
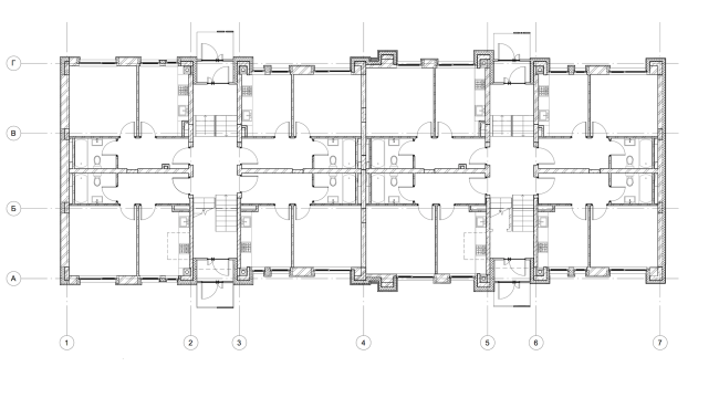
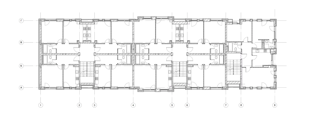
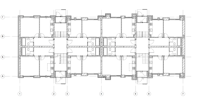
Жилой комплекс «Голландский квартал» в Ивантеевке. Дом 5, план 1 этажа. Постройка, 2015 © UNK project
Жилой комплекс «Голландский квартал» в Ивантеевке. Дом 5, план 1 этажа. Постройка, 2015 © UNK project