Размещено на портале Архи.ру (www.archi.ru)

05.10.2015

Новая тектоника

Лилия Аронова
Объект:
Гостиничный комплекс Radisson Blu на месте слияния Москвы-реки и реки Сходня
Адрес:
Россия, Москва.
Мастерская:
Arch group
Авторский коллектив:
Авторы: Алексей Горяинов, Михаил Крымов, Ирина Кочук, Карим Вафин, Кристина Карачарскова, Анна Хлуденева

Воспользовавшись отсутствием архитектурного контекста, архитекторы из бюро arch group спроектировали здание отеля Radisson Blu Moscow Riverside не просто органично, а почти буквально «вырастающим» из природного ландшафта. Второе место в конкурсе на архитектурную концепцию.

Гостиничный комплекс Radisson Blu на месте слияния Москвы-реки и реки Сходня. Вид с высоты птичьего полета © Arch group
Гостиничный комплекс Radisson Blu на месте слияния Москвы-реки и реки Сходня. Вид с высоты птичьего полета © Arch group

Уникальная география участка, на котором будет построен Radisson Blu Moscow Riverside, очевидно, не оставила равнодушным никого из участников конкурса на архитектурную концепцию гостиничного комплекса. Но именно в проекте Arch group из нее выросла целая идеология. Выросла естественно и органично, в буквальном смысле из почвы под ногами: Михаил Крымов и Алексей Горяинов с самого начала решили, что главное для них – насколько это возможно, использовать все преимущества ландшафта. Прежде всего, конечно, невероятный вид на панораму Строгинской поймы, подобных которому в черте Москвы, может, и не найти. Поэтому первой задачей стал поиск такого архитектурно-планировочного решения, которое позволило бы открыть эту панораму из максимального количества, а в идеале – из всех жилых помещений. Следовательно, речь не могла идти ни о перекрывающихся объемах, ни об обращенных друг на друга окнах; логичным решением стал план, точно повторяющий изгиб стрелки Москвы-реки и Сходни. Учитывая, что почти все номера и апартаменты (за небольшим исключением) архитекторы предлагают ориентировать на внешний фасад, такое решение обеспечивает гостям отеля визуальный комфорт, заодно отсекая не слишком приглядные виды на очистные сооружения, расположенные позади территории застройки.
Гостиничный комплекс Radisson Blu на месте слияния Москвы-реки и реки Сходня. Факторы формообразования © Arch group
Гостиничный комплекс Radisson Blu на месте слияния Москвы-реки и реки Сходня. Факторы формообразования © Arch group
Гостиничный комплекс Radisson Blu на месте слияния Москвы-реки и реки Сходня © Arch group
Гостиничный комплекс Radisson Blu на месте слияния Москвы-реки и реки Сходня © Arch group
Гостиничный комплекс Radisson Blu на месте слияния Москвы-реки и реки Сходня © Arch group
Гостиничный комплекс Radisson Blu на месте слияния Москвы-реки и реки Сходня © Arch group
Гостиничный комплекс Radisson Blu на месте слияния Москвы-реки и реки Сходня. Ситуационный план © Arch group
Гостиничный комплекс Radisson Blu на месте слияния Москвы-реки и реки Сходня. Ситуационный план © Arch group

Как же может выглядеть сам объем, так естественно «усаженный» на мыс между двумя реками? «Мы подумали, что самый правильный способ формообразования – это если здание будет словно вырастать из земли, – рассказывает Алексей Горяинов. – Оно должно находиться в полной гармонии с окружающим ландшафтом, словно ничего иного здесь и быть не могло». Подобные ходы вообще свойственны работам Горяинова и Крымова: в их проектах обычно есть внятный, логично вытекающий из контекста смысл, хорошо читаемый на языке визуальной образности. В данном случае со стороны воды здание гостиничного комплекса должно казаться холмом, который вырос в Строгинской пойме не иначе как в результате неких неотектонических процессов. На этот эффект работает и естественный подъем рельефа, который архитекторы продолжают наклонной формой здания, усиленной декоративными тягами на уровне первого этажа – они символизируют связь фасада с землей. Уклон к воде предлагается подчеркнуть еще и концентрическими дугами зеленых террас, благо на прилегающей к реке территории даже асфальтированных дорожек устраивать нельзя – только лужайки, тропинки, причалы для яхт.
Гостиничный комплекс Radisson Blu на месте слияния Москвы-реки и реки Сходня © Arch group
Гостиничный комплекс Radisson Blu на месте слияния Москвы-реки и реки Сходня © Arch group
Гостиничный комплекс Radisson Blu на месте слияния Москвы-реки и реки Сходня © Arch group
Гостиничный комплекс Radisson Blu на месте слияния Москвы-реки и реки Сходня © Arch group
Гостиничный комплекс Radisson Blu на месте слияния Москвы-реки и реки Сходня © Arch group
Гостиничный комплекс Radisson Blu на месте слияния Москвы-реки и реки Сходня © Arch group
Гостиничный комплекс Radisson Blu на месте слияния Москвы-реки и реки Сходня © Arch group
Гостиничный комплекс Radisson Blu на месте слияния Москвы-реки и реки Сходня © Arch group

Весь фасад занимают остекленные террасы номеров и апартаментов. Отступление от вертикали дает архитекторам еще одно преимущество: чем ниже этаж, тем просторнее можно сделать террасы, а значит, ограниченный из-за окружающих деревьев вид на акваторию будет компенсироваться дополнительными квадратными метрами. А если интегрировать в наклонное остекление солнечные батареи, это существенно повысит энергоэффективность комплекса. Кстати, по словам Алексея Горяинова, проект заключает в себе множество возможностей с точки зрения «зеленого строительства», от сбора дождевой и талой воды до полной автоматизации и централизованной диспетчеризации всех инженерных систем, – и в русле природно-ориентированной идеологии проекта это выглядит более чем логично.
Гостиничный комплекс Radisson Blu на месте слияния Москвы-реки и реки Сходня © Arch group
Гостиничный комплекс Radisson Blu на месте слияния Москвы-реки и реки Сходня © Arch group
Гостиничный комплекс Radisson Blu на месте слияния Москвы-реки и реки Сходня © Arch group
Гостиничный комплекс Radisson Blu на месте слияния Москвы-реки и реки Сходня © Arch group
Гостиничный комплекс Radisson Blu на месте слияния Москвы-реки и реки Сходня © Arch group
Гостиничный комплекс Radisson Blu на месте слияния Москвы-реки и реки Сходня © Arch group

Если с внешнего фасада на образ «холма» работают, кроме прочего, и деревянные детали террас, то с противоположной стороны здание почти полностью отделано стеклом. Поскольку начиная с шестого этажа во двор выходят только коридоры, ограничения по площади остекления жилых помещений здесь не действуют, а значит, есть возможность предоставить идущим от лифтов жильцам Radisson Blu максимум света. Наклонная форма здания играет здесь еще одну роль – частично защищает подходящих ко входу от дождя, превращая здание в разновидность исполинского козырька. А внутри плавного изгиба основного объема архитекторы предлагают расположить еще один «холм», на этот раз зеленый (в прямом смысле слова – его кровлю планируется засадить кустами и деревьями). Так в проекте выглядит бизнес-центр – многофункциональный зал и офисы с собственным рестораном и парковкой, – соединенный с главным зданием на уровне подземного этажа. Его зеленая кровля призвана защищать от промышленных видов постояльцев гостиничных номеров 2–5 этажей: в этом секторе ориентация жилых помещений только на внешнюю сторону была бы экономически неэффективна. Что же касается общественных зон собственно отеля – лобби, ресторана, спа-центра, – то под них полностью отводится первый уровень здания.
Гостиничный комплекс Radisson Blu на месте слияния Москвы-реки и реки Сходня. Вид с высоты птичьего полета © Arch group
Гостиничный комплекс Radisson Blu на месте слияния Москвы-реки и реки Сходня. Вид с высоты птичьего полета © Arch group
Гостиничный комплекс Radisson Blu на месте слияния Москвы-реки и реки Сходня. Аксонометрия © Arch group
Гостиничный комплекс Radisson Blu на месте слияния Москвы-реки и реки Сходня. Аксонометрия © Arch group

Особенность участка, о котором идет речь, состоит еще и в том, что, прежде чем ахнуть от восторга при виде открывающихся просторов, гостям отеля придется проделать краткий, но впечатляющий путь от Волоколамского шоссе. Благоустройство сюда пока не добралось и неизвестно когда доберется, так что, скорее всего, и после завершения строительства дорогу к Radisson Blu будут обрамлять бетонные заборы с колючей проволокой, руины бензоколонки и выставка-продажа надгробных плит. Авторы проекта сочли необходимым перебить это впечатление самым активным ракурсом своего здания: с этой видовой точки восточное крыло комплекса взмывает в небо, как монумент «Покорителям космоса». Помимо законов перспективы на такой эффект работает и повышение высотности здания в направлении Волоколамского шоссе: разница с противоположной оконечностью дуги составляет три этажа, благодаря чему дополнительную динамику приобретают и виды здания со стороны Москвы-реки и МКАДа, а ступенчатые террасы на кровле комплекса повышают коммерческую привлекательность апартаментов верхних уровней. Что же касается подъезжающих к отелю гостей, то в конце пути их ждет wow-эффект в виде арочного проема высотой в два этажа, открывающего вид сквозь здание на реку. Отделка деревом натуральных оттенков, форма, напоминающая геологические разрезы, – кажется, что сама земля вздыбилась в этом месте, повинуясь какому-нибудь магическому «сим-сим, откройся», да так и застыла, пораженная красотой пейзажа.
 
Гостиничный комплекс Radisson Blu на месте слияния Москвы-реки и реки Сходня © Arch group
Гостиничный комплекс Radisson Blu на месте слияния Москвы-реки и реки Сходня © Arch group
Гостиничный комплекс Radisson Blu на месте слияния Москвы-реки и реки Сходня © Arch group
Гостиничный комплекс Radisson Blu на месте слияния Москвы-реки и реки Сходня © Arch group
Гостиничный комплекс Radisson Blu на месте слияния Москвы-реки и реки Сходня © Arch group
Гостиничный комплекс Radisson Blu на месте слияния Москвы-реки и реки Сходня © Arch group
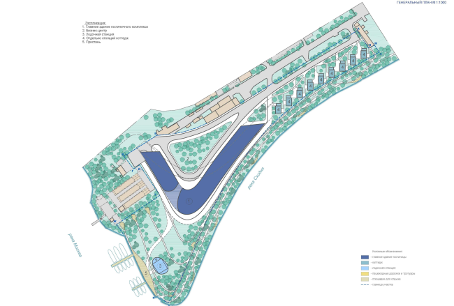
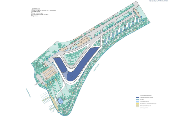
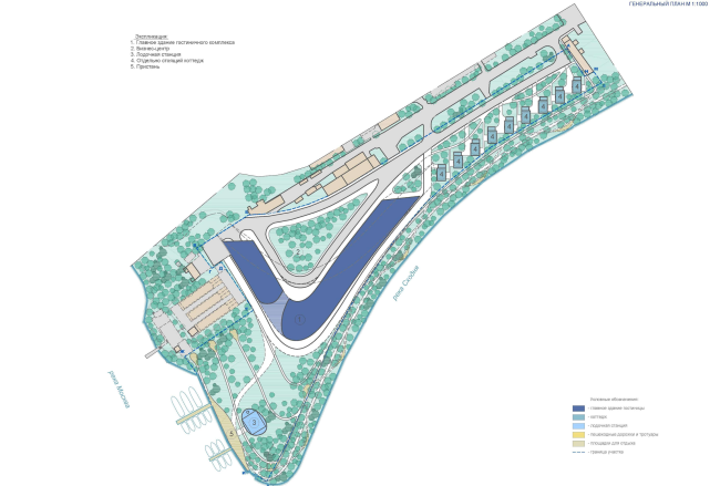
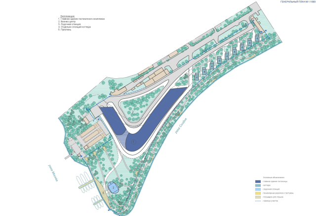
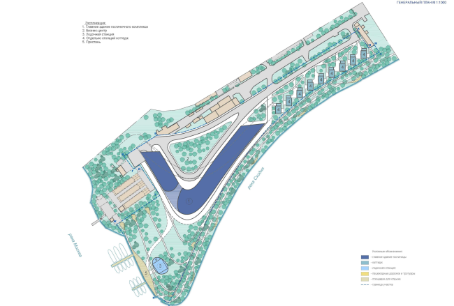
Гостиничный комплекс Radisson Blu на месте слияния Москвы-реки и реки Сходня. Генеральный план © Arch group
Гостиничный комплекс Radisson Blu на месте слияния Москвы-реки и реки Сходня. Генеральный план © Arch group
Гостиничный комплекс Radisson Blu на месте слияния Москвы-реки и реки Сходня. Схема пешеходных и рекреационных зон © Arch group
Гостиничный комплекс Radisson Blu на месте слияния Москвы-реки и реки Сходня. Схема пешеходных и рекреационных зон © Arch group
Гостиничный комплекс Radisson Blu на месте слияния Москвы-реки и реки Сходня. Транспортная схема © Arch group
Гостиничный комплекс Radisson Blu на месте слияния Москвы-реки и реки Сходня. Транспортная схема © Arch group
Гостиничный комплекс Radisson Blu на месте слияния Москвы-реки и реки Сходня. Аксонометрия © Arch group
Гостиничный комплекс Radisson Blu на месте слияния Москвы-реки и реки Сходня. Аксонометрия © Arch group
Гостиничный комплекс Radisson Blu на месте слияния Москвы-реки и реки Сходня. Разрезы © Arch group
Гостиничный комплекс Radisson Blu на месте слияния Москвы-реки и реки Сходня. Разрезы © Arch group
Гостиничный комплекс Radisson Blu на месте слияния Москвы-реки и реки Сходня. План цоколя и 1 этажа © Arch group
Гостиничный комплекс Radisson Blu на месте слияния Москвы-реки и реки Сходня. План цоколя и 1 этажа © Arch group
Гостиничный комплекс Radisson Blu на месте слияния Москвы-реки и реки Сходня. План 2-4 этажей © Arch group
Гостиничный комплекс Radisson Blu на месте слияния Москвы-реки и реки Сходня. План 2-4 этажей © Arch group
Гостиничный комплекс Radisson Blu на месте слияния Москвы-реки и реки Сходня. Фасад © Arch group
Гостиничный комплекс Radisson Blu на месте слияния Москвы-реки и реки Сходня. Фасад © Arch group
Гостиничный комплекс Radisson Blu на месте слияния Москвы-реки и реки Сходня. Фасад © Arch group
Гостиничный комплекс Radisson Blu на месте слияния Москвы-реки и реки Сходня. Фасад © Arch group