Размещено на портале Архи.ру (www.archi.ru)

25.09.2015

Островки преобразований

Тигран Арутюнян
Мастерская:
Сторакет

О двух постройках бюро «Сторакет» – школе «Айб» в Ереване и центральной школе в Дилижане.

Архитектура Армении для российского и международного читателя ассоциируется в основном со средневековым храмовым зодчеством. Эти постройки стали символом армянской культуры, в тени которого находится современная армянская архитектура. В последние годы благодаря усилиям историка и теоретика Карена Бальяна были сделаны немалые шаги по изучению современной армянской архитектуры, в частности – построек эпохи советского модернизма. Однако по объективным причинам постсоветская архитектура Армении не представляет особого интереса для международных теоретиков и критиков – что вполне объяснимо, учитывая качество новой архитектуры и общую традиционалистскую ее направленность.

Фото © Тигран Арутюнян
Фото © Тигран Арутюнян



Однако, вопреки этой тенденции, в последние годы в стране начали появляться постройки, которые вполне могут быть интересны и в общемировом контексте. Примечательно, что они располагаются, в основном, за пределами столицы или, по крайней мере, не в центре Еревана. К сожалению, в силу разных объективных и субъективных факторов, данные проекты в Армении не были восприняты как важные архитектурные явления и, тем более, не получили известности в международном масштабе. Эти здания остаются этакими островками современной архитектуры и нередко даже игнорируются в консервативных архитектурных кругах. В этой статье хотелось бы представить две школы, которые были построены в последние годы. Они ломают общепринятое представление об архитектуре средних школ и претендуют на то, чтобы стать образовательными точками притяжения для всего мира.


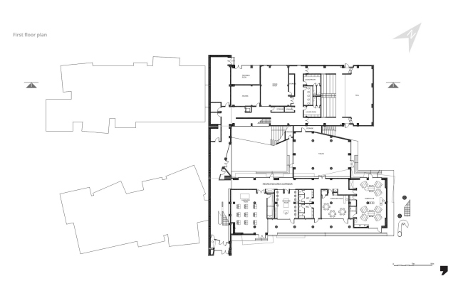
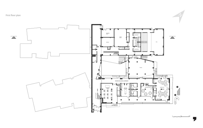
Школа «Айб»

Созданный в 2006 образовательный фонд «Айб» поставил себе задачу построить в Армении уникальную школу для одаренных детей, воплощающую в себе новый формат образования, созвучный XXI веку. Это была масштабная национальная идея развития: основатели фонда, в первую очередь, придавали значение инвестициям в будущее страны, то есть в обучение нового поколения. Следует отметить, что образовательный комплекс был полностью построен на средства благотворителей. Изначально инвесторы намеревались привлечь для реализации этой идеи зарубежных архитекторов, предполагалось организовать закрытый международный конкурс. В частности, шли переговоры с такими именитыми профессионалами, как руководивший расширением кампуса MIT Билл Митчелл и основатель видного китайского бюро MADA s.p.a.m. Цинюнь Ма. Однако из-за финансовых трудностей 2009 года организаторы отказались от больших амбиций и доверили проект молодому ереванскому бюро «Сторакет» (в переводе с армянского – «запятая», что отражено в логотипе бюро), которому сначала было предложено лишь разработать конкурсное задание.

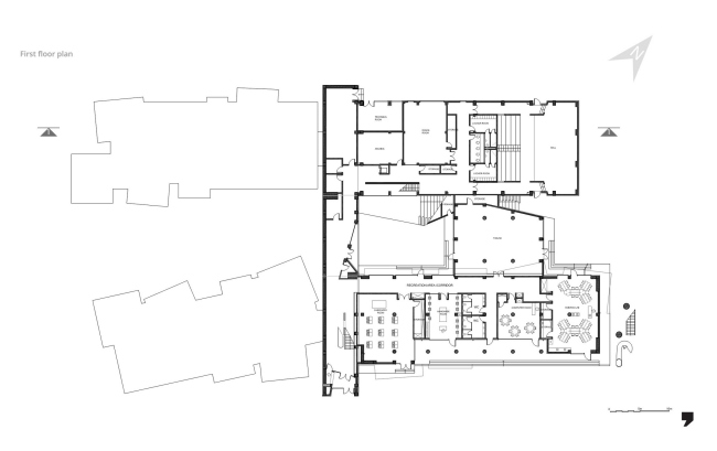
В октябре 2011 было завершено строительство первого корпуса – А. Это один из немногих постсоветских проектов в Ереване, который по своей сути, задаче, исполнению, подходу претендует на актуальность в общемировом контексте. Он появился на незастроенной территории на севере армянской столицы, рядом с Тбилисским шоссе и Канакерской ГЭС. Самое заметное сооружение поблизости – здание Завода шампанских вин (арх. Завен Бахшинян, 1948), а сама эта территория еще с советских времен использовалась как площадка автошколы. Там также находились незавершенные, заброшенные здания 1980-х годов, одно из которых, в связи с положительным техническим заключением, по инициативе архитекторов было сохранено.

Фото предоставлено архитектурным бюро «Сторакет»
Фото предоставлено архитектурным бюро «Сторакет»


Вопреки мнению многих старших коллег, молодые архитекторы не избавились от этого невзрачного здания, а нашли наиболее адекватное решение для его приспособления под новое использование, которое и определило морфотип новой школы.

Изображение предоставлено архитектурным бюро «Сторакет»
Изображение предоставлено архитектурным бюро «Сторакет»


В целом, зданию присуща динамичная эстетика: это дробная композиция из автономных объемов.

Изображение предоставлено архитектурным бюро «Сторакет»
Изображение предоставлено архитектурным бюро «Сторакет»
Изображение предоставлено архитектурным бюро «Сторакет»
Изображение предоставлено архитектурным бюро «Сторакет»


Фасад сочетает серый базальт, белую штукатурку и контрастные акценты оранжевых порталов и обрамления окон (оранжевый – цвет логотипа фонда «Айб»), которые ярко дополняют серо-белую гамму. Интересно, что был использован облицовочный базальт, оставшийся от 1980-х.

Фото предоставлено архитектурным бюро «Сторакет»
Фото предоставлено архитектурным бюро «Сторакет»
Фото предоставлено архитектурным бюро «Сторакет»
Фото предоставлено архитектурным бюро «Сторакет»


Вход на территорию обозначен массивной бетонной рамой, на которой вырезано название «Айб».

Фото предоставлено архитектурным бюро «Сторакет»
Фото предоставлено архитектурным бюро «Сторакет»


Интерьеры школы также характеризуются яркими, свободными решениями. Внутри холла второй этаж с первым соединяет горка-тобоган, по которой дети спускаются в спортзал.

Фото предоставлено архитектурным бюро «Сторакет»
Фото предоставлено архитектурным бюро «Сторакет»
Фото предоставлено архитектурным бюро «Сторакет»
Фото предоставлено архитектурным бюро «Сторакет»


А с третьего этажа на второй ученики могут спускаться по винтовому тобогану, форма которого отразилась и на фасаде здания, что явилось одним из своеобразных акцентов проекта.

Фото предоставлено архитектурным бюро «Сторакет»
Фото предоставлено архитектурным бюро «Сторакет»


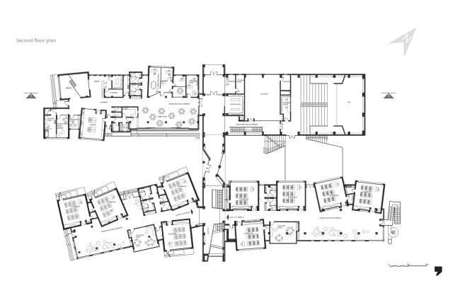
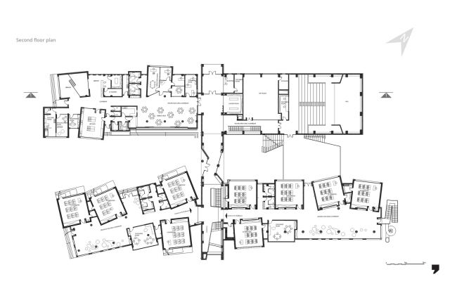
После завершения этого здания былo начато проектирование второго корпуса – Б, который был завершен годом позже – в 2012. Корпус Б примыкает к корпусу А, став его физическим и композиционным продолжением. Он был построен на фундаменте прежней незавершенной постройки, которая повлияла на его структуру. Эстетически он решен как часть корпуса А: первый этаж оштукатурен серым цветом а второй – белым, и там применены ленточные окна. Ломаные линии второго этажа визуально указывают на его глубину. Изначально корпус планировался как двухэтажный, но после был добавлен третий этаж, который придал ему массивность, поэтому, стремясь облегчить визуальную нагрузку, верхний объем сделали максимально прозрачным.

Фото предоставлено архитектурным бюро «Сторакет»
Фото предоставлено архитектурным бюро «Сторакет»


В комплекс входят лаборатории «Фаб-Лаб», которые выполнены из контейнеров.

Фото предоставлено архитектурным бюро «Сторакет»
Фото предоставлено архитектурным бюро «Сторакет»


В 2015 началось строительство корпуса С.

Фото предоставлено архитектурным бюро «Сторакет»
Фото предоставлено архитектурным бюро «Сторакет»


Проект образовательного центра «Айб» предполагает строительство целого комплекса. Так, пока в смежных корпусах А и Б разместились старшие и младшие классы, но в дальнейшем каждая из этих двух групп учеников получит свой корпус.

Изображение предоставлено архитектурным бюро «Сторакет»
Изображение предоставлено архитектурным бюро «Сторакет»



Центральная школа в Дилижане

Дилижан – небольшой город на севере Армении, к северу от озера Севан, расположившийся в живописном горном ландшафте. Город получил мировую известность с открытием там школы сети UWC College (проект Tim Flynn Architects). Перемены в постсоветское время в Дилижане начались благодаря тогдашнему премьер-министру Тиграну Саркисяну, который хотел сделать Дилижан финансовым центром. Поэтому туда первым переехал Центральный банк Армении, который открыл там свой филиал. Для привлечения своих сотрудников в провинцию, то есть создания там для них привлекательных условий для жизни, банк, помимо прочего, принял решение построить современную школу, аналогов которой которой не было даже в столице. Для реализации этой идеи, в том числе – определения формата будущей школы, банк пригласил образовательной фонд «Айб», у которого уже был опыт создания современного образовательного учреждения. Сначала планировалось возвести новую школу на склоне при въезде в центральную часть города, однако геологические исследования показали там ненадежность грунтов.

Фото предоставлено архитектурным бюро «Сторакет»
Фото предоставлено архитектурным бюро «Сторакет»


Бюро «Сторакет» успело выполнить эскизный проект для этого участка, который предполагал новый метод организации пространства, выразившийся в оригинальном формообразовании.

Изображение предоставлено архитектурным бюро «Сторакет»
Изображение предоставлено архитектурным бюро «Сторакет»
Изображение предоставлено архитектурным бюро «Сторакет»
Изображение предоставлено архитектурным бюро «Сторакет»


Прообразом для новой школы, по идее авторов, послужили традиционные дилижанские «консольные» дома с двускатной крышей, которые воспринимаются как автономные, хаотично расположенные на склонах фасады, выступающие из-под деревьев.

Фото предоставлено архитектурным бюро «Сторакет»
Фото предоставлено архитектурным бюро «Сторакет»


Эта идея заложена также и в реализованном проекте бюро «Сторакет».

Изображение предоставлено архитектурным бюро «Сторакет»
Изображение предоставлено архитектурным бюро «Сторакет»


Строительство школы началось осенью 2013, офицальное открытие состоялось 24 сентября 2015, однако школа уже работает с февраля этого года. Выбранная территория располагается в районе Шамахян, рядом с жилой застройкой, построенной силами Молдавской ССР после спитакского землетрясения 1988 года.

Фото предоставлено архитектурным бюро «Сторакет»
Фото предоставлено архитектурным бюро «Сторакет»



Этот жилой квартал должен был растянуться на запад, к месту расположения нынешней школы, но распад СССР воспрепятствовал реализации этих планов. Однако на этом месте остались недостроенные здания и котлованы. Архитекторы при проектировании учли контуры этих котлованов, которые повлияли на формирование структуры здания, а существовавшая на этом месте подпорная стена стала композиционной осью школы. Также проект включил в себя перепады рельефа на участке.

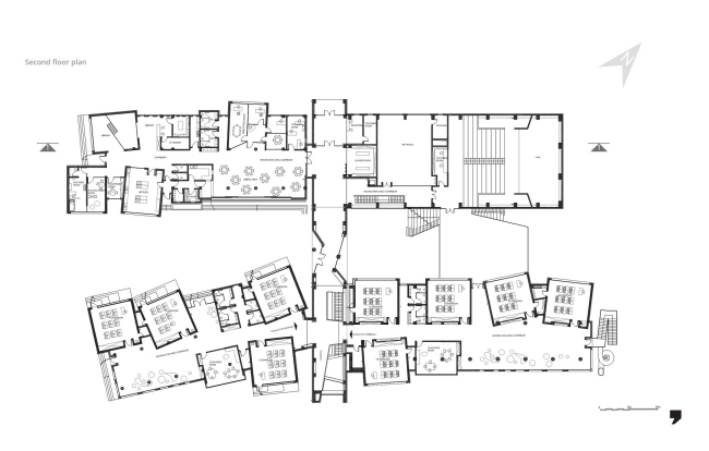
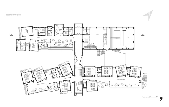
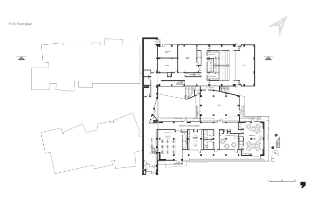
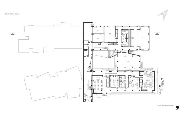
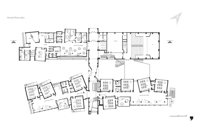
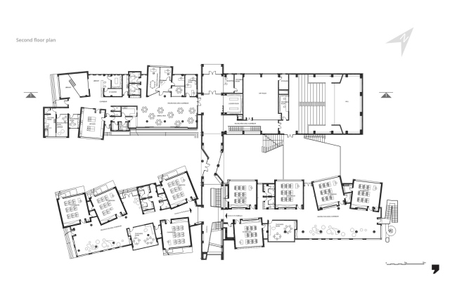
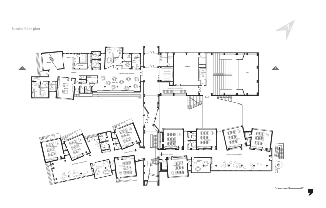
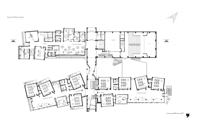
Здание состоит из двух асимметричных композиций, которые составлены из четырех основных корпусов (Б, Г, Д, Е), расположенных под углом 45° и разделенных корпусом А, который проходит по композиционной оси. Корпуса различаются по своим функциям.

Изображение предоставлено архитектурным бюро «Сторакет»
Изображение предоставлено архитектурным бюро «Сторакет»
Изображение предоставлено архитектурным бюро «Сторакет»
Изображение предоставлено архитектурным бюро «Сторакет»
Изображение предоставлено архитектурным бюро «Сторакет»
Изображение предоставлено архитектурным бюро «Сторакет»


Корпус А – исключительно коммуникационный блок, связывающий четыре корпуса и входные группы. На его первом этаже расположены входы и технические помещения, на верхнем – коридор. Корпус решен как нейтральный, покрытый белой штукатуркой объем. На его кровле сделаны круглые световые проемы, напоминающие о приемах советского модернизма. Вход для администрации – с северной стороны, а для учеников – с южной.

Фото предоставлено архитектурным бюро «Сторакет»
Фото предоставлено архитектурным бюро «Сторакет»


Двухэтажные корпуса Б и Е находятся по правую сторону от корпуса А. В них расположены, соответственно, средние классы и зал с кружками. Корпуса Г и Д – одноэтажные и находятся слева от корпуса А. Там размещены младшие классы (корпус Г) и административный блок (корпус Д). Такой подход обусловлен, в первую очередь, эвакуационными соображениями, чтобы младшие дети могли покинуть здание непосредственно из своей классной комнаты. Площадка между корпусами Г и Д получила форму трапеции, что обусловлено небольшим расстоянием между этими сооружениями.

Фото предоставлено архитектурным бюро «Сторакет»
Фото предоставлено архитектурным бюро «Сторакет»


Несмотря на разделение на корпуса, архитекторы стремились связать школьный комплекс в единое пространство. Дополнительные связи созданы, в частности, зданием «Фаб-Лаб» между корпусами Б и Е: его крыша служит террасой. Кроме того, из дворика между корпусами Г и Д через коридор можно попасть в актовый зал.

Фото предоставлено архитектурным бюро «Сторакет»
Фото предоставлено архитектурным бюро «Сторакет»


В структуре здания важную роль играют расположенные на втором уровне объемы классных комнат, трактованные как маленькие домики с двускатной крышей, покрытой профнастилом.

Фото предоставлено архитектурным бюро «Сторакет»
Фото предоставлено архитектурным бюро «Сторакет»


Их дробная композиция не имеет определенный системы, а получившийся образ напоминает шоу-рум VitraHaus бюро Herzog de Meuron в Вайле-на-Рейне. Но, как и в школе «Айб», в здании нет единой визуальной оси, поэтому оно с разных ракурсов выглядит по-разному и в целом воспринимается как совокупность разрозненных форм, где проступают и традиционалистские, и модернистские подходы. Таким образом, визуальная нагрузка равномерна, поскольку при «акцентной» архитектуре «домиков» белые объемы, выступающие как эстетический фон, также претендуют на активность с помощью своих ярких, асимметрично расположенных оконных проемов.

Фото предоставлено архитектурным бюро «Сторакет»
Фото предоставлено архитектурным бюро «Сторакет»



Автономное решение объемов и фасадов характерно для творческого метода бюро «Сторакет», который выразился в обоих школьных зданиях. Для них характерен некий постмодернистский подход без конкретного стилевого и композиционного акцента, где объемы не разделены на первостепенные и менее важные.

* * *

Обе школы отделены от городского контекста. Обе они были созданы как «точки прорыва» для развития города и страны в целом. Они также относятся к малочисленным, к сожалению, примерам удачной некоммерческой архитектуры в Армении, где архитектура как таковая играет первостепенную роль, в отличие от преобладающих коммерческих и жилых зданий, где архитектура вытесняется под давлением коммерческих интересов. Оба здания определили новый формат школьной архитектуры и стали самыми значимыми проектами для молодого бюро. По своему решению они являются некими островками в своем окружении, однако, если «Айб» не связан по своей архитектуре с городом и средой, то дилижанская школа прямо стремится цитировать местный контекст.

Не хотелось бы давать однозначную оценку тому, насколько реализованные проекты находятся на уровне мировых архитектурных тенденций и т.п. Однако сам факт появления архитектуры такого уровня в постсоветской Армении уже очень значим. Язык архитектуры в этих зданиях современен, хоть и не первичен в глобальном масштабе. Современная архитектура, в принципе, не играла в новейшей истории Армении главенствующую роль: традиционалистские направления и стили вытесняли модернизм. Единственным периодом, когда армянская архитектура шла в ногу с мировыми тенденциями, были 1920-е, эпоха конструктивизма.

Жилой дом на улице Вардананца. Архитектор Тиран Ерканян. 1936. Фото © Тигран Арутюнян
Жилой дом на улице Вардананца. Архитектор Тиран Ерканян. 1936. Фото © Тигран Арутюнян


Также можно отметить и ряд удачных модернистских зданий в 1960-е.

Летний зал кинотеатра «Москва» в Ереване. Архитекторы С. Кнтехцян, Т. Геворкян, 1968. Фото с сайта synthart.livejournal.com/236923.html
Летний зал кинотеатра «Москва» в Ереване. Архитекторы С. Кнтехцян, Т. Геворкян, 1968. Фото с сайта synthart.livejournal.com/236923.html


В остальном, она развивалась и развивается в русле локальных, консервативных тенденций.
 
мнение редакции может совпадать,
а может и не совпадать с позицией автора