Размещено на портале Архи.ру (www.archi.ru)

23.09.2015

Цветные изгибы

Нина Фролова
Объект:
Жилой дом Serpentin («Серпантин»)
Адрес:
Франция, Пантен.
Мастерская:
RVA
Авторский коллектив:
Оригинальный проект: Эмиль Айо (Émile Aillaud).
Реконструкция: RVA.

Бюро RVA реконструировало послевоенный многоквартирный дом «Серпантин» близ Парижа: помимо прочего, эта прежде километровая постройка стала немного короче.

Жилой дом Serpentin («Серпантин») © Luc Boegly
Жилой дом Serpentin («Серпантин») © Luc Boegly

Дом «Серпантин» расположен в городе Пантен близ французской столицы. Архитектор Эмиль Айо (Émile Aillaud) разработал его проект во 2-й половине 1950-х годов как часть порученного ему массива Ле-Куртильер на 1700 квартир и две школы. Айо, один из видных сторонников индустриального домостроения, придерживался «социал-романтических» идей и пытался внести в свои проекты максимально возможное разнообразие. Поэтому «Серпантин» длиной 1060 м (это одно из самых длинных зданий в Европе) затейливо изогнулся змеей вокруг парка площадью 4 га, а также получил красивую окраску фасадов.
 
Жилой дом Serpentin («Серпантин») © Luc Boegly
Жилой дом Serpentin («Серпантин») © Luc Boegly

Однако к концу XX века Ле-Куртильер обветшал, а размер и планировка его квартир больше не устраивала большинство французов. Как следствие, он, как и многие другие жилые массивы послевоенного времени, стал малопрестижным и малопривлекательным местом для жизни. Учитывая количество такого жилья во Франции, государство активно занимается обновлением таких районов. Ле-Куртильер не стал исключением, и в 2002 бюро RVA было поручено реконструировать находящийся там «Серпантин».
 
Жилой дом Serpentin («Серпантин») © Luc Boegly
Жилой дом Serpentin («Серпантин») © Luc Boegly

В отличие от некоторых других французских проектов модернизации панельного жилья, например, обновленной бюро Lacaton & Vassal парижской башни «Тур Буа Ле Претр», где жильцы остались при своих квартирах и даже не переезжали на время ремонта, в «Серпантине» была проведена полная перепланировка и перестройка (это, кстати, беспокоило защитников наследия, которые даже смогли притормозить реализацию проекта). В результате, длина дома сократилась с 1060 м до 970 м, из более 600 квартир осталось 513, зато добавился офис управляющей компании; ширина здания выросла с 8 м до 8,4 м.
 
Жилой дом Serpentin («Серпантин») © Luc Boegly
Жилой дом Serpentin («Серпантин») © Luc Boegly

При этом квартиры стали просторнее; при перепланировке были сохранены лишь фасадные стены и перекрытия. Появилась система механической вентиляции, новое электрическое оборудование, особо тщательно были обновлены кухни и санузлы. Стены, потолки и полы получили новое покрытие. Высота здания осталось неизменной: шесть этажей, из них – пять жилых. Теперь в доме квартиры – двадцати одного типа, все они выходят на парк, и почти все (за исключением «студий») – также и на улицу.
 
Жилой дом Serpentin («Серпантин») © Luc Boegly
Жилой дом Serpentin («Серпантин») © Luc Boegly

Особо важной частью проекта стало обновление фасада. Как упоминалось выше, Айо уделил его колориту большое внимание, но к моменту начала реконструкции покрывавшая его цементная штукатурка сильно обветшала, к тому же немалый вред изначальной раскраске нанесли многократные ремонтные работы. Поэтому было решено не реставрировать ее, а применить фасадные панели, которые к тому же повысили качество термоизоляции здания.
 
Жилой дом Serpentin («Серпантин») © Luc Boegly
Жилой дом Serpentin («Серпантин») © Luc Boegly

Оформление фасада архитекторы разработали совместно с известным графическим дизайнером Пьером ди Сьюлло (Pierre di Sciullo) – Архи.ру уже писал о нем в связи с проектом другого рода, мемориалом павшим в Первой мировой войне. В Пантене было решено покрыть уличный фасад одинаковым вертикальным градиентом (от белого цвета на 6-м этаже до розового на уровне второго), в то время как к парку-«двору» дом обращен длинной горизонтальной лентой перетекающих друг в друга насыщенных тонов, в основном – синих и красных, причем смена цвета отмечает расположение подъездов. Тона переходят друг в друга с помощью мотива «пиксельной мозаики».
 
Жилой дом Serpentin («Серпантин») © Luc Boegly
Жилой дом Serpentin («Серпантин») © Luc Boegly

Первой, после трех лет проектирования и экспериментов, была начата реконструкция фасада – в 2011, а в 2012 занялись собственно зданием и парком (за него отвечали ландшафтные архитекторы Agence Vincent Pruvost). Все работы были завершены в 2015.
Жилой дом Serpentin («Серпантин») © Luc Boegly
Жилой дом Serpentin («Серпантин») © Luc Boegly
Жилой дом Serpentin («Серпантин») © Luc Boegly
Жилой дом Serpentin («Серпантин») © Luc Boegly
Жилой дом Serpentin («Серпантин») © Luc Boegly
Жилой дом Serpentin («Серпантин») © Luc Boegly
Жилой дом Serpentin («Серпантин») © Luc Boegly
Жилой дом Serpentin («Серпантин») © Luc Boegly
Жилой дом Serpentin («Серпантин») © Luc Boegly
Жилой дом Serpentin («Серпантин») © Luc Boegly
Жилой дом Serpentin («Серпантин») © Luc Boegly
Жилой дом Serpentin («Серпантин») © Luc Boegly
Жилой дом Serpentin («Серпантин») © RVA & LUCAS
Жилой дом Serpentin («Серпантин») © RVA & LUCAS
Жилой дом Serpentin («Серпантин»). Фотография предоставлена компанией КНАУФ
Жилой дом Serpentin («Серпантин»). Фотография предоставлена компанией КНАУФ
Жилой дом Serpentin («Серпантин»). Фотография предоставлена компанией КНАУФ
Жилой дом Serpentin («Серпантин»). Фотография предоставлена компанией КНАУФ
Жилой дом Serpentin («Серпантин»). Фотография предоставлена компанией КНАУФ
Жилой дом Serpentin («Серпантин»). Фотография предоставлена компанией КНАУФ
Жилой дом Serpentin («Серпантин»). Фотография предоставлена компанией КНАУФ
Жилой дом Serpentin («Серпантин»). Фотография предоставлена компанией КНАУФ
Жилой дом Serpentin («Серпантин»). Фотография предоставлена компанией КНАУФ
Жилой дом Serpentin («Серпантин»). Фотография предоставлена компанией КНАУФ
Жилой дом Serpentin («Серпантин»). Историческое фото. Изображение предоставлено RVA
Жилой дом Serpentin («Серпантин»). Историческое фото. Изображение предоставлено RVA
Жилой дом Serpentin («Серпантин»). Оригинальный макет. Изображение предоставлено RVA
Жилой дом Serpentin («Серпантин»). Оригинальный макет. Изображение предоставлено RVA
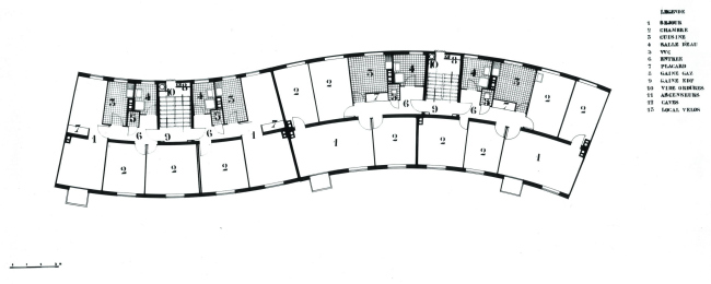
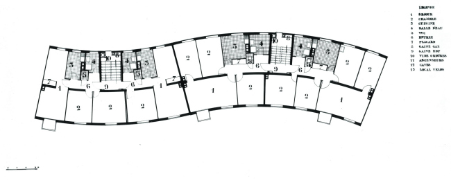
Жилой дом Serpentin («Серпантин»). Оригинальный план. Изображение предоставлено RVA
Жилой дом Serpentin («Серпантин»). Оригинальный план. Изображение предоставлено RVA
Жилой дом Serpentin («Серпантин») © RVA & PRUVOST & AUC
Жилой дом Serpentin («Серпантин») © RVA & PRUVOST & AUC
Жилой дом Serpentin («Серпантин») © RVA
Жилой дом Serpentin («Серпантин») © RVA
Жилой дом Serpentin («Серпантин») © RVA & LACOTE
Жилой дом Serpentin («Серпантин») © RVA & LACOTE
Жилой дом Serpentin («Серпантин») © RVA & LACOTE
Жилой дом Serpentin («Серпантин») © RVA & LACOTE
Жилой дом Serpentin («Серпантин») © RVA & LACOTE
Жилой дом Serpentin («Серпантин») © RVA & LACOTE