Размещено на портале Архи.ру (www.archi.ru)

11.11.2015

Умный «Клевер» в стиле Мондриана

Ирина Бембель
Объект:
Жилой дом «Клевер»
Адрес:
Россия, Санкт-Петербург. ул. Краснопутиловская, д. 113, корп. 1, литера А
Мастерская:
Архитектурное бюро «А.Лен»
Авторский коллектив:
Руководитель проекта – Орешкин С.И.
Главный инженер – Вайнер А.Г.
Главный инженер проекта – Исаев А.В.
Главный архитектор проекта – Андреева Р.В.
Ведущий архитектор – Иванов В.В.
Архитекторы: Слуднякова Е.Г., Желнова М.В.
Главный конструктор – Гребнев В.В.
Руководитель инженерной группы – Кочетов Д.С.

В Московском районе, недалеко от площади Конституции возник новый высотный дом по проекту мастерской «А.Лен», под названием «Клевер».

Жилой дом «Клевер» © Архитектурное бюро «А.Лен»
Жилой дом «Клевер» © Архитектурное бюро «А.Лен»
По-английски “clever” значит «умный», а в разговорном обиходе получается наш русский народный «клевер»: кто как хочет, тот так и понимает.

Жанр многоквартирного дома по определению задаёт довольно узкие рамки для творчества. Модульные ячейки почти неизбежно складываются в высокую призму, облик которой в значительной степени определяется конфигурацией участка и множеством обязательных нормативов.

В итоге на долю архитектора остаётся не так много: чуть раскреповать угол, «поиграть» с цоколем, наконец, попытаться максимально замаскировать бесконечное однообразие модульного фасада. Здесь на помощь приходят графика и цвет. В данном случае авторы, согласно их собственной аннотации, использовали мотивы супрематистов Малевича и Суетина, а также сооснователя неопластицизма Пита Мондриана.
Жилой дом «Клевер» © Архитектурное бюро «А.Лен»
Жилой дом «Клевер» © Архитектурное бюро «А.Лен»
Жилой дом «Клевер» © Архитектурное бюро «А.Лен»
Жилой дом «Клевер» © Архитектурное бюро «А.Лен»
Жилой дом «Клевер» © Архитектурное бюро «А.Лен»
Жилой дом «Клевер» © Архитектурное бюро «А.Лен»
Жилой дом «Клевер» © Архитектурное бюро «А.Лен»
Жилой дом «Клевер» © Архитектурное бюро «А.Лен»

Разноцветная клеточка Мондриана, уже широко растиражированная в индустрии моды и парфюмерии, казалось бы, просто создана для многоэтажных фасадов. Тем удивительнее, что архитекторы обратили на неё внимание далеко не сразу. В Петербурге прецедент случился в 2009 году: «под Мондриана» облицевали здание советского детсада на Мойке, 102. И вот, сеткой разноцветных прямоугольников стали покрываться высотные новостройки проектного бюро «А.Лен».

Его руководитель Сергей Орешкин не скрывает, а всячески подчёркивает свою творческую ориентацию на авангард и родственные ему западные течения. Притом отечественному авангарду здесь принадлежат ведущие позиции. Если прямоугольная сетка Мондриана идеально подходит к фасадным плоскостям, то для организации пространства неисчерпаемым источником идей является супрематизм и конструктивизм, причём не столько конкретные приёмы, сколько сами принципы: динамика, разомкнутость, геометрическая резкость жеста и последовательное отрицание принципов классической композиции, характерные для проектов «А.Лен».
Жилой дом «Клевер» © Архитектурное бюро «А.Лен»
Жилой дом «Клевер» © Архитектурное бюро «А.Лен»
Жилой дом «Клевер» © Архитектурное бюро «А.Лен»
Жилой дом «Клевер» © Архитектурное бюро «А.Лен»

В случае с «Клевером» развернуть все эти качества, как было сказано выше, не позволяли узкие рамки жанра, и даже заявленная жёсткая сетка Мондриана в натуре выглядит смягчённой и «одомашненной». Её колорит высветлен, приглушён и местами действительно напоминает цвет клевера, что в сочетании с воздушной дымкой придаёт 25-этажному гиганту ненавязчивый и довольно приветливый облик.
Жилой дом «Клевер» © Архитектурное бюро «А.Лен»
Жилой дом «Клевер» © Архитектурное бюро «А.Лен»
Жилой дом «Клевер» © Архитектурное бюро «А.Лен»
Жилой дом «Клевер» © Архитектурное бюро «А.Лен»

Помимо «летней» палитры, общей визуальной лёгкости постройки способствует обильно остеклённый партерный этаж с узкими проёмами-«пилястрами» между высокими витринными окнами. Здесь расположена просторная входная зона с консьержем, а также помещения для сервиса и торговли.

Если фасад с главным входом и два торца решены как более или менее свободные комбинации прямоугольников, то четвёртый фасад имеет отчётливую ось симметрии. Она выделена вертикальным рядом балконов с необычными декоративными перемычками в виде длинных и узких полос, соединяющих разные уровни под произвольными углами. Эти «шатающиеся» полоски издали кажутся матово-стеклянными, но при ближайшем рассмотрении оказываются заполненными сеткой и играют, судя по всему, чисто декоративную роль, оттеняя общую жёсткую логику прямого угла. Подобные «летящие палочки», свободно пересекающиеся в беспредметном пространстве, любили Малевич и Суетин, но здесь для их струящегося потока выделена регулярная «полоса движения».
Жилой дом «Клевер» © Архитектурное бюро «А.Лен»
Жилой дом «Клевер» © Архитектурное бюро «А.Лен»
Жилой дом «Клевер» © Архитектурное бюро «А.Лен»
Жилой дом «Клевер» © Архитектурное бюро «А.Лен»
Жилой дом «Клевер» © Архитектурное бюро «А.Лен»
Жилой дом «Клевер» © Архитектурное бюро «А.Лен»

Вообще, при всей тесноте рамок жанра, авторам, как представляется, удалось найти некий интересный «приём», сущность которого – игра в непоследовательность, где любой логический ряд быстро наталкивается на своё опровержение. Мондриан – но не совсем; Малевич и Суетин – но строго по оси, выделенный центр – но нерегулярных очертаний и неопределённого цвета; отдалённый намёк на пилястры и на естественный камень в цоколе – и пёстрый современный «конструктор» основной части фасадов.

Всё это удивительным образом похоже на двойное прочтение «Клевера» и на его загадочную связь с Мондрианом, Малевичем и Суетиным. А вкупе придаёт зданию лёгкий релятивистский отпечаток постмодернизма.

Новая высотка довольно тактично вошла в сложившуюся ткань Московского района, найдя поддержку в голубом силуэте БЦ «Лидер Тауэр» и других современных зданиях, окружающих площадь Конституции. Дом хорошо читается и с Краснопутиловской улицы как ещё одна башня среди обрамляющих её советских «кораблей».
Жилой дом «Клевер» © Архитектурное бюро «А.Лен»
Жилой дом «Клевер» © Архитектурное бюро «А.Лен»
Жилой дом «Клевер» © Архитектурное бюро «А.Лен»
Жилой дом «Клевер» © Архитектурное бюро «А.Лен»
Жилой дом «Клевер». Ситуационный план © Архитектурное бюро «А.Лен»
Жилой дом «Клевер». Ситуационный план © Архитектурное бюро «А.Лен»

Обращает на себя внимание уровень благоустройства прилегающей зоны. За счёт подземной парковки дом имеет полностью пешеходную, хорошо озеленённую территорию с детской площадкой. Зеркально остеклённый первый этаж с представительными ритмичными «пилястрами» зрительно расширяет пространство, облегчает вырастающий над ним многоэтажный массив и добавляет новому участку среды приятный оттенок глянца.
Жилой дом «Клевер» © Архитектурное бюро «А.Лен»
Жилой дом «Клевер» © Архитектурное бюро «А.Лен»
Жилой дом «Клевер» © Архитектурное бюро «А.Лен»
Жилой дом «Клевер» © Архитектурное бюро «А.Лен»
Жилой дом «Клевер» © Архитектурное бюро «А.Лен»
Жилой дом «Клевер» © Архитектурное бюро «А.Лен»
Жилой дом «Клевер» © Архитектурное бюро «А.Лен»
Жилой дом «Клевер» © Архитектурное бюро «А.Лен»
Жилой дом «Клевер» © Архитектурное бюро «А.Лен»
Жилой дом «Клевер» © Архитектурное бюро «А.Лен»
Жилой дом «Клевер» © Архитектурное бюро «А.Лен»
Жилой дом «Клевер» © Архитектурное бюро «А.Лен»
Жилой дом «Клевер» © Архитектурное бюро «А.Лен»
Жилой дом «Клевер» © Архитектурное бюро «А.Лен»
Жилой дом «Клевер» © Архитектурное бюро «А.Лен»
Жилой дом «Клевер» © Архитектурное бюро «А.Лен»
Жилой дом «Клевер». Фасад © Архитектурное бюро «А.Лен»
Жилой дом «Клевер». Фасад © Архитектурное бюро «А.Лен»
Жилой дом «Клевер». Разрез © Архитектурное бюро «А.Лен»
Жилой дом «Клевер». Разрез © Архитектурное бюро «А.Лен»
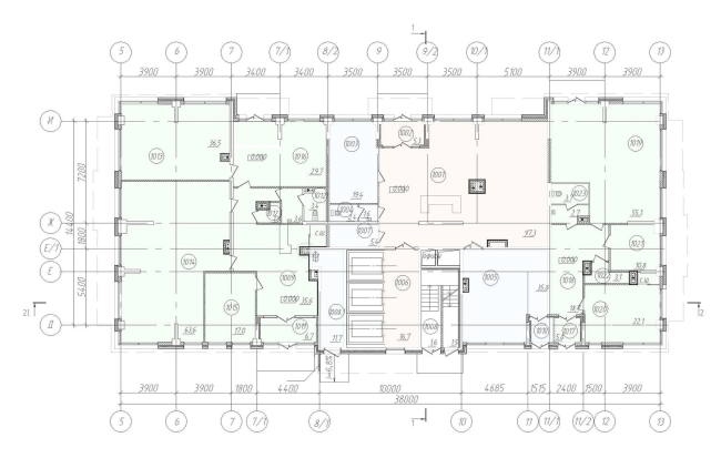
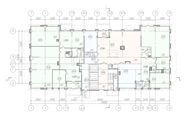
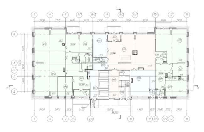
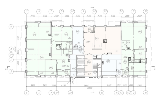
Жилой дом «Клевер». План 1 этажа © Архитектурное бюро «А.Лен»
Жилой дом «Клевер». План 1 этажа © Архитектурное бюро «А.Лен»
Жилой дом «Клевер». Генеральный план © Архитектурное бюро «А.Лен»
Жилой дом «Клевер». Генеральный план © Архитектурное бюро «А.Лен»