Размещено на портале Архи.ру (www.archi.ru)

15.09.2015

Стартапы под соломенной крышей

Екатерина Ровнова
Объект:
Центр предпринимательства Университета Восточной Англии
Адрес:
Великобритания, None, Норидж.
Мастерская:
Architype

Традиционная английская кровельная технология использована в самом энергоэффективном и экологичном здании Великобритании на сегодняшний день – Центре предпринимательства в Норидже по проекту Architype.

Центр предпринимательства Университета Восточной Англии © Dennis Gilbert/VIEW
Центр предпринимательства Университета Восточной Англии © Dennis Gilbert/VIEW

Новый Центр предпринимательства Университета Восточной Англии – первое общественное здание подобного масштаба в Великобритании, получившее одновременно «выдающуюся» степень экологичности (outstanding) по шкале BREEAM и статус Passivhaus по энергоэффективности. Центр стал входными вратами университета, объединив образовательную и коммерческую функции. Задуманный в качестве лаборатории по взращиванию специалистов в области строительных технологий, связанных с низкой эмиссией углерода, и стимулированию развития малого и среднего предпринимательства в этой сфере, он должен отражать декламируемые принципы: этим отражением и стали его соломенные фасады и крыша.
 
Центр предпринимательства Университета Восточной Англии © Dennis Gilbert/VIEW
Центр предпринимательства Университета Восточной Англии © Dennis Gilbert/VIEW

Такая попытка объединить форму и содержание роднит английский Центр предпринимательства с канадским Центром дерева Майкла Грина (Архи.ру подробно писал о нем): здание демонстрирует свое предназначение, рекламируя процесс для общества «снаружи» и вдохновляя результатом профессионалов «внутри». Центр, представляющий собой пример использования низкоэмиссионных технологий, был реализован по заказу Adapt Low Carbon Group и Университета Восточной Англии командой архитекторов Architype, инженеров и конструкторов BDP и ландшафтных архитекторов Churchman Landscape Architects.
 
Центр предпринимательства Университета Восточной Англии © Dennis Gilbert/VIEW
Центр предпринимательства Университета Восточной Англии © Dennis Gilbert/VIEW

Эффектный соломенный фасад визуализирует идею устойчивого проектирования: интеграцию в окружающую среду, локальную идентичность и историческую преемственность посредством использования традиционных технологий, труда местных мастеров и собственно соломы – легко собираемой, обрабатываемой и быстро возобновляемой культуры с отрицательной эмиссией углерода из источников неподалеку от строительного участка. Кроме того, в процессе строительства присутствовали элементы безотходного производства: оставшиеся после завершения работ обрезки фасадной соломы отправлялись на переработку в муку и пшеничное пиво.
 
Центр предпринимательства Университета Восточной Англии © Dennis Gilbert/VIEW
Центр предпринимательства Университета Восточной Англии © Dennis Gilbert/VIEW

Укладку камышовой кровли завершили за четыре недели, используя традиционные инструменты и принципы строительства, однако соломенный фасад потребовал изобретения новой технологии. Совместными усилиями специалисты из Architype, Morgan Sindall и мастера-укладчики разработали систему скользящих фасадных кассет, заполненных соломенными панелями. Кассеты 1,2 м х 3 м из еловой фанеры собирались заранее, зимой, чтобы не занимать относительно короткий в Англии сухой и теплый сезон, подходящий для работы с соломой. Заполнение кассет состоит из смеси специально подобранных сортов пшеничной соломы с более короткими, чем необходимо для кровли, стеблями, чтобы получить рваную, щетинистую фактуру. Свежая солома создала золотистый колорит здания, но с течением времени, под воздействием ветра и осадков она покроется дымчатой патиной, которая подчеркнет форму здания.
Центр предпринимательства Университета Восточной Англии © Dennis Gilbert/VIEW
Центр предпринимательства Университета Восточной Англии © Dennis Gilbert/VIEW

Также одной из задач проекта было максимальное увеличение доли местных сортов дерева в несущей конструкции, что непросто, так как сегодня бóльшая часть конструкционной европейской древесины производится в Австрии. В итоге, в фасадном каркасе 70% стоек – древесина сосны черной из леса Тетфорд в 48 км от стройплощадки, 30% – ели ситхинской, произраставшей хоть и в Ирландии, но все же на территории Британских островов; заполнение – ориентированно-стружечная плита английского производства. Из лесов близлежащих графств «произрастают» лиственничные клееные колонны, поддерживающий эффектный навес над входом с востока. Тем не менее, основная несущая конструкция – клееная рама и лифтовые шахты из CLT-панелей – австрийская продукция. Огромные усилия по поиску локальных поставщиков, описываемые авторами проекта, можно трактовать не в качестве протекционизма (хотя, по всей видимости, и он имеет место быть), а – оставаясь в рамках экологического дискурса – как попытку уменьшить итоговый объем выбросов СО2, сократив транспортные издержки.
 
Центр предпринимательства Университета Восточной Англии © Dennis Gilbert/VIEW
Центр предпринимательства Университета Восточной Англии © Dennis Gilbert/VIEW

Многие старые предметы, в том числе служившие университету на протяжении долгого времени, обрели вторую жизнь во внутренней и внешней отделке здания. Например, навес над входной зоной облицован одноцветными панелями из древесины африканского ироко: это экзотическое дерево с 1960-х служило столешницами в лабораториях химического факультета. В главное фойе первого этажа из принадлежащего этому же вузу Центра изобразительных искусств Сейнсбери по проекту Нормана Фостера была перенесена стойка администратора, также созданная Фостером: такое вторичное использование показывает взаимосвязь нового строения с историей всего образовательного комплекса.
 
Центр предпринимательства Университета Восточной Англии © Dennis Gilbert/VIEW
Центр предпринимательства Университета Восточной Англии © Dennis Gilbert/VIEW

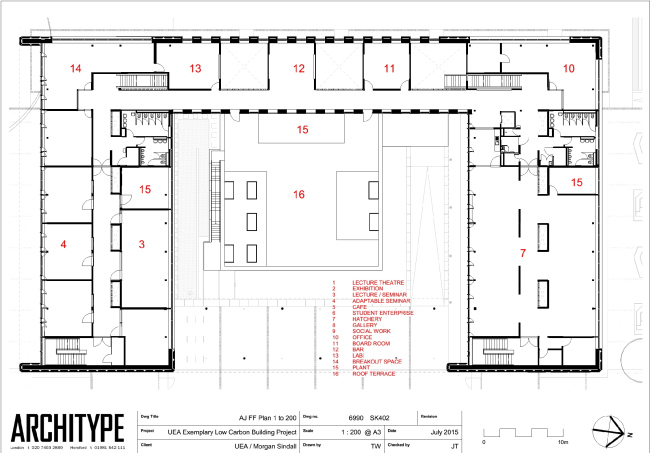
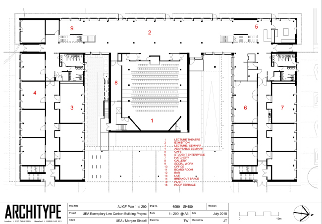
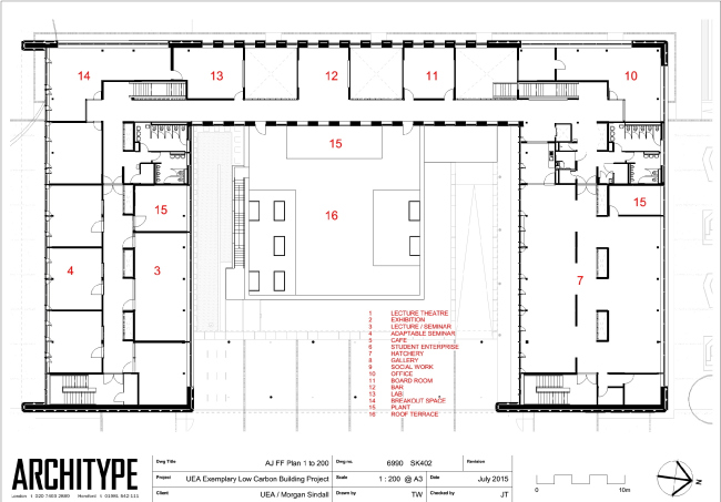
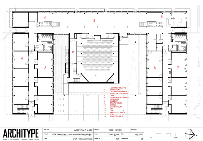
Здание общей площадью 3400 м2 вмещает в себя лекционный зал на 300 мест, расположенный в центре внутреннего двора, а по периметру – трансформируемые офисные и учебные помещения и выставочные пространства. Комнаты на втором этаже освещаются через зенитные фонари над широкими коридорами – пространством, предназначенным не столько для транзита, сколько для встреч, взаимодействия, совместной работы, переговоров.
Центр предпринимательства Университета Восточной Англии © Dennis Gilbert/VIEW
Центр предпринимательства Университета Восточной Англии © Dennis Gilbert/VIEW

В интерьере в общих зонах использован реечный потолок из хвойной древесины, а в помещениях, требующих особого звукового режима – офисах, учебных аудиториях, лекционном зале – акустические панели из древесного волокна; для отделки стен выбрали разнообразные натуральные материалы: деревянную обшивку, панели из камыша, текстильные обои из конопляного и крапивного волокна, глиняную и известковую штукатурку. В местах наибольшей нагрузки в качестве напольного покрытия выступают переработанные автомобильные шины, покрытые краской на натуральной основе. Кровля теплоизолирована целлюлозным утеплителем на основе переработанной газетной бумаги, а акустический и отделочный слой выполнен из наносимого напылением целлюлозного продукта с 85% содержанием переработанной макулатуры.
 
Центр предпринимательства Университета Восточной Англии © Dennis Gilbert/VIEW
Центр предпринимательства Университета Восточной Англии © Dennis Gilbert/VIEW

На крыше расположились коллекторы дождевой воды для технического водоснабжения, а также 480 м2 солнечных панелей с предполагаемой выработкой 43,58 МВт⋅ч электроэнергии за первый год: при прогнозируемой потребности Центра в 123 кВт⋅ч/м2, эти батареи будут вырабатывать 10% необходимой энергии (общая площадь здания составила 3 400 м2). Предполагаемый объем выброса углерода на протяжении 100-летнего жизненного цикла Центра предпринимательства составит 443 кг/м2 (без учета операционного энергопотребления): это около четверти эмиссии CO2 строением такого же объема и назначения в традиционной железобетонной конструкции.
 
Центр предпринимательства Университета Восточной Англии © Dennis Gilbert/VIEW
Центр предпринимательства Университета Восточной Англии © Dennis Gilbert/VIEW

Стоимость строительства самого «зеленого» бизнес-инкубатора Великобритании, финансированного инженерной компанией BRE, несколькими государственными институциями (UEA, Norwich Research park, BBSRC) и Европейским фондом регионального развития, составила £11,6 млн.
Центр предпринимательства Университета Восточной Англии © Dennis Gilbert/VIEW
Центр предпринимательства Университета Восточной Англии © Dennis Gilbert/VIEW
Центр предпринимательства Университета Восточной Англии © Dennis Gilbert/VIEW
Центр предпринимательства Университета Восточной Англии © Dennis Gilbert/VIEW
Центр предпринимательства Университета Восточной Англии © Dennis Gilbert/VIEW
Центр предпринимательства Университета Восточной Англии © Dennis Gilbert/VIEW
Центр предпринимательства Университета Восточной Англии © Dennis Gilbert/VIEW
Центр предпринимательства Университета Восточной Англии © Dennis Gilbert/VIEW
Центр предпринимательства Университета Восточной Англии © Dennis Gilbert/VIEW
Центр предпринимательства Университета Восточной Англии © Dennis Gilbert/VIEW
Центр предпринимательства Университета Восточной Англии © Dennis Gilbert/VIEW
Центр предпринимательства Университета Восточной Англии © Dennis Gilbert/VIEW
Центр предпринимательства Университета Восточной Англии © Dennis Gilbert/VIEW
Центр предпринимательства Университета Восточной Англии © Dennis Gilbert/VIEW
Центр предпринимательства Университета Восточной Англии © Dennis Gilbert/VIEW
Центр предпринимательства Университета Восточной Англии © Dennis Gilbert/VIEW
Центр предпринимательства Университета Восточной Англии © Dennis Gilbert/VIEW
Центр предпринимательства Университета Восточной Англии © Dennis Gilbert/VIEW
Центр предпринимательства Университета Восточной Англии © Dennis Gilbert/VIEW
Центр предпринимательства Университета Восточной Англии © Dennis Gilbert/VIEW
Центр предпринимательства Университета Восточной Англии © Dennis Gilbert/VIEW
Центр предпринимательства Университета Восточной Англии © Dennis Gilbert/VIEW
Центр предпринимательства Университета Восточной Англии © Dennis Gilbert/VIEW
Центр предпринимательства Университета Восточной Англии © Dennis Gilbert/VIEW
Центр предпринимательства Университета Восточной Англии © Dennis Gilbert/VIEW
Центр предпринимательства Университета Восточной Англии © Dennis Gilbert/VIEW
Центр предпринимательства Университета Восточной Англии © Dennis Gilbert/VIEW
Центр предпринимательства Университета Восточной Англии © Dennis Gilbert/VIEW
Центр предпринимательства Университета Восточной Англии © Dennis Gilbert/VIEW
Центр предпринимательства Университета Восточной Англии © Dennis Gilbert/VIEW
Центр предпринимательства Университета Восточной Англии © Dennis Gilbert/VIEW
Центр предпринимательства Университета Восточной Англии © Dennis Gilbert/VIEW
Центр предпринимательства Университета Восточной Англии © Dennis Gilbert/VIEW
Центр предпринимательства Университета Восточной Англии © Dennis Gilbert/VIEW
Центр предпринимательства Университета Восточной Англии © Dennis Gilbert/VIEW
Центр предпринимательства Университета Восточной Англии © Dennis Gilbert/VIEW
Центр предпринимательства Университета Восточной Англии © Dennis Gilbert/VIEW
Центр предпринимательства Университета Восточной Англии © Dennis Gilbert/VIEW
Центр предпринимательства Университета Восточной Англии © Dennis Gilbert/VIEW
Центр предпринимательства Университета Восточной Англии © Dennis Gilbert/VIEW
Центр предпринимательства Университета Восточной Англии © Dennis Gilbert/VIEW
Центр предпринимательства Университета Восточной Англии © Dennis Gilbert/VIEW
Центр предпринимательства Университета Восточной Англии © Architype
Центр предпринимательства Университета Восточной Англии © Architype
Центр предпринимательства Университета Восточной Англии © Architype
Центр предпринимательства Университета Восточной Англии © Architype
Центр предпринимательства Университета Восточной Англии © Architype
Центр предпринимательства Университета Восточной Англии © Architype
Центр предпринимательства Университета Восточной Англии © Architype
Центр предпринимательства Университета Восточной Англии © Architype
Центр предпринимательства Университета Восточной Англии © Architype
Центр предпринимательства Университета Восточной Англии © Architype
Центр предпринимательства Университета Восточной Англии © Architype
Центр предпринимательства Университета Восточной Англии © Architype
Центр предпринимательства Университета Восточной Англии © Architype
Центр предпринимательства Университета Восточной Англии © Architype