Размещено на портале Архи.ру (www.archi.ru)

09.09.2015

Компактный набор функций

Нина Фролова
Объект:
Общественный центр района Сальбуруа
Адрес:
Испания, None, Витория-Гастейс.
Мастерская:
IDOM

Бюро ACXT построило районный общественный центр в столице Страны Басков.

Общественный центр района Сальбуруа © Aitor Ortiz
Общественный центр района Сальбуруа © Aitor Ortiz

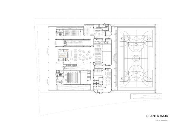
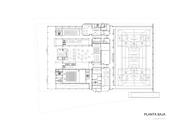
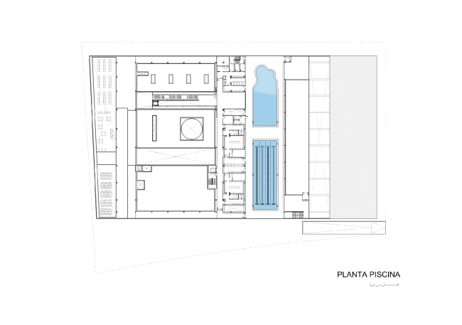
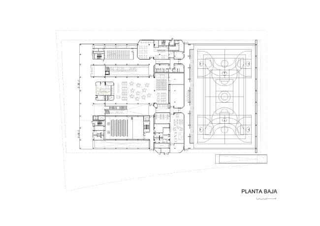
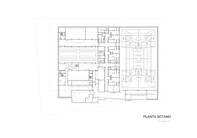
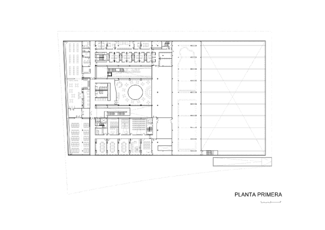
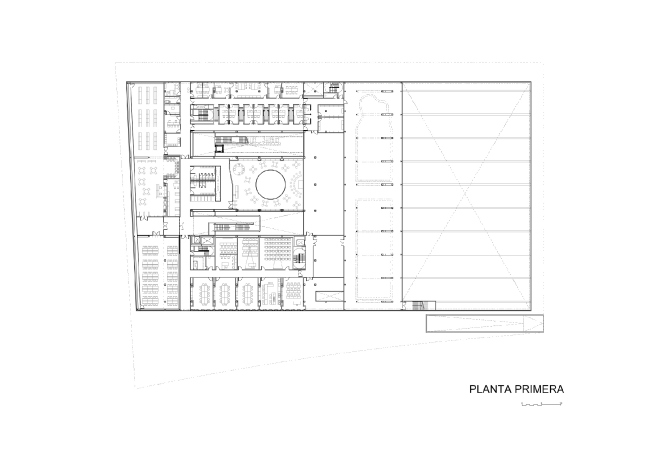
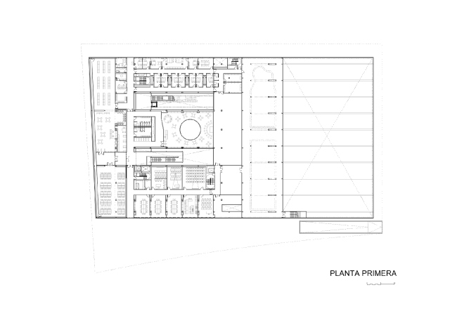
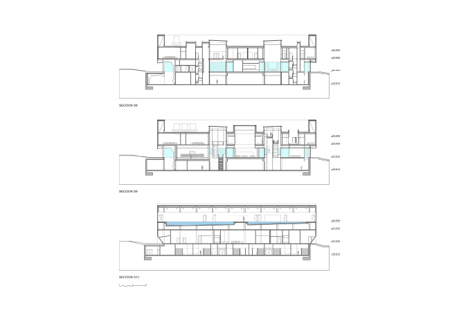
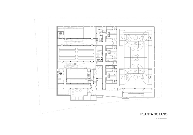
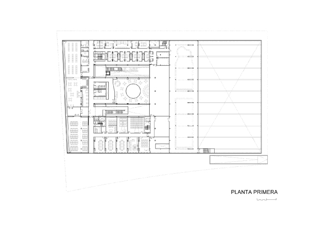
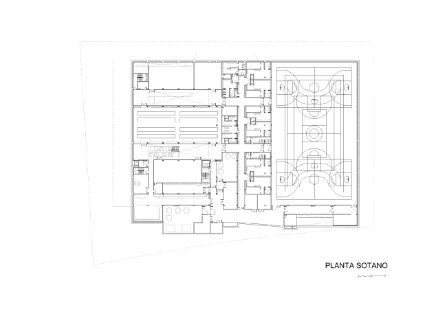
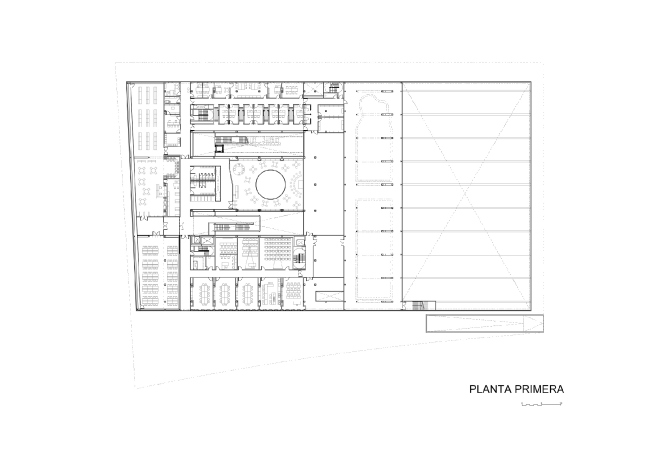
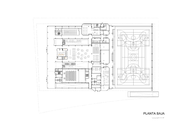
Белое здание появилось в районе Сальбуруа в городе Витория-Гастейс. В объеме размером 110 м на 60 м и общей площадью более 12 тыс. м2 собраны административные, спортивные и культурные учреждения.
 
Общественный центр района Сальбуруа © Aitor Ortiz
Общественный центр района Сальбуруа © Aitor Ortiz

На первом уровне, сделанном проницаемым – с остеклением, поддерживающим визуальную связь с улицей – расположены самые «общественные» зоны центра: кафе, салон, зрительный и конференц- залы.
 
Общественный центр района Сальбуруа © Aitor Ortiz
Общественный центр района Сальбуруа © Aitor Ortiz

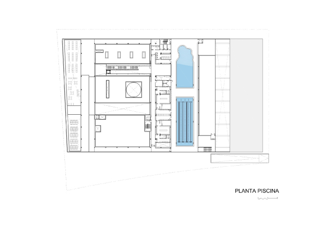
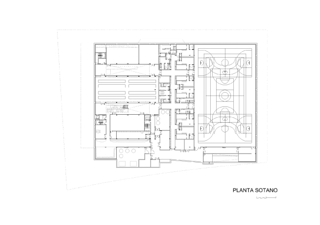
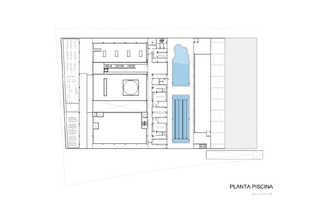
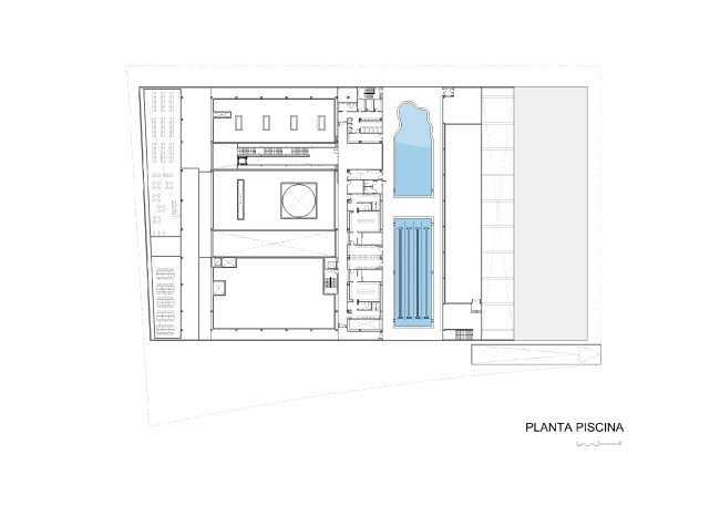
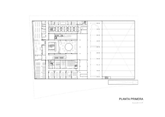
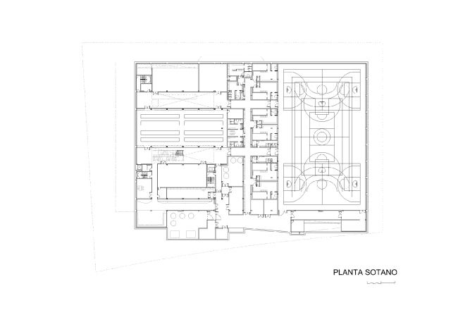
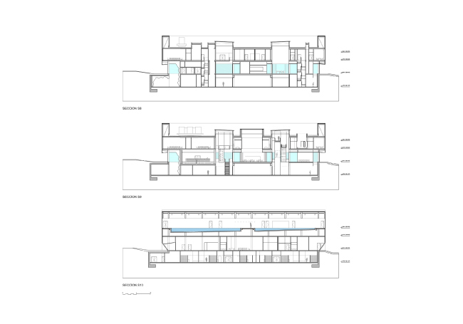
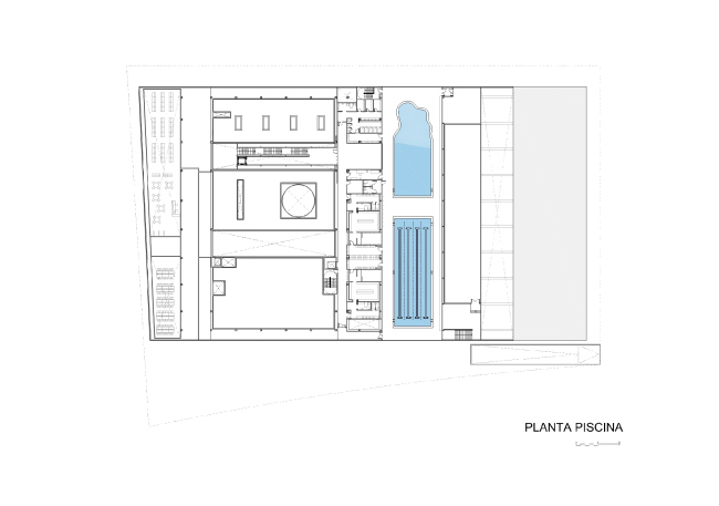
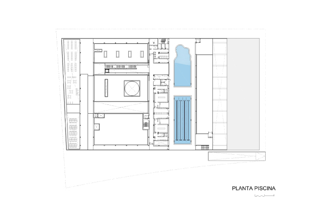
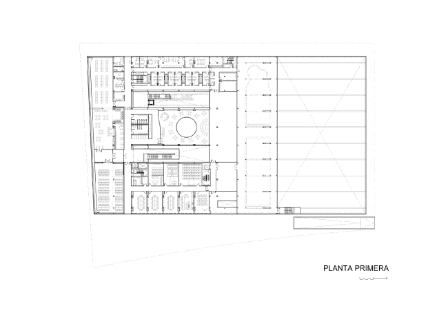
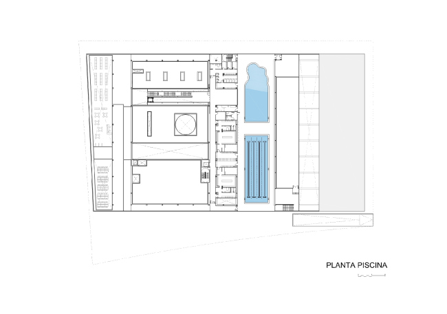
В цоколе размещены спортивные помещения – кроме бассейна, который вместе с собственной раздевалкой находится на втором, верхнем этаже. Там же можно найти административную зону, библиотеку, «инфотеку», учебные помещения и мастерские. В отличие от открытого первого яруса, второй сделан менее проницаемым и лишенным – в интересах выразительности – человеческого масштаба. Так, по крайней мере, поясняют сами архитекторы.
 
Общественный центр района Сальбуруа © Aitor Ortiz
Общественный центр района Сальбуруа © Aitor Ortiz

Естественное освещение в интерьере при компактности плана обеспечивают многочисленные «патио», играющие роль световых колодцев.
Общественный центр района Сальбуруа © Aitor Ortiz
Общественный центр района Сальбуруа © Aitor Ortiz
Общественный центр района Сальбуруа © Aitor Ortiz
Общественный центр района Сальбуруа © Aitor Ortiz
Общественный центр района Сальбуруа © Aitor Ortiz
Общественный центр района Сальбуруа © Aitor Ortiz
Общественный центр района Сальбуруа © Aitor Ortiz
Общественный центр района Сальбуруа © Aitor Ortiz
Общественный центр района Сальбуруа © Aitor Ortiz
Общественный центр района Сальбуруа © Aitor Ortiz
Общественный центр района Сальбуруа © Aitor Ortiz
Общественный центр района Сальбуруа © Aitor Ortiz
Общественный центр района Сальбуруа © Aitor Ortiz
Общественный центр района Сальбуруа © Aitor Ortiz
Общественный центр района Сальбуруа © Aitor Ortiz
Общественный центр района Сальбуруа © Aitor Ortiz
Общественный центр района Сальбуруа © Aitor Ortiz
Общественный центр района Сальбуруа © Aitor Ortiz
Общественный центр района Сальбуруа © Aitor Ortiz
Общественный центр района Сальбуруа © Aitor Ortiz
Общественный центр района Сальбуруа © Aitor Ortiz
Общественный центр района Сальбуруа © Aitor Ortiz
Общественный центр района Сальбуруа © Aitor Ortiz
Общественный центр района Сальбуруа © Aitor Ortiz
Общественный центр района Сальбуруа © Aitor Ortiz
Общественный центр района Сальбуруа © Aitor Ortiz
Общественный центр района Сальбуруа © Aitor Ortiz
Общественный центр района Сальбуруа © Aitor Ortiz
Общественный центр района Сальбуруа © Aitor Ortiz
Общественный центр района Сальбуруа © Aitor Ortiz
Общественный центр района Сальбуруа © Aitor Ortiz
Общественный центр района Сальбуруа © Aitor Ortiz
Общественный центр района Сальбуруа © Aitor Ortiz
Общественный центр района Сальбуруа © Aitor Ortiz
Общественный центр района Сальбуруа © Aitor Ortiz
Общественный центр района Сальбуруа © Aitor Ortiz
Общественный центр района Сальбуруа © Aitor Ortiz
Общественный центр района Сальбуруа © Aitor Ortiz
Общественный центр района Сальбуруа © Aitor Ortiz
Общественный центр района Сальбуруа © Aitor Ortiz
Общественный центр района Сальбуруа © Aitor Ortiz
Общественный центр района Сальбуруа © Aitor Ortiz
Общественный центр района Сальбуруа © Aitor Ortiz
Общественный центр района Сальбуруа © Aitor Ortiz
Общественный центр района Сальбуруа © Aitor Ortiz
Общественный центр района Сальбуруа © Aitor Ortiz
Общественный центр района Сальбуруа © Aitor Ortiz
Общественный центр района Сальбуруа © Aitor Ortiz
Общественный центр района Сальбуруа © Aitor Ortiz
Общественный центр района Сальбуруа © Aitor Ortiz
Общественный центр района Сальбуруа © Aitor Ortiz
Общественный центр района Сальбуруа © Aitor Ortiz
Общественный центр района Сальбуруа © Aitor Ortiz
Общественный центр района Сальбуруа © Aitor Ortiz
Общественный центр района Сальбуруа © Aitor Ortiz
Общественный центр района Сальбуруа © Aitor Ortiz
Общественный центр района Сальбуруа © Aitor Ortiz
Общественный центр района Сальбуруа © Aitor Ortiz
Общественный центр района Сальбуруа © Aitor Ortiz
Общественный центр района Сальбуруа © Aitor Ortiz
Общественный центр района Сальбуруа © Aitor Ortiz
Общественный центр района Сальбуруа © Aitor Ortiz
Общественный центр района Сальбуруа © Aitor Ortiz
Общественный центр района Сальбуруа © Aitor Ortiz
Общественный центр района Сальбуруа © Aitor Ortiz
Общественный центр района Сальбуруа © Aitor Ortiz
Общественный центр района Сальбуруа © Aitor Ortiz
Общественный центр района Сальбуруа © Aitor Ortiz
Общественный центр района Сальбуруа. Авторы проекта, архитекторы ACXT, в интерьере © Aitor Ortiz
Общественный центр района Сальбуруа. Авторы проекта, архитекторы ACXT, в интерьере © Aitor Ortiz
Общественный центр района Сальбуруа © Aitor Ortiz
Общественный центр района Сальбуруа © Aitor Ortiz
Общественный центр района Сальбуруа © Aitor Ortiz
Общественный центр района Сальбуруа © Aitor Ortiz
Общественный центр района Сальбуруа © ACXT
Общественный центр района Сальбуруа © ACXT
Общественный центр района Сальбуруа © ACXT
Общественный центр района Сальбуруа © ACXT
Общественный центр района Сальбуруа © ACXT
Общественный центр района Сальбуруа © ACXT
Общественный центр района Сальбуруа © ACXT
Общественный центр района Сальбуруа © ACXT
Общественный центр района Сальбуруа © ACXT
Общественный центр района Сальбуруа © ACXT
Общественный центр района Сальбуруа © ACXT
Общественный центр района Сальбуруа © ACXT
Общественный центр района Сальбуруа © ACXT
Общественный центр района Сальбуруа © ACXT
Общественный центр района Сальбуруа © ACXT
Общественный центр района Сальбуруа © ACXT
Общественный центр района Сальбуруа © ACXT
Общественный центр района Сальбуруа © ACXT
Общественный центр района Сальбуруа © ACXT
Общественный центр района Сальбуруа © ACXT
Общественный центр района Сальбуруа © ACXT
Общественный центр района Сальбуруа © ACXT