Размещено на портале Архи.ру (www.archi.ru)

08.09.2015

Дом в рейку

Екатерина Ровнова
Объект:
Жилой комплекс на улице Оври
Адрес:
Франция, None, Обервилье.
Мастерская:
Tectône

В парижском пригороде построен деревянный жилой комплекс по проекту бюро Tectône.

Жилой комплекс на улице Оври © Tectône
Жилой комплекс на улице Оври © Tectône

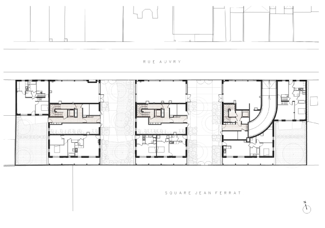
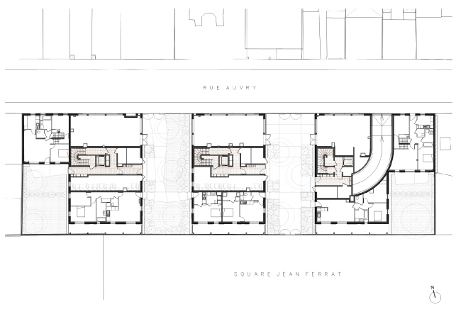
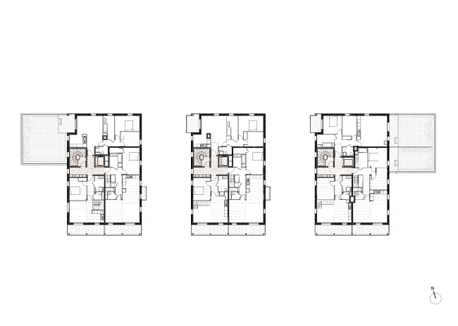
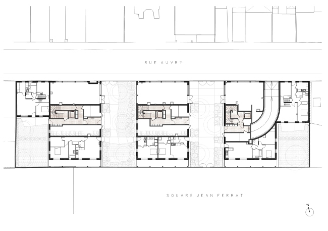
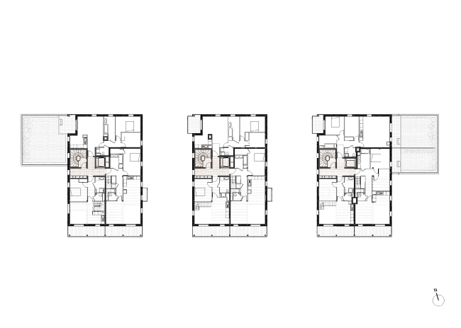
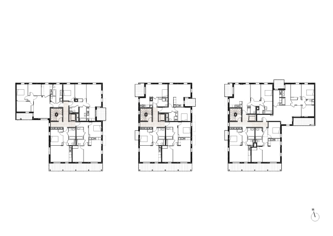
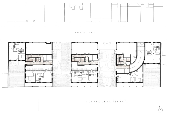
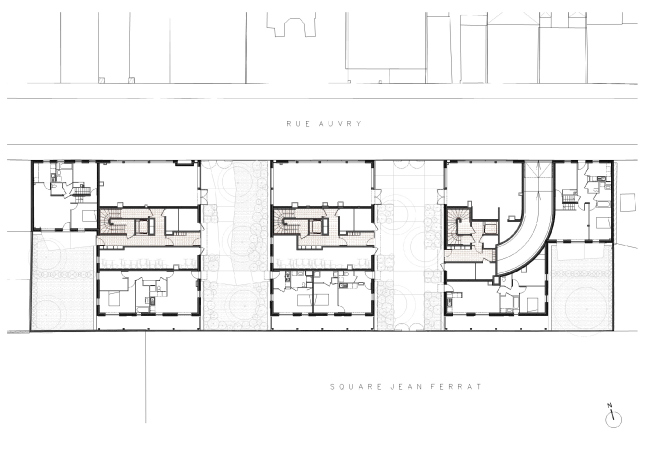
Жилой комплекс на улице Оври в коммуне Обервилье – один из последних реализованных проектов в череде строительства нового жилья в Париже и окрестностях. В рамках программы по обновлению старого промышленного района и в соответствии с мастерпланом, разработанным TOA architectes, в существующую застройку улицы Оври вписались три новых деревянных жилых корпуса за авторством бюро Tectône.
 
Жилой комплекс на улице Оври © Christophe Demonfaucon
Жилой комплекс на улице Оври © Christophe Demonfaucon

Изначально условия тендера предполагали возведение жилого комплекса из дерева, а также участие в нем команд, состоящих из архитектурных мастерских и фирм, специализирующихся на деревянном строительстве. Поэтому партнером Tectône в этом проекте выступила компания Charpente Houot.
 
Жилой комплекс на улице Оври © Christophe Demonfaucon
Жилой комплекс на улице Оври © Christophe Demonfaucon

Три деревянных объема, обернутых полупрозрачной оболочкой ритмичных вертикальных реек, выделяются на фоне остальных зданий квартала и – вместе с протянувшимся по южной стороне парком – привносят в существующую среду обаяние загородной атмосферы. Природный лейтмотив поддерживается заложенной в фасад естественной изменчивостью: облицовка из необработанной древесины сосны с течением времени приобретет седовато-серебристый оттенок.
 
Жилой комплекс на улице Оври © Christophe Demonfaucon
Жилой комплекс на улице Оври © Christophe Demonfaucon

Переулки между корпусами визуально соединяют парк с улицей: свернув с нее в этот двор-проулок, можно попасть в обращенные к городу магазины или мастерские на первых этажах, а пройдя чуть дальше – войти в холл жилой части здания. Таким образом, приватность этой общественной связки ранжируется от публичного пространства улицы через буферную зону коммерческих помещений до частного сада для жильцов.
 
Жилой комплекс на улице Оври © Christophe Demonfaucon
Жилой комплекс на улице Оври © Christophe Demonfaucon

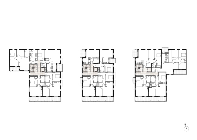
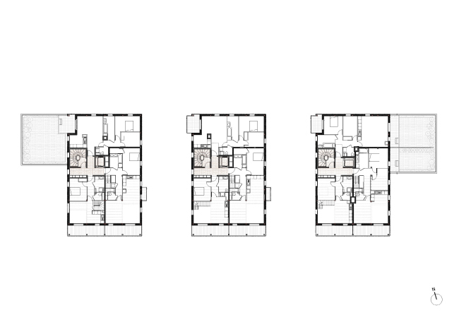
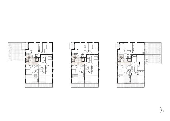
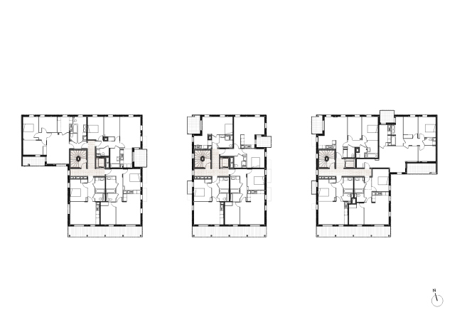
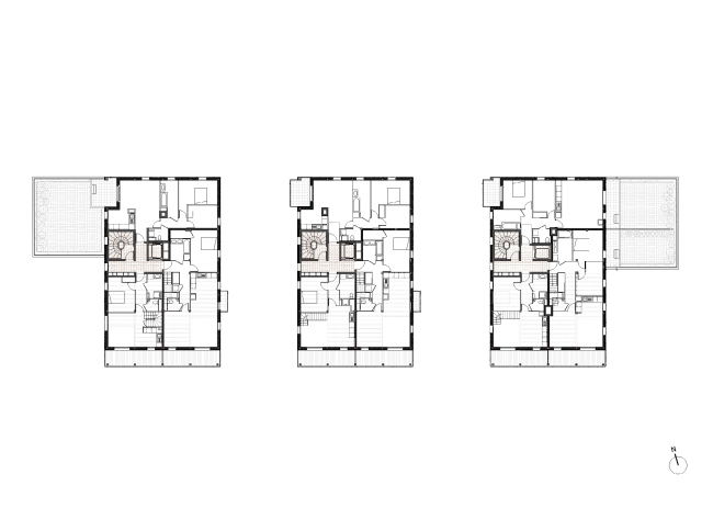
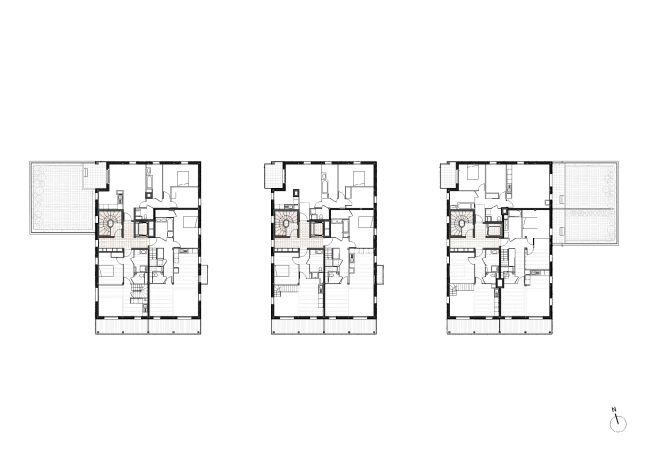
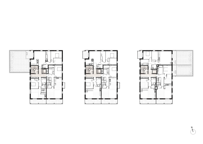
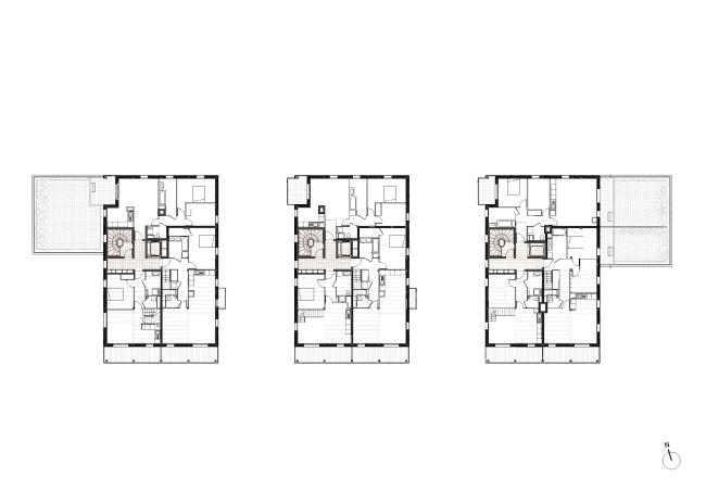
В комплексе общей площадью 3200 м2 располагаются подземная автостоянка, три коммерческих помещения и 39 квартир: три студии, девять 1-комнатных (точнее, с одной спальней и обязательной для всех не-студий гостиной), 17 двухкомнатных, семь 3-комнатных, три 4-комнатные, а верхние этажи отведены под просторные двухуровневые апартаменты. Каждая квартира имеет двух- или трехстороннюю ориентацию и не менее одного балкона или террасы, откуда открывается вид на городской парк.
 
Жилой комплекс на улице Оври © Christophe Demonfaucon
Жилой комплекс на улице Оври © Christophe Demonfaucon

Первый этаж и лестнично-лифтовые узлы выполнены из железобетона, вышележащая конструкция – деревянный каркас. Двухслойная обшивка из древесины предохраняет южные фасады от перегрева, поддерживая комфортную температуру в течение лета, а вертикальные ламели не только создают индивидуальный образ здания, но и обеспечивают визуальную защиту интерьера и террас. Оконные ставни перемещаются между слоями фасадной облицовки, что позволяет сохранить цельность образа – непрерывную полупрозрачную сетку из деревянных вертикалей.
 
Жилой комплекс на улице Оври © Lucile Chombart de Lauwe
Жилой комплекс на улице Оври © Lucile Chombart de Lauwe

Авторы проекта отмечают, что здание соответствует всем европейским требованиям по защите окружающей среды: в частности, дождевая вода собирается в резервуар под пандусом подземной парковки, который подпитывает систему технического водоснабжения и полива садов, а внутренняя планировка разработана так, чтобы извлечь максимальную выгоду из пространственной ориентации корпусов и оптимально использовать естественный свет.
 
Жилой комплекс на улице Оври © Lucile Chombart de Lauwe
Жилой комплекс на улице Оври © Lucile Chombart de Lauwe

Общая стоимость строительства составила €5,7 млн.
Жилой комплекс на улице Оври © Lucile Chombart de Lauwe
Жилой комплекс на улице Оври © Lucile Chombart de Lauwe
Жилой комплекс на улице Оври © Lucile Chombart de Lauwe
Жилой комплекс на улице Оври © Lucile Chombart de Lauwe
Жилой комплекс на улице Оври © Christophe Demonfaucon
Жилой комплекс на улице Оври © Christophe Demonfaucon
Жилой комплекс на улице Оври © Christophe Demonfaucon
Жилой комплекс на улице Оври © Christophe Demonfaucon
Жилой комплекс на улице Оври © Christophe Demonfaucon
Жилой комплекс на улице Оври © Christophe Demonfaucon
Жилой комплекс на улице Оври © Christophe Demonfaucon
Жилой комплекс на улице Оври © Christophe Demonfaucon
Жилой комплекс на улице Оври © Tectône
Жилой комплекс на улице Оври © Tectône
Жилой комплекс на улице Оври © Tectône
Жилой комплекс на улице Оври © Tectône
Жилой комплекс на улице Оври © Tectône
Жилой комплекс на улице Оври © Tectône
Жилой комплекс на улице Оври © Tectône
Жилой комплекс на улице Оври © Tectône
Жилой комплекс на улице Оври © Tectône
Жилой комплекс на улице Оври © Tectône
Жилой комплекс на улице Оври © Christophe Demonfaucon
Жилой комплекс на улице Оври © Christophe Demonfaucon
Жилой комплекс на улице Оври © Christophe Demonfaucon
Жилой комплекс на улице Оври © Christophe Demonfaucon
Жилой комплекс на улице Оври © Christophe Demonfaucon
Жилой комплекс на улице Оври © Christophe Demonfaucon
Жилой комплекс на улице Оври © Lucile Chombart de Lauwe
Жилой комплекс на улице Оври © Lucile Chombart de Lauwe
Жилой комплекс на улице Оври © Christophe Demonfaucon
Жилой комплекс на улице Оври © Christophe Demonfaucon
Жилой комплекс на улице Оври © Lucile Chombart de Lauwe
Жилой комплекс на улице Оври © Lucile Chombart de Lauwe
Жилой комплекс на улице Оври © Christophe Demonfaucon
Жилой комплекс на улице Оври © Christophe Demonfaucon
Жилой комплекс на улице Оври © Christophe Demonfaucon
Жилой комплекс на улице Оври © Christophe Demonfaucon
Жилой комплекс на улице Оври © Christophe Demonfaucon
Жилой комплекс на улице Оври © Christophe Demonfaucon
Жилой комплекс на улице Оври © Christophe Demonfaucon
Жилой комплекс на улице Оври © Christophe Demonfaucon
Жилой комплекс на улице Оври © Lucile Chombart de Lauwe
Жилой комплекс на улице Оври © Lucile Chombart de Lauwe
Жилой комплекс на улице Оври © Tectône
Жилой комплекс на улице Оври © Tectône
Жилой комплекс на улице Оври © Tectône
Жилой комплекс на улице Оври © Tectône
Жилой комплекс на улице Оври © Tectône
Жилой комплекс на улице Оври © Tectône
Жилой комплекс на улице Оври © Tectône
Жилой комплекс на улице Оври © Tectône
Жилой комплекс на улице Оври © Tectône
Жилой комплекс на улице Оври © Tectône
Жилой комплекс на улице Оври © Tectône
Жилой комплекс на улице Оври © Tectône