Размещено на портале Архи.ру (www.archi.ru)

31.08.2015

На стрелке Сходни и Москвы-реки

Полина Садова
Объект:
Гостиничный комплекс Radisson Blue Moscow
Адрес:
Россия, Москва.
Мастерская:
Архитектурное бюро «А.Лен»
Arch group
Конструкционная безопасность

Представляем проекты победителей конкурса на архитектурную концепцию гостиничного комплекса Radisson Blue Moscow.

20 августа в Москве подвели итоги конкурса на архитектурную концепцию 4-звездочной гостиницы Radisson Blu Moscow Riverside Hotel&SPA, строительство которой планируется в месте слияния рек Москва и Сходня. Задачей участников было не только создать функциональное и комфортное для постояльцев здание, но и обеспечить его гармонию с природным окружением. Перед жюри стоял выбор из 36 работ. В итоге, по совокупности критериев в финал вышли три проекта, которым и присудили призовые места, хотя все три проекта еще будут дорабатываться согласно требованиям гостиничного оператора.

Представляем проекты трех финалистов конкурса.

Первое место
ППФ А.Лен (Санкт-Петербург)

Концепция гостиничного комплекса Radisson Blue Moscow © ППФ А.Лен
Концепция гостиничного комплекса Radisson Blue Moscow © ППФ А.Лен

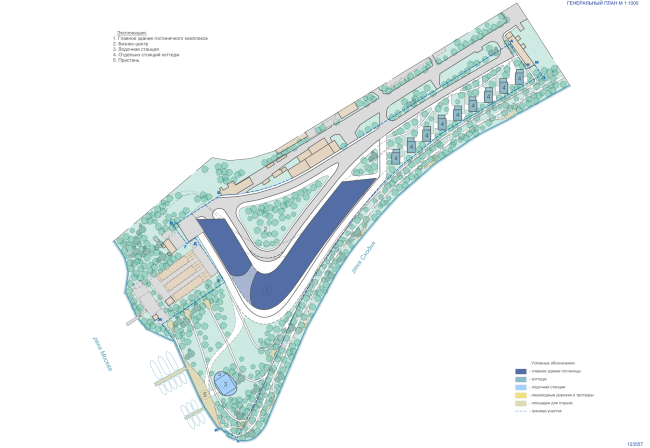
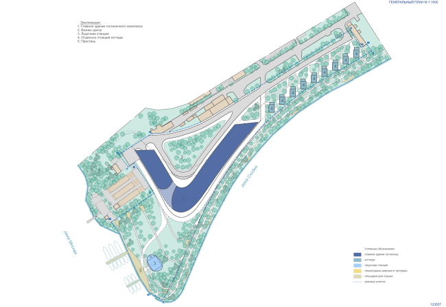
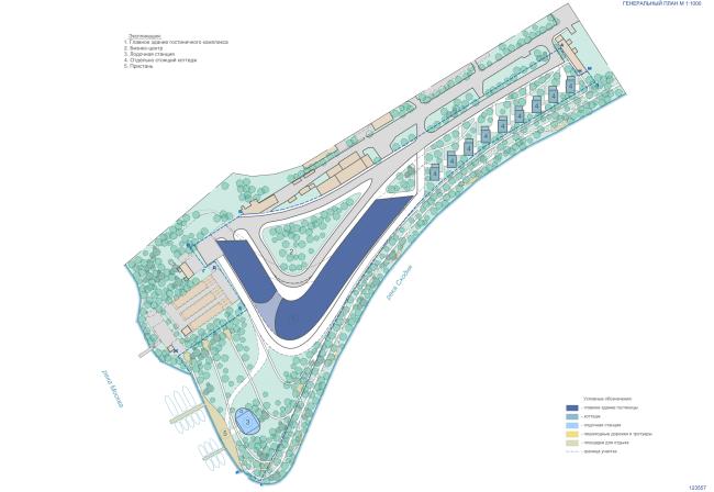
Ансамбль гостиничного комплекса составляют два здания, расположенные по осям, перпендикулярным Волоколамскому шоссе и реке Сходня. Архитекторы расположили здания таким образом по отношению друг к другу, что из всех номеров открывается вид на акваторию рек Москва и Сходня. Здание меньшей высотности, блок долговременного проживания гостей, находится ближе к набережной, в тихой и спокойной зоне. Второе здание, предназначенное для краткосрочного проживания, непосредственно связанно с деловой зоной. В стилобатной части между корпусами образован внутренний дворик. При расположении основных инфраструктурных объектов учтена необходимость беспрепятственного доступа к ним людей с ограниченными возможностями. Проект предлагает эффективные инженерно-технические и конструктивные решения, а также демонстрирует стремление к максимальной экологичности.
Концепция гостиничного комплекса Radisson Blue Moscow © ППФ А.Лен
Концепция гостиничного комплекса Radisson Blue Moscow © ППФ А.Лен
Концепция гостиничного комплекса Radisson Blue Moscow © ППФ А.Лен
Концепция гостиничного комплекса Radisson Blue Moscow © ППФ А.Лен
Концепция гостиничного комплекса Radisson Blue Moscow © ППФ А.Лен
Концепция гостиничного комплекса Radisson Blue Moscow © ППФ А.Лен
Концепция гостиничного комплекса Radisson Blue Moscow © ППФ А.Лен
Концепция гостиничного комплекса Radisson Blue Moscow © ППФ А.Лен
Концепция гостиничного комплекса Radisson Blue Moscow. Генеральный план © ППФ А.Лен
Концепция гостиничного комплекса Radisson Blue Moscow. Генеральный план © ППФ А.Лен

***

Второе место
Arch group (Москва)
Концепция гостиничного комплекса Radisson Blue Moscow © Arch group
Концепция гостиничного комплекса Radisson Blue Moscow © Arch group

Здание отеля в этом проекте принимает криволинейную форму береговой линии, благодаря чему становится продолжением природного ландшафта. Расположение постройки максимально близко к воде обеспечивает живописные виды из номеров. Вход в здание осуществляется со двора. Для того, чтобы при входе открыть посетителям панораму окрестностей, на уровне первого и второго этажей запроектирован сквозной остекленный арочный проем. Акцент в этой концепции – на выразительном силуэте здания, игре света, тени и отражений. Помимо основного здания, в комплекс входит бизнес-центр, расположенный во дворе и выполненный в виде искусственного зеленого холма.
Концепция гостиничного комплекса Radisson Blue Moscow © Arch group
Концепция гостиничного комплекса Radisson Blue Moscow © Arch group
Концепция гостиничного комплекса Radisson Blue Moscow © Arch group
Концепция гостиничного комплекса Radisson Blue Moscow © Arch group
Концепция гостиничного комплекса Radisson Blue Moscow © Arch group
Концепция гостиничного комплекса Radisson Blue Moscow © Arch group
Концепция гостиничного комплекса Radisson Blue Moscow © Arch group
Концепция гостиничного комплекса Radisson Blue Moscow © Arch group
Концепция гостиничного комплекса Radisson Blue Moscow. Генеральный план © Arch group
Концепция гостиничного комплекса Radisson Blue Moscow. Генеральный план © Arch group

 
***

Третье место
Конструкционная безопасность (Челябинск)
Концепция гостиничного комплекса Radisson Blue Moscow © Конструкционная безопасность
Концепция гостиничного комплекса Radisson Blue Moscow © Конструкционная безопасность

Невысокое и вытянутое основное здание отеля по своим габаритам сомасштабно окружающей застройке и ландшафту береговой территории. Комплекс формируется двумя объемами: главное здание и «зеленая» стилобатная часть, где предлагается устроить искусственный водоем. Вдоль восточной стороны постройки создана терраса, с которой гости отеля могут отправиться на прогулку вдоль рек Москва и Сходня. На незастроенной территории архитекторы предполагают в будущем строительство девяти отдельно стоящих вилл.
Концепция гостиничного комплекса Radisson Blue Moscow © Конструкционная безопасность
Концепция гостиничного комплекса Radisson Blue Moscow © Конструкционная безопасность
Концепция гостиничного комплекса Radisson Blue Moscow © Конструкционная безопасность
Концепция гостиничного комплекса Radisson Blue Moscow © Конструкционная безопасность
Концепция гостиничного комплекса Radisson Blue Moscow © Конструкционная безопасность
Концепция гостиничного комплекса Radisson Blue Moscow © Конструкционная безопасность
Концепция гостиничного комплекса Radisson Blue Moscow © Конструкционная безопасность
Концепция гостиничного комплекса Radisson Blue Moscow © Конструкционная безопасность
Концепция гостиничного комплекса Radisson Blue Moscow. Генеральный план © Конструкционная безопасность
Концепция гостиничного комплекса Radisson Blue Moscow. Генеральный план © Конструкционная безопасность

 
***

Жюри конкурса:
  • Кузнецов Сергей Олегович, главный архитектор города Москвы, первый заместитель председателя Москомархитектуры;
  • Муринец Евгения Дмитриевна, начальник Управления Архитектурного Совета Москомархитектуры;
  • Явейн Никита Игоревич, руководитель бюро «Студия 44», Санкт-Петербург;
  • Гинзбург Алексей Владимирович, руководитель мастерской «Гинзбург архитекс»;
  • Левянт Борис Владимирович, президент ABD architects;
  • Лызлов Николай Всеволодович, вице-президент Союза московских архитекторов, руководитель бюро АМЛ;
  • Ирбитская Ирина Викторовна, директор Центра градостроительных компетенций РАНХиГС при Президенте РФ, руководитель проектного бюро «Платформа»;
  • Галанин Михаил Викторович, заместитель префекта СЗАО г. Москвы;
  • Чижик Алексей Станиславович, председатель Совета директоров ОАО «Московский комбинат строительных материалов»;
  • Ховланд Арилд, первый вице-президент по развитию бизнеса гостиничной группы CarlsonRezidor.