Размещено на портале Архи.ру (www.archi.ru)

13.08.2015

Музей, открытый городу

Нина Фролова
Объект:
Музей искусств префектуры Оита
Адрес:
Япония, None, Оита. 2-1 Kotobuki-Machi

В японском городе Оита открылся художественный музей одноименной префектуры, спроектированный Шигеру Баном.

Музей искусств префектуры Оита © Hiroyuki Hirai
Музей искусств префектуры Оита © Hiroyuki Hirai

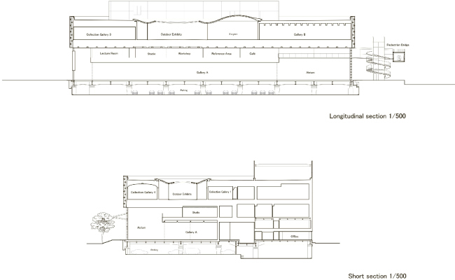
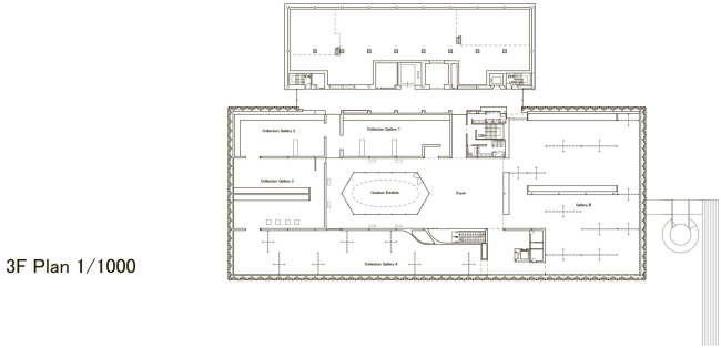
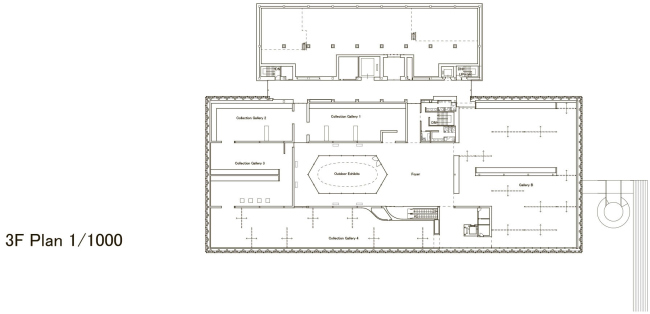
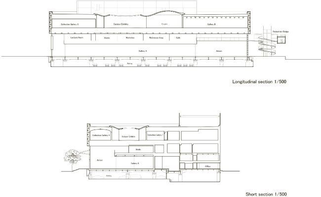
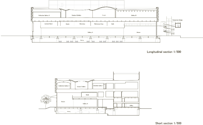
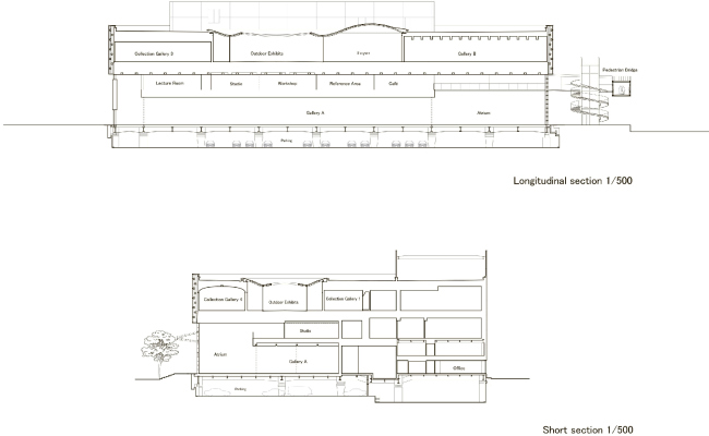
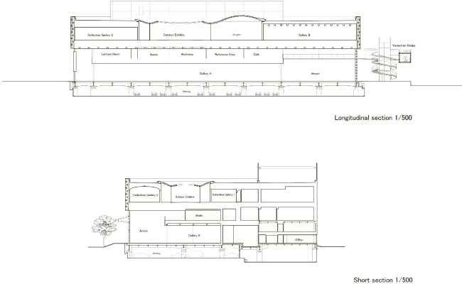
Замыслом архитектора было создать «открытый музей», который привлекал бы не только любителей искусства, но и самую широкую публику – в отличие от часто «герметичных» зданий подобных институтов. Поэтому двухсветный атриум Музея искусств префектуры Оита доступен всем желающим без покупки билета, а сквозь его стеклянные стены видно происходящее внутри. Более того, при желании можно сложить стеклянные двери, образующие нижнюю часть южного, главного фасада музея, соединив атриум с пространством города подобно тому, как веранда-энгава соединяет традиционное японское жилище с окружающей природой.
 
Музей искусств префектуры Оита © Hiroyuki Hirai
Музей искусств префектуры Оита © Hiroyuki Hirai

Так как проходящую с этой стороны улицу муниципальные власти порой перекрывают для машин, создавая «рай для пешеходов», атриум музея можно использовать как продолжение этого пространства. Более того: напротив расположен культурный центр, поэтому возможно сделать две институции и улицу между ними местом проведения крупных праздников и любых других мероприятий.
 
Музей искусств префектуры Оита © Hiroyuki Hirai
Музей искусств префектуры Оита © Hiroyuki Hirai

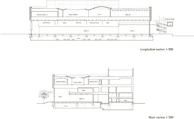
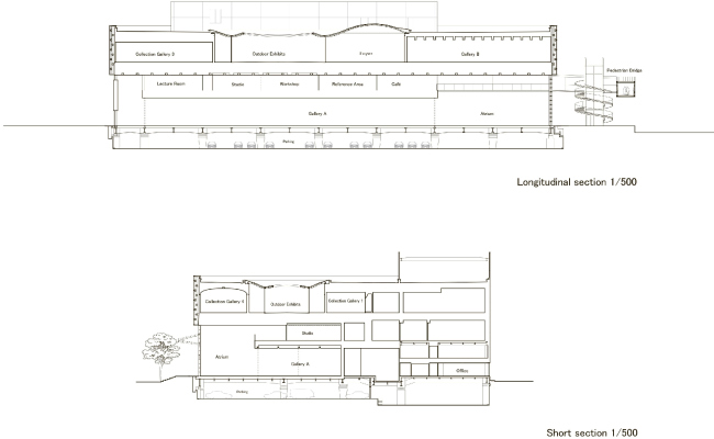
Кроме того, через улицу переброшен пешеходный мост, соединяющий музей и подножие многофункционального небоскреба «Оазис 21» (там расположен культурный центр «Иитика»).
 
Музей искусств префектуры Оита © Hiroyuki Hirai
Музей искусств префектуры Оита © Hiroyuki Hirai

Мотив пересечения деревянных балок определяет облик некоторых интерьеров музея и его главного фасада; тема решетки продолжена решением пешеходного моста.
 
Музей искусств префектуры Оита © Hiroyuki Hirai
Музей искусств префектуры Оита © Hiroyuki Hirai

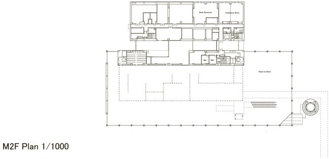
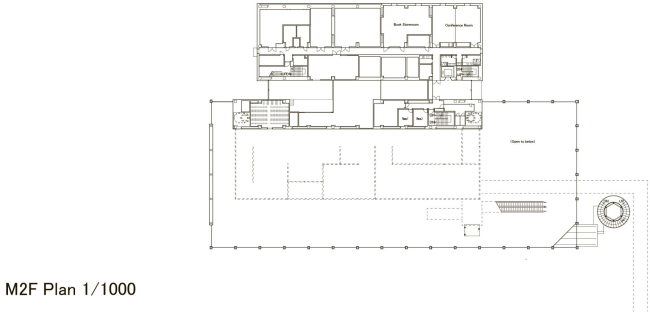
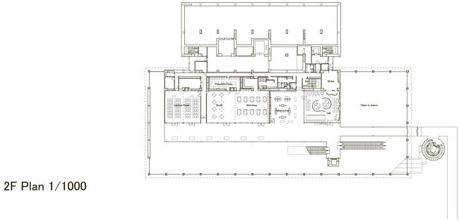
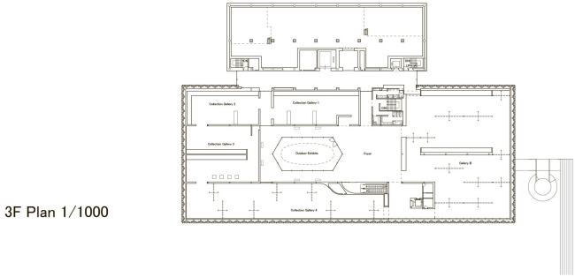
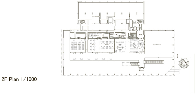
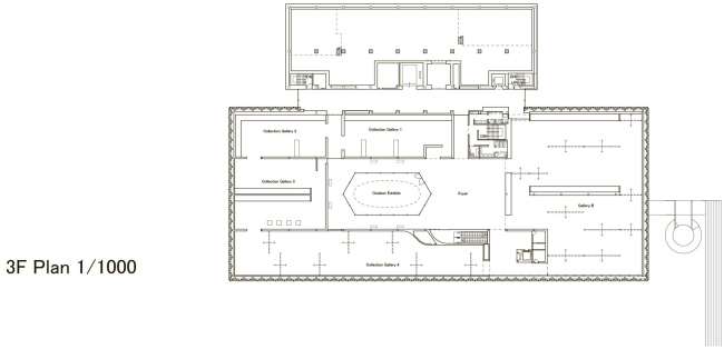
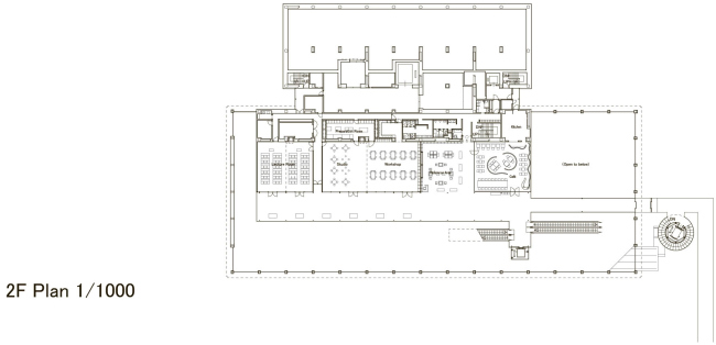
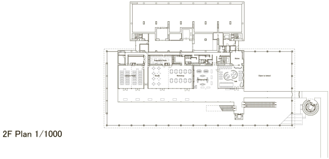
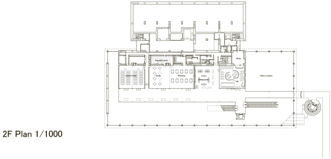
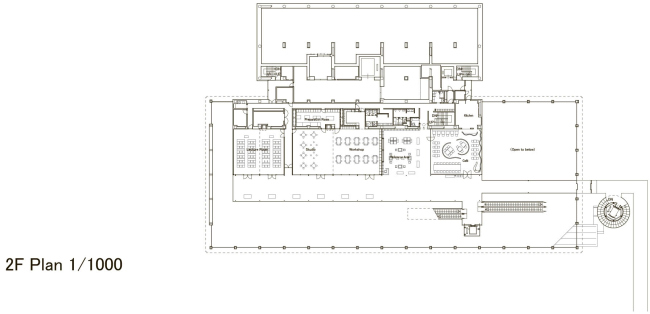
Музейные магазин и кафе сделаны «передвижными», чтобы расширить возможности для экспозиций. Более того, границу между атриумом и выставочным залом А тоже можно сдвинуть или убрать вовсе, превратив весь вестибюль в пространство для демонстрации произведений искусства.
 
Музей искусств префектуры Оита © Hiroyuki Hirai
Музей искусств префектуры Оита © Hiroyuki Hirai

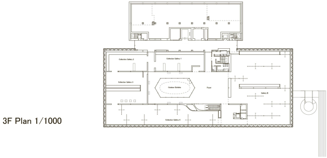
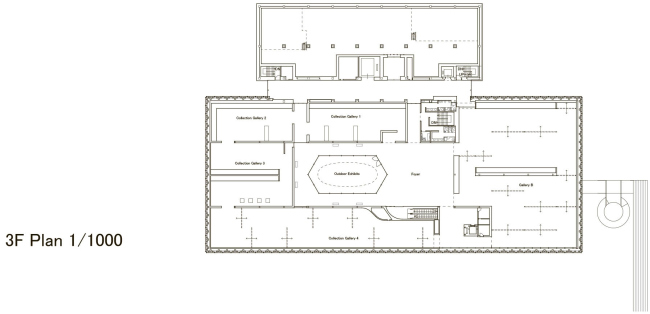
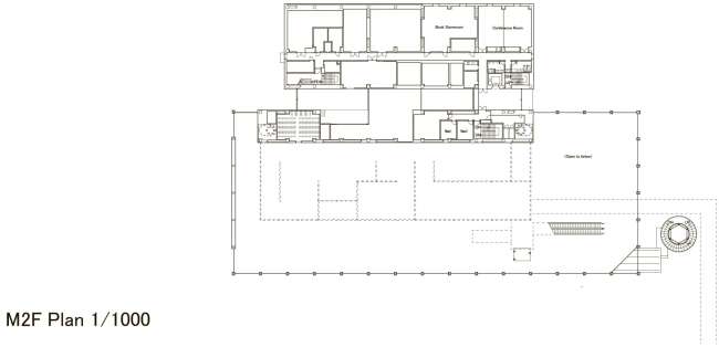
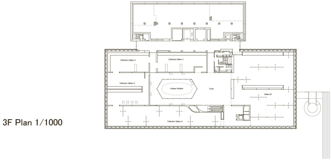
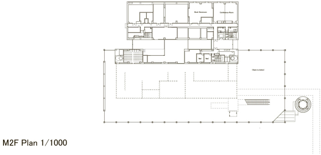
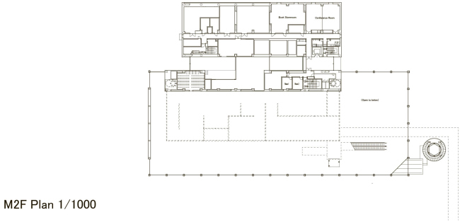
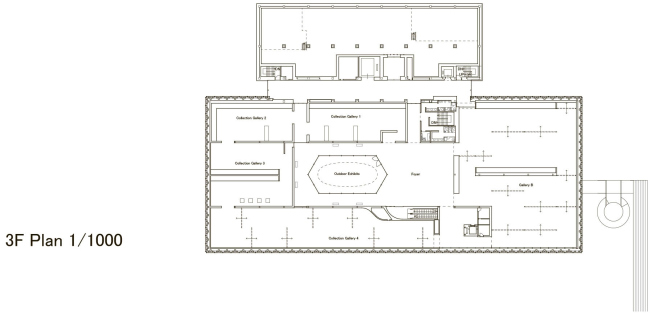
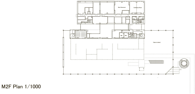
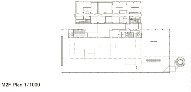
В музее имеются несколько залов для постоянной экспозиции и временных выставок, запасники, образовательный центр с мастерскими и лекторием. В центре верхнего этажа устроено небольшое выставочное пространство под открытым небом.
Музей искусств префектуры Оита © Hiroyuki Hirai
Музей искусств префектуры Оита © Hiroyuki Hirai
Музей искусств префектуры Оита © Hiroyuki Hirai
Музей искусств префектуры Оита © Hiroyuki Hirai
Музей искусств префектуры Оита © Hiroyuki Hirai
Музей искусств префектуры Оита © Hiroyuki Hirai
Музей искусств префектуры Оита © Hiroyuki Hirai
Музей искусств префектуры Оита © Hiroyuki Hirai
Музей искусств префектуры Оита © Hiroyuki Hirai
Музей искусств префектуры Оита © Hiroyuki Hirai
Музей искусств префектуры Оита © Hiroyuki Hirai
Музей искусств префектуры Оита © Hiroyuki Hirai
Музей искусств префектуры Оита © Hiroyuki Hirai
Музей искусств префектуры Оита © Hiroyuki Hirai
Музей искусств префектуры Оита © Shigeru Ban Architects
Музей искусств префектуры Оита © Shigeru Ban Architects
Музей искусств префектуры Оита © Shigeru Ban Architects
Музей искусств префектуры Оита © Shigeru Ban Architects
Музей искусств префектуры Оита © Shigeru Ban Architects
Музей искусств префектуры Оита © Shigeru Ban Architects
Музей искусств префектуры Оита © Shigeru Ban Architects
Музей искусств префектуры Оита © Shigeru Ban Architects
Музей искусств префектуры Оита © Shigeru Ban Architects
Музей искусств префектуры Оита © Shigeru Ban Architects
Музей искусств префектуры Оита © Shigeru Ban Architects
Музей искусств префектуры Оита © Shigeru Ban Architects
Музей искусств префектуры Оита © Shigeru Ban Architects
Музей искусств префектуры Оита © Shigeru Ban Architects