Размещено на портале Архи.ру (www.archi.ru)

04.08.2015

Стеклянные грани

Нина Фролова
Объект:
Башня Vitra
Адрес:
Бразилия, None, Сан-Паулу.

Даниэль Либескинд построил свое первое здание в Южной Америке – жилую башню Vitra в Сан-Паулу.

Башня Vitra © Ana Mello
Башня Vitra © Ana Mello

Название Vitra – отсылка к материалу фасада – стеклу («стеклянный» по-португальски – vitreo). Многоквартирный дом имеет вид угловатого кристалла с «вырезанными» в его поверхности балконами-лоджиями, которые превращены в небольшие сады. Кроме того, у подножия башни разбит настоящий парк, что напоминает о расположенных по соседству знаменитом парке Ибирапуэра с постройками Оскара Нимейера и открывшемся в 2008 парке Ду Пову. Vitra возведена в одном из престижных районов Сан-Паулу – Итайм-Биби.
 
Башня Vitra © Ana Mello
Башня Vitra © Ana Mello

В доме – всего 14 квартир и пентхаус площадью от 565 м² до 1 145 м²: каждые апартаменты занимают целый этаж. Среди инфраструктуры – бассейн, спа, спортзал, детская игровая комната и салон. В вестибюле доминируют стойка портье из светлого бетона и стена из бразильского красного дерева.
 
Башня Vitra © Ana Mello
Башня Vitra © Ana Mello

Среди эко-элементов проекта – система сбора и использования дождевой воды, солнечные коллекторы, «устойчивые» строительные материалы (высокоэффективное стекло фасадов и др.), «умная» система управления зданием.
 
Башня Vitra © Ana Mello
Башня Vitra © Ana Mello

По словам Даниэля Либескинда, источниками вдохновения для проекта стали город Сан-Паулу – самый крупный мегаполис не только Южного, но и Западного полушария, а также бразильцы – «по-настоящему плюралистский народ.»
Башня Vitra © Ana Mello
Башня Vitra © Ana Mello
Башня Vitra © Romulo Fialdini
Башня Vitra © Romulo Fialdini
Башня Vitra © Ana Mello
Башня Vitra © Ana Mello
Башня Vitra © Ana Mello
Башня Vitra © Ana Mello
Башня Vitra © Ana Mello
Башня Vitra © Ana Mello
Башня Vitra © Ana Mello
Башня Vitra © Ana Mello
Башня Vitra © Romulo Fialdini
Башня Vitra © Romulo Fialdini
Башня Vitra © Romulo Fialdini
Башня Vitra © Romulo Fialdini
Башня Vitra © Ana Mello
Башня Vitra © Ana Mello
Башня Vitra © Ana Mello
Башня Vitra © Ana Mello
Башня Vitra © Ana Mello
Башня Vitra © Ana Mello
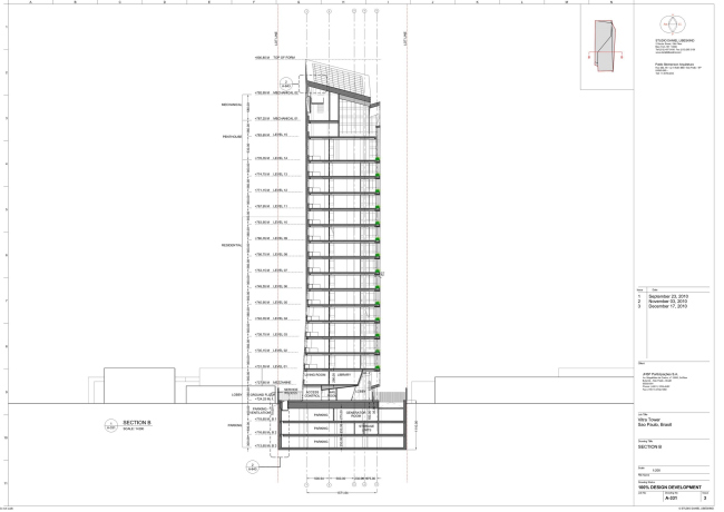
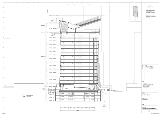
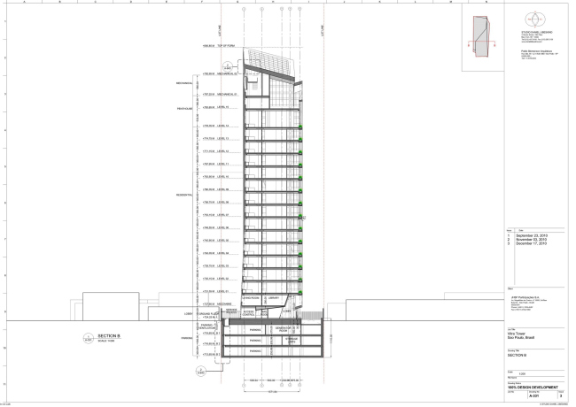
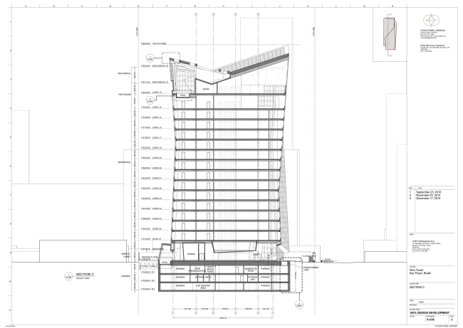
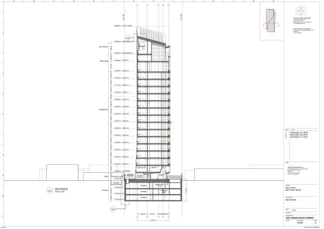
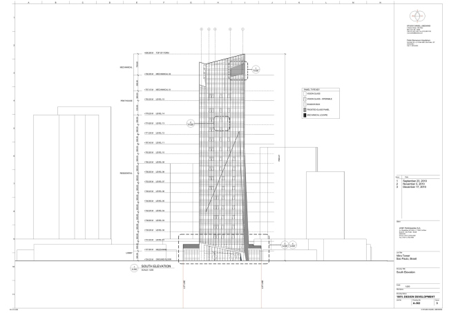
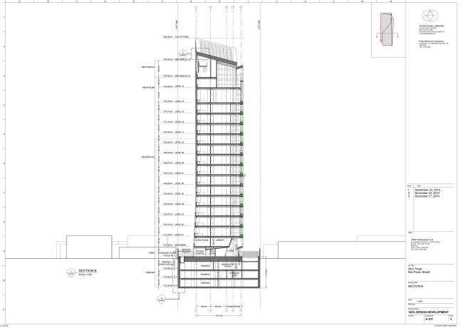
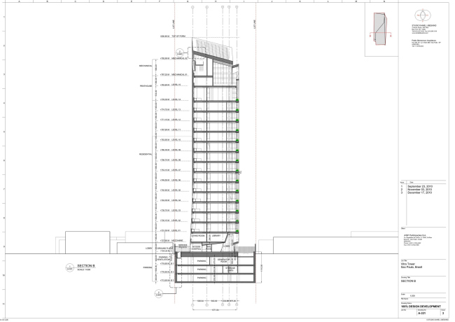
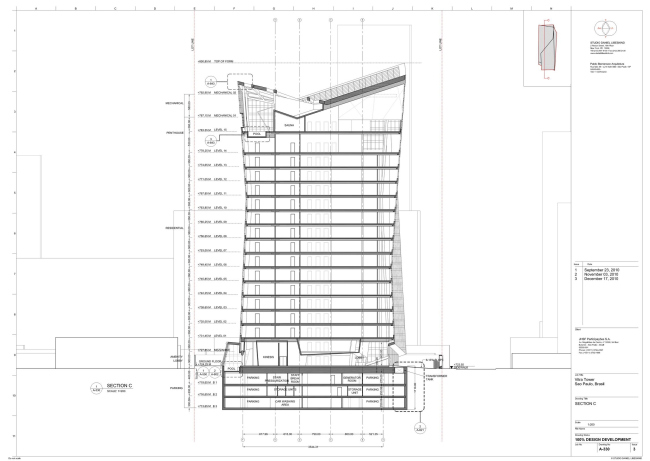
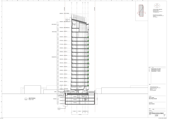
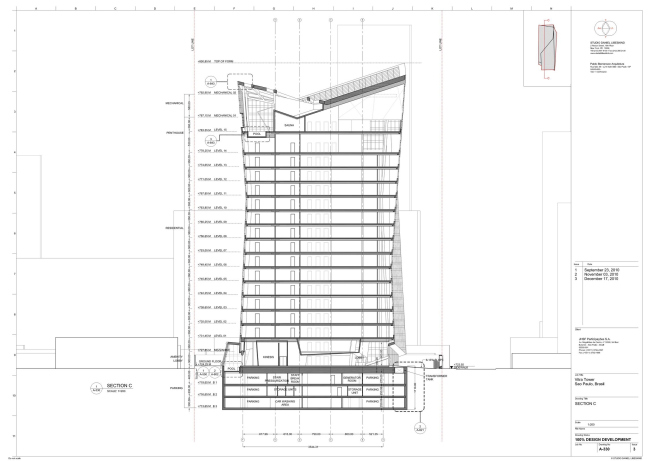
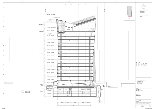
Башня Vitra © Studio Libeskind
Башня Vitra © Studio Libeskind
Башня Vitra © Studio Libeskind
Башня Vitra © Studio Libeskind
Башня Vitra © Studio Libeskind
Башня Vitra © Studio Libeskind
Башня Vitra © Studio Libeskind
Башня Vitra © Studio Libeskind
Башня Vitra © Studio Libeskind
Башня Vitra © Studio Libeskind
Башня Vitra © Studio Libeskind
Башня Vitra © Studio Libeskind
Башня Vitra © Studio Libeskind
Башня Vitra © Studio Libeskind
Башня Vitra © Studio Libeskind
Башня Vitra © Studio Libeskind