Размещено на портале Архи.ру (www.archi.ru)

24.07.2015

Результативное объединение

Екатерина Ровнова
Объект:
Комплекс Национального географического института и службы Météo France
Адрес:
Франция, None, Сен-Манде. 73-75 avenue de Paris 94165

Бюро Патрика Може превратило офисное здание 1980-х близ Парижа в энергоэффективный административный комплекс.

Комплекс Национального географического института и службы Météo France © Michel Denancé
Комплекс Национального географического института и службы Météo France © Michel Denancé

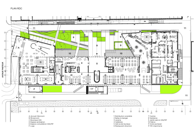
В Сен-Манде завершена реконструкция комплекса государственных учреждений под юрисдикцией Министерства экологии, устойчивого развития и энергетики: в соответствии с наименованием министерства проект был выполнен с акцентом на устойчивое развитие. Задача была не только объединить штаб-квартиру Национального института географической информации и лесного хозяйства Франции (Institut Géographique National) и Центр метеорологии (Météo France) в многофункциональный комплекс, но и, оживив с его помощью прилегающий район, стимулировать процесс его обновления.
 
Комплекс Национального географического института и службы Météo France © Michel Denancé
Комплекс Национального географического института и службы Météo France © Michel Denancé

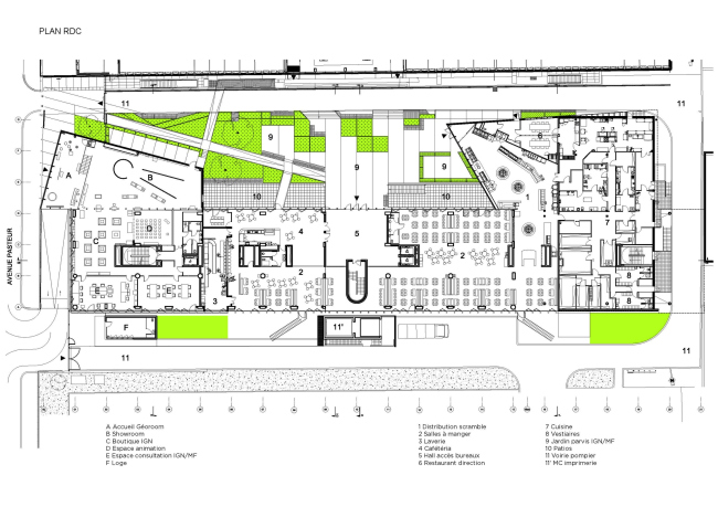
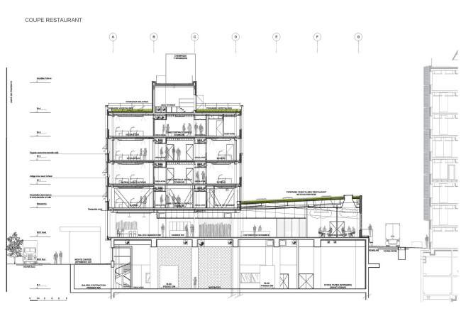
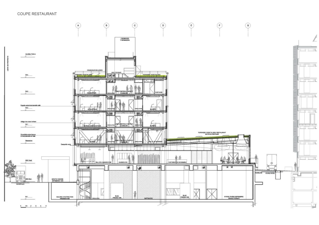
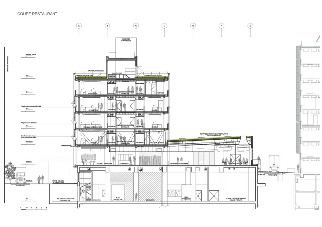
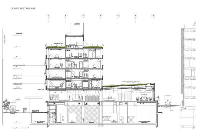
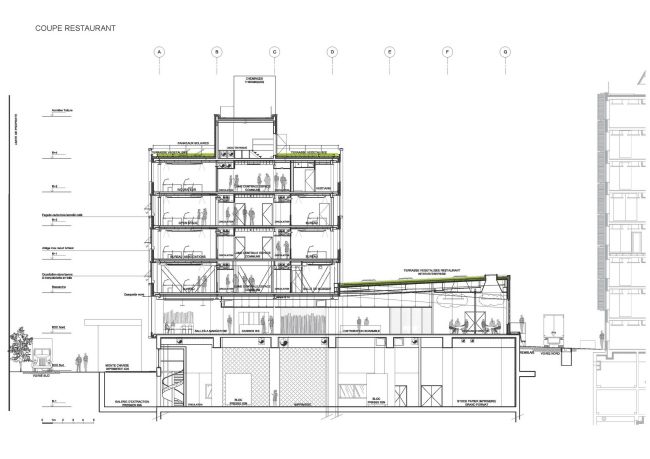
Здание Météo France (на схемах – «A») площадью 14 200 м2 было построено в 2012 и не требовало вмешательства, тогда как здание IGN (на схемах – «B») было решено реконструировать: в итоге, при сохранении существующей общей площади глубина нового корпуса уменьшилась до 18 м, а площадь фасадов – на 30%. Более компактная структура позволила сделать интерьер светлее и комфортнее, улучшив освещенность и инсоляцию нижних этажей, а снаружи – разбить большой сад, объединяющий оба корпуса: в совокупности с «зеленой» крышей и террасами площадь озеленения увеличилась на 200%. Кроме того, выросшее расстояние между зданиями позволило корпусу А функционировать в обыкновенном режиме во время проведения работ по реконструкции его соседа.
 
Комплекс Национального географического института и службы Météo France © Architecture Patrick Mauger
Комплекс Национального географического института и службы Météo France © Architecture Patrick Mauger

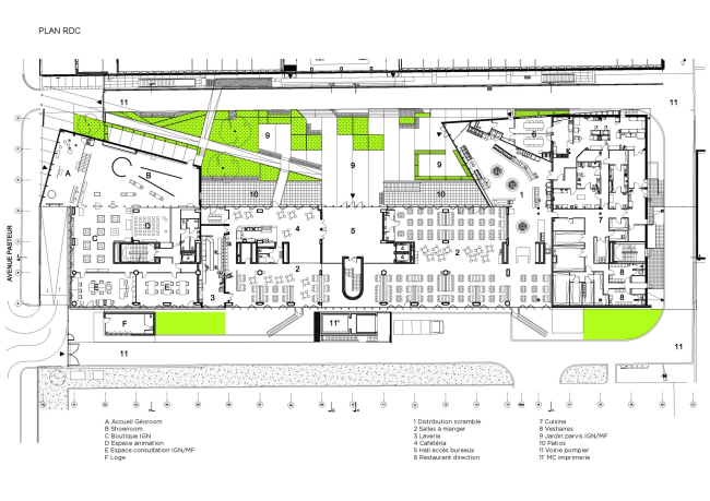
Офисы, мастерские, ресторан и медицинский пункт, составлявшие первичную функциональную программу нового здания, дополнились мультимедийной библиотекой, музыкальной комнатой, фотолабораторией и тремя спортивными залами, а большие террасы обладают потенциалом для возведения дополнительных полезных пространств.
 
Комплекс Национального географического института и службы Météo France © Architecture Patrick Mauger
Комплекс Национального географического института и службы Météo France © Architecture Patrick Mauger

Офисы варьируются от отдельных кабинетов на одного-двух человек до больших «опен-спейсов». Протянувшиеся вдоль остекленных северного и южного фасадов, они глубже на южной стороне: это оптимизирует естественное освещение помещений. В центральной части каждого этажа находится рекреационное пространство, где размещены конференц-залы, кафе, санузлы, неформальные рабочие зоны: такая компоновка позволяет улучшить коммуникацию между «севером» и «югом».
 
Комплекс Национального географического института и службы Météo France © Michel Denancé
Комплекс Национального географического института и службы Météo France © Michel Denancé

Внешний облик Центра метеорологии обыгрывается в деревянных фасадных элементах корпуса IGN, шаг которых практически идентичен (1,35 м в «А» и 1,37 – в «В»), что придает комплексу цельность и создает для этих государственных институций узнаваемый образ. Фасадный модуль – это цельная рама из клееной ели размером 1,40 х 6,54 м со вставленными в нее открывающимися оконными рамами, «вентиляционными» сосновыми створками и стеновыми экранами из нержавеющей стали. Каждый из 535 таких модулей весит 500 кг и вмещает два этажа в высоту, а два модуля составляют минимальную офисную ячейку. Тесты на воздухо-, ветро-, влагопроницаемость и акустические свойства показали результаты выше, чем того требовали теоретические расчеты: 4-й класс воздухопроницаемости, 7А – водонепроницаемости, С2 – ветронепроницамости.
 
Комплекс Национального географического института и службы Météo France © Michel Denancé
Комплекс Национального географического института и службы Météo France © Michel Denancé

Всего в здании использовано несколько разновидностей фасадных модулей: два «офисных», различающихся наличием или отсутствием створок для проветривания; целиком застекленные, увеличенной высоты – для первого этажа; неостекленные – для лоджий и облицованные непрозрачным эмалированным стеклом – для верха, за которым скрываются зеленые насаждения кровли. Для возведения 5400 м2 фасада общей стоимостью €726/м2 потребовалось 6000 часов и 250 м3 клееной древесины, 1600 м2 экранов из нержавеющей стали, 3000 м2 остекления, 387 штук жалюзи для защиты южной стороны от перегрева.
 
Комплекс Национального географического института и службы Météo France © Michel Denancé
Комплекс Национального географического института и службы Météo France © Michel Denancé

Архитекторы хотели добиться визуального единения внутреннего и внешнего пространств, однако в большинстве случаев у энергоэффективного остекления – зеркальная наружная поверхность, что обособляет здание от окружения. Чтобы избежать подобного эффекта, было подобрано стекло с максимально возможной степенью прозрачности (солнечный фактор – 37 %, светопроницаемость – 68 %) при удовлетворяющих требованиям энергоэффективности термических (коэффициент теплопередачи – 1,1 Вт/м²K) и акустических (Ас=33 Дб) качествах.
 
Комплекс Национального географического института и службы Météo France © Michel Denancé
Комплекс Национального географического института и службы Météo France © Michel Denancé

Для сокращения эксплуатационных издержек летом здание охлаждает пассивная вентиляционная система: в окнах каждого офиса выше второго этажа есть «вентиляционные» створки, при открытии которых система механического притока автоматически отключается, а четыре больших тепловых вытяжки вытягивают горячий воздух из коридоров. Зимой нагретый на юге воздух рекуперируется и снова вводится внутрь помещений. При превышении наружной температуры до отметки в 12°С поворотная заслонка автоматически открывает «вентиляционные» створки в остеклении центральной проходной зоны.
 
Комплекс Национального географического института и службы Météo France © Michel Denancé
Комплекс Национального географического института и службы Météo France © Michel Denancé

Чтобы оптимизировать энергопотребление, используется система геотермальных насосов, рекуперирующие энергию двухпоточные вентиляционные установки на гигроскопических роторных теплообменниках и гликолевых аккумуляторах; энергия, получаемая от установленных на крыше солнечных панелей идет на подогрев воды в душевых при спортивных залах; озелененные крыши уменьшают теплопотери здания.
 
Комплекс Национального географического института и службы Météo France © Michel Denancé
Комплекс Национального географического института и службы Météo France © Michel Denancé

Уличное пространство структурировано большими клумбами геометрических форм, обыгрывающими рельеф участка: вместе с чередой лестниц они создают площадки с разной атмосферой, позволяющей 1600 обитателям комплекса отдохнуть, пообщаться с коллегами, провести встречу в приятной обстановке. Внешний облик комплекса переменчив: большие поверхности зеркальных фасадов и стальной облицовки отражают красочные растения разнообразных очертаний, зависящих от времени года, колебаний ветра, освещенности.
 
Комплекс Национального географического института и службы Météo France © Michel Denancé
Комплекс Национального географического института и службы Météo France © Michel Denancé

Стоимость этого здания, соответствующего французскому стандарту высокой энергоэффективности THPE, составила около €36 млн, из которых €4,2 млн – стоимость фасада.
Комплекс Национального географического института и службы Météo France © Architecture Patrick Mauger
Комплекс Национального географического института и службы Météo France © Architecture Patrick Mauger
Комплекс Национального географического института и службы Météo France © Michel Denancé
Комплекс Национального географического института и службы Météo France © Michel Denancé
Комплекс Национального географического института и службы Météo France © Architecture Patrick Mauger
Комплекс Национального географического института и службы Météo France © Architecture Patrick Mauger
Комплекс Национального географического института и службы Météo France © Michel Denancé
Комплекс Национального географического института и службы Météo France © Michel Denancé
Комплекс Национального географического института и службы Météo France © Architecture Patrick Mauger
Комплекс Национального географического института и службы Météo France © Architecture Patrick Mauger
Комплекс Национального географического института и службы Météo France © Michel Denancé
Комплекс Национального географического института и службы Météo France © Michel Denancé
Комплекс Национального географического института и службы Météo France © Architecture Patrick Mauger
Комплекс Национального географического института и службы Météo France © Architecture Patrick Mauger
Комплекс Национального географического института и службы Météo France © Michel Denancé
Комплекс Национального географического института и службы Météo France © Michel Denancé
Комплекс Национального географического института и службы Météo France © Architecture Patrick Mauger
Комплекс Национального географического института и службы Météo France © Architecture Patrick Mauger
Комплекс Национального географического института и службы Météo France © Michel Denancé
Комплекс Национального географического института и службы Météo France © Michel Denancé
Комплекс Национального географического института и службы Météo France © Architecture Patrick Mauger
Комплекс Национального географического института и службы Météo France © Architecture Patrick Mauger
Комплекс Национального географического института и службы Météo France © Architecture Patrick Mauger
Комплекс Национального географического института и службы Météo France © Architecture Patrick Mauger
Комплекс Национального географического института и службы Météo France © Architecture Patrick Mauger
Комплекс Национального географического института и службы Météo France © Architecture Patrick Mauger
Комплекс Национального географического института и службы Météo France © Architecture Patrick Mauger
Комплекс Национального географического института и службы Météo France © Architecture Patrick Mauger
Комплекс Национального географического института и службы Météo France © Architecture Patrick Mauger
Комплекс Национального географического института и службы Météo France © Architecture Patrick Mauger