Размещено на портале Архи.ру (www.archi.ru)

22.07.2015

Начальное «зеленое» образование

Нина Фролова
Объект:
Начальная школа «Оливье де Серр»
Адрес:
Франция, None, Париж.

Экологичная школа «Оливье де Серр» в Париже от бюро Жана-Франсуа Шмита, в проектировании которой участвовали ее ученики.

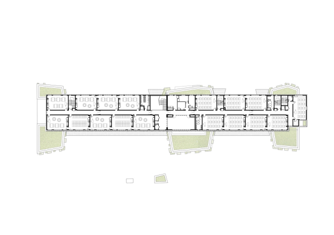
Начальная школа «Оливье де Серр» © Jean-François Schmit Architectes
Начальная школа «Оливье де Серр» © Jean-François Schmit Architectes

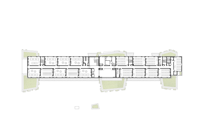
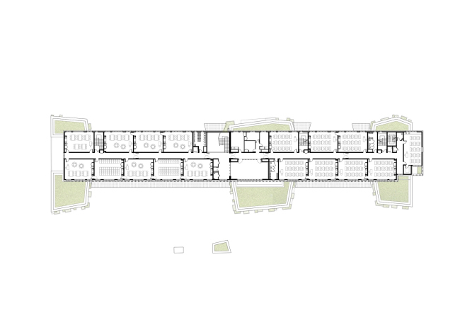
Комплекс на 8 детсадовских групп, 12 классов начальной школы и один т. н. класс адаптации для «особых» детей появился на месте прежнего образовательного учреждения. Его площадь – почти 5500 м2, стоимость – 27 млн евро. Задачей архитекторов было не только создать комфортную и побуждающую детей к учебе среду, но и сделать здание по-настоящему «устойчивым», чтобы оно могло служить наглядным примером при обучении школьников бережному отношению к окружающей среде.
 
Начальная школа «Оливье де Серр» © Jean-François Schmit Architectes
Начальная школа «Оливье де Серр» © Jean-François Schmit Architectes

Школа находится в центре квартала и окружена зеленой зоной; кроме того, с участком граничит бывшая кольцевая железная дорога, которая сейчас превращается в «линейный» парк. 420 м2 фасадов и 700 м2 кровли постройки озеленены; при строительстве были сохранены росшие здесь деревья, а пространство школьного двора значительно увеличилось. В результате, по словам Жана-Франсуа Шмита, площадь «природных» элементов выросла в 2,5 раза по сравнению с заданием конкурса, проводившегося на проект новой школы.
 
Начальная школа «Оливье де Серр» © Jean-François Schmit Architectes
Начальная школа «Оливье де Серр» © Jean-François Schmit Architectes

Фасады постройки обшиты древесиной акации, в нижней зоне отдельные блоки оформлены как «скалы»: там располагаются библиотека, кухня, галерея для игр, медпункт и т. д. На двускатной части крыши установлены солнечные коллекторы, обеспечивающие школу 39% необходимой ей горячей воды. Выведенные в интерьер поверхности необработанного бетона обеспечивают термальную инерцию постройки, также продумана ориентация здания, естественные освещение и вентиляция помещений.
 
Начальная школа «Оливье де Серр» © Jean-François Schmit Architectes
Начальная школа «Оливье де Серр» © Jean-François Schmit Architectes

На эксплуатируемой кровле устроены навес и «сад дзен». Школа неслучайно носит имя агронома XVI века Оливье де Серра: детей здесь обучают садоводству, для чего имеются теплица, огород и фруктовые деревья. Мэр Парижа Анна Идальго на открытии школы посадила там вишню.
 
Начальная школа «Оливье де Серр» © Jean-François Schmit Architectes
Начальная школа «Оливье де Серр» © Jean-François Schmit Architectes

Кроме комфортности среды и экологических элементов новый образовательный комплекс также отличает участие школьников в его проектировании. Архитекторы объясняли им «вопросы урбанизма», а дети оценивали пять представленных на конкурс проектов, высказывали свое мнение в ходе разработки получившего первую премию варианта (так, по их просьбе был сохранен пруд, который взрослым казался небезопасным), ходили на экскурсию на стройплощадку.

 
Начальная школа «Оливье де Серр» © Jean-François Schmit Architectes
Начальная школа «Оливье де Серр» © Jean-François Schmit Architectes
Начальная школа «Оливье де Серр» © Jean-François Schmit Architectes
Начальная школа «Оливье де Серр» © Jean-François Schmit Architectes
Начальная школа «Оливье де Серр» © Jean-François Schmit Architectes
Начальная школа «Оливье де Серр» © Jean-François Schmit Architectes
Начальная школа «Оливье де Серр» © Jean-François Schmit Architectes
Начальная школа «Оливье де Серр» © Jean-François Schmit Architectes
Начальная школа «Оливье де Серр» © Jean-François Schmit Architectes
Начальная школа «Оливье де Серр» © Jean-François Schmit Architectes
Начальная школа «Оливье де Серр» © Jean-François Schmit Architectes
Начальная школа «Оливье де Серр» © Jean-François Schmit Architectes
Начальная школа «Оливье де Серр» © Jean-François Schmit Architectes
Начальная школа «Оливье де Серр» © Jean-François Schmit Architectes
Начальная школа «Оливье де Серр» © Jean-François Schmit Architectes
Начальная школа «Оливье де Серр» © Jean-François Schmit Architectes
Начальная школа «Оливье де Серр» © Jean-François Schmit Architectes
Начальная школа «Оливье де Серр» © Jean-François Schmit Architectes