Размещено на портале Архи.ру (www.archi.ru)

16.07.2015

Факультет нужных вещей

Анна Старостина
Объект:
Инженерный факультет Университета Южной Дании
Адрес:
Дания, None, Оденсе.
Мастерская:
C. F. Møller

Новый корпус Университета Южной Дании по проекту C.F. Møller объединяет под кружевной «пелериной» сразу четыре научных института.

Инженерный факультет Университета Южной Дании © Jørgen True
Инженерный факультет Университета Южной Дании © Jørgen True

Кампус университета был построен в городе Оденсе, родине Андерсена, еще в начале 70-х годов прошлого века. Проект Гуннара Крона и Э. Хартвига Расмуссена (ныне их бюро известно как KHR Arkitekter) вполне типичен для своего времени: архитекторы активно использовали открытые бетонные поверхности в сочетании с «ржавыми» панелями из кортеновской стали. Именно в такую, довольно жесткую и брутальную среду архитекторам бюро C.F. Møller предстояло вписать современный, высокотехнологичный корпус инженерного факультета.
Инженерный факультет Университета Южной Дании © Jørgen True
Инженерный факультет Университета Южной Дании © Jørgen True

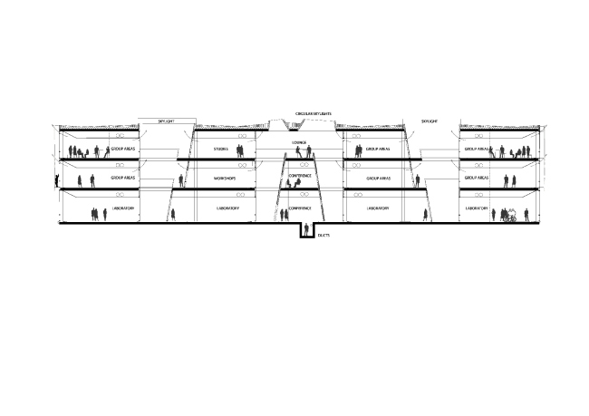
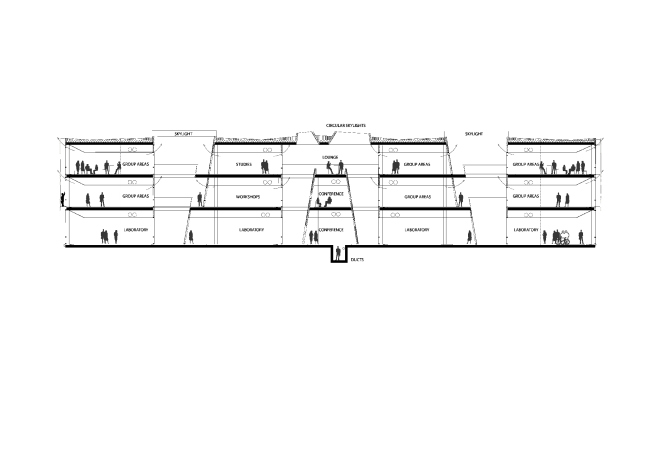
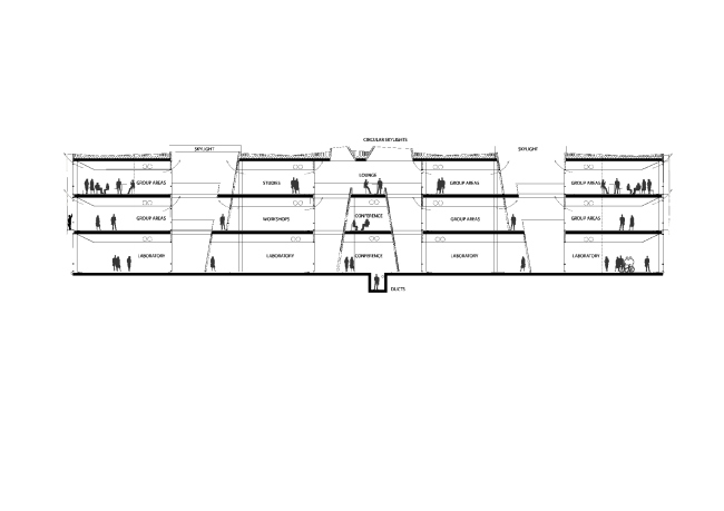
Он объединяет четыре института, которые проводят заказные исследования по материаловедению и механике конструкций, нано-оптике, экологии и робототехнике. Для их полноценной работы потребовалось разместить в здании несколько специфических помещений: крупнейшую в Дании дистилляционную установку, специальные лаборатории лазерной оптики – с защитой от вибрации и особым микроклиматом, супер-прочную бетонную плиту для тестирования нагрузок на конструкции.
Инженерный факультет Университета Южной Дании © Jørgen True
Инженерный факультет Университета Южной Дании © Jørgen True

Стеклянный прямоугольный параллелепипед накрыт снаружи белыми перфорированными панелями из особо прочного вида фибробетона, усиленного стальными волокнами – compact reinforced composite. Расположение круглых отверстий разного размера тщательно просчитано, так что количество проникающих внутрь солнечных лучей снижается почти в два раза, но при этом изнутри фасады остаются легко проницаемыми для взгляда. Само собой разумеется, что здание отвечает требованиям современного «зеленого строительства»: низкое потребление энергии, комфортный микроклимат, использование экологически безопасных материалов.
Инженерный факультет Университета Южной Дании © Jørgen True
Инженерный факультет Университета Южной Дании © Jørgen True

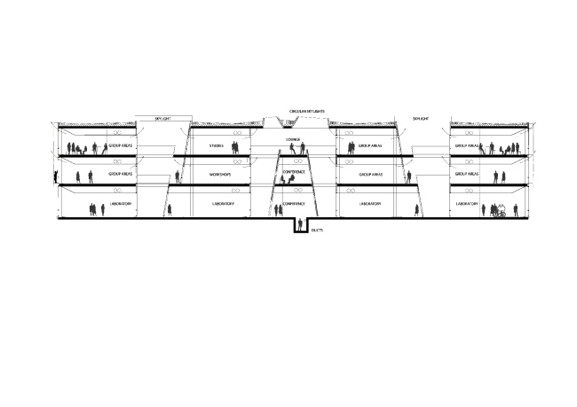
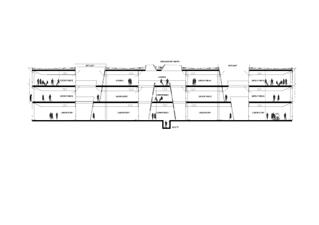
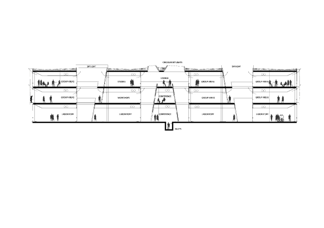
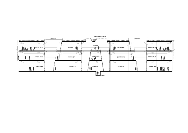
Линейная оболочка трехэтажного корпуса скрывает живое внутреннее пространство, организованное по принципу «город в городе». На площади в 21 000 м2 созданы несколько «блоков», соединенных мостками и переходами на разных уровнях. В этих блоках содержатся все учебные и исследовательские помещения, причем крупные лаборатории расположены на первом этаже. Специальные раздвижные стены позволяют максимально гибко использовать те или иные помещения.
Инженерный факультет Университета Южной Дании © Jørgen True
Инженерный факультет Университета Южной Дании © Jørgen True

Центральную часть внутреннего пространства занимает сложный геометрический объем, который сами архитекторы называют «Предмет мебели». На самом деле, это огромная лестница, которая позволяет подняться на озелененную площадку на крыше, а «по дороге» образует зоны для неформального общения и отдыха. Она же образует небольшую площадь в самом центре здания и атриум. Отделка этого скульптурного объекта заставляет вспомнить о тех самых «ржавых» панелях, использованных на фасадах старых корпусов университетского кампуса.
Инженерный факультет Университета Южной Дании © Jørgen True
Инженерный факультет Университета Южной Дании © Jørgen True

Новое здание, с одной стороны, очевидно взаимодействует с существующей средой, а с другой – заметно дистанцируется от нее, демонстрируя совершенно противоположный подход к использованию хорошо знакомых материалов и организации пространства: мощный, «смурной бетон» становится легким и ажурным, а жесткая, линейная среда – живой и гибкой.
Инженерный факультет Университета Южной Дании © Jørgen True
Инженерный факультет Университета Южной Дании © Jørgen True
Инженерный факультет Университета Южной Дании © Jørgen True
Инженерный факультет Университета Южной Дании © Jørgen True
Инженерный факультет Университета Южной Дании © Jørgen True
Инженерный факультет Университета Южной Дании © Jørgen True
Инженерный факультет Университета Южной Дании © Jørgen True
Инженерный факультет Университета Южной Дании © Jørgen True
Инженерный факультет Университета Южной Дании © C.F. Møller Architects
Инженерный факультет Университета Южной Дании © C.F. Møller Architects
Инженерный факультет Университета Южной Дании © C.F. Møller Architects
Инженерный факультет Университета Южной Дании © C.F. Møller Architects
Инженерный факультет Университета Южной Дании © C.F. Møller Architects
Инженерный факультет Университета Южной Дании © C.F. Møller Architects
Инженерный факультет Университета Южной Дании © C.F. Møller Architects
Инженерный факультет Университета Южной Дании © C.F. Møller Architects
Инженерный факультет Университета Южной Дании © C.F. Møller Architects
Инженерный факультет Университета Южной Дании © C.F. Møller Architects
Инженерный факультет Университета Южной Дании © C.F. Møller Architects
Инженерный факультет Университета Южной Дании © C.F. Møller Architects
Инженерный факультет Университета Южной Дании © C.F. Møller Architects
Инженерный факультет Университета Южной Дании © C.F. Møller Architects
Инженерный факультет Университета Южной Дании © C.F. Møller Architects
Инженерный факультет Университета Южной Дании © C.F. Møller Architects
Инженерный факультет Университета Южной Дании © C.F. Møller Architects
Инженерный факультет Университета Южной Дании © C.F. Møller Architects
Инженерный факультет Университета Южной Дании © C.F. Møller Architects
Инженерный факультет Университета Южной Дании © C.F. Møller Architects
Инженерный факультет Университета Южной Дании © C.F. Møller Architects
Инженерный факультет Университета Южной Дании © C.F. Møller Architects
Инженерный факультет Университета Южной Дании © C.F. Møller Architects
Инженерный факультет Университета Южной Дании © C.F. Møller Architects
Инженерный факультет Университета Южной Дании © C.F. Møller Architects
Инженерный факультет Университета Южной Дании © C.F. Møller Architects
Инженерный факультет Университета Южной Дании © C.F. Møller Architects
Инженерный факультет Университета Южной Дании © C.F. Møller Architects