Размещено на портале Архи.ру (www.archi.ru)

13.07.2015

Точка отсчета

Лилия Аронова
Объект:
Международный Московский Банк
Адрес:
Россия, Москва. Пречистенская набережная, вл. 9
Мастерская:
АБ «Остоженка»
Авторский коллектив:
А. Скокан, В. Каняшин, Р. Баишев, «J.Pallasmaa architects»: Davidson & Lindeberg (Финляндия)

Архитектурное бюро «Остоженка» и ЮниКредит Банк отметили двадцатилетнюю годовщину здания банка на Пречистенской набережной, собравшего в свое время немалый урожай профессиональных и государственных наград.

ЮниКредит Банк на Пречистенской набережной © АБ Остоженка
ЮниКредит Банк на Пречистенской набережной © АБ Остоженка

В эпоху перемен, в которую все мы имеем спорное счастье жить, двадцать лет – годовщина солидная. Если эту дату отмечают, значит, юбиляр не только все еще существует, но и вписался в новые времена, ничем себя не скомпрометировал, уважаем и даже, видимо, любим. Все это, оказывается, вполне применимо не только к какой-нибудь организации или, скажем, должностному лицу, но и к архитектурному произведению. Во всяком случае, во время празднования двадцатилетия со дня окончания строительства здания Международного московского банка на Пречистенской набережной слова любви и благодарности звучали очень искренне. Работники банка – с 2007 года он носит название ЮниКредит – гордятся местом, в котором работают, и называют его родным домом. Куратор Александр Балашов, собравший за эти годы небольшую, но убедительную коллекцию русской живописи и графики 1920-1930-х годов, вдохновенно продолжает работу над ее пополнением.
Александр Скокан – руководитель АБ Остоженка © АБ Остоженка
Александр Скокан – руководитель АБ Остоженка © АБ Остоженка
ЮниКредит Банк на Пречистенской набережной © АБ Остоженка
ЮниКредит Банк на Пречистенской набережной © АБ Остоженка

Что же касается автора проекта Александра Скокана, то для него здание на Пречистенской набережной, 9 стало первым значительным проектом – и сразу же крупной удачей. И не только для Скокана и его мастерской этот объект оказался знаковым. Это было первое построенное в России после Октябрьской революции здание коммерческого банка (так же как и сам Международный московский стал первым на постсоветском пространстве негосударственным банком, обладателем лицензии № 1). А главное – самый первый проект, с которого началась комплексная реконструкция Остоженки, превратившая богатый историческими ассоциациями, но совершенно запущенный «микрорайон № 17» в пресловутую «золотую милю» – средоточие престижной недвижимости и самый компактный на постсоветском пространстве полигон передовой архитектуры.
ЮниКредит Банк на Пречистенской набережной © АБ Остоженка
ЮниКредит Банк на Пречистенской набережной © АБ Остоженка

Они вообще очень удачно нашли друг друга – архитектор Александр Скокан и Остоженка. Старомосковскому району, где к концу 1980-х за худо-бедно приличными фасадами тогда еще Метростроевской улицы скрывалась путаница полубарачных переулков, посчастливилось найти бережного реформатора – каким бы оксюмороном ни выглядело это словосочетание. Архитектор, начавший заниматься комплексной реконструкцией Остоженки еще в 1989 году, в составе Научно-проектного центра МАрхИ, сделал эту миссию, без преувеличения, делом своей жизни, что и закреплено в названии образованного тремя годами позже бюро. В течение десяти лет АБ «Остоженка» выполняло функцию генпроектировщика района и возводило здесь объект за объектом. Конечно, здесь строили и строят и другие отличные архитекторы, а география проектов «Остоженки» давно вышла за пределы одноименной территории, но их «роман» продолжается. Да что там роман – налицо все приметы счастливого брака: и «фамилия» общая, и фарфоровый юбилей вот отпраздновали. Чтобы уже завершить семейную тему, упомянем, что сам Скокан с удовольствием называет здание банка своим «первенцем».

Дом на Пречистенской набережной уникален еще и тем, что вызванный им общественный резонанс развивался в направлении, противоположном привычному. Чаще всего же как бывает – если здание интересное, о нем начинают говорить еще на этапе проекта, к завершению строительства обсуждение кипит вовсю, а потом все привыкают, переключаются на другие объекты. Но в момент, когда со здания Международного Московского банка сняли леса, общественность его попросту… не заметила – настолько органично это современное, ни капли не архаичное здание вписалось в панораму Пречистенской набережной. Для Скокана с его программной контекстуальностью такая «незаметность» – лучший комплимент. Тем более что, присмотревшись, проект высоко оценили не только коллеги и публика, но и официальные лица: в 1996 году здание получило Государственную премию, а в 1997 по итогам «Московского рейтинга» было признано лучшей постройкой десятилетия.
Международный Московский Банк (впоследствии ЮниКредит Банк)
Международный Московский Банк (впоследствии ЮниКредит Банк)
© АБ «Остоженка»
Международный Московский Банк (впоследствии ЮниКредит Банк)
Международный Московский Банк (впоследствии ЮниКредит Банк)
© АБ «Остоженка»
Александр Скокан – руководитель АБ Остоженка © АБ Остоженка
Александр Скокан – руководитель АБ Остоженка © АБ Остоженка

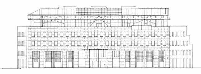
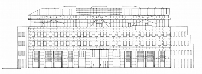
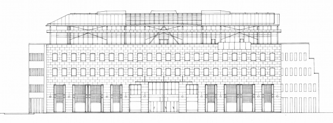
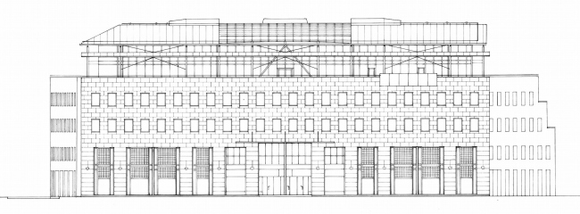
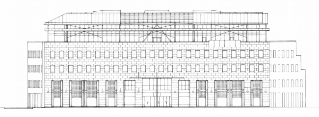
Не превышать высотность, не заступать за красную линию и вообще по возможности не слишком «высовываться» – в рамках всех этих ограничений, обязательных для исторического центра, «Остоженка» существует естественно, как, может быть, ни одна другая московская мастерская, и, более того, каждый раз выстраивает на их основе внятное и вполне бескомпромиссное художественное качество. Здание банка, например, при беглом взгляде с противоположной стороны реки как-то умудряется выглядеть близнецом стоящего рядом здания Технического училища имени Ермакова архитекторов Фалеева и Маркова, хотя ничего у них, казалось бы, не может быть общего: одно постройки 1905 года, другое – 1995-го, одно – классический московский модерн, другое – абсолютно актуальная для рубежа XX-XXI столетий европейского вида постройка с элементами конструктивизма. Компактный ортогональный фасад из гладкого гранита, со строгими рядами прямоугольных окон и широкими пилонами в высоту двух этажей мог был показаться скучноватым без венчающей его легкой стеклянной конструкции, отступающей от уровня красной линии на глубину просторной террасы. Здесь, наверху, расположились представительские помещения и апартаменты руководства банка, что и подчеркнуто конструктивными различиями, а терраса с захватывающим дух видом на широкую панораму Москвы-реки моментально вызывает ассоциации с корабельной палубой. Верхнюю границу объема образует двойное подчеркивание линии кровли, «перекликающейся своим покатым округлым силуэтом с вантами Крымского моста» (Александр Скокан), и проходящего под ней стеклянного навеса.

Что касается внутренней архитектуры, то она строится вокруг пронизывающего все этажи атриума, перекрытого стеклянной крышей с полотняными солнцезащитными шторками сложного серо-мандаринового оттенка. Именно это многосветное пространство, образующее нечто вроде городской площади внутри здания, создает главный wow-эффект проекта. Воздух, свет, пешеходные мостики и лестницы, под разными углами пересекающие атриум, много зелени, как в зимнем саду, – здесь дышишь полной грудью, а взгляд не устает следить за пересечениями уровней и проекций, с каждого этажа открывающимися по-новому. Корабельная тема продолжается в оформлении мостиков, металлические стойки и канаты тонко взаимодействуют с тиковым деревом перил и стеклоблоками, из которых сложена большая часть внутренних перегородок. Настоящая роскошь для офисного здания, где обычно принято экономить каждый метр полезного пространства.
ЮниКредит Банк на Пречистенской набережной © АБ Остоженка
ЮниКредит Банк на Пречистенской набережной © АБ Остоженка
Международный Московский Банк (впоследствии ЮниКредит Банк)
Международный Московский Банк (впоследствии ЮниКредит Банк)
© АБ «Остоженка»
Международный Московский Банк (впоследствии ЮниКредит Банк)
Международный Московский Банк (впоследствии ЮниКредит Банк)
© АБ «Остоженка»

Будучи «пионером» новой Остоженки, здание взяло на себя функцию точки отсчета, то есть уже само по себе стало контекстом для всех последующих построек. В том числе, разумеется, и для проектов бюро «Остоженка». И когда через полтора десятилетия банк заказал архитекторам возведение второго здания, которое должно было расположиться позади первого, на углу Коробейникова и Бутиковского переулков, им пришлось не просто вписываться, но и некоторым образом конкурировать с собственным проектом, да еще таким успешным и знаменитым. Решение было найдено очень изящное, легкое до невесомости – стеклянные фасады, декорированные горизонтальными пластиковыми ламелями, точно попадающими в цвет кирпича главного офиса, создают ощущение, что массивный объем расслаивается, распадается на штрихи, а дальше и вовсе растворяется в московском воздухе. С оглядкой на здание банка проектировался и жилой комплекс «Кленовый дом», занявший соседнее владение дальше по набережной (объект трудной судьбы, но не будем отвлекаться от темы).
Офисное здание в Бутиковском переулке © АБ Остоженка
Офисное здание в Бутиковском переулке © АБ Остоженка
Офисное здание в Бутиковском переулке © АБ Остоженка
Офисное здание в Бутиковском переулке © АБ Остоженка

На юбилее, как водится, с удовольствием вспоминали кажущиеся теперь особенно забавными истории двадцатилетней давности. Как первые лица молодого тогда еще банка просто с улицы зашли в мастерскую поинтересоваться, нет ли поблизости хорошего места для банковского здания. («Отчего же нет», – отозвались архитекторы и вскоре получили заказ.) Как авторы проекта, увлеченные идеей поддержать утраченную за годы советской власти преемственность, настаивали на классическом фасаде с пилястрами, и заказчики не поленились собрать аж целое правление, чтобы объяснить архитекторам: это дорого, это нецелесообразно, это не нужно. («И спасибо им за этот подзатыльник», – комментирует Скокан.) Как на одном из мостиков не шутя собирались установить штурвал, чтобы «капитан» управлял вверенным ему учреждением, как большим кораблем. Еще одна смешная история обернулась в результате серьезной удачей. Поскольку президент банка хотел, чтобы из его кабинета открывалась полномасштабная, от пола до потолка, панорама Москвы-реки, он настоял на замене соответствующего фрагмента кирпичного парапета на стекло. Получившаяся асимметричная выемка, этакий легкий ироничный штрих, стала отличительной чертой здания, придала ему живость и обаяние, словно мушка над губой красавицы. История, кстати, имела продолжение: точно такую же панораму правление захотело иметь и в зале заседаний, но тут уж архитекторы парапет отстояли, сравнив для убедительности фасад здания с мужским костюмом: вот, мол, у вас на пиджаке кармашек с платочком, и это хорошо, а представьте себе два кармашка с двумя платочками?
Александр Скокан – руководитель АБ Остоженка © АБ Остоженка
Александр Скокан – руководитель АБ Остоженка © АБ Остоженка
Александр Скокан – руководитель АБ Остоженка © АБ Остоженка
Александр Скокан – руководитель АБ Остоженка © АБ Остоженка

Александр Скокан не устает повторять, что эта работа стала для его мастерской отличной школой – и благодаря совместной работе с западными коллегами (в проектировании участвовал финский архитектор Юхан Паласмаа, строительством занималась итальянская фирма «Кодест Инжиниринг»), и потому, что удалось поработать над проектом с начала до самого конца, вплоть до размещения картин и выбора растений для атриума. И все это – в условиях доверительных, по-настоящему партнерских отношений с заказчиком, о каких в настоящее время архитекторам можно только мечтать. Вполне возможно, кстати, что этот фактор стал одной из причин успеха проекта, – вот и еще повод и порадоваться, и поностальгировать, и задуматься.
ЮниКредит Банк на Пречистенской набережной © АБ Остоженка
ЮниКредит Банк на Пречистенской набережной © АБ Остоженка
Международный Московский Банк (впоследствии ЮниКредит Банк)
Международный Московский Банк (впоследствии ЮниКредит Банк)
© АБ «Остоженка»