Размещено на портале Архи.ру (www.archi.ru)

09.07.2015

Одиноким предоставляется…

Анна Старостина
Объект:
Жилой комплекс Park Tower
Адрес:
Бельгия, None, Антверпен.
Мастерская:
Studio Farris

Жилая башня Park Tower, спроектированная Studio Farris, стала одним из самых высоких зданий Антверпена.

Жилой комплекс Park Tower © Lumecore/Toon
Grobet
Жилой комплекс Park Tower © Lumecore/Toon Grobet

Башня, высотой 78 метров расположена в районе Эйландье: вокруг набережная реки Шельды, прекрасный парк, старый город. Совсем недалеко находится весьма заметное здание MAS, но абсолютно белый прямоугольный объем может легко поспорить с ним за звание визуального ориентира если не всего Антверпена, то района старых доков, как минимум. Более того, рядом проходит одна из основных транспортных артерий, так что новая постройка мыслилась еще и как своеобразные «городские ворота».
Жилой комплекс Park Tower © Lumecore/Toon
Grobet
Жилой комплекс Park Tower © Lumecore/Toon Grobet

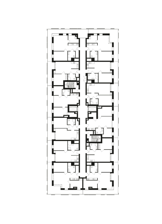
Несмотря на такое многообещающее расположение, проект не является «престижным», с некоторой натяжкой его даже можно назвать социальным. Общая площадь здания – 33 000 м2. Его подземную часть занимает стоянка для автомашин и велосипедов, нижний этаж отдан под небольшие магазины, а в верхних расположено 360 жилых блоков разного типа и площади. Все они относительно небольшие, рассчитанные на самые многочисленные и, одновременно, уязвимые, социальные группы: студентов, одиноких людей, молодые семейные пары, приезжих, пенсионеров. Для последних отдельно даже организован уход. Архитекторы особенно отмечают, что компоновка здания довольно гибкая и позволит легко отвечать на меняющиеся запросы современной городской жизни.
Жилой комплекс Park Tower © Lumecore/Toon
Grobet
Жилой комплекс Park Tower © Lumecore/Toon Grobet

Каждый из жилых блоков имеет собственную террасу с прекрасным видом на Антверпен. Общая площадь террас – 4 250 м2, и они полностью формируют фасады здания. Чтобы как-то защитить открытые пространства от сильного холодного ветра и осадков, архитекторы предусмотрели стеклянные полупрозрачные панели. Кажется, что прямоугольные экраны просто хаотично разбросаны по поверхности фасада: на самом деле, их оптимальную форму и расположение просчитали специалисты Технического университета Эйндховена – защита действительно эффективна. Абсолютно утилитарное решение стало и основным художественным приемом, определившим образ постройки. Оно позволило архитекторам создать многослойные, объемные фасады и привнести в проект некий элемент элегантной, хоть и предельно рациональной игры.
Жилой комплекс Park Tower © Lumecore/Toon
Grobet
Жилой комплекс Park Tower © Lumecore/Toon Grobet
Жилой комплекс Park Tower © Lumecore/Toon
Grobet
Жилой комплекс Park Tower © Lumecore/Toon Grobet
Жилой комплекс Park Tower © Lumecore/Toon
Grobet
Жилой комплекс Park Tower © Lumecore/Toon Grobet
Жилой комплекс Park Tower © Lumecore/Toon
Grobet
Жилой комплекс Park Tower © Lumecore/Toon Grobet
Жилой комплекс Park Tower © Lumecore/Toon
Grobet
Жилой комплекс Park Tower © Lumecore/Toon Grobet
Жилой комплекс Park Tower © Lumecore/Toon
Grobet
Жилой комплекс Park Tower © Lumecore/Toon Grobet
Жилой комплекс Park Tower © Steven Massart
Жилой комплекс Park Tower © Steven Massart
Жилой комплекс Park Tower © Lumecore/Toon
Grobet
Жилой комплекс Park Tower © Lumecore/Toon Grobet
Жилой комплекс Park Tower © Lumecore/Toon
Grobet
Жилой комплекс Park Tower © Lumecore/Toon Grobet
Жилой комплекс Park Tower © Lumecore/Toon
Grobet
Жилой комплекс Park Tower © Lumecore/Toon Grobet
Жилой комплекс Park Tower © Lumecore/Toon
Grobet
Жилой комплекс Park Tower © Lumecore/Toon Grobet
Жилой комплекс Park Tower © Studio Farris Architects
Жилой комплекс Park Tower © Studio Farris Architects
Жилой комплекс Park Tower © Studio Farris Architects
Жилой комплекс Park Tower © Studio Farris Architects
Жилой комплекс Park Tower © Studio Farris Architects
Жилой комплекс Park Tower © Studio Farris Architects
Жилой комплекс Park Tower © Studio Farris Architects
Жилой комплекс Park Tower © Studio Farris Architects
Жилой комплекс Park Tower © Studio Farris Architects
Жилой комплекс Park Tower © Studio Farris Architects