Размещено на портале Архи.ру (www.archi.ru)

02.07.2015

Учебное пособие

Анна Старостина
Объект:
Копенгагенская международная школа
Адрес:
Дания, None, Копенгаген.
Мастерская:
C. F. Møller

В Копенгагене строится школа с фасадом, покрытым солнечными батареями. Авторы проекта - бюро C.F. Møller.

Международная школа в районе Норхаун © C.F. Møller Architects
Международная школа в районе Норхаун © C.F. Møller Architects

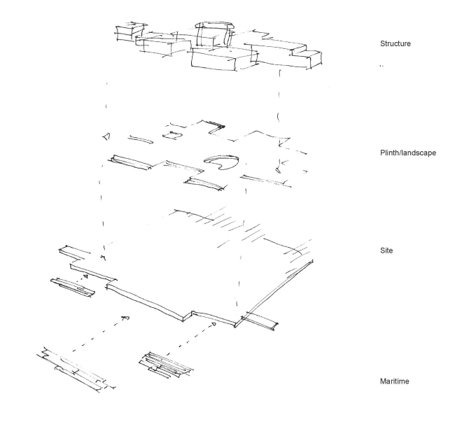
По предварительным подсчетам, население датской столицы к 2025 году увеличится на 100 тыс. человек, но город уже сейчас задумался о том где эти люди будут жить и работать. В рамках перспективного развития портовый район Норхаун превратится в современный жилой и деловой квартал. Одна из старейших и крупнейших скандинавских архитектурных фирм, C.F. Møller Architects, спроектировала для обновленного района международную школу на 1200 учащихся, которая станет самой крупной в Копенгагене. Работу в новом учебном заведении получат около 280 человек.
Международная школа в районе Норхаун © C.F. Møller Architects
Международная школа в районе Норхаун © C.F. Møller Architects

Современная школа должна активно взаимодействовать с окружающим миром, быть максимально открыта, уверены архитекторы. Поэтому вдоль выходящего на воду фасада они запланировали комфортную прогулочную зону, а у противоположного, городского фасада – организовали небольшой парк со спортивными площадками.
Международная школа в районе Норхаун © C.F. Møller Architects
Международная школа в районе Норхаун © C.F. Møller Architects

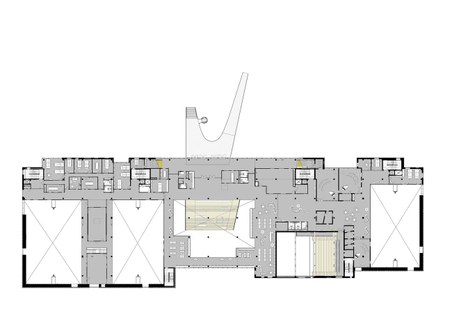
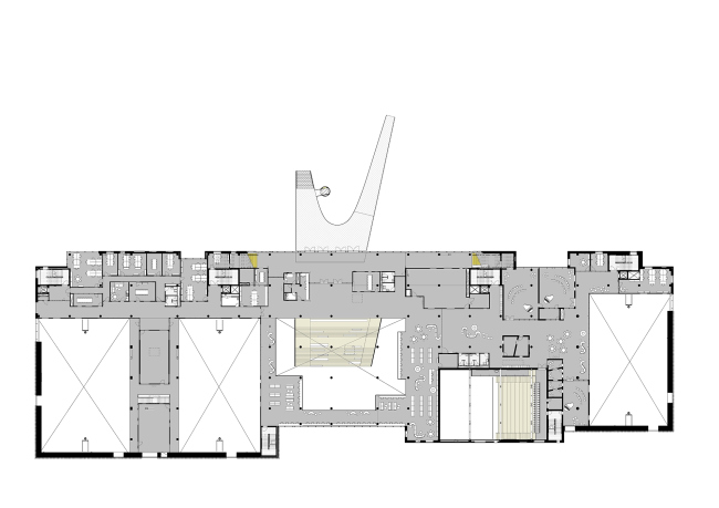
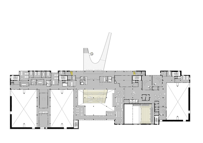
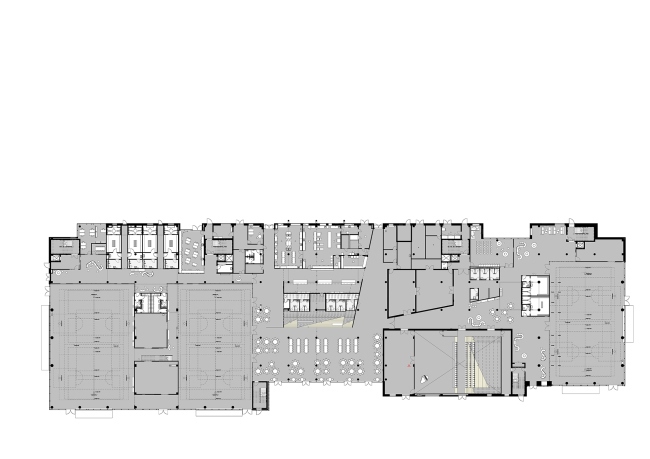
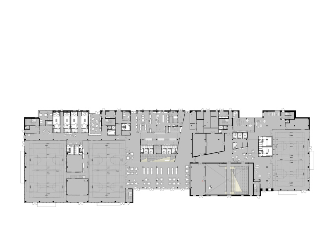
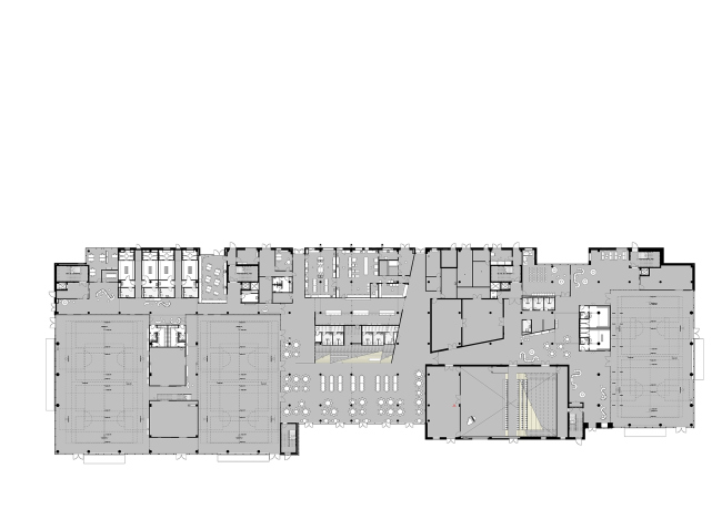
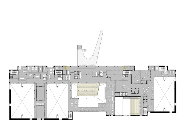
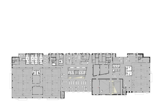
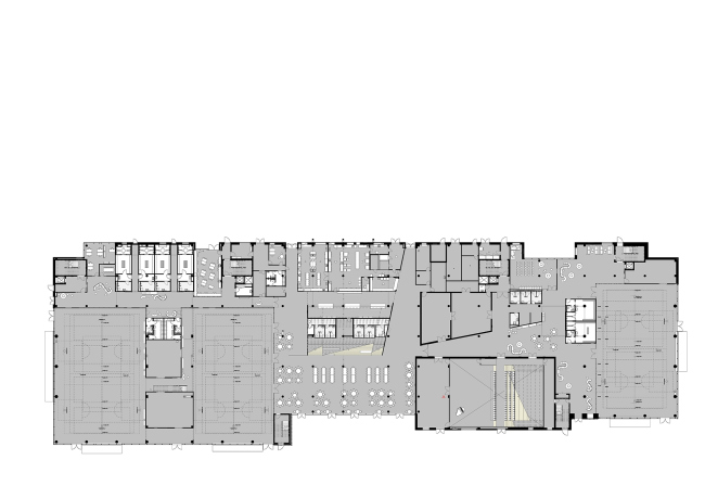
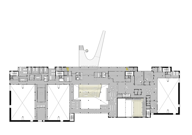
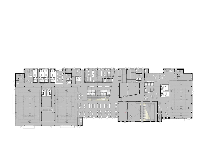
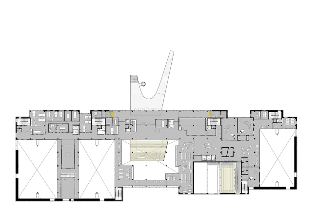
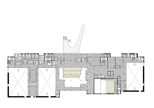
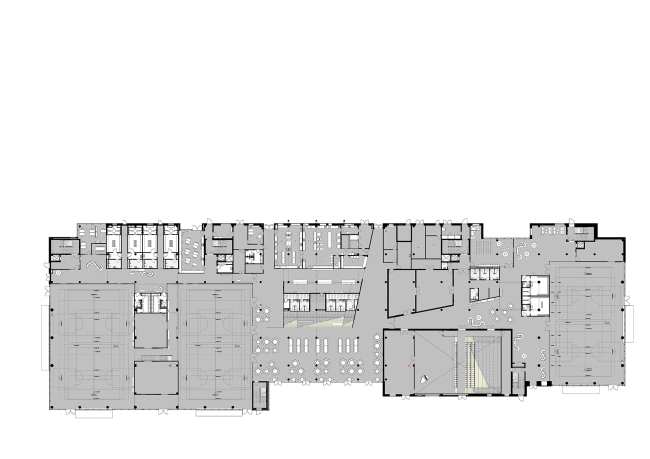
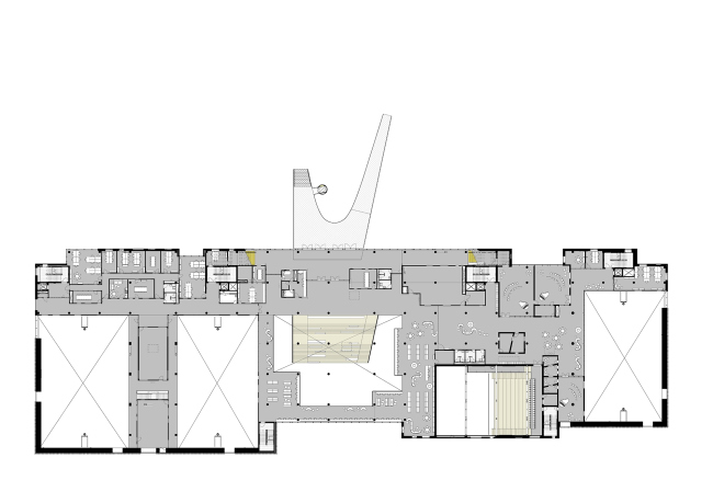
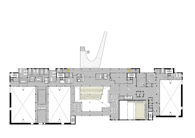
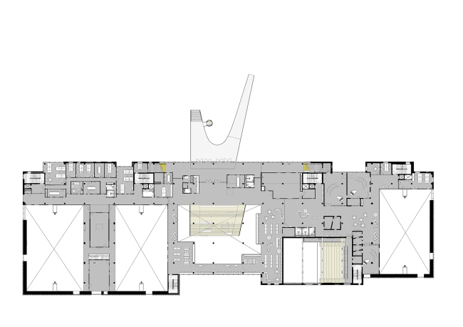
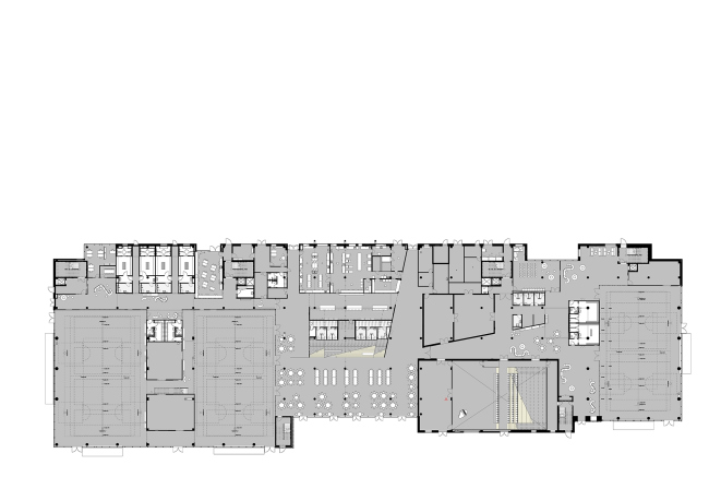
Само здание школы общей площадью 25 000 м2 состоит из довольно массивного двухэтажного основания и четырех башен. Первое вмещает все общественные пространства: вестибюль, библиотеку, столовую, спортивные залы и зал для постановок, концертов и других мероприятий. Доступ сюда будет открыт для всех, даже в нерабочие для самой школы часы. Так учебное заведение сможет служить общественным центром прилегающего района.
Международная школа в районе Норхаун © C.F. Møller Architects
Международная школа в районе Норхаун © C.F. Møller Architects

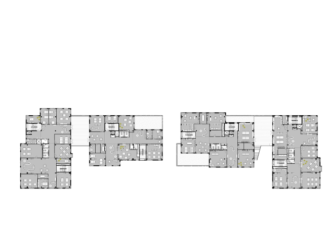
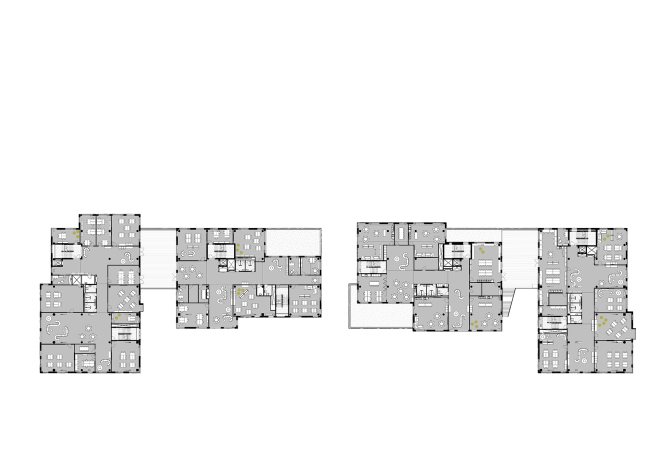
А вот расположенная на крыше «базы» терраса, соединенная специальным пандусом с парком, предназначена уже только для школьников, как и башни высотой 5-7 этажей, занятые классами. Каждая из них получит индивидуальную планировку, оптимизированную под возраст учащихся и особенности программы.
Международная школа в районе Норхаун © C.F. Møller Architects
Международная школа в районе Норхаун © C.F. Møller Architects



Но самая любопытная деталь проекта – фасады здания, покрытые 12 000 солнечных батарей, причем каждая имеет индивидуальный угол наклона, так что вся поверхность будет загадочно поблескивать, как «дождик» на новогодней елке. Общая площадь панелей чуть больше 6000 м2, а мощность около – 200 МВт·ч в год, так что даже в не слишком солнечном Копенгагене они способны обеспечить до половины всей необходимой школе электроэнергии (что равно потреблению электричества в 70 односемейных домах), а также послужат прекрасным практическим пособием на уроках физики.

Открытие школы запланировано на январь 2017.
Международная школа в районе Норхаун © C.F. Møller Architects
Международная школа в районе Норхаун © C.F. Møller Architects
Международная школа в районе Норхаун © C.F. Møller Architects
Международная школа в районе Норхаун © C.F. Møller Architects
Международная школа в районе Норхаун © C.F. Møller Architects
Международная школа в районе Норхаун © C.F. Møller Architects
Международная школа в районе Норхаун © C.F. Møller Architects
Международная школа в районе Норхаун © C.F. Møller Architects
Международная школа в районе Норхаун © C.F. Møller Architects
Международная школа в районе Норхаун © C.F. Møller Architects
Международная школа в районе Норхаун © C.F. Møller Architects
Международная школа в районе Норхаун © C.F. Møller Architects
Международная школа в районе Норхаун © C.F. Møller Architects
Международная школа в районе Норхаун © C.F. Møller Architects
Международная школа в районе Норхаун © C.F. Møller Architects
Международная школа в районе Норхаун © C.F. Møller Architects
Международная школа в районе Норхаун © C.F. Møller Architects
Международная школа в районе Норхаун © C.F. Møller Architects
Международная школа в районе Норхаун © C.F. Møller Architects
Международная школа в районе Норхаун © C.F. Møller Architects
Международная школа в районе Норхаун © C.F. Møller Architects
Международная школа в районе Норхаун © C.F. Møller Architects
Международная школа в районе Норхаун © C.F. Møller Architects
Международная школа в районе Норхаун © C.F. Møller Architects
Международная школа в районе Норхаун © C.F. Møller Architects
Международная школа в районе Норхаун © C.F. Møller Architects
Международная школа в районе Норхаун © C.F. Møller Architects
Международная школа в районе Норхаун © C.F. Møller Architects
Международная школа в районе Норхаун © C.F. Møller Architects
Международная школа в районе Норхаун © C.F. Møller Architects
Международная школа в районе Норхаун © C.F. Møller Architects
Международная школа в районе Норхаун © C.F. Møller Architects
Международная школа в районе Норхаун © C.F. Møller Architects
Международная школа в районе Норхаун © C.F. Møller Architects
Международная школа в районе Норхаун © C.F. Møller Architects
Международная школа в районе Норхаун © C.F. Møller Architects