Размещено на портале Архи.ру (www.archi.ru)

30.06.2015

Город в городе

Лада Ковальчук
Объект:
Комплекс Malmö Live
Адрес:
Швеция, None, Мальмё.
Мастерская:
Schmidt Hammer Lassen

В Мальмё датские архитекторы sсhmidt hammer lassen возвели культурный и гостиничный комплекс Malmö Live.

Комплекс Malmö Live © Adam Mørk
Комплекс Malmö Live © Adam Mørk

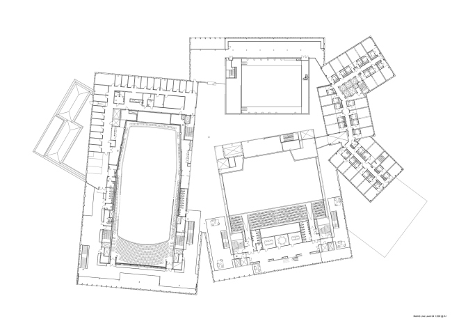
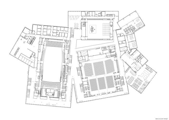
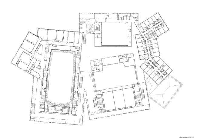
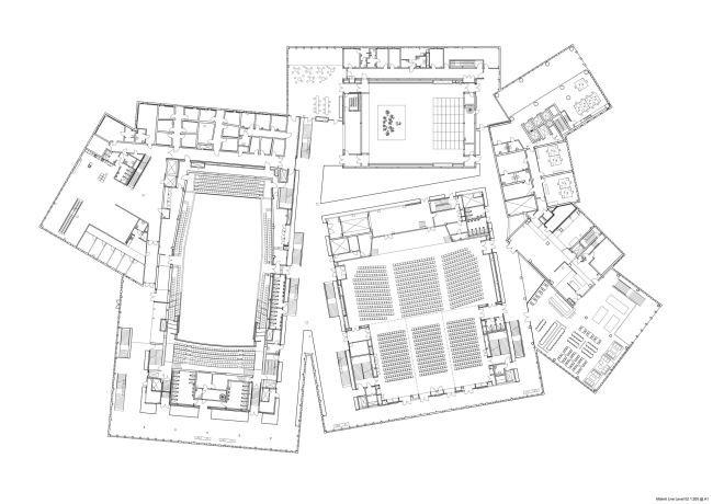
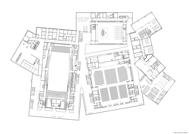
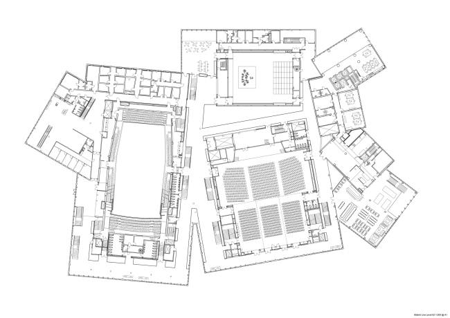
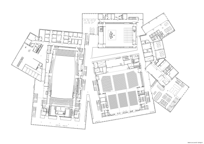
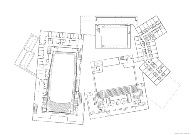
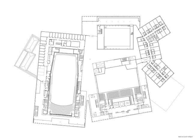
Malmö Live, комплекс общей площадью 54 тыс. м2 на Университетсхольмене, одном из островов в центре шведского Мальмё, представляет собой «городок» из концертного зала (его официальное открытие заявлено на август 2015 года), конференц-центра и гостиницы, занимающей три башни.
 
Комплекс Malmö Live © Adam Mørk
Комплекс Malmö Live © Adam Mørk

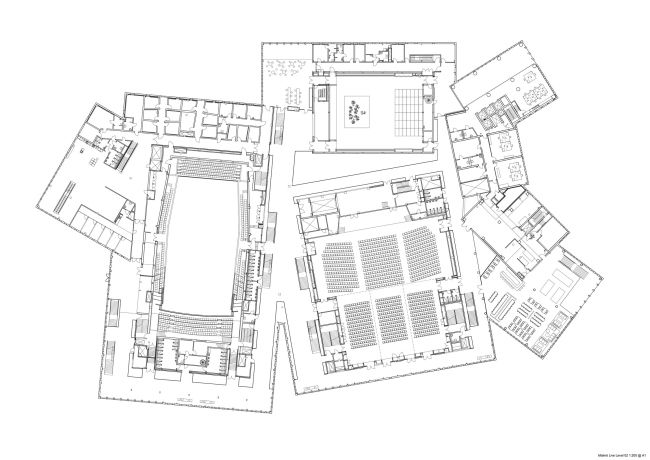
План комплекса демонстрирует иерархию разных по размеру прямоугольных в плане зданий – пятиэтажных блоков концертного зала и конгресс-центра и башен Clarion Hotel, самая высокая из которых насчитывает 25 этажей (85 метров). Создатели проекта разделили его композицию на три синонимичных элемента, которые, напоминая детали конструктора, образуют единый образ. Планировка нижней части комплекса отчасти восприняла средневековые градостроительные принципы: вестибюль, как извилистая улочка, объединяет разные части программы; там устроены небольшие «зоны отдыха» и ниши, где посетители могут остановиться и полюбоваться видами близлежащих канала и парка.
 
Комплекс Malmö Live © Adam Mørk
Комплекс Malmö Live © Adam Mørk

Помимо собственно зданий, Malmö Live включает в себя общественные пространства вдоль канала, парковую аллею, луг, где летом можно показывать на большом экране футбольные матчи, а зимой – залить каток. Это также соответствует замыслу архитекторов – созданию уменьшенной версии городского пространства, «города в городе». Кроме того, генплан предполагает строительство рядом 27 000 м2 жилья и офисов.
 
Комплекс Malmö Live © Adam Mørk
Комплекс Malmö Live © Adam Mørk

Если экстерьер зданий исполнен в едином ключе (варьируется только цвет стекла – белый, золотой и коричневый), то при оформлении внутреннего пространства использовались более разнообразные материалы: темный «грубый» бетон, камень, латунь и дерево.
 
Комплекс Malmö Live © Adam Mørk
Комплекс Malmö Live © Adam Mørk

Интерьер концертного зала (кроме него, есть еще два: многофункциональный и предназначенный для конференций) обшит древесиной дуба: она покрывает как «кубические» выступы стен, так и панели на перекрытиях: и те, и другие служат для повышения акустических качеств пространства.
 
Комплекс Malmö Live © Adam Mørk
Комплекс Malmö Live © Adam Mørk
Комплекс Malmö Live © Adam Mørk
Комплекс Malmö Live © Adam Mørk
Комплекс Malmö Live © Adam Mørk
Комплекс Malmö Live © Adam Mørk
Комплекс Malmö Live © Adam Mørk
Комплекс Malmö Live © Adam Mørk
Комплекс Malmö Live © Adam Mørk
Комплекс Malmö Live © Adam Mørk
Комплекс Malmö Live © Adam Mørk
Комплекс Malmö Live © Adam Mørk
Комплекс Malmö Live © Adam Mørk
Комплекс Malmö Live © Adam Mørk
Комплекс Malmö Live © Adam Mørk
Комплекс Malmö Live © Adam Mørk
Комплекс Malmö Live © Adam Mørk
Комплекс Malmö Live © Adam Mørk
Комплекс Malmö Live © Adam Mørk
Комплекс Malmö Live © Adam Mørk
Комплекс Malmö Live © schmidt hammer lassen architects
Комплекс Malmö Live © schmidt hammer lassen architects
Комплекс Malmö Live © schmidt hammer lassen architects
Комплекс Malmö Live © schmidt hammer lassen architects
Комплекс Malmö Live © schmidt hammer lassen architects
Комплекс Malmö Live © schmidt hammer lassen architects
Комплекс Malmö Live © schmidt hammer lassen architects
Комплекс Malmö Live © schmidt hammer lassen architects
Комплекс Malmö Live © schmidt hammer lassen architects
Комплекс Malmö Live © schmidt hammer lassen architects
Комплекс Malmö Live © schmidt hammer lassen architects
Комплекс Malmö Live © schmidt hammer lassen architects
Комплекс Malmö Live © schmidt hammer lassen architects
Комплекс Malmö Live © schmidt hammer lassen architects