Размещено на портале Архи.ру (www.archi.ru)

24.06.2015

Дом с биографией

Нина Фролова
Объект:
Вилла «Дом для Эссекса»
Адрес:
Великобритания, None,
Мастерская:
FAT
Авторский коллектив:
Авторы проекта – бюро FAT и художник Грейсон Перри (Grayson Perry).

На юго-востоке Англии по проекту бюро FAT и художника Грейсона Перри построен «Дом для Эссекса» – загородная вилла и произведение современного искусства одновременно.

Вилла «Дом для Эссекса» © Jack Hobhouse
Вилла «Дом для Эссекса» © Jack Hobhouse

Заказчиком выступила некоммерческая организация Living Architecture во главе с философом Аленом де Боттоном. Ее цель – теснее знакомить широкую публику с качественной современной архитектурой, возводя дома в живописных местах Британии и сдавая их внаем на короткий срок всем желающим. Среди уже поработавших с де Боттоном архитекторов – MVRDV и Майкл Хопкинс, в данный момент строятся виллы по проектам Петера Цумтора и Джона Поусона, но даже «Балансирующий амбар» Вини Мааса и его коллег кажется обычным жильем по сравнению с последним дополнением к собранию Living Architecture – «Домом для Эссекса».
 
Вилла «Дом для Эссекса» © Jack Hobhouse
Вилла «Дом для Эссекса» © Jack Hobhouse

Эта вилла расположена, как можно догадаться из ее названия, в графстве Эссекс – недалеко от морского побережья, на окраине деревни Рэбнисс (Wrabness), на вершине холма, откуда открываются живописные виды: совсем рядом – места, которые любил писать Констебл. В то же время, Эссекс – это не только красивые пейзажи и милые деревеньки: в его границы входят и промышленные пригороды Лондона, и доки в устье Темзы, и морские курорты. Жители графства часто выступают героями анекдотов: их считают малообразованными, недалекими, лишенными вкуса выходцами из рабочего класса, перебравшимися в Эссекс после войны из трущоб лондонского Ист-Энда и поправившими финансовое положение при Маргарет Тэтчер. Однако за стереотипами скрываются истории конкретных людей, где достаточно не только забавных, но и печальных эпизодов. Это прекрасно знают авторы проекта виллы – архитектор Чарльз Холланд (FAT) и художник Грейсон Перри: оба они родились в Эссексе.
 
Авторы проекта: слева – Чарльз Холланд (FAT), справа – Грейсон Перри в образе Джули Коуп © Katie Hyams
Авторы проекта: слева – Чарльз Холланд (FAT), справа – Грейсон Перри в образе Джули Коуп © Katie Hyams

Перри, лауреат Премии Тернера и член Королевской академии художеств, известен своими расписными вазами и гобеленами на темы идентичности, социальной несправедливости, домашнего насилия, нарушения прав женщин, господства разнообразных стереотипов. По его словам, еще 20 лет назад, играя с дочерью, он часто придумывал с ней персонажа, его семью, жизнь – и его жилище. Позже художник размышлял о том, чтобы самому спроектировать дом или даже храм (интерес к «светской», альтернативной традиционным конфессиям религии сближает Перри с де Боттоном, опубликовавшим в 2012 книгу «Религия для атеиста»). На такой основе очередная вилла для Living Architecture стала не просто загородным домом, а «святилищем типичной женщины графства Эссекс» – чем-то вроде паломнической часовни.
 
Вилла «Дом для Эссекса» © Jack Hobhouse
Вилла «Дом для Эссекса» © Jack Hobhouse

Перри придумал этой «типичной женщине» детальную биографию: ее звали Джули Коуп (от глагола cope – «справляться с кем-либо или чем-либо непростым»), она родилась в Эссексе во время катастрофического наводнения 1953 года, а погибла в 2014, когда ее сбил скутер работника службы доставки блюд с карри (этот скутер, Honda С90, служит люстрой в гостиной-часовне виллы). Она жила в одном из «новых городов», которые строились в Британии после войны, и в типичном поселке 1980-х. Смогла получить высшее образование лишь в зрелом возрасте, после развода с первым мужем, в браке с которым родила нескольких детей. В университете встретила второго супруга и поселилась с ним в деревне Рэбнисс. По замыслу Перри, именно этот, второй муж построил в ее память виллу-часовню, «Тадж-Махал на реке Стур». В целом, художник описывает жизнь своей героини как «историю женского ума, которому помешали реализоваться».
 
Вилла «Дом для Эссекса» © Jack Hobhouse
Вилла «Дом для Эссекса» © Jack Hobhouse

Такая развернутая «легенда» проекта, казалось бы, отодвигает архитектора на второй план, делает его лишь исполнителем идей художника. Но Чарльз Холланд, как и его коллеги по FAT (бюро существовало в 1995–2014) имеет собственный опыт в современном искусстве, кроме того, все проекты этой мастерской, развивая линию постмодернизма, успешно сочетали орнамент, игру с цветом, исторические цитаты и провокацию. Перри тоже принадлежит к этой линии со своим желанием соединять несоединимое и использовать в качестве источника вдохновения как классическую традицию, так и поп-культуру.
Вилла «Дом для Эссекса» © Jack Hobhouse
Вилла «Дом для Эссекса» © Jack Hobhouse

«Дом в Эссексе» имеет поэтому развитую генеалогию: здесь и церкви Русского Севера, и матрешки, и норвежские ставкирки, и завораживающие интерьеры Джона Соуна, и керамический декор Лейтон-хауса, и коттеджи в духе движения «Искусства и ремесла»; яркий колорит интерьера отсылает и к Адольфу Лоосу, и к народным традициям.
 
Вилла «Дом для Эссекса» © Jack Hobhouse
Вилла «Дом для Эссекса» © Jack Hobhouse

Вилла напоминает гармошку или выдвинутые друг из друга части матрешки: она делится на четыре части, постепенно увеличивающиеся по мере того, как она «спускается» с холма. Фасады здания сначала хотели покрыть характерной для народного зодчества Эссекса стуковой лепниной, но в итоге остановились на 2000 глазурованных изразцах по проекту Перри: на части из них Джули предстает в виде средневековой символической женской фигуры «шила-на-гиг» (sheela na gig), на остальных изображены связанные с ее биографией символы – булавка для застегивания подгузника, сердце, герб Эссекса, кассета-микстейп, ее инициал J и т.д. Кровля покрыта золотистым сплавом меди, на коньке крыши установлены замысловатые флюгеры, в том числе – серебристая фигура Джули.
 
Вилла «Дом для Эссекса» © Jack Hobhouse
Вилла «Дом для Эссекса» © Jack Hobhouse



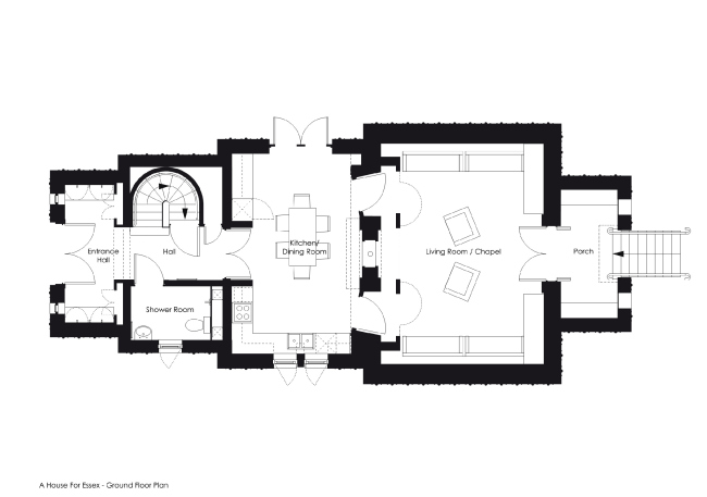
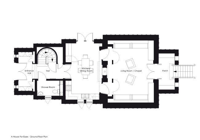
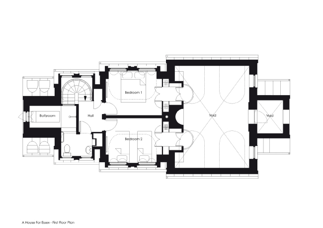
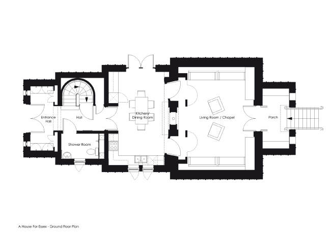
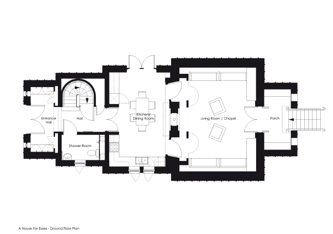
В интерьере рассказ о героине продолжается: там размещены четыре гобелена и три керамические работы Перри, включая статую Джули больше человеческого роста в уже упоминавшейся двухсветной гостиной-часовне. В это высокое и узкое пространство выходят балкончики из расположенных на втором этаже спален (всего в «Доме для Эссекса» могут разместиться четыре человека, его общая площадь – 190 м2), но попасть на них непросто – двери туда устроены в задних стенках встроенных шкафов. Остальные двери тоже часто замаскированы. Это один из примеров архитектурных «игр» в интерьере, которые Перри полностью называет заслугой Холланда. Также к вкладу архитектора художник относит то, что дом получился не совсем сказочным – или даже совсем не сказочным, и гораздо более четким и актуальным, чем изначально представлял его Грейсон Перри. Получившийся гезамткунстверк завершает «надгробие» Джули Коуп в саду, служащее также и скамьей.

Оригинальность «Дома для Эссекса», казалось бы, должна отпугивать желающих провести там приятный уикэнд среди лугов и холмов южной Англии, однако летний сезон 2015 года был раскуплен почти мгновенно: получается, современные искусство и архитектура служат не худшим «магнитом», чем красоты природы.
Вилла «Дом для Эссекса» © Jack Hobhouse
Вилла «Дом для Эссекса» © Jack Hobhouse
Вилла «Дом для Эссекса» © Jack Hobhouse
Вилла «Дом для Эссекса» © Jack Hobhouse
Вилла «Дом для Эссекса» © Jack Hobhouse
Вилла «Дом для Эссекса» © Jack Hobhouse
Вилла «Дом для Эссекса» © Jack Hobhouse
Вилла «Дом для Эссекса» © Jack Hobhouse
Вилла «Дом для Эссекса» © Jack Hobhouse
Вилла «Дом для Эссекса» © Jack Hobhouse
Вилла «Дом для Эссекса» © Jack Hobhouse
Вилла «Дом для Эссекса» © Jack Hobhouse
Вилла «Дом для Эссекса» © Jack Hobhouse
Вилла «Дом для Эссекса» © Jack Hobhouse
Вилла «Дом для Эссекса» © Jack Hobhouse
Вилла «Дом для Эссекса» © Jack Hobhouse
Вилла «Дом для Эссекса» © Jack Hobhouse
Вилла «Дом для Эссекса» © Jack Hobhouse
Вилла «Дом для Эссекса» © FAT Architecture. Источник: www.ribaj.com
Вилла «Дом для Эссекса» © FAT Architecture. Источник: www.ribaj.com
Вилла «Дом для Эссекса» © FAT Architecture. Источник: www.ribaj.com
Вилла «Дом для Эссекса» © FAT Architecture. Источник: www.ribaj.com
Вилла «Дом для Эссекса» © FAT Architecture. Источник: www.ribaj.com
Вилла «Дом для Эссекса» © FAT Architecture. Источник: www.ribaj.com
Вилла «Дом для Эссекса» © FAT Architecture. Источник: www.ribaj.com
Вилла «Дом для Эссекса» © FAT Architecture. Источник: www.ribaj.com
Вилла «Дом для Эссекса» © FAT Architecture & Grayson Perry
Вилла «Дом для Эссекса» © FAT Architecture & Grayson Perry